ค้นหาแบบบ้านสวย
บริษัท ซีคอน จำกัด
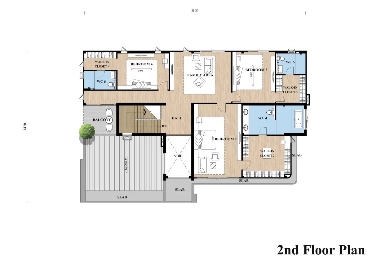
แบบบ้าน The Fame 477
- 5 ห้องนอน
- 3 ห้องน้ำ
- 477 ตร.ม.
บริษัท ซีคอน จำกัด
แบบบ้าน The Fame 477
- 5 ห้องนอน
- 3 ห้องน้ำ
- 477ตร.ม.
บ้านขนาดกลาง เน้นความหรูหราในแบบทันสมัย มีความ Grand สะท้อน Lifestyle อันเป็นเอกลักษณ์ตามแบบฉบับของ สไตล์ Modern พื้นที่ภายในกว้างขวาง สามารถดัดแปลงพื้นที่ได้ตามต้องการ มีความลงตัวในการจัดวางพื้นที่ มีห้องนอนชั้นล่างสำหรับผู้สูงอายุพร้อมห้องน้ำในตัว โถงทางเข้า Double Volume สูงเป็นพิเศษ ทำให้ Space มีความโอ่อ่า ชั้นบน ห้องนอนทุกห้องขนาดใหญ่ สะดวกสบายพร้อมห้องน้ำส่วนตัว มีพื้นที่นั่งเล่น และห้องพระ ซึ่งสามารถปรับ Function ได้ตามต้องการ
ติดต่อสอบถามเพิ่มเติม
info@seacon.co.th
1391
บริษัท ซีคอน จำกัด (รับสร้างบ้าน) 107-115 ถนนสี่พระยา บางรัก กรุงเทพฯ 10500
บริษัท ซีคอน จำกัด
แบบบ้าน Thames 777
- 5 ห้องนอน
- 4 ห้องน้ำ
- 777 ตร.ม.
บริษัท ซีคอน จำกัด
แบบบ้าน Thames 777
- 5 ห้องนอน
- 4 ห้องน้ำ
- 777ตร.ม.
บ้าน Style อังกฤษ ที่มีความโดดเด่นของหลังคา อันเป็นเอกลักษณ์ของบ้านสไตล์นี้ หลังคาสูงช่วยให้มี Air Gap ระบายความร้อนได้ดี การตกแต่ง และการใช้หน้าต่างทีสูง ทำให้บ้านดูโอ่อ่า ห้องรับแขกที่กว้าง และสูง เป็นจุดเด่นให้บ้านหลังนี้มีความน่าสนใจ พร้อมด้วยหน้าต่างรอบห้อง มี Court ด้านข้างที่เหมาะกับการทำสระว่ายน้ำ หรือสวนสวยงาม เพิ่มการเข้าถึงธรรมชาติให้แก่คนในบ้าน ห้อง Master Bedroom มีขนาดกว้างใหญ่เป็นพิเศษ โดยแบ่งสัดส่วนการใช้งานภายในห้องได้อย่างลงตัว
ติดต่อสอบถามเพิ่มเติม
info@seacon.co.th
1391
บริษัท ซีคอน จำกัด (รับสร้างบ้าน) 107-115 ถนนสี่พระยา บางรัก กรุงเทพฯ 10500
บริษัท ลีอาร์คีเทค จำกัด
แบบบ้าน BL-17 : Dreamsville
- 4 ห้องนอน
- 6 ห้องน้ำ
- 655 ตร.ม.

บริษัท ลีอาร์คีเทค จำกัด
แบบบ้าน BL-17 : Dreamsville
- 4 ห้องนอน
- 6 ห้องน้ำ
- 2 ที่จอดรถ
- 655ตร.ม.
บ้านสีขาวสไตล์ English Family House หลังนี้โดดเด่นด้วยเส้นสายเรียบง่ายที่แฝงความอบอุ่น ใช้โทนสีอ่อนและหลังคาทรงจั่วให้ความรู้สึกโปร่ง โล่ง และมีเอกลักษณ์ พื้นที่ภายในเน้นการเปิดรับแสงธรรมชาติด้วยกระจกบานใหญ่เชื่อมต่อวิวสวนภายนอกอย่างลงตัว พร้อมระเบียงและเฉลียงที่ออกแบบสำหรับการพักผ่อนกลางแจ้ง เหมาะสำหรับครอบครัวที่ชื่นชอบบรรยากาศสบาย ๆ แบบรีสอร์ท แต่ยังคงความทันสมัยและฟังก์ชันครบถ้วนสำหรับการใช้ชีวิตจริงในทุกวัน
ติดต่อสอบถามเพิ่มเติม
rangfun@leearchitect.co.th
025702424
59 ถนนประเสริฐมนูกิจ แขวงจรเข้บัว เขตลาดพร้าว กทม. 10230
บริษัท ซีคอน จำกัด
แบบบ้าน Greenery 486
- 5 ห้องนอน
- 6 ห้องน้ำ
- 468 ตร.ม.

บริษัท ซีคอน จำกัด
แบบบ้าน Greenery 486
- 5 ห้องนอน
- 6 ห้องน้ำ
- 3 ที่จอดรถ
- 468ตร.ม.
แบบบ้าน Greenery 486 บ้านสไตล์ Modern มีกลิ่นอายความเป็นยุโรป ถูกออกแบบมาเพื่อรองรับบ้านที่มีข้อจำกัดที่ดินหน้าแคบ แต่ฟังก์ชันภายในยังรู้สึกโล่งด้วย Double Volume การออกแบบพื้นที่ห้องพักผ่อน และทานอาหารมีความต่อเนื่องกันอย่างเป็นสัดส่วน อีกทั้งคอร์ทกลางบ้านยังให้ประโยชน์เรื่องแสง และการระบายอากาศ ซึ่งทุกฟังชันหลักในบ้านสามารถสัมผัสกับ Courtyard ทำให้รู้สึกใกล้ชิดกับธรรมชาติ
ติดต่อสอบถามเพิ่มเติม
info@seacon.co.th
1391
บริษัท ซีคอน จำกัด (รับสร้างบ้าน) 107-115 ถนนสี่พระยา บางรัก กรุงเทพฯ 10500
บริษัทโฮมสแควร์ ดีเวลอปเมนท์
แบบบ้าน HSD – 40 Terra Nova
- 4 ห้องนอน
- 5 ห้องน้ำ
- 597 ตร.ม.

บริษัทโฮมสแควร์ ดีเวลอปเมนท์
แบบบ้าน HSD – 40 Terra Nova
- 4 ห้องนอน
- 5 ห้องน้ำ
- 2 ที่จอดรถ
- 597ตร.ม.
Terra Nova บ้านสองชั้นสไตล์โมเดิร์นทรอปิคอล (Modern Tropical) จากซีรีส์ ORBITA ที่ออกแบบมาเพื่อผสานชีวิตเข้ากับธรรมชาติอย่างกลมกลืน ด้วยรูปทรงหลังคาจั่วคลาสสิกและวัสดุไม้ที่ให้ความอบอุ่น ภายในโปร่งโล่ง รับแสงธรรมชาติได้ตลอดวัน พร้อมพื้นที่สวนและสระน้ำประดับใจกลางบ้าน ให้คุณได้พักผ่อนในทุกมุมของชีวิต
ติดต่อสอบถามเพิ่มเติม
contact@homesquare.co.th
02-533-2622
2/69 ถนนลำลูกกา (คลอง 4) หมู่ 7 ตำบลลาดสวาย อำเภอลำลูกกา จังหวัดปทุมธานี 12150
บริษัท แลนดี้ โฮม (ประเทศไทย) จำกัด
แบบบ้าน Alberta
- 5 ห้องนอน
- 6 ห้องน้ำ
- 1347 ตร.ม.

บริษัท แลนดี้ โฮม (ประเทศไทย) จำกัด
แบบบ้าน Alberta
- 5 ห้องนอน
- 6 ห้องน้ำ
- 4 ที่จอดรถ
- 1347ตร.ม.
บ้านหรูสไตล์โมเดิร์นคลาสสิค หรูหราด้วยเอกลักษณ์ลายโรมัน ในลายเส้นของแนวตั้งและแนวโค้ง โถงทางเข้าโอ่อ่าด้วยดีไซน์ Double Volume สะท้อนไลฟ์สไตล์ที่มีระดับและทันสมัย ผสานความสุนทรียภาพในการอยู่อาศัยได้อย่างลงตัว
ติดต่อสอบถามเพิ่มเติม
cr@landymail.com
02-938-3456-7
90/2 ถนนราชพฤกษ์ แขวงบางระมาด เขตตลิ่งชัน กรุงเทพมหานคร 10170
บริษัท ริชชี่ เฮ้าส์ (Richie Houses)
แบบบ้าน RCH-037 Mayfair
- 6 ห้องนอน
- 7 ห้องน้ำ
- 1,505 ตร.ม.

บริษัท ริชชี่ เฮ้าส์ (Richie Houses)
แบบบ้าน RCH-037 Mayfair
- 6 ห้องนอน
- 7 ห้องน้ำ
- 0 ที่จอดรถ
- 1,505 ตร.ม.
ก้าวสู่อีกระดับแห่งความ Luxury กับบ้านดีไซน์ใหม่จากริชชี่ เฮ้าส์ ที่ออกแบบภายใต้แนวคิดแห่งการผสานความหรูหราเหนือกาลเวลาเข้ากับความทันสมัยอย่างลงตัว โดยใช้เส้นสายโค้งมน สร้างจังหวะสายตาที่สง่างามแต่ไม่แข็งกระด้าง มีเอกลักษณ์โดดเด่นตั้งแต่โถงทางเข้าที่ออกแบบให้มีความสูงโปร่ง เพื่อให้ความรู้สึกโอ่อ่าและเปิดรับแสงธรรมชาติเข้าสู่ภายในอย่างเต็มที่ ผนังด้านหน้าถูกตกแต่งด้วยลายเส้นแนวตั้งที่ช่วยเน้นความสูงสง่าแบบมีระดับ และเพิ่มมิติความมีเสน่ห์ของแสงเงาได้ตลอดทั้งวัน Courtyard สวนกลางบ้านเปรียบเสมือนหัวใจของบ้าน เป็นจุดเชื่อมโยงพื้นที่ต่างๆ และยังมีพื้นที่ดินเนอร์แบบ Semi Outdoor สำหรับคุณและคนพิเศษให้ได้ใช้ช่วงเวลาที่ผ่อนคลายดื่มด่ำกับความสุขของสายน้ำในยามค่ำคืนอันแสนวิเศษ ก่อนขึ้นไปหลับใหลบนห้องนอนชั้นบนที่ออกแบบเพื่อการพักผ่อนไว้อย่างลงตัว ทั้งหมดนี้ให้คุณและครอบครัวได้สัมผัสชีวิตหรูหราที่ถูกรังสรรค์ในพื้นที่ทุกตารางเมตร เพื่อตอบรับไลฟ์สไตล์ในตัวคุณอย่างแท้จริง
ติดต่อสอบถามเพิ่มเติม
02-670-7061 ถึง 3
info@richiehouses.com
บริษัท ริชชี่ เฮ้าส์ จำกัด 79/338 ถนนสาธุประดิษฐ์ แขวงช่องนนทรี เขตยานนาวา กรุงเทพฯ 10120
บริษัท กริท บิลด์ จำกัด
แบบบ้าน ATTA-A
- 5 ห้องนอน
- 6 ห้องน้ำ
- 528 ตร.ม.

บริษัท กริท บิลด์ จำกัด
แบบบ้าน ATTA-A
- 5 ห้องนอน
- 6 ห้องน้ำ
- 3 ที่จอดรถ
- 528ตร.ม.
บ้านโมเดิร์นกลิ่นอายทรอปิคัล ผสมผสานความทันสมัยและธรรมชาติอย่างลงตัว
ติดต่อสอบถามเพิ่มเติม
-
info@gritbuild.net
0933649782
โครงการคริสตัล ดีไซน์ เซ็นเตอร์ ห้องเลขที่ L4-207 ชั้น 2 อาคาร L4 (4L4-207,209) 1448/19 ซอยลาดพร้าว 87 (จันทราสุข) แขวงคลองจั่น เขตบางกะปิ กรุงเทพมหานคร 10240
บริษัท กริท บิลด์ จำกัด
แบบบ้าน ATTA-B
- 7 ห้องนอน
- 8 ห้องน้ำ
- 921 ตร.ม.

บริษัท กริท บิลด์ จำกัด
แบบบ้าน ATTA-B
- 7 ห้องนอน
- 8 ห้องน้ำ
- 5 ที่จอดรถ
- 921ตร.ม.
แบบบ้านสไตล์ modern tropical แนวคิดออกแบบที่มีอัตลักษณ์ผสมผสานความทันสมัยและธรรมชาติ ตอบโจทย์ครอบครัวขนาดใหญ่ด้วยพื้นที่ใช้สอยที่ออกแบบมาอย่างพิถีพิถัน การออกแบบมีการเลือกส่วนสีตัวอาคารโดยส่วนที่เน้นสร้างมิติให้อาคาร เราเลือกใช้สีเทคเจอร์และหินวีเนียร์โทนสีเทาและดำ ที่มีผิวสัมผัสเฉพาะตัว เพื่อเพิ่มความเข้มขรึมให้กับตัวอาคาร อีกทั้งยังเลือกใช้วัสดุตกแต่งตัวอาคารที่มีลวดลายคล้ายไม้ ที่เมื่อกระทบกับแสงแดดจะให้ความรู้สึกที่อบอุ่นและผ่อนคลาย รวมถึงการเลือกใช้ ( Facade ) เพื่อเพิ่มความน่าค้นหาให้กับตัวอาคาร เพื่อสะท้อนถึงการตกแต่งที่หรูหราภายในบ้าน ในส่วนของกระจกได้เลือกใช้กระจกที่สูงจรดเพดาน การแบ่งสัดส่วนภายใน มีความโปร่งสบายไม่อึดอัด แต่ยังคงมีความเป็นส่วนตัวของผู้อยู่อาศัย ฟังก์ชันการใช้สอยภายในบ้านที่มีทั้งพื้นที่ส่วนตัวและส่วนกลาง ประกอบด้วย 7 ห้องนอน 8 ห้องน้ำ 4 ห้องอเนกประสงค์ 1 สระว่ายน้ำ และ ระเบียงขนาดใหญ่ บริเวณชั้น 2 ที่รองรับกิจกรรมต่าง ๆ ได้อย่างหลากหลาย เหมาะกับการทำกิจกรรมภายในครอบครัวหรือจะชวนเพื่อน ๆ มาสังสรรค์ในช่วงเทศกาลต่าง ๆ บ้านหลังนี้จึงตอบโจทย์ความต้องการของสมาชิกในครอบครัวทุกช่วงวัย
ติดต่อสอบถามเพิ่มเติม
-
info@gritbuild.net
0933649782
โครงการคริสตัล ดีไซน์ เซ็นเตอร์ ห้องเลขที่ L4-207 ชั้น 2 อาคาร L4 (4L4-207,209) 1448/19 ซอยลาดพร้าว 87 (จันทราสุข) แขวงคลองจั่น เขตบางกะปิ กรุงเทพมหานคร 10240
บริษัท กริท บิลด์ จำกัด
แบบบ้าน ATTA-B
- 7 ห้องนอน
- 8 ห้องน้ำ
- 921 ตร.ม.

บริษัท กริท บิลด์ จำกัด
แบบบ้าน ATTA-B
- 7 ห้องนอน
- 8 ห้องน้ำ
- 5 ที่จอดรถ
- 921ตร.ม.
แบบบ้านสไตล์ modern tropical แนวคิดออกแบบที่มีอัตลักษณ์ผสมผสานความทันสมัยและธรรมชาติ ตอบโจทย์ครอบครัวขนาดใหญ่ด้วยพื้นที่ใช้สอยที่ออกแบบมาอย่างพิถีพิถัน การออกแบบมีการเลือกส่วนสีตัวอาคารโดยส่วนที่เน้นสร้างมิติให้อาคาร เราเลือกใช้สีเทคเจอร์และหินวีเนียร์โทนสีเทาและดำ ที่มีผิวสัมผัสเฉพาะตัว เพื่อเพิ่มความเข้มขรึมให้กับตัวอาคาร อีกทั้งยังเลือกใช้วัสดุตกแต่งตัวอาคารที่มีลวดลายคล้ายไม้ ที่เมื่อกระทบกับแสงแดดจะให้ความรู้สึกที่อบอุ่นและผ่อนคลาย รวมถึงการเลือกใช้ ( Facade ) เพื่อเพิ่มความน่าค้นหาให้กับตัวอาคาร เพื่อสะท้อนถึงการตกแต่งที่หรูหราภายในบ้าน ในส่วนของกระจกได้เลือกใช้กระจกที่สูงจรดเพดาน การแบ่งสัดส่วนภายใน มีความโปร่งสบายไม่อึดอัด แต่ยังคงมีความเป็นส่วนตัวของผู้อยู่อาศัย ฟังก์ชันการใช้สอยภายในบ้านที่มีทั้งพื้นที่ส่วนตัวและส่วนกลาง ประกอบด้วย 7 ห้องนอน 8 ห้องน้ำ 4 ห้องอเนกประสงค์ 1 สระว่ายน้ำ และ ระเบียงขนาดใหญ่ บริเวณชั้น 2 ที่รองรับกิจกรรมต่าง ๆ ได้อย่างหลากหลาย เหมาะกับการทำกิจกรรมภายในครอบครัวหรือจะชวนเพื่อน ๆ มาสังสรรค์ในช่วงเทศกาลต่าง ๆ บ้านหลังนี้จึงตอบโจทย์ความต้องการของสมาชิกในครอบครัวทุกช่วงวัย
ติดต่อสอบถามเพิ่มเติม
-
info@gritbuild.net
0933649782 ฝ่ายขาย
โครงการคริสตัล ดีไซน์ เซ็นเตอร์ ห้องเลขที่ L4-207 ชั้น 2 อาคาร L4 (4L4-207,209) 1448/19 ซอยลาดพร้าว 87 (จันทราสุข) แขวงคลองจั่น เขตบางกะปิ กรุงเทพมหานคร 10240
บริษัท กริท บิลด์ จำกัด
แบบบ้าน Avenue
- 5 ห้องนอน
- 3 ห้องน้ำ
- 337 ตร.ม.

บริษัท กริท บิลด์ จำกัด
แบบบ้าน Avenue
- 5 ห้องนอน
- 3 ห้องน้ำ
- 2 ที่จอดรถ
- 337ตร.ม.
บ้านสไตล์ Nordic มีเอกลักษณ์ สวยเรียบง่าย ครบครันด้วยฟังก์ชั่นการใช้งานที่ลงตัว
ติดต่อสอบถามเพิ่มเติม
-
info@gritbuild.net
0933649782
โครงการคริสตัล ดีไซน์ เซ็นเตอร์ ห้องเลขที่ L4-207 ชั้น 2 อาคาร L4 (4L4-207,209) 1448/19 ซอยลาดพร้าว 87 (จันทราสุข) แขวงคลองจั่น เขตบางกะปิ กรุงเทพมหานคร 10240
บริษัท ลีอาร์คีเทค จำกัด
แบบบ้าน BL-08 : The Majesty
- 5 ห้องนอน
- 9 ห้องน้ำ
- 1018 ตร.ม.

บริษัท ลีอาร์คีเทค จำกัด
แบบบ้าน BL-08 : The Majesty
- 5 ห้องนอน
- 9 ห้องน้ำ
- 4 ที่จอดรถ
- 1018ตร.ม.
แบบบ้านสวย ทันสมัย สไตล์ Modern-Contemporary เป็นแบบบ้าน Multifamily สำหรับผู้ต้องการสร้างบ้านสำหรับสมาชิกหลายครอบครัว ด้วยการออกแบบกลุ่มอาคารที่เชื่อมกัน ด้วยการจัดพื้นที่ใช้สอยดูเป็นหลังเดียวอย่างอบอุ่นด้วยพื้นที่ใช้สอยขนาดใหญ่ จัดวางตำแหน่งห้องได้อย่างลงตัว ส่วนพักผ่อนบริเวณสระว่ายน้ำพร้อมเฉลียงกว้างขวาง ให้ทุกคนในครอบครัวทำกิจกรรมร่วมกันได้อย่างมีความสุข ประตู-หน้าต่างอลูมิเนียมสีดำเพิ่มความทันสมัย ตอบโจทย์แบบบ้านสำหรับคนรุ่นใหม่ กระจกโถงรับแขก Double Space ดูโอ่โถง เปิดรับแสงได้เต็มที่ ช่วยประหยัดพลังงาน
ติดต่อสอบถามเพิ่มเติม
rangfun@leearchitect.co.th
0-2570-2424
59 ถนนประเสริฐมนูกิจ แขวงจรเข้บัว เขตลาดพร้าว กรุงเทพฯ 10230
บริษัท ลีอาร์คีเทค จำกัด
แบบบ้าน BL-10
- 6 ห้องนอน
- 8 ห้องน้ำ
- 812 ตร.ม.

บริษัท ลีอาร์คีเทค จำกัด
แบบบ้าน BL-10
- 6 ห้องนอน
- 8 ห้องน้ำ
- 4 ที่จอดรถ
- 812ตร.ม.
บ้านที่ตอบสนองทุก Life Style ของผู้อยู่อาศัย เหมาะสำหรับลักษณะครอบครัวแบบขยาย บนขนาดที่ดินที่มีอยู่อย่างจำกัด โดยจะสรรให้มีพื้นที่ใช้สอยมากที่สุด คุ้มค่ากับมูลค่าของที่ดิน เพื่ออยู่ร่วมกันได้หลายครอบครัว หลาย Generation สามารถออกแบบประโยชน์ใช้สอยตาม Life Style ของแต่ละคน ได้อย่างเป็นส่วนตัว ขณะเดียวกันก็สามารถจัดพื้นที่ส่วนกลางใช้ประโยชน์ จัดกิจกรรมในครอบครัวร่วมกัน เช่นส่วนเตรียมอาหาร ช่วยกันทำอาหาร ส่วนออกกำลังกายที่มุมพักผ่อน อ่านหนังสือที่ระเบียง ช่วยให้คนในบ้านได้ใกล้ชิดกันมากขึ้นและในขณะเดียวกันยังสามารถจัดสรรพื้นที่ส่วนตัวได้อย่างพอเพียง รวมทั้งยังใส่ใจเรื่องความสะดวกสบายและความปลอดภัยสำหรับผู้สูงวัย
ติดต่อสอบถามเพิ่มเติม
rangfun@leearchitect.co.th
0-2570-2424
59 ถนนประเสริฐมนูกิจ แขวงจรเข้บัว เขตลาดพร้าว กรุงเทพฯ 10230
บริษัท ลีอาร์คีเทค จำกัด
แบบบ้าน BL-11 Modern Elegant
- 5 ห้องนอน
- 8 ห้องน้ำ
- 680 ตร.ม.

บริษัท ลีอาร์คีเทค จำกัด
แบบบ้าน BL-11 Modern Elegant
- 5 ห้องนอน
- 8 ห้องน้ำ
- 0 ที่จอดรถ
- 680ตร.ม.
อีกมิติของแบบบ้านโมเดิร์น ที่มีเอกลักษณ์โดดเด่นทันสมัย ด้วยรูปทรงที่เรียบหรู สง่างาม พิถีพิถัน ตกแต่งด้วยอลูมิเนียมฉลุลาย สีพิงค์โกล์ด เพิ่มมุมมองให้กับตัวบ้านที่แปลกตา สวยเก๋ ดูดีมีสไตล์ เหมาะกับรสนิยม (LIFE STYLE) ของคนรุ่นใหม่ ความโอ่โถง ซุ้มทางเข้าโปร่งโล่ง DOUBLE VOLUMN ที่เชื่อมด้วยซุ้มทางเดิน (WALK WAY) จากโรงรถและเพิ่มสเน่ห์ของบ้านด้วยมุมทำงานกลางสวนหน้าบ้าน เป็นสัดส่วนสำหรับแขกพิเศษ อีกทั้ง FUNCTION ที่ครบครัน ด้วยความน่าสนใจของเฉลียงพักผ่อนหลังบ้านที่มีหลังคาคลุมโปร่งโล่ง ทำให้สมาชิกครอบครัวทุกวัยทำกิจกรรมด้วยกันอย่างลงตัว
ติดต่อสอบถามเพิ่มเติม
rangfun@leearchitect.co.th
0-2570-2424
59 ถนนประเสริฐมนูกิจ แขวงจรเข้บัว เขตลาดพร้าว กรุงเทพฯ 10230
บริษัท ลีอาร์คีเทค จำกัด
แบบบ้าน BL-14
- 3 ห้องนอน
- 9 ห้องน้ำ
- 631 ตร.ม.

บริษัท ลีอาร์คีเทค จำกัด
แบบบ้าน BL-14
- 3 ห้องนอน
- 9 ห้องน้ำ
- 3 ที่จอดรถ
- 631ตร.ม.
บ้านที่ตอบโจทย์ชีวิตการอยู่อาศัยกับการทำธุรกิจได้อย่างลงตัว ด้วยสัดส่วนการจัดพื้นที่ใช้สอยให้มีความคล่องตัว เอนกประสงค์ สำหรับการทำงาน แต่ยังคงมีสมดุลของความเป็นบ้าน อีกทั้งมีรูปลักษณ์ภายนอกที่สวยสะดุดตา ออกแบบสอดประสานระหว่างเส้นแนวตั้งและแนวนอน และการใช้สีขาวตัดกับวัสดุโทนน้ำตาล เพิ่มเสน่ห์ด้วยระแนงไม้ พร้อมกับเป็นที่บังแสงแดด มีการใช้กระจกเพื่อเพิ่มมิติให้กับอาคาร
ติดต่อสอบถามเพิ่มเติม
rangfun@leearchitect.co.th
0-2570-2424
59 ถนนประเสริฐมนูกิจ แขวงจรเข้บัว เขตลาดพร้าว กรุงเทพฯ 10230
บริษัท ลีอาร์คีเทค จำกัด
แบบบ้าน MO-06 : Simplicity
- 4 ห้องนอน
- 4 ห้องน้ำ
- 261 ตร.ม.

บริษัท ลีอาร์คีเทค จำกัด
แบบบ้าน MO-06 : Simplicity
- 4 ห้องนอน
- 4 ห้องน้ำ
- 0 ที่จอดรถ
- 261ตร.ม.
บ้านที่ตอบโจทย์ชีวิตการอยู่อาศัยกับการทำธุรกิจได้อย่างลงตัว ด้วยสัดส่วนการจัดพื้นที่ใช้สอยให้มีความคล่องตัว เอนกประสงค์ สำหรับการทำงาน แต่ยังคงมีสมดุลของความเป็นบ้าน อีกทั้งมีรูปลักษณ์ภายนอกที่สวยสะดุดตา ออกแบบสอดประสานระหว่างเส้นแนวตั้งและแนวนอน และการใช้สีขาวตัดกับวัสดุโทนน้ำตาล เพิ่มเสน่ห์ด้วยระแนงไม้ พร้อมกับเป็นที่บังแสงแดด มีการใช้กระจกเพื่อเพิ่มมิติให้กับอาคาร
ติดต่อสอบถามเพิ่มเติม
rangfun@leearchitect.co.th
0-2570-2424
59 ถนนประเสริฐมนูกิจ แขวงจรเข้บัว เขตลาดพร้าว กรุงเทพฯ 10230
บริษัท ลีอาร์คีเทค จำกัด
แบบบ้าน BL-15 : The Atrium Sky Manor
- 5 ห้องนอน
- 7 ห้องน้ำ
- 803 ตร.ม.

บริษัท ลีอาร์คีเทค จำกัด
แบบบ้าน BL-15 : The Atrium Sky Manor
- 5 ห้องนอน
- 7 ห้องน้ำ
- 4 ที่จอดรถ
- 803ตร.ม.
บ้านที่ได้แรงบันดาลใจมาจาก Resort & Spa! เน้นคอนเซ็ปต์ของการจัดสัดส่วนอย่างลงตัวระหว่างการพักผ่อนและการทำกิจกรรม สะท้อนการดีไซน์แบบ function to Form ของอาคาร ที่ตอบโจทย์ทั้งการใช้ชีวิตและสุนทรียภาพของสถาปัตยกรรม โดยบ้านหลังนี้ออกแบบส่วนตรงกลางเป็น Courtyard เปิดโล่ง รูปตัว U เป็นพื้นที่สระว่ายน้ำและเฉลียงขนาดใหญ่เป็นจุดพักผ่อนหลักของบ้าน ที่สามารถเชื่อมต่อพื้น Flow of Space) ไปยัง Dining และ Living area ได้ และมีส่วนของ Salon & Gym ที่มองออกมาเห็นวิวสระว่ายน้ำและสวนกลางบ้านเพิ่มความผ่อนคลาย และเชื่อมต่อพื้นที่ชั้นสองด้วยโถงสูงเปิดโล่งและบันไดทอดยาวไปยังห้องพักผ่อนส่วนกลางของครอบครัว ก่อนจะนำทางไปยังห้องนอนส่วนตัวของแต่ละคน ฟอร์มของอาคารใช้การคว้านและยื่นตัวกล่องอาคารเพื่อการเว้นจังหวะของสัดส่วนอาคาร และใช้ Facade อิฐบล็อกเรียงตัวสลับกันเป็นการบดบังสายตาและเปิดมุมมองส่วนระเบียง และระแนงไม้ที่ยาวบดบังทางเดินและส่วนกลางของบ้าน เพิ่มความเป็นส่วนตัวมากขึ้นด้วยการจัดสวนหน้าบ้าน ทั้งยังได้ลมเย็นเข้าสูตัวอาคารอีกด้วย
ติดต่อสอบถามเพิ่มเติม
rangfun@leearchitect.co.th
0-2570-2424
59 ถนนประเสริฐมนูกิจ แขวงจรเข้บัว เขตลาดพร้าว กรุงเทพฯ 10230
บริษัท ลีอาร์คีเทค จำกัด
แบบบ้าน BL-18 : Moon Shadow
- 4 ห้องนอน
- 7 ห้องน้ำ
- 587 ตร.ม.

บริษัท ลีอาร์คีเทค จำกัด
แบบบ้าน BL-18 : Moon Shadow
- 4 ห้องนอน
- 7 ห้องน้ำ
- 3 ที่จอดรถ
- 587ตร.ม.
บ้านสองชั้นสไตล์ โมเดิร์นหรูหรา ที่ออกแบบให้ตอบโจทย์ทั้งความสวยงามและฟังก์ชันการใช้งานอย่างลงตัว เหมาะสำหรับครอบครัวยุคใหม่ที่ต้องการบ้านที่สะท้อนรสนิยมและคุณภาพชีวิตที่เหนือระดับ ใช้โทนสีเข้มตัดกับลายหินและไม้ธรรมชาติ สร้างบรรยากาศที่ดูเท่และมีเอกลักษณ์ โครงสร้างเน้นความโปร่งโล่ง และเสริมความทันสมัยด้วยกระจกบานใหญ่ เชื่อมต่อพื้นที่ภายในกับเฉลียงพักผ่อนและสระว่ายน้ำได้อย่างลงตัว
ติดต่อสอบถามเพิ่มเติม
rangfun@leearchitect.co.th
025702424
59 ถนนประเสริฐมนูกิจ แขวงจรเข้บัว เขตลาดพร้าว กทม. 10230
บริษัท บิวท์ ทู บิวด์ จำกัด
แบบบ้าน BOULEVARD
- 5 ห้องนอน
- 6 ห้องน้ำ
- 743 ตร.ม.

บริษัท บิวท์ ทู บิวด์ จำกัด
แบบบ้าน BOULEVARD
- 5 ห้องนอน
- 6 ห้องน้ำ
- 4 ที่จอดรถ
- 743ตร.ม.
แบบบ้าน 2 ชั้น สไตล์โคโรเนียล (Colonial Style) รูปลักษณ์ดีไซน์ศิลปะแบบตะวันตก ชวน ให้หลงใหลในกลิ่นอายของยุโรป การดีไซน์ตัวบ้านเลือกใช้วัสดุหินทรายธรรมชาติให้ความ หรูหรา แต่แฝงไปด้วยความอบอุ่นจากโทนสีของตัวบ้านที่ให้ความนุ่นนวลช่วยเพิ่ม บรรยากาศในการอยู่อาศัยให้สมบูรณ์แบบมากยิ่งขึ้น ทั้งยังโดดเด่นตั้งแต่โถงทางเข้าหน้า บ้านทรงสูงสง่า โอ่โถง ออกแบบให้มีพื้นที่พักผ่อนสำหรับรังสรรค์ทุกความสุข หรือกิจกรรม ได้ อย่างหลากหลายตามต้องการของผู้อาศัย
ติดต่อสอบถามเพิ่มเติม
btbbuilt@gmail.com
02-721-3999
8 ซอย อ่อนนุช 46 ถนน อ่อนนุช แขวง สวนหลวง เขต สวนหลวง, Bangkok, Thailand, Bangko
บริษัท ดับบลิวเฮ้าส์ จำกัด
แบบบ้าน C012
- 3 ห้องนอน
- 4 ห้องน้ำ
- 520 ตร.ม.

บริษัท ดับบลิวเฮ้าส์ จำกัด
แบบบ้าน C012
- 3 ห้องนอน
- 4 ห้องน้ำ
- 2 ที่จอดรถ
- 520ตร.ม.
บ้านประหยัดพลังงาน การออกแบบทางสถาปัตยกรรม ให้เอื้อกับสภาพภูมิอากาศในประเทศไทยวางผังบ้านให้เป็นตัว U เพื่อต้องการให้ระหว่างบ้านมีพื้นที่สีเขียว ทุกห้องจะได้มีอากาศถ่ายเทตัวบ้านมีชานหรือระเบียงโดยรอบ เพ่ือป้องกันไม่ให้ผนังบ้านโดยแดดโดยตรง ทาให้ความร้อนถ่ายเทเข้าตัวบ้านได้น้อย บ้านจึงไม่ร้อนมาก มีการจัดวาง Function ให้เอื้อกับผู้สูงวัย โดย Space การใช้งานส่วนรวมเชื่อมต่อกันหมด ไม่ว่าจะเป็นส่วนพักผ่อน ส่วนทานอาหาร ส่วนระเบียง ส่วนโรงจอดรถ และยังมีทางลาดเข้าสู่ตัวบ้านการเลือกใช้วัสดุทดแทน เช่นไม้เทียม แทนไม้จริง
ติดต่อสอบถามเพิ่มเติม
whwhouse@yahoo.com
0-2349-7668 ถึง 72
65/6 ซอยรามอินทรา 14 แขวงท่าแร้ง เขตบางเขน กรุงเทพฯ 10230
บริษัท ซีคอน จำกัด
แบบบ้าน Casalina 585
- 4 ห้องนอน
- 6 ห้องน้ำ
- 585 ตร.ม.

บริษัท ซีคอน จำกัด
แบบบ้าน Casalina 585
- 4 ห้องนอน
- 6 ห้องน้ำ
- 0 ที่จอดรถ
- 585ตร.ม.
ออกแบบด้วยสไตล์ European ที่สง่างาม พิเศษด้วยโถงทางเข้าสูงโปร่ง รูปทรงบ้านโอบล้อมด้านหลังทำให้เกิด Back Yard ที่เชื่อมทุกมุมมองภายในบ้าน ผ่านหน้าต่างและประตูทรงสูงโดยมีรายละเอียดของ
ติดต่อสอบถามเพิ่มเติม
info@seacon.co.th
1391
107-115 ถนนสี่พระยา บางรัก กรุงเทพฯ 10500
บริษัท กริท บิลด์ จำกัด
แบบบ้าน Cayla
- 2 ห้องนอน
- 3 ห้องน้ำ
- 220 ตร.ม.

บริษัท กริท บิลด์ จำกัด
แบบบ้าน Cayla
- 2 ห้องนอน
- 3 ห้องน้ำ
- 3 ที่จอดรถ
- 220ตร.ม.
บ้านสไตล์โมเดิร์น 2 ชั้น หลังใหญ่ดูเรียบหรู สะท้อนอบอุ่น อยู่สบาย
ติดต่อสอบถามเพิ่มเติม
-
info@gritbuild.net
0933649782
โครงการคริสตัล ดีไซน์ เซ็นเตอร์ ห้องเลขที่ L4-207 ชั้น 2 อาคาร L4 (4L4-207,209) 1448/19 ซอยลาดพร้าว 87 (จันทราสุข) แขวงคลองจั่น เขตบางกะปิ กรุงเทพมหานคร 10240
บริษัท กริท บิลด์ จำกัด
แบบบ้าน Centris
- 5 ห้องนอน
- 6 ห้องน้ำ
- 486 ตร.ม.

บริษัท กริท บิลด์ จำกัด
แบบบ้าน Centris
- 5 ห้องนอน
- 6 ห้องน้ำ
- 4 ที่จอดรถ
- 486ตร.ม.
บ้านสไตล์ โมเดิร์นลักชัวรี่ สวยเนียบ หรูทุกองศา ตอบโจทย์การใช้ชีวิต
ติดต่อสอบถามเพิ่มเติม
-
info@gritbuild.net
0933649782
โครงการคริสตัล ดีไซน์ เซ็นเตอร์ ห้องเลขที่ L4-207 ชั้น 2 อาคาร L4 (4L4-207,209) 1448/19 ซอยลาดพร้าว 87 (จันทราสุข) แขวงคลองจั่น เขตบางกะปิ กรุงเทพมหานคร 10240
บริษัท ลีอาร์คีเทค จำกัด
แบบบ้าน CO-12 : Oaklands
- 4 ห้องนอน
- 6 ห้องน้ำ
- 455 ตร.ม.

บริษัท ลีอาร์คีเทค จำกัด
แบบบ้าน CO-12 : Oaklands
- 4 ห้องนอน
- 6 ห้องน้ำ
- 0 ที่จอดรถ
- 455ตร.ม.
บ้าน 2 ชั้น สไตล์ Modern-Contemporary ดูโอ่โถงทันสมัย แฝงกลิ่นอายความอบอุ่น มีการเล่นจังหวะการออกแบบ Solid & Void ที่ลงตัว
ติดต่อสอบถามเพิ่มเติม
rangfun@leearchitect.co.th
0-2570-2424
59 ถนนประเสริฐมนูกิจ แขวงจรเข้บัว เขตลาดพร้าว กรุงเทพฯ 10230
บริษัท กริท บิลด์ จำกัด
แบบบ้าน Colby
- 5 ห้องนอน
- 4 ห้องน้ำ
- 291 ตร.ม.

บริษัท กริท บิลด์ จำกัด
แบบบ้าน Colby
- 5 ห้องนอน
- 4 ห้องน้ำ
- 2 ที่จอดรถ
- 291ตร.ม.
บ้านทรงสูงสไตล์โมเดิร์น สะท้อนความเรียบหรู ดูโปร่งสบาย
ติดต่อสอบถามเพิ่มเติม
-
info@gritbuild.net
0933649782
โครงการคริสตัล ดีไซน์ เซ็นเตอร์ ห้องเลขที่ L4-207 ชั้น 2 อาคาร L4 (4L4-207,209) 1448/19 ซอยลาดพร้าว 87 (จันทราสุข) แขวงคลองจั่น เขตบางกะปิ กรุงเทพมหานคร 10240
บริษัท โฟร์พัฒนา จำกัด
แบบบ้าน E-204
- 4 ห้องนอน
- 5 ห้องน้ำ
- 1066 ตร.ม.

บริษัท โฟร์พัฒนา จำกัด
แบบบ้าน E-204
- 4 ห้องนอน
- 5 ห้องน้ำ
- 4 ที่จอดรถ
- 1066ตร.ม.
บ้านหลังใหญ่ มีความสวยงามชัดทุกมุมมองในสไตล์โมเดิร์น ทันสมัย จัดสรรแบ่งพื้นที่ภายในให้รู้สึกถึงการพักผ่อนอย่างแท้จริง เปิดรับ ธรรมชาติทุกมุมบ้านได้อย่างโปร่งสบายพื้นที่ใช้สอย 1,055 ตารางเมตร มีห้องนอนล่าง ให้ความสุขสบาย เป็นบ้านที่เหมาะกับคนรุ่นใหม่ ตอบรับการ ใช้ชีวิตอย่างมีสไตล์ แสดงออกถึงตัวตนอย่างชัดเจน
ติดต่อสอบถามเพิ่มเติม
fourpattana@fourpattana.com
02-940-3789
เลขที่ 2 ซอยลาดปลาเค้า10 แขวงลาดพร้าว เขตลาดพร้าว กรุงเทพฯ 10230
บริษัท มีนบุรีรักสร้างบ้าน จำกัด
แบบบ้าน Eco-1
- 3 ห้องนอน
- 2 ห้องน้ำ
- 141 ตร.ม.

บริษัท มีนบุรีรักสร้างบ้าน จำกัด
แบบบ้าน Eco-1
- 3 ห้องนอน
- 2 ห้องน้ำ
- 1 ที่จอดรถ
- 141ตร.ม.
บ้านหลังเล็ก สร้างบนที่ดินขนาดเล็ก ในราคาที่เหมาะสมกับพื้นที่ใช้สอยที่ครบครัน
ติดต่อสอบถามเพิ่มเติม
-
Meanbureruk
Hug.mean38@gmail.com
034-271-203
ถนน เทศา, Nakhon Pathom, Thailand, Nakhon Pathom
บริษัท มีนบุรีรักสร้างบ้าน จำกัด
แบบบ้าน Eco-4
- 2 ห้องนอน
- 2 ห้องน้ำ
- 184 ตร.ม.

บริษัท มีนบุรีรักสร้างบ้าน จำกัด
แบบบ้าน Eco-4
- 2 ห้องนอน
- 2 ห้องน้ำ
- 1 ที่จอดรถ
- 184ตร.ม.
องค์ประกอบพื้นที่ใช้สอยสมบูรณ์แบบ รูปทรงสวยงาม คุ้มค่า คุ้มราคาทุกตารางเมตร
ติดต่อสอบถามเพิ่มเติม
-
Meanbureruk
Hug.mean38@gmail.com
034-271-203
ถนน เทศา, Nakhon Pathom, Thailand, Nakhon Pathom
บริษัท มีนบุรีรักสร้างบ้าน จำกัด
แบบบ้าน Elder House-1
- 4 ห้องนอน
- 3 ห้องน้ำ
- 175 ตร.ม.

บริษัท มีนบุรีรักสร้างบ้าน จำกัด
แบบบ้าน Elder House-1
- 4 ห้องนอน
- 3 ห้องน้ำ
- 1 ที่จอดรถ
- 175ตร.ม.
ด้วยลักษณะของบ้านที่เป็น Thai Colonial Style สร้างความรู้สึกผ่อนคลาย อบอุ่น เหมาะสำหรับผู้ที่ต้องการพักผ่อนหลังจากเกษียรงาน หรือผู้สูงอายุ มีทางลาดสำหรับรถเข็น ที่ถูกซ่อนไว้ ติดกับที่จอดรถ มีห้องนอนใหญ่สำหรับผู้สูงอายุ และห้องนอนเล็ก 2 ห้องนอนสำหรับลูกหลานที่มาเยี่ยม
ติดต่อสอบถามเพิ่มเติม
-
Meanbureruk
Hug.mean38@gmail.com
034-271-203
ถนน เทศา, Nakhon Pathom, Thailand, Nakhon Pathom
บริษัท บิวท์ ทู บิวด์ จำกัด
แบบบ้าน EMPEROR
- 5 ห้องนอน
- 6 ห้องน้ำ
- 641 ตร.ม.

บริษัท บิวท์ ทู บิวด์ จำกัด
แบบบ้าน EMPEROR
- 5 ห้องนอน
- 6 ห้องน้ำ
- 4 ที่จอดรถ
- 641ตร.ม.
แบบบ้าน 2 ชั้น รูปลักษณ์ทันสมัยสไตล์โมเดิรน์ ที่รังสรรค์ขึ้นเพื่อการใช้ชีวิตอย่างโดดเด่นมี สไตล์ หรูหรา พร้อมเติมเต็มความอบอุ่นของการอยู่อาศัยอย่างพิถีพิถันในการกำหนดฟังก์ชั่น การใช้งานที่คุ้มค่าในทุกพื้นที่ และยังสรรจัดทุกพื้นที่ไว้อย่างเป้นสัดส่วน เพื่อสอดรับกับ กับไลฟ์สไตล์ในยุคปัจจุบันได้อย่างสมบูรณ์แบบ นับเป็นการเติมเต็มความสุขในการอยู่ อาศัยได้อย่างหลากหลายตามต้องการ
ติดต่อสอบถามเพิ่มเติม
btbbuilt@gmail.com
02-721-3999
8 ซอย อ่อนนุช 46 ถนน อ่อนนุช แขวง สวนหลวง เขต สวนหลวง, Bangkok, Thailand, Bangko
บริษัท บิวท์ ทู บิวด์ จำกัด
แบบบ้าน Eternal
- 6 ห้องนอน
- 8 ห้องน้ำ
- 1253 ตร.ม.

บริษัท บิวท์ ทู บิวด์ จำกัด
แบบบ้าน Eternal
- 6 ห้องนอน
- 8 ห้องน้ำ
- 6 ที่จอดรถ
- 1253ตร.ม.
สไตล์ Modern ดีไซน์เรียบหรู ทันสมัย ผสมผสานกับกลิ่นอายความเป็น Tropical เอกลักษณ์ของบ้าน คือ การสร้างสเปซที่โปร่งขนาดใหญ่ เน้นความเรียบง่ายทันสมัย และการใช้ประโยชน์จากธรรมชาติ โดยเฉพาะแสงเข้ากับทุกไลฟ์สไตล์ได้อย่างหลากหลายมุมมองและหลากหลายมิติ ออกแบบอย่างพิถีพิถันเพื่อสร้างสรรค์พื้นที่ใช้สอยภายในบ้านให้มีทั้งความเรียบง่าย ไม่ซับซ้อน แต่ดูหลากหลายในด้านของประโยชน์ใช้สอยที่จัดสรรเอาไว้อย่างลงตัว พร้อมไฮไลท์โดดเด่นในส่วนของพื้นที่สำหรับโซนสระว่ายน้ำ ทั้งยังมีเฉลียงรองรับสำหรับ Party ของสมาชิกภายในบ้าน หรือผู้ที่มาเยี่ยมเยียนได้อย่างหลากหลาย
ติดต่อสอบถามเพิ่มเติม
btbbuilt@gmail.com
02-721-3999
8 ซอย อ่อนนุช 46 ถนน อ่อนนุช แขวง สวนหลวง เขต สวนหลวง, Bangkok, Thailand, Bangko
บริษัท ซีคอน จำกัด
แบบบ้าน European 606
- 4 ห้องนอน
- 5 ห้องน้ำ
- 606 ตร.ม.

บริษัท ซีคอน จำกัด
แบบบ้าน European 606
- 4 ห้องนอน
- 5 ห้องน้ำ
- 3 ที่จอดรถ
- 606ตร.ม.
เป็นบ้าน style Europe 3 ชั้น ที่ดูเรียบหรู พื้นที่ใช้สอยชั้นล่างโอ่โถง โดยเฉพาะพื้นที่พักผ่อนและทานอาหาร ที่มีการใช้ Double Volume ทําให้ space มี ความกว้างขวางเป็นพิเศษ Court ด้านข้างเพื่อเข้าถึงธรรมชาติให้แก่คนในบ้าน ห้องนอนทุกห้องกว้างใหญ่เป็นพิศษ พร้อมห้องน้าในตัวทุกห้อง
ติดต่อสอบถามเพิ่มเติม
info@seacon.co.th
1391
107-115 ถนนสี่พระยา บางรัก กรุงเทพฯ 10500
บริษัท แลนดี้ โฮม (ประเทศไทย) จำกัด
แบบบ้าน Evergreen
- 4 ห้องนอน
- 3 ห้องน้ำ
- 234 ตร.ม.
บริษัท แลนดี้ โฮม (ประเทศไทย) จำกัด
แบบบ้าน Evergreen
- 4 ห้องนอน
- 3 ห้องน้ำ
- 2 ที่จอดรถ
- 234ตร.ม.
บ้านสวย Modern Minimal Tropical Style สำหรับครอบครัวคน New Gen ที่ชื่นชอบแบบบ้านที่เต็มไปด้วยกลิ่นอายสถาปัตยกรรมเขตร้อน อบอุ่น อยู่สบาย จากการออกแบบที่ใส่ใจทุกรายละเอียด ทำให้ได้บ้านที่โปร่งโล่ง หรูหรา เหมาะสำหรับการชมวิวภายนอก
ติดต่อสอบถามเพิ่มเติม
cr@landymail.com
02-938-3456-7
90/2 ถนนราชพฤกษ์ แขวงบางระมาด เขตตลิ่งชัน กรุงเทพมหานคร 10170
บริษัท ดิ เอ็มเพอเร่อร์ เฮ้าส์ จำกัด
แบบบ้าน Explicit
- 5 ห้องนอน
- 7 ห้องน้ำ
- 670 ตร.ม.

บริษัท ดิ เอ็มเพอเร่อร์ เฮ้าส์ จำกัด
แบบบ้าน Explicit
- 5 ห้องนอน
- 7 ห้องน้ำ
- 2 ที่จอดรถ
- 670ตร.ม.
ด้วยการผสมผสานระหว่างความร่วมสมัยกับงานคลาสสิคที่สง่างามอย่างลงตัวทำให้บ้านหลังนี้มีความพิเศษกว่าใคร โดยเฉพาะโถงทางเข้าที่เปิดโล่งและห้องรับแขกรูปทรงกลม ที่สร้างความน่าสนใจให้กับผู้มาเยือนได้เป็นอย่างดี ห้องนอนชั้นล่าง 2 ห้องที่สามารถปรับเปลี่ยนห้องใดห้องหนึ่งเป็นห้องทำงานเล็กๆ ได้อย่างเพียงพอ ในส่วนของห้องนอนใหญ่มีการจัดพื้นที่สำหรับพักผ่อนและส่วนนอน ซึ่งออกแบบให้มีระดับความสูงของฝ้าเพดานให้สูงโปร่งโล่ง นอกจากนั้นยังเพิ่มจุดเด่นด้วยระเบียงโค้งขนาดใหญ่เป็นส่วนหนึ่งของมุมพักผ่อนพิเศษในบ้าน
ติดต่อสอบถามเพิ่มเติม
customerservice@emperorhouse.com
02-970-3080 โทรสาร 02-970-3228, 02-970-4362
288/77 Phaholyotin Rd.,Anusawaree, Bangkhen, Bangkok, Thailand, Bangkok
บริษัท ดิ เอ็มเพอเร่อร์ เฮ้าส์ จำกัด
แบบบ้าน Extoller
- 4 ห้องนอน
- 5 ห้องน้ำ
- 670 ตร.ม.

บริษัท ดิ เอ็มเพอเร่อร์ เฮ้าส์ จำกัด
แบบบ้าน Extoller
- 4 ห้องนอน
- 5 ห้องน้ำ
- 2 ที่จอดรถ
- 670ตร.ม.
ความสง่างามของสถาปัตยกรรมคลาสสิค ถูกนำมาผสานกับความร่วมสมัยทำให้เกิดแบบบ้านที่สวยงาม ดูภูมิฐาน เน้นรายละเอียดของงานบัวปูนปั้นโดยรอบอาคาร รวมถึงโดมที่สวยงามทำให้บ้านหลังนี้พิเศษแตกต่างจากบ้านโดยทั่วไป บ่งบอกถึงความสำเร็จและความภาคภูมิใจของผู้เป็นเจ้าของ ได้เป็นอย่างดี
ติดต่อสอบถามเพิ่มเติม
customerservice@emperorhouse.com
02-970-3080 โทรสาร 02-970-3228, 02-970-4362
288/77 Phaholyotin Rd.,Anusawaree, Bangkhen, Bangkok, Thailand, Bangkok
บริษัท โฟร์พัฒนา จำกัด
แบบบ้าน G-224
- 4 ห้องนอน
- 4 ห้องน้ำ
- 732 ตร.ม.

บริษัท โฟร์พัฒนา จำกัด
แบบบ้าน G-224
- 4 ห้องนอน
- 4 ห้องน้ำ
- 3 ที่จอดรถ
- 732ตร.ม.
บ้านสไตล์โมเดิร์นคอนเทมโพรารี่ ดีไซน์ที่เรียบง่าย ความสวยงามที่ผสาน เท่ และ หรู บานกระจกประตูหน้าต่าง บานใหญ่ ทำให้บ้านทันสมัย จำนวน 4 ห้องนอน ฟังก์ชั่นภายใน แบ่งสัดส่วนชัดเจน เพื่อความสุขสบายในการอยู่อาศัย
ติดต่อสอบถามเพิ่มเติม
fourpattana@fourpattana.com
02-940-3789
เลขที่ 2 ซอยลาดปลาเค้า10 แขวงลาดพร้าว เขตลาดพร้าว กรุงเทพฯ 10230
บริษัท โฟร์พัฒนา จำกัด
แบบบ้าน G-307
- 6 ห้องนอน
- 3 ห้องน้ำ
- 533 ตร.ม.

บริษัท โฟร์พัฒนา จำกัด
แบบบ้าน G-307
- 6 ห้องนอน
- 3 ห้องน้ำ
- 3 ที่จอดรถ
- 533ตร.ม.
บ้าน 3 ชั้น อยู่สบายด้วยฟังก์ชั่นภายในที่ลงตัว ตอบโจทย์การใช้งานและ รองรับการทำกิจกรรมที่หลากหลาย เหมาะกับการปลูกสร้างในเมืองที่ที่ดินมีขนาดจำกัด รูปลักษณ์ภายนอกทันสมัย เรียบง่าย เสริมความโดดเด่นด้วยระแนงบังตาที่เป็นทั้งวัสดุตกแต่ง ช่วยอำพรางสายตาจากภายนอก และกันแดดได้ในเวลาเดียวกัน
ติดต่อสอบถามเพิ่มเติม
fourpattana@fourpattana.com
02-940-3789
เลขที่ 2 ซอยลาดปลาเค้า10 แขวงลาดพร้าว เขตลาดพร้าว กรุงเทพฯ 10230
บริษัท บิวท์ ทู บิวด์ จำกัด
แบบบ้าน GLORY
- 6 ห้องนอน
- 6 ห้องน้ำ
- 692 ตร.ม.

บริษัท บิวท์ ทู บิวด์ จำกัด
แบบบ้าน GLORY
- 6 ห้องนอน
- 6 ห้องน้ำ
- 4 ที่จอดรถ
- 692ตร.ม.
บ้าน style modern loft ที่ผสมผสานความเรียบง่ายเเละทันสมัยเข้ากับความดิบของปูนเปลือยได้อย่างลงตัว เเละฟาซาดสีขาวที่ดูเรียบง่ายเเต่ยังคงความเป็นส่วนตัวให้กับผู้อยู่อาศัย บ้านหลังนี้ถูกออกแบบมาให้มีฟังก์ชั่นครบถ้วนเหมาะกับคนรุ่นใหม่ที่ชอบความเป็นส่วนตัว เพราะมีห้องนอนที่มีห้องน้ำในตัวอยู่ถึง 5 ห้องอีกทั้งยังมีห้องพระเเละส่วนพักผ่อนที่อยู่ชั้นบน มีโถงที่สามารถเชื่อมออกมาสู่ระเบียงด้านนอก ที่มีขนาดใหญ่ สามารถเปิดรับบรรยากาศธรรมชาติได้ บริเวณชั้นล่างมีโถงขนาดใหญ่้เปิดโล่ง ที่ทำหน้าที่เชื่อมฟังก์ชั่นใช้สอยภายในเข้าด้วยกัน เเละใช้เป็นพื้นที่เชื่อมระหว่างภายในเเละภายนอก ที่มีเฉลียงขนาดใหญ่ตอบรับกับกิจกรรม outdoor เพื่อการมีปฏิสัมพันธ์กันในครอบครัว จุดเด่นพิเศษอีกหนึ่งอย่างของบ้านหลังนี้คือ สามารถสร้างได้ทั้งในที่ดินหน้ากว้างเเละหน้าแคบเพราะถูกออกแบบให้สวยงามแบบรอบด้าน
ติดต่อสอบถามเพิ่มเติม
btbbuilt@gmail.com
02-721-3999
8 ซอย อ่อนนุช 46 ถนน อ่อนนุช แขวง สวนหลวง เขต สวนหลวง, Bangkok, Thailand, Bangko
บริษัท แลนดี้ โฮม (ประเทศไทย) จำกัด
แบบบ้าน Grand Royal 03
- 6 ห้องนอน
- 4 ห้องน้ำ
- 347 ตร.ม.

บริษัท แลนดี้ โฮม (ประเทศไทย) จำกัด
แบบบ้าน Grand Royal 03
- 6 ห้องนอน
- 4 ห้องน้ำ
- 2 ที่จอดรถ
- 347ตร.ม.
แบบบ้านสำหรับใครที่ชอบความหรูหรา ใหญ่โต Grand Royal 03 คือแบบบ้านที่จะตอบโจทย์ทุกความต้องการของคุณ ซึ่งแบบบ้านเหลังนี้หมาะสำหรับครอบครัวขนาดใหญ่ เพราะด้วยการออกแบบที่โดดเด่น ให้มีพื้นที่ถึง 3 ชั้น โดยเพดานของชั้น 1 และ 2 มีการออกแบบให้เป็น Double space ที่สามารถทะลุผ่านถึงกันได้ ทำให้ตัวบ้านดูสูง โปร่ง และตกแต่งแบบเรียบหรูในโทนสีครีม ที่ตัดด้วยบัวปูนปั้นสีขาว ให้มีกลิ่นอายแบบผู้ดีอังกฤษ
ติดต่อสอบถามเพิ่มเติม
cr@landymail.com
02-938-3456-7
90/2 ถนนราชพฤกษ์ แขวงบางระมาด เขตตลิ่งชัน กรุงเทพมหานคร 10170
บริษัท ซีคอน จำกัด
แบบบ้าน Greenery 970
- 3 ห้องนอน
- 4 ห้องน้ำ
- 970 ตร.ม.

บริษัท ซีคอน จำกัด
แบบบ้าน Greenery 970
- 3 ห้องนอน
- 4 ห้องน้ำ
- 5 ที่จอดรถ
- 970ตร.ม.
เป็นบ้าน 2 ชั้น style อังกฤษ ดูหรูหราการตกแต่งด้วยบัวและวัสดุกรุผนัง ทําให้บ้านดูโดดเด่น เน้นความเป็นตะวันตก พื้นที่รับแขกโล่งโปร่งต่อเนื่องไปถึงพื้นที่ทานอาหารหลังบ้าน ทําให้ดูกว้างขวาง ห้องนอนทุกห้องมาพร้อมห้องน้ำในตัว พื้นที่พักผ่อนชั้นบน กว้างขวาง เชื่อมต่อกับมุก (ระเบียง) นั่งเล่นภายนอก ทําให้บ้านดูน่าสนใจมากขึ้น
ติดต่อสอบถามเพิ่มเติม
info@seacon.co.th
1391
107-115 ถนนสี่พระยา บางรัก กรุงเทพฯ 10500
บริษัท บิวท์ ทู บิวด์ จำกัด
แบบบ้าน Harmony
- 7 ห้องนอน
- 7 ห้องน้ำ
- 727 ตร.ม.

บริษัท บิวท์ ทู บิวด์ จำกัด
แบบบ้าน Harmony
- 7 ห้องนอน
- 7 ห้องน้ำ
- 3 ที่จอดรถ
- 727ตร.ม.
New Design บ้าน HARMONY By Built To Build สไตล์ Modern Retro รูปทรงดีไซน์สวย ทันสมัย สำหรับที่ดิน “หน้ากว้าง” ไฮไลท์ของตัวบ้านเน้นการตกแต่งด้วยไฟเบอร์ซีเมนต์ลายไม้ ผนังกรุไม้และกรุกระเบื้อง Kenzai ลายหินก่ออิฐ ซึ่งเป็นการเพิ่มเสน่ห์และทำให้บ้านหลังนี้มีมิติในการอยู่อาศัยได้หลายมุมมองทั้งความอบอุ่นและความคลาสิก ทั้งยังดูมั่นคงและแข็งแรง สำหรับฟังก์ชันภายในออกแบบแบบให้มีความยืดหยุ่น สมความตั้งใจของผู้อยู่อาศัย ทั้งยังสามารถปรับเปลี่ยนให้รองรับได้ทุกความต้องการ
ติดต่อสอบถามเพิ่มเติม
btbbuilt@gmail.com
02-721-3999
8 ซอย อ่อนนุช 46 ถนน อ่อนนุช แขวง สวนหลวง เขต สวนหลวง, Bangkok, Thailand, Bangko
บริษัท ริชชี่ เฮ้าส์ จำกัด
แบบบ้าน HM-03
- 3 ห้องนอน
- 4 ห้องน้ำ
- 555 ตร.ม.
บริษัท ริชชี่ เฮ้าส์ จำกัด
แบบบ้าน HM-03
- 3 ห้องนอน
- 4 ห้องน้ำ
- 3 ที่จอดรถ
- 555ตร.ม.
แบบบ้านสไตล์ Modern Luxury ส่วนประกอบของบ้าน ได้แก่ บ้าน 2 ชั้น 3 ห้องนอน 4 ห้องน้ำ จอดรถ 3 คัน สระว่ายน้ำ และส่วนบริการ
ติดต่อสอบถามเพิ่มเติม
info@richiehouses.com
0-2673-7061-3
79/338 ถ.สาธุประดิษฐ์ แขวงช่องนนทรี, Yan Nawa, Thailand, Bangkok
บริษัท ริชชี่ เฮ้าส์ จำกัด
แบบบ้าน HM-04
- 2 ห้องนอน
- 3 ห้องน้ำ
- 370 ตร.ม.

บริษัท ริชชี่ เฮ้าส์ จำกัด
แบบบ้าน HM-04
- 2 ห้องนอน
- 3 ห้องน้ำ
- 2 ที่จอดรถ
- 370ตร.ม.
แบบบ้านสไตล์ Modern Luxury ส่วนประกอบของบ้าน ได้แก่ บ้าน 2 ชั้น 2 ห้องนอน 3 ห้องน้ำ จอดรถ 2 คัน สระว่ายน้ำ และส่วนบริการ
ติดต่อสอบถามเพิ่มเติม
info@richiehouses.com
0-2673-7061-3
79/338 ถ.สาธุประดิษฐ์ แขวงช่องนนทรี, Yan Nawa, Thailand, Bangkok
บริษัท ซีคอน จำกัด
แบบบ้าน Horizon 1547
- 4 ห้องนอน
- 4 ห้องน้ำ
- 1547 ตร.ม.

บริษัท ซีคอน จำกัด
แบบบ้าน Horizon 1547
- 4 ห้องนอน
- 4 ห้องน้ำ
- 4 ที่จอดรถ
- 1547ตร.ม.
บ้านสไตล์ Modern ที่ถูกออกแบบด้วยความเรียบง่าย ทันสมัย ภายในชั้นล่างจัดสรรพื้นที่ใช้สอยเป็นสัดส่วน และต่อเนื่องยาวตลอดเพื่อความโปร่ง โล่ง สบาย ชั้นบนประกอบด้วย 3ห้องนอน โดยห้องนอน Masterนั้นกว้างขวางเป็นพิเศษ และมีห้องพักผ่อนเพื่อกิจกรรมของครอบครัวอีกด้วย
ติดต่อสอบถามเพิ่มเติม
info@seacon.co.th
1391
107-115 ถนนสี่พระยา บางรัก กรุงเทพฯ 10500
บริษัท โฮมสแควร์ ดีเวลอปเมนท์ จำกัด
แบบบ้าน HSD – 06 Modern Cube
- 3 ห้องนอน
- 3 ห้องน้ำ
- 280 ตร.ม.

บริษัท โฮมสแควร์ ดีเวลอปเมนท์ จำกัด
แบบบ้าน HSD – 06 Modern Cube
- 3 ห้องนอน
- 3 ห้องน้ำ
- 2 ที่จอดรถ
- 280ตร.ม.
บ้านสไตล์โมเดิร์น 2 ชั้น ตอบสนองไลฟ์สไตล์ชีวิตสมัยใหม่ ด้วยส่วนพักผ่อนเชื่อมต่อกับส่วนรับประทานอาหารเพื่อให้ได้พื้นที่เปิดโล่งขนาดใหญ่สามารถที่จะปรับเปลี่ยนการใช้งานพื้นที่ได้อเนกประสงค์ยิ่งขึ้น ภายในให้ความรู้สึกโปร่งสบายด้วยกระจกบานสูงและเพดานสูง พร้อมด้วยการจัดสรรพื้นที่สำหรับห้องนอนขนาดใหญ่ 2 ห้อง และห้องพักแขกชั้นล่าง 1 ห้อง
ติดต่อสอบถามเพิ่มเติม
contact@homesquare.co.th
025332622-3 , 02994446
2/69 ถนนลำลูกกา ตำบลลาดสวาย อำเภอลำลูกกา, Lam Luk Ka, Thailand, Pathum Thani
บริษัท โฮมสแควร์ ดีเวลอปเมนท์ จำกัด
แบบบ้าน HSD – 07 Mini Cube
- 2 ห้องนอน
- 3 ห้องน้ำ
- 215 ตร.ม.

บริษัท โฮมสแควร์ ดีเวลอปเมนท์ จำกัด
แบบบ้าน HSD – 07 Mini Cube
- 2 ห้องนอน
- 3 ห้องน้ำ
- 2 ที่จอดรถ
- 215ตร.ม.
แบบบ้านหน้าแคบ 2 ชั้น สไตล์โมเดิร์น เน้นการใช้สอยพื้นที่อย่างลงตัวเพื่อให้เกิดประโยชน์สูงสุด ตกแต่งด้วยไม้สำเร็จรูป และคอนกรีตเปลือยเหมาะสำหรับครอบครัวสมัยใหม่ที่ต้องการบ้านขนาดกลางที่ครบครันและทันสมัย2
ติดต่อสอบถามเพิ่มเติม
contact@homesquare.co.th
025332622-3 , 02994446
2/69 ถนนลำลูกกา ตำบลลาดสวาย อำเภอลำลูกกา, Lam Luk Ka, Thailand, Pathum Thani
บริษัท โฮมสแควร์ ดีเวลอปเมนท์ จำกัด
แบบบ้าน HSD – 08 Classy Modern
- 3 ห้องนอน
- 4 ห้องน้ำ
- 387 ตร.ม.

บริษัท โฮมสแควร์ ดีเวลอปเมนท์ จำกัด
แบบบ้าน HSD – 08 Classy Modern
- 3 ห้องนอน
- 4 ห้องน้ำ
- 3 ที่จอดรถ
- 387ตร.ม.
บ้านออกแบบสไตล์โมเดิร์น ให้ความรู้สึกโปร่งด้วยกระจกบานสูง ตกแต่งด้วยหิน และโทนสีเข้ม ทำให้บ้านดูทันสมัยอย่างมีระดับ การจัดสรรพื้นที่ภายในที่เน้นการอยู่สบายๆไม่อึดอัดจนเกินไป มี 3 ห้องนอนโดยมีห้องน้ำในตัวทุกห้องและมีห้องพักผ่อนบนชั้น 2 ขนาดใหญ่ เหมาะกับผู้อยู่ที่ต้องการบ้านสไตล์เรียบง่ายอยู่สบาย
ติดต่อสอบถามเพิ่มเติม
contact@homesquare.co.th
025332622-3 , 02994446
2/69 ถนนลำลูกกา ตำบลลาดสวาย อำเภอลำลูกกา, Lam Luk Ka, Thailand, Pathum Thani
บริษัท โฮมสแควร์ ดีเวลอปเมนท์ จำกัด
แบบบ้าน HSD – 09 Cozy
- 5 ห้องนอน
- 6 ห้องน้ำ
- 193 ตร.ม.

บริษัท โฮมสแควร์ ดีเวลอปเมนท์ จำกัด
แบบบ้าน HSD – 09 Cozy
- 5 ห้องนอน
- 6 ห้องน้ำ
- 2 ที่จอดรถ
- 193ตร.ม.
แบบบ้านหน้ากว้างสไตล์ทรอปิคอลโมเดิร์น เน้นความเรียบง่ายผสมผสานกับความทันสมัย ตกแต่งด้วยไม้สำเร็จรูปให้บรรยากาศอบอุ่น พร้อมด้วยการจัดพื้นที่ครบครันถึง 5 ห้องนอน โดยที่มีห้องนอนชั้นล่างสำหรับรองรับผู้สูงอายุในอนาคต เหมาะสำหรับครอบครัวขนาดใหญ่ ที่ต้องการให้สมาชิกในบ้านอยู่อาศัยร่วมกันในบรรยากาศอบอุ่นและการอยู่สบายของคนในครอบครัว
ติดต่อสอบถามเพิ่มเติม
contact@homesquare.co.th
025332622-3 , 02994446
2/69 ถนนลำลูกกา ตำบลลาดสวาย อำเภอลำลูกกา, Lam Luk Ka, Thailand, Pathum Thani
บริษัท โฮมสแควร์ ดีเวลอปเมนท์ จำกัด
แบบบ้าน HSD – 24 The Nest
- 6 ห้องนอน
- 5 ห้องน้ำ
- 322 ตร.ม.

บริษัท โฮมสแควร์ ดีเวลอปเมนท์ จำกัด
แบบบ้าน HSD – 24 The Nest
- 6 ห้องนอน
- 5 ห้องน้ำ
- 2 ที่จอดรถ
- 322ตร.ม.
แบบบ้านที่มีรูปลักษณ์โมเดิร์น เรียบง่าย เหมาะกับผู้อาศัยที่มี Lifestyle ยุคใหม่ทันสมัย มีการใส่ลูกเล่นในการออกแบบ Texture & Line ของธรรมชาติลงไป เพื่อสร้างความน่าสนใจและลดทอนความเป็นโมเดิร์นลงให้กลมกลืน มี Function เพียงพอต่อการใช้สอยสำหรับครอบครัวขนาดใหญ่ หรือจะปรับเปลี่ยนเป็น Home office ก็ยังได้
ติดต่อสอบถามเพิ่มเติม
contact@homesquare.co.th
025332622-3 , 02994446
2/69 ถนนลำลูกกา ตำบลลาดสวาย อำเภอลำลูกกา, Lam Luk Ka, Thailand, Pathum Thani
บริษัท โฮมสแควร์ ดีเวลอปเมนท์ จำกัด
แบบบ้าน HSD – 25 Urbanwood
- 6 ห้องนอน
- 4 ห้องน้ำ
- 320 ตร.ม.

บริษัท โฮมสแควร์ ดีเวลอปเมนท์ จำกัด
แบบบ้าน HSD – 25 Urbanwood
- 6 ห้องนอน
- 4 ห้องน้ำ
- 2 ที่จอดรถ
- 320ตร.ม.
แบบบ้านที่มีรูปลักษณ์โมเดิร์น เรียบง่าย เหมาะกับผู้อาศัยที่มี Lifestyle ยุคใหม่ทันสมัย มีการใส่ลูกเล่นในการออกแบบ Texture & Line ของธรรมชาติลงไป เพื่อสร้างความน่าสนใจและลดทอนความเป็นโมเดิร์นลงให้กลมกลืน มี Function เพียงพอต่อการใช้สอย หรือจะปรับเปลี่ยนเป็น Home office ก็ยังได้
ติดต่อสอบถามเพิ่มเติม
contact@homesquare.co.th
025332622-3 , 02994446
2/69 ถนนลำลูกกา ตำบลลาดสวาย อำเภอลำลูกกา, Lam Luk Ka, Thailand, Pathum Thani



