ที่สร้างความประทับใจไม่รู้ลืม
จากแรงบันดาลใจแห่งสถาปัตยกรรมยุคทอง สู่บ้านที่สะท้อนถึงรสนิยมอันเป็นเอกลักษณ์ของคุณ
บริษัท ซีคอน จำกัด
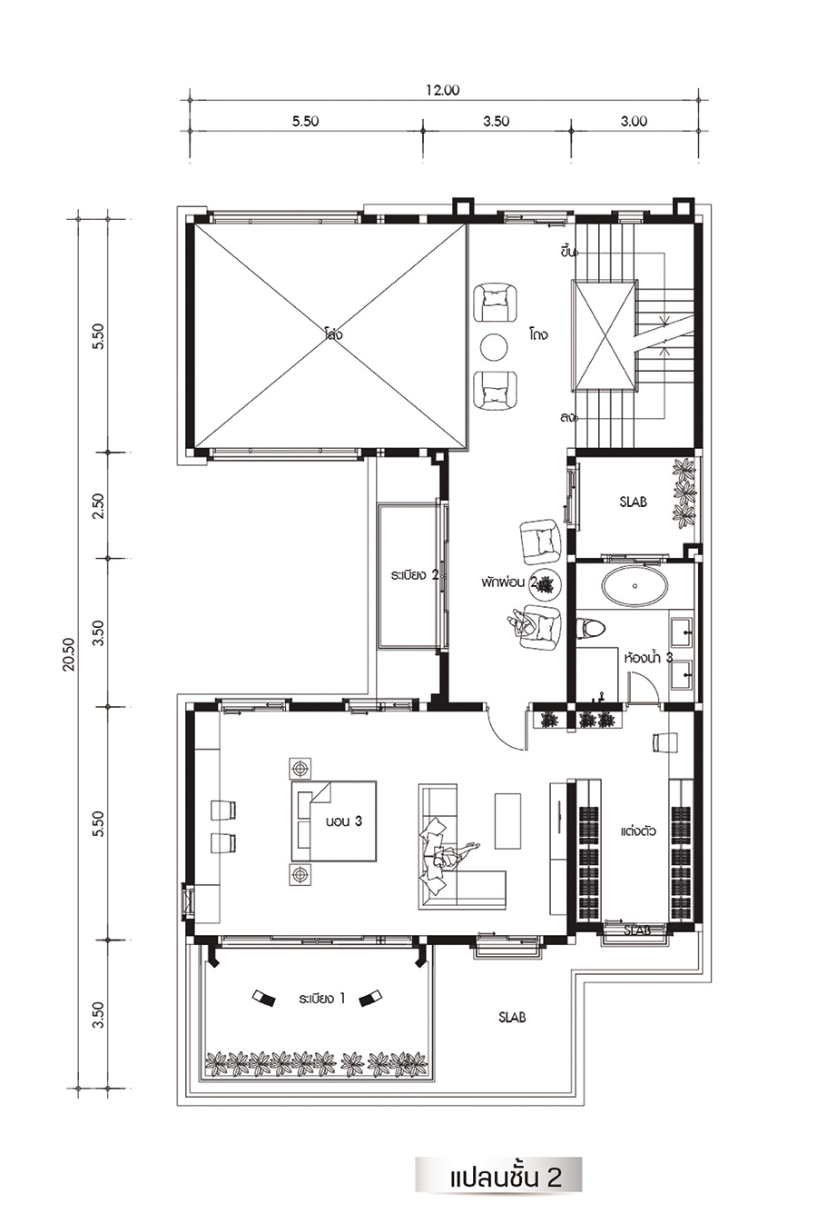
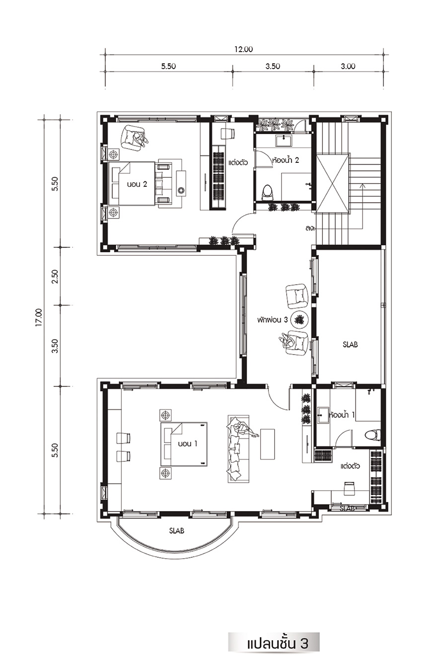
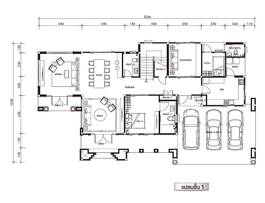
แบบบ้าน Thames 777
- 5 ห้องนอน
- 4 ห้องน้ำ
- 777 ตร.ม.
บริษัท ซีคอน จำกัด
แบบบ้าน Thames 777
- 5 ห้องนอน
- 4 ห้องน้ำ
- 777ตร.ม.
บ้าน Style อังกฤษ ที่มีความโดดเด่นของหลังคา อันเป็นเอกลักษณ์ของบ้านสไตล์นี้ หลังคาสูงช่วยให้มี Air Gap ระบายความร้อนได้ดี การตกแต่ง และการใช้หน้าต่างทีสูง ทำให้บ้านดูโอ่อ่า ห้องรับแขกที่กว้าง และสูง เป็นจุดเด่นให้บ้านหลังนี้มีความน่าสนใจ พร้อมด้วยหน้าต่างรอบห้อง มี Court ด้านข้างที่เหมาะกับการทำสระว่ายน้ำ หรือสวนสวยงาม เพิ่มการเข้าถึงธรรมชาติให้แก่คนในบ้าน ห้อง Master Bedroom มีขนาดกว้างใหญ่เป็นพิเศษ โดยแบ่งสัดส่วนการใช้งานภายในห้องได้อย่างลงตัว
ติดต่อสอบถามเพิ่มเติม
info@seacon.co.th
1391
บริษัท ซีคอน จำกัด (รับสร้างบ้าน) 107-115 ถนนสี่พระยา บางรัก กรุงเทพฯ 10500
บริษัท แลนดี้ โฮม (ประเทศไทย) จำกัด
แบบบ้าน Alberta
- 5 ห้องนอน
- 6 ห้องน้ำ
- 1347 ตร.ม.

บริษัท แลนดี้ โฮม (ประเทศไทย) จำกัด
แบบบ้าน Alberta
- 5 ห้องนอน
- 6 ห้องน้ำ
- 4 ที่จอดรถ
- 1347ตร.ม.
บ้านหรูสไตล์โมเดิร์นคลาสสิค หรูหราด้วยเอกลักษณ์ลายโรมัน ในลายเส้นของแนวตั้งและแนวโค้ง โถงทางเข้าโอ่อ่าด้วยดีไซน์ Double Volume สะท้อนไลฟ์สไตล์ที่มีระดับและทันสมัย ผสานความสุนทรียภาพในการอยู่อาศัยได้อย่างลงตัว
ติดต่อสอบถามเพิ่มเติม
cr@landymail.com
02-938-3456-7
90/2 ถนนราชพฤกษ์ แขวงบางระมาด เขตตลิ่งชัน กรุงเทพมหานคร 10170
บริษัท บิวท์ ทู บิวด์ จำกัด
แบบบ้าน BOULEVARD
- 5 ห้องนอน
- 6 ห้องน้ำ
- 743 ตร.ม.

บริษัท บิวท์ ทู บิวด์ จำกัด
แบบบ้าน BOULEVARD
- 5 ห้องนอน
- 6 ห้องน้ำ
- 4 ที่จอดรถ
- 743ตร.ม.
แบบบ้าน 2 ชั้น สไตล์โคโรเนียล (Colonial Style) รูปลักษณ์ดีไซน์ศิลปะแบบตะวันตก ชวน ให้หลงใหลในกลิ่นอายของยุโรป การดีไซน์ตัวบ้านเลือกใช้วัสดุหินทรายธรรมชาติให้ความ หรูหรา แต่แฝงไปด้วยความอบอุ่นจากโทนสีของตัวบ้านที่ให้ความนุ่นนวลช่วยเพิ่ม บรรยากาศในการอยู่อาศัยให้สมบูรณ์แบบมากยิ่งขึ้น ทั้งยังโดดเด่นตั้งแต่โถงทางเข้าหน้า บ้านทรงสูงสง่า โอ่โถง ออกแบบให้มีพื้นที่พักผ่อนสำหรับรังสรรค์ทุกความสุข หรือกิจกรรม ได้ อย่างหลากหลายตามต้องการของผู้อาศัย
ติดต่อสอบถามเพิ่มเติม
btbbuilt@gmail.com
02-721-3999
8 ซอย อ่อนนุช 46 ถนน อ่อนนุช แขวง สวนหลวง เขต สวนหลวง, Bangkok, Thailand, Bangko
บริษัท มีนบุรีรักสร้างบ้าน จำกัด
แบบบ้าน Elder House-1
- 4 ห้องนอน
- 3 ห้องน้ำ
- 175 ตร.ม.

บริษัท มีนบุรีรักสร้างบ้าน จำกัด
แบบบ้าน Elder House-1
- 4 ห้องนอน
- 3 ห้องน้ำ
- 1 ที่จอดรถ
- 175ตร.ม.
ด้วยลักษณะของบ้านที่เป็น Thai Colonial Style สร้างความรู้สึกผ่อนคลาย อบอุ่น เหมาะสำหรับผู้ที่ต้องการพักผ่อนหลังจากเกษียรงาน หรือผู้สูงอายุ มีทางลาดสำหรับรถเข็น ที่ถูกซ่อนไว้ ติดกับที่จอดรถ มีห้องนอนใหญ่สำหรับผู้สูงอายุ และห้องนอนเล็ก 2 ห้องนอนสำหรับลูกหลานที่มาเยี่ยม
ติดต่อสอบถามเพิ่มเติม
-
Meanbureruk
Hug.mean38@gmail.com
034-271-203
ถนน เทศา, Nakhon Pathom, Thailand, Nakhon Pathom
บริษัท ซีคอน จำกัด
แบบบ้าน European 606
- 4 ห้องนอน
- 5 ห้องน้ำ
- 606 ตร.ม.

บริษัท ซีคอน จำกัด
แบบบ้าน European 606
- 4 ห้องนอน
- 5 ห้องน้ำ
- 3 ที่จอดรถ
- 606ตร.ม.
เป็นบ้าน style Europe 3 ชั้น ที่ดูเรียบหรู พื้นที่ใช้สอยชั้นล่างโอ่โถง โดยเฉพาะพื้นที่พักผ่อนและทานอาหาร ที่มีการใช้ Double Volume ทําให้ space มี ความกว้างขวางเป็นพิเศษ Court ด้านข้างเพื่อเข้าถึงธรรมชาติให้แก่คนในบ้าน ห้องนอนทุกห้องกว้างใหญ่เป็นพิศษ พร้อมห้องน้าในตัวทุกห้อง
ติดต่อสอบถามเพิ่มเติม
info@seacon.co.th
1391
107-115 ถนนสี่พระยา บางรัก กรุงเทพฯ 10500
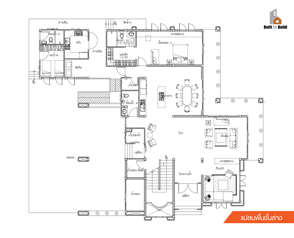
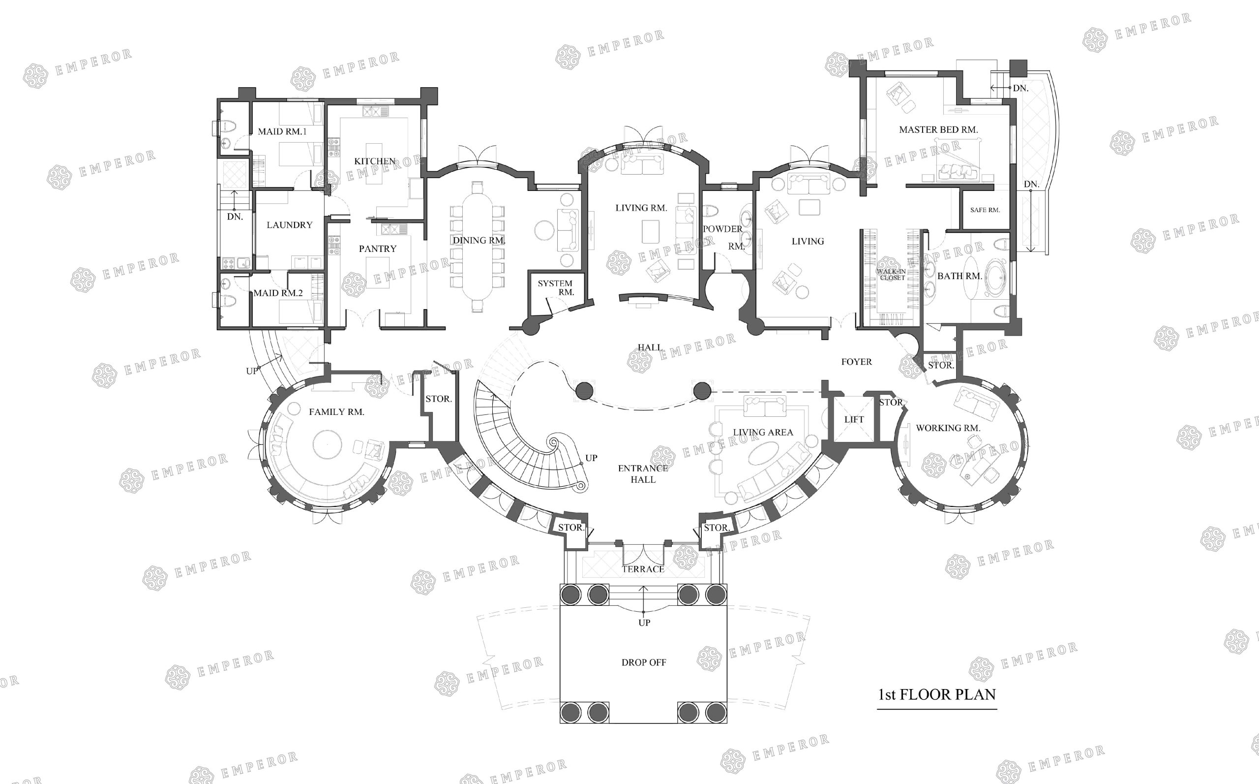
บริษัท ดิ เอ็มเพอเร่อร์ เฮ้าส์ จำกัด
แบบบ้าน Explicit
- 5 ห้องนอน
- 7 ห้องน้ำ
- 670 ตร.ม.

บริษัท ดิ เอ็มเพอเร่อร์ เฮ้าส์ จำกัด
แบบบ้าน Explicit
- 5 ห้องนอน
- 7 ห้องน้ำ
- 2 ที่จอดรถ
- 670ตร.ม.
ด้วยการผสมผสานระหว่างความร่วมสมัยกับงานคลาสสิคที่สง่างามอย่างลงตัวทำให้บ้านหลังนี้มีความพิเศษกว่าใคร โดยเฉพาะโถงทางเข้าที่เปิดโล่งและห้องรับแขกรูปทรงกลม ที่สร้างความน่าสนใจให้กับผู้มาเยือนได้เป็นอย่างดี ห้องนอนชั้นล่าง 2 ห้องที่สามารถปรับเปลี่ยนห้องใดห้องหนึ่งเป็นห้องทำงานเล็กๆ ได้อย่างเพียงพอ ในส่วนของห้องนอนใหญ่มีการจัดพื้นที่สำหรับพักผ่อนและส่วนนอน ซึ่งออกแบบให้มีระดับความสูงของฝ้าเพดานให้สูงโปร่งโล่ง นอกจากนั้นยังเพิ่มจุดเด่นด้วยระเบียงโค้งขนาดใหญ่เป็นส่วนหนึ่งของมุมพักผ่อนพิเศษในบ้าน
ติดต่อสอบถามเพิ่มเติม
customerservice@emperorhouse.com
02-970-3080 โทรสาร 02-970-3228, 02-970-4362
288/77 Phaholyotin Rd.,Anusawaree, Bangkhen, Bangkok, Thailand, Bangkok
บริษัท แลนดี้ โฮม (ประเทศไทย) จำกัด
แบบบ้าน Ludwig
- 5 ห้องนอน
- 6 ห้องน้ำ
- 1545 ตร.ม.

บริษัท แลนดี้ โฮม (ประเทศไทย) จำกัด
แบบบ้าน Ludwig
- 5 ห้องนอน
- 6 ห้องน้ำ
- 4 ที่จอดรถ
- 1545ตร.ม.
Ludwig บ่งบอกถึงความสง่างามและสมเกียรติ ถูกออกแบบในสไตล์ Neo Classic ที่นำศิลปะในยุคโบราณ ดีไซน์ตัวบ้านให้มีความสมมาตร และจัดสัดส่วนพื้นที่ใช้สอยที่ลงตัวกับรูปลักษณ์ของบ้าน พื้นที่ว่างเจาะช่องโล่งสร้างการระบายอากาศภายในตัวบ้าน และเพิ่มมิติของบ้านให้มีความน่าสนใจดูมีสไตล์ ด้วยการตกแต่งบัวผนังทั้งหลัง ทำให้บ้านมีความประณีตและดูเรียบหรู
ติดต่อสอบถามเพิ่มเติม
cr@landymail.com
02-938-3456-7
90/2 ถนนราชพฤกษ์ แขวงบางระมาด เขตตลิ่งชัน กรุงเทพมหานคร 10170
บริษัท มีนบุรีรักสร้างบ้าน จำกัด
แบบบ้าน MJ-2
- 4 ห้องนอน
- 3 ห้องน้ำ
- 427 ตร.ม.

บริษัท มีนบุรีรักสร้างบ้าน จำกัด
แบบบ้าน MJ-2
- 4 ห้องนอน
- 3 ห้องน้ำ
- 2 ที่จอดรถ
- 427ตร.ม.
ออกแบบให้ทุกพื้นที่ใช้สอย ให้สามารถรับลมได้ดี และตกแต่งด้วยระแนงไม้ไว้กรองแสง และซับลดความร้อน ช่วยให้ตัวบ้านเย็นขึ้น
ติดต่อสอบถามเพิ่มเติม
-
Meanbureruk
Hug.mean38@gmail.com
034-271-203
ถนน เทศา, Nakhon Pathom, Thailand, Nakhon Pathom
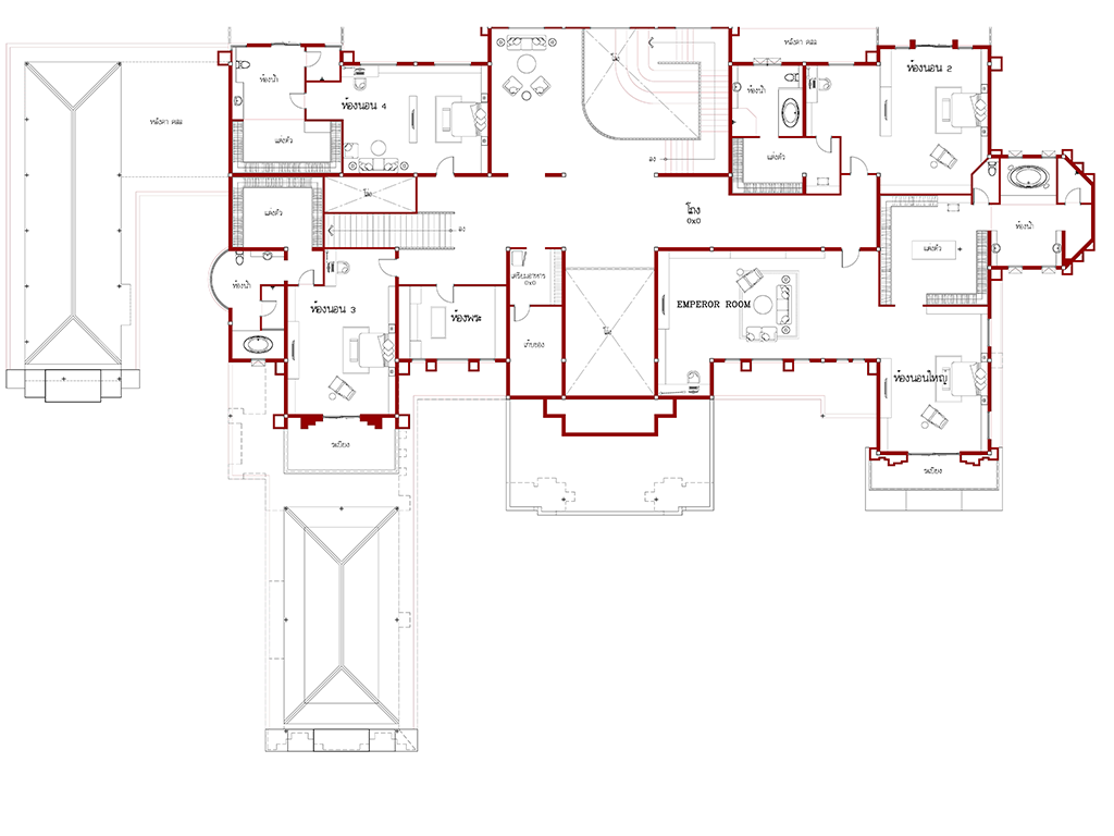
บริษัท ดิ เอ็มเพอเร่อร์ เฮ้าส์ จำกัด
แบบบ้าน Pearl of The Peninsula
- 5 ห้องนอน
- 7 ห้องน้ำ
- 1975 ตร.ม.

บริษัท ดิ เอ็มเพอเร่อร์ เฮ้าส์ จำกัด
แบบบ้าน Pearl of The Peninsula
- 5 ห้องนอน
- 7 ห้องน้ำ
- 4 ที่จอดรถ
- 1975ตร.ม.
เป็นการนำศิลปะสไตล์อาร์ตเดโคซึ่งเป็นศิลปะของความหรู ความมีประโยชน์ทางการใช้สอยและความเป็นสมัยใหม่มาออกแบบกับงานสถาปัตยกรรมให้บ้านหลังนี้มีความพิเศษแตกต่างจากบ้านทั่วไป ด้วยการลดทอนผนังเป็นชั้นๆ ให้เกิดมิติที่แปลกตา โถงทางเข้าที่ยกสูงทำให้เด่น เน้นบานประตูหน้า ที่ออกแบบสไตล์อาร์ตเดโค ภายในจัดพื้นที่ใช้สอยไว้เพียงพอสำหรับครอบครัวขนาดใหญ่ มีพื้นที่สำหรับห้องเกมส์เป็นที่สังสรรค์ของคนในครอบครัวและแขกที่มาได้เป็นอย่างดี
ติดต่อสอบถามเพิ่มเติม
customerservice@emperorhouse.com
02-970-3080 โทรสาร 02-970-3228, 02-970-4362
288/77 Phaholyotin Rd.,Anusawaree, Bangkhen, Bangkok, Thailand, Bangkok
บริษัท ดิ เอ็มเพอเร่อร์ เฮ้าส์ จำกัด
แบบบ้าน PINNACLE
- 5 ห้องนอน
- 7 ห้องน้ำ
- 1440 ตร.ม.

บริษัท ดิ เอ็มเพอเร่อร์ เฮ้าส์ จำกัด
แบบบ้าน PINNACLE
- 5 ห้องนอน
- 7 ห้องน้ำ
- 0 ที่จอดรถ
- 1440ตร.ม.
ผนังซุ้มโค้งด้านหน้า ประกอบกับหน้าบันที่ดูสง่างาม และโดมที่ยิ่งทำให้ดูโดดเด่น บริเวณโถงใหญ่ด้านหน้าที่เป็นผนังซุ้มโค้ง แสงสมารถส่องผ่าน ทำให้บ้านดูโปร่งโล่งสบาย ตอบรับกับบันไดโค้งที่ทอดยาวขึ้นสู่ชั้นบน ได้อย่างสวยงามลงตัว ฟังก์ชันการใช้งานภายในบ้านครบครัน ตอบโจทย์การอยู่อาศัยแบบครอบครัวใหญ่ ด้วยห้องนอน 4 ห้อง และยังคำนึงถึงห้องนอนสำหรับผู้สูงอายุ ห้องทานอาหารขนาดใหญ่ที่สามารถรองรับการจัดงานเลี้ยงต่างๆ และห้องสำหรับรับรองแขกมีพื้นที่และระเบียงสำหรับนั่งเล่น ให้ผู้อยู่อาศัยได้พักผ่อน
ติดต่อสอบถามเพิ่มเติม
customerservice@emperorhouse.com
02-970-3080 โทรสาร 02-970-3228, 02-970-4362
288/77 Phaholyotin Rd.,Anusawaree, Bangkhen, Bangkok, Thailand, Bangkok
บริษัท ดิ เอ็มเพอเร่อร์ เฮ้าส์ จำกัด
แบบบ้าน Provence
- 5 ห้องนอน
- 7 ห้องน้ำ
- 2235 ตร.ม.

บริษัท ดิ เอ็มเพอเร่อร์ เฮ้าส์ จำกัด
แบบบ้าน Provence
- 5 ห้องนอน
- 7 ห้องน้ำ
- 0 ที่จอดรถ
- 2235ตร.ม.
รูปแบบที่โดดเด่นแปลกตาในสไตล์งานคลาสสิคที่ผสมกลิ่นอายของสถาปัตยกรรมฝรั่งเศส ทำให้บ้านหลังนี้มีความหรูหรา อ่อนช้อย สง่างาม อย่างมีรสนิยม ทั้งยังใช้สื่อถึงความภาคภูมิใจในการเป็นเจ้าของได้เป็นอย่างดี ด้วยแปลนบ้านภายในยังสามารถตอบสนองความเป็นส่วนตัวและแยกส่วนรับรองแขกอย่างชัดเจน ในตัวบ้านยังมีส่วนที่เป็นพื้นที่เปิดโล่งถึง 3 จุด ทำให้บ้านดูโปร่งและสง่างามมากยิ่งขึ้น อีกทั้งโถงด้านหน้าขนาดใหญ่ที่สามารถรองรับการจัดงานที่มีแขกจำนวนมากได้เป็นอย่างดี ร่วมกับห้องจัดเลี้ยงขนาดใหญ่ที่สามารถรองรับแขก VIP ได้อีกด้วย
ติดต่อสอบถามเพิ่มเติม
customerservice@emperorhouse.com
02-970-3080 โทรสาร 02-970-3228, 02-970-4362
288/77 Phaholyotin Rd.,Anusawaree, Bangkhen, Bangkok, Thailand, Bangkok
บริษัท ริชชี่ เฮ้าส์ จำกัด
แบบบ้าน RCH-024 Catania
- 5 ห้องนอน
- 6 ห้องน้ำ
- 1132 ตร.ม.

บริษัท ริชชี่ เฮ้าส์ จำกัด
แบบบ้าน RCH-024 Catania
- 5 ห้องนอน
- 6 ห้องน้ำ
- 0 ที่จอดรถ
- 1132ตร.ม.
คฤหาสน์หรูที่แต่งแต้มด้วยมนต์เสน่ห์ของสถาปัตยกรรมสไตล์สแปนิช ผสมผสานความสง่างามและความสะดวกสบายแห่งการยู่อาศัยไว้อย่างครบถ้วนลงตัว วิจิตรตระการตาตั้งแต่โถงทางเข้าที่ตกแต่งด้วยเสากลมสวยงามพร้อมต้อนรับผู้มาเยือนอย่างเป็นมิตร พื้นที่ใช้สอยภายในถูกเนรมิตให้สัมผัสกับกลิ่นอายธรรมชาติจากสวนสวยกลางบ้าน และโอบล้อมความงามของผืนน้ำจากสระว่ายน้ำขนาดใหญ่ ที่สรรค์สร้างทัศนียภาพให้คุณรู้สึกผ่อนคลายยามพักผ่อนอิริยาบถอย่างเต็มที่ เพิ่มความพิเศษอีกระดับด้วยเรือนรับรองอเนกประสงค์ ห้องออกกำลังกาย และห้องสปา ที่ช่วยเติมเต็มความสมบูรณ์แบบให้กับคฤหาสน์ ห้องนอนชั้นบนทุกห้องออกแบบให้เป็นอิสระส่วนตัว พร้อมเปิดรับแดดอ่อนๆจากแสงอาทิตย์ยามรุ่งเช้า หรือแสงจันทร์นวลยามค่ำคืนอันแสนอบอุ่น และนี่คือที่สุดของสุนทรียภาพแห่งการพักผ่อนอันสมบูรณ์แบบอย่างแท้จริง
ติดต่อสอบถามเพิ่มเติม
info@richiehouses.com
0-2673-7061-3
79/338 ถ.สาธุประดิษฐ์ แขวงช่องนนทรี, Yan Nawa, Thailand, Bangkok
บริษัท ริชชี่ เฮ้าส์ จำกัด
แบบบ้าน RCH-026 Di Palemo
- 5 ห้องนอน
- 6 ห้องน้ำ
- 1099 ตร.ม.

บริษัท ริชชี่ เฮ้าส์ จำกัด
แบบบ้าน RCH-026 Di Palemo
- 5 ห้องนอน
- 6 ห้องน้ำ
- 0 ที่จอดรถ
- 1099ตร.ม.
คฤหาสน์หรูที่ได้รับการรังสรรค์ทุกฟังก์ชั่นใช้สอยให้คุณอิ่มเอมบนความสุขทุกมิติที่เหนือเกินใคร ด้วยการเนรมิตห้องรับแขกหรูหราอลังการเพื่อต้อนรับแขกคนสำคัญ ห้องครอบครัว ห้องทานอาหาร และห้องทำงานที่ออกแบบอย่างพิถีพิถันให้เปิดมุมมองโปร่งโล่งสบายสู่ทัศนียภาพอันงดงาม พรั่งพร้อมด้วยเรือนอเนกประสงค์ และห้องออกกำลังกายที่รายล้อมสระว่ายน้ำ ดั่งเป็นอาณาจักรส่วนตัวของคุณ ห้องนอนทุกห้องได้รับการออกแบบไว้อย่างอบอุ่นและเป็นสัดส่วน ให้การพักผ่อนเป็นช่วงเวลาที่ดีที่สุด และนี่คือสรวงสวรรค์แห่งความสุขที่แท้จริงสำหรับผู้ที่มีรสนิยมเหนือระดับ
ติดต่อสอบถามเพิ่มเติม
info@richiehouses.com
0-2673-7061-3
79/338 ถ.สาธุประดิษฐ์ แขวงช่องนนทรี, Yan Nawa, Thailand, Bangkok
บริษัท ริชชี่ เฮ้าส์ จำกัด
แบบบ้าน RCH-027 Casa Cellini
- 5 ห้องนอน
- 6 ห้องน้ำ
- 1050 ตร.ม.

บริษัท ริชชี่ เฮ้าส์ จำกัด
แบบบ้าน RCH-027 Casa Cellini
- 5 ห้องนอน
- 6 ห้องน้ำ
- 0 ที่จอดรถ
- 1050ตร.ม.
คฤหาสน์หรูอันทรงคุณค่าแห่งเกียรติยศ ที่ได้รับการรังสรรค์อย่างประณีตบรรจงให้ผสานความงดงามแห่งสถาปัตยกรรม และความสะดวกสบายไว้อย่างลงตัว ตระการตาด้วยห้องรับแขกขนาดใหญ่ที่ดูโก้หรูด้วยห้องโค้งทรงกลม พร้อมห้องครอบครัว และห้องทานอาหารที่ออกแบบให้เปิดมุมมองกว้างสบายตาสู่สระว่ายน้ำและทัศนียภาพอันแสนงาม เพื่อเนรมิตเวลาพักผ่อนของคุณให้เป็นช่วงเวลาที่วิเศษที่สุด ก่อนจะหลับใหลในยามราตรีกับค่ำคืนที่แสนอบอุ่นด้วยห้องนอนขนาดใหญ่ที่เป็นสัดส่วนลงตัว ทั้งหมดนี้คือสิ่งที่สะท้อนความสมบูรณ์แบบเต็มจินตนาการเพื่อสุนทรียภาพแห่งวิถีชีวิตเหนือระดับ
ติดต่อสอบถามเพิ่มเติม
info@richiehouses.com
0-2673-7061-3
79/338 ถ.สาธุประดิษฐ์ แขวงช่องนนทรี, Yan Nawa, Thailand, Bangkok
บริษัท ริชชี่ เฮ้าส์ จำกัด
แบบบ้าน RCH-031 Villa La Mare
- 5 ห้องนอน
- 5 ห้องน้ำ
- 1374 ตร.ม.

บริษัท ริชชี่ เฮ้าส์ จำกัด
แบบบ้าน RCH-031 Villa La Mare
- 5 ห้องนอน
- 5 ห้องน้ำ
- 0 ที่จอดรถ
- 1374ตร.ม.
จากแรงบันดาลใจในสถาปัตยกรรมสไตล์เมดิเตอร์เรเนียนสู่การออกแบบคฤหาสน์หรูทรงคุณค่า Villa’ La Mare สง่างามน่าหลงใหลตั้งแต่ก้าวแรกที่สัมผัส พื้นที่ใช้สอยภายในรังสรรค์อย่างปราณีตพิถีพิถัน ห้องรับแขกที่ออกแบบให้เชื่อมต่อเฉลียงกว้างเพื่อให้คุณต้อนรับแขกคนพิเศษด้วยบรรยากาศที่ดื่มด่ำกับสวนเขียวขจีที่รายล้อมบ้าน บรรจงสรรค์สร้างห้องพักผ่อนครอบครัวให้โอ่โถงโปร่งสบายแบบ Double Volume สำหรับการพักผ่อนอันแสนสบายของครอบครัว ห้องรับประทานอาหารเปิดมุมมองผ่านหน้าต่างกว้างบานใหญ่ ให้คุณและครอบครัวได้ใกล้ชิดธรรมชาติอย่างไร้ขีดจำกัด ชั้นบนห้องนอนได้รับการออกแบบเป็นสัดส่วนอย่างลงตัว พร้อมระเบียงส่วนตัวให้คุณสูดอากาศยามเช้า และสัมผัสแสงจันทร์ก่อนหลับใหลในยามค่ำคืน และนี่คือที่สุดของคฤหาสน์ซึ่งสะท้อนถึงความหรูหราแบบมีรสนิยม และแฝงไว้ด้วยความอบอุ่นของผู้ครอบครองดั่งเช่นคุณ
ติดต่อสอบถามเพิ่มเติม
info@richiehouses.com
0-2673-7061-3
79/338 ถ.สาธุประดิษฐ์ แขวงช่องนนทรี, Yan Nawa, Thailand, Bangkok
บริษัท ริชชี่ เฮ้าส์ จำกัด
แบบบ้าน RCH-035 Le Monta
- 6 ห้องนอน
- 7 ห้องน้ำ
- 2612 ตร.ม.

บริษัท ริชชี่ เฮ้าส์ จำกัด
แบบบ้าน RCH-035 Le Monta
- 6 ห้องนอน
- 7 ห้องน้ำ
- 8 ที่จอดรถ
- 2612ตร.ม.
คฤหาสน์หรูที่ได้รับการรังสรรค์ทุกฟังก์ชั่นใช้สอยให้คุณอิ่มเอมบนความสุขทุกมิติที่เหนือเกินใคร ด้วยการเนรมิตห้องรับแขกหรูหราอลังการเพื่อต้อนรับแขกคนสำคัญ ห้องครอบครัว ห้องทานอาหาร และห้องทำงานที่ออกแบบอย่างพิถีพิถันให้เปิดมุมมองโปร่งโล่งสบายสู่ทัศนียภาพอันงดงาม พรั่งพร้อมด้วยเรือนอเนกประสงค์ และห้องออกกำลังกายที่รายล้อมสระว่ายน้ำ ดั่งเป็นอาณาจักรส่วนตัวของคุณ ห้องนอนทุกห้องได้รับการออกแบบไว้อย่างอบอุ่นและเป็นสัดส่วน ให้การพักผ่อนเป็นช่วงเวลาที่ดีที่สุด และนี่คือสรวงสวรรค์แห่งความสุขที่แท้จริงสำหรับผู้ที่มีรสนิยมเหนือระดับ
ติดต่อสอบถามเพิ่มเติม
info@richiehouses.com
0-2673-7061-3
79/338 ถ.สาธุประดิษฐ์ แขวงช่องนนทรี, Yan Nawa, Thailand, Bangkok
บริษัท รอแยลเฮ้าส์ จำกัด
แบบบ้าน RH-TC.2181
- 5 ห้องนอน
- 5 ห้องน้ำ
- 420 ตร.ม.

บริษัท รอแยลเฮ้าส์ จำกัด
แบบบ้าน RH-TC.2181
- 5 ห้องนอน
- 5 ห้องน้ำ
- 1 ที่จอดรถ
- 420ตร.ม.
บ้านสไตล์ทัสคานีที่เห็นอยู่นี้ มีที่มาจากชื่อเมืองทัสคานี เป็นสถาปัตยกรรมแบบชนบทสไตล์อิตาลี ได้รับแรงบันดาลใจมาจากสภาพแวดล้อมในธรรมชาติ ที่เป็นองค์ประกอบสำคัญในการสร้างบ้านและตกแต่งบ้าน กลายเป็นไลฟ์สไตล์ที่เรียบง่าย สวยงาม แต่แฝงไว้ด้วยความอบอุ่นและมีเอกลักษณ์เฉพาะตัว มีลักษณะเด่นตรงที่หลังคาเป็นทรงปั้นหยาค่อนข้างลาด
ติดต่อสอบถามเพิ่มเติม
-
contact@royalhouse.co.th
0-2459-4646
สำนักงานใหญ่ 1148 ถนนนครไชยศรี เขตดุสิต, Bangkok, Thailand, Bangkok
บริษัท เอส ซี แกรนด์ จำกัด
แบบบ้าน THE GRAND 404
- 6 ห้องนอน
- 7 ห้องน้ำ
- 404 ตร.ม.

บริษัท เอส ซี แกรนด์ จำกัด
แบบบ้าน THE GRAND 404
- 6 ห้องนอน
- 7 ห้องน้ำ
- 2 ที่จอดรถ
- 404ตร.ม.
ตัวบ้านถูกออกแบบในสไตล์ยุโรปคลาสสิก ที่ให้ความหรูหรา ดุจคฤหาสน์ บวกกับลักษณะของเส้นสายที่โค้งมนนี้ ยิ่งช่วยสร้างเอกลักษณ์ให้บ้านหลังนี้ดูโอ่อ่า น่าหลงไหลมากยิ่งขึ้น
ติดต่อสอบถามเพิ่มเติม
751, 753 ถ.เพชรเกษม แขวงบางหว้า เขตภาษีเจริญ กรุงเทพฯ 10160
02-066-6663
info@scgrand.co.th
บริษัท ซีคอน จำกัด
แบบบ้าน Valencia 443
- 4 ห้องนอน
- 5 ห้องน้ำ
- 443 ตร.ม.

บริษัท ซีคอน จำกัด
แบบบ้าน Valencia 443
- 4 ห้องนอน
- 5 ห้องน้ำ
- 6 ที่จอดรถ
- 443ตร.ม.
บ้าน Style สเปน ที่มีความกว้างใหญ่และมีเอกลักษณ์เฉพาะตัวซุ้มทางเข้าบ้านที่มีความอลังการเฉพาะตัว ห้องพักผ่อนที่มีเพดานสูงพิเศษ เหมาะกับการพักผ่อน พร้อมกับชุดประตูหน้าต่างขนาดสูงใหญ่พิเศษ ห้องมาสเตอร์ Bedroom มีขนาดกว้างใหญ่เป็นพิเศษ โดยแบ่งสัดส่วนการใช้งานภายในห้องได้อย่างลงตัว พร้อมทั้งมีห้องน้ำในตัวในทุกห้องนอน
ติดต่อสอบถามเพิ่มเติม
info@seacon.co.th
1391
107-115 ถนนสี่พระยา บางรัก กรุงเทพฯ 10500
บริษัท จีบีซี เฮ้าส์ จำกัด
แบบบ้าน พิมชัยพฤกษ์
- 4 ห้องนอน
- 3 ห้องน้ำ
- 255 ตร.ม.

บริษัท จีบีซี เฮ้าส์ จำกัด
แบบบ้าน พิมชัยพฤกษ์
- 4 ห้องนอน
- 3 ห้องน้ำ
- 2 ที่จอดรถ
- 255ตร.ม.
แบบบ้านพิมชนก เป็นบ้านที่ออกแบบในสไตล์ โมเดิร์นร่วมสมัย (Modern Contemporary) ซึ่งเน้นความเรียบง่าย สง่างาม และการใช้งานที่ตอบโจทย์ชีวิตครอบครัวยุคใหม่ โดยดีไซน์เน้นความโปร่งโล่ง ทันสมัย แต่ยังแฝงด้วยความอบอุ่น เหมาะสำหรับครอบครัวขนาดกลางที่ต้องการบ้านที่ลงตัวในด้านฟังก์ชันการใช้งานและดีไซน์ และดีไซน์ที่แสดงออกถึงความมีรสนิยมในแบบโมเดิร์นร่วมสมัย พร้อมบรรยากาศที่ผ่อนคลายและเงียบสงบในทุกมุมของบ้าน จุดเด่นของแบบบ้านพิมชนก 1. ดีไซน์โมเดิร์นที่ลงตัว เส้นสายการออกแบบเรียบง่าย ใช้โทนสีขาว เทา และวัสดุไม้ ช่วยสร้างความอบอุ่นและสไตล์ที่ทันสมัย การใช้กระจกบานใหญ่ช่วยเพิ่มความโปร่งโล่งและแสงธรรมชาติ ทำให้บ้านดูสว่างและมีชีวิตชีวา 2. พื้นที่ใช้สอยที่เหมาะสำหรับครอบครัวขนาดกลาง พื้นที่ 191 ตารางเมตร รองรับความต้องการของครอบครัวได้ครบครัน มี 4 ห้องนอน และ 3 ห้องน้ำ ออกแบบอย่างลงตัวสำหรับสมาชิกในครอบครัวและแขก 3. ฟังก์ชันการใช้งานที่ครบครัน 2 ที่จอดรถ รองรับการใช้งานจริง เพิ่มความสะดวกสบายสำหรับครอบครัวที่มีรถยนต์ พื้นที่ส่วนกลาง เช่น ห้องนั่งเล่นและห้องครัว ถูกออกแบบให้เชื่อมต่อกัน สร้างความรู้สึกอบอุ่นและสะดวกในการใช้งาน
ติดต่อสอบถามเพิ่มเติม
-
080-425-4100
951/13 ถนนพุทธมณฑลสาย3, Bangkok, Thailand, Bangkok
บริษัท จีบีซี เฮ้าส์ จำกัด
แบบบ้าน พิมเพทาย
- 4 ห้องนอน
- 3 ห้องน้ำ
- 158 ตร.ม.

บริษัท จีบีซี เฮ้าส์ จำกัด
แบบบ้าน พิมเพทาย
- 4 ห้องนอน
- 3 ห้องน้ำ
- 0 ที่จอดรถ
- 158ตร.ม.
แบบบ้านพิมเพทาย เป็นบ้านที่ออกแบบในสไตล์ คลาสสิกโมเดิร์น (Classic Modern) ซึ่งเน้นการออกแบบที่ผสมผสานระหว่างความสง่างามในแบบดั้งเดิมและฟังก์ชันที่ทันสมัย เพื่อสร้างบ้านที่ให้บรรยากาศอบอุ่น ดูหรูหรา แต่เรียบง่าย เหมาะสำหรับครอบครัวขนาดกลางที่ต้องการบ้านที่ดูแลรักษาง่ายและครบครันในทุกฟังก์ชันการใช้งาน จุดเด่นของแบบบ้านพิมเพทาย 1. ดีไซน์คลาสสิกที่ทันสมัย การใช้ซุ้มโค้งเหนือหน้าต่างและประตู ช่วยเพิ่มความโดดเด่นและคลาสสิกในงานออกแบบ โทนสีขาวและเทาพร้อมวัสดุตกแต่งลายหิน สร้างความหรูหราที่เรียบง่าย 2. พื้นที่ใช้สอยกระทัดรัด แต่ครบฟังก์ชัน พื้นที่ 158 ตารางเมตร ถูกจัดสรรอย่างชาญฉลาด รองรับความต้องการของครอบครัวขนาดกลางได้อย่างลงตัว มี 4 ห้องนอน และ 3 ห้องน้ำ ตอบโจทย์ทั้งพื้นที่ส่วนตัวและพื้นที่ส่วนกลาง 3. เหมาะสำหรับครอบครัวที่มีรถส่วนตัว มีพื้นที่สำหรับจอดรถในตัวบ้าน ทำให้สะดวกสบายสำหรับการใช้งานประจำวัน 4. การออกแบบเน้นความโปร่งโล่งและสว่าง หน้าต่างขนาดใหญ่ช่วยเพิ่มแสงธรรมชาติและเชื่อมต่อพื้นที่ภายในกับพื้นที่สีเขียวภายนอก บริเวณสวนรอบบ้านเพิ่มบรรยากาศสดชื่นและพื้นที่พักผ่อน
ติดต่อสอบถามเพิ่มเติม
-
080-425-4100
951/13 ถนนพุทธมณฑลสาย3, Bangkok, Thailand, Bangkok

