ความทันสมัยที่ไร้ขีดจำกัด
ค้นพบแรงบันดาลใจในการสร้างสรรค์พื้นที่แห่งความสุข ที่ตอบโจทย์ทุกไลฟ์สไตล์ของคุณ
บริษัท เอส ซี แกรนด์ จำกัด
แบบ้าน THE BLISS 249
- 4 ห้องนอน
- 3 ห้องน้ำ
- 249 ตร.ม.

บริษัท เอส ซี แกรนด์ จำกัด
แบบบ้าน THE BLISS 249
- 4 ห้องนอน
- 3 ห้องน้ำ
- 2 ที่จอดรถ
- 249ตร.ม.
ตัวบ้านถูกออกแบบในสไตล์ Modern Contemporary ที่ให้ความเรียบหรู ดูทันสมัย บวกกับลักษณะของเส้นสายกรอบสี่เหลี่ยมด้านหน้าที่ช่วยสร้างเอกลักษณ์ให้บ้านหลังนี้ดูโมเดิร์นมากยิ่งขึ้น และยังมีในส่วนของกระจกเข้ามุม ที่ช่วยเปิดมุมมองการ Take View ออกไปข้างนอกให้กว้างขวางมากยิ่งขึ้น โดยไม่มีผนังมาบดบังทัศนียภาพในการมองเห็น
ติดต่อสอบถามเพิ่มเติม
info@scgrand.co.th
02-066-6663
751, 753 ถ.เพชรเกษม แขวงบางหว้า เขตภาษีเจริญ กรุงเทพฯ 10160
บริษัท ลีอาร์คีเทค จำกัด
แบบ้าน BL-14
- 4 ห้องนอน
- 4 ห้องน้ำ
- 261 ตร.ม.

บริษัท ลีอาร์คีเทค จำกัด
แบบบ้าน BL-14
- 4 ห้องนอน
- 4 ห้องน้ำ
- 0 ที่จอดรถ
- 261ตร.ม.
บ้านที่ตอบโจทย์ชีวิตการอยู่อาศัยกับการทำธุรกิจได้อย่างลงตัว ด้วยสัดส่วนการจัดพื้นที่ใช้สอยให้มีความคล่องตัว เอนกประสงค์ สำหรับการทำงาน แต่ยังคงมีสมดุลของความเป็นบ้าน อีกทั้งมีรูปลักษณ์ภายนอกที่สวยสะดุดตา ออกแบบสอดประสานระหว่างเส้นแนวตั้งและแนวนอน และการใช้สีขาวตัดกับวัสดุโทนน้ำตาล เพิ่มเสน่ห์ด้วยระแนงไม้ พร้อมกับเป็นที่บังแสงแดด มีการใช้กระจกเพื่อเพิ่มมิติให้กับอาคาร
ติดต่อสอบถามเพิ่มเติม
rangfun@leearchitect.co.th
0-2570-2424
59 ถนนประเสริฐมนูกิจ แขวงจรเข้บัว เขตลาดพร้าว กรุงเทพฯ 10230
บริษัท ริชชี่ เฮ้าส์ จำกัด
แบบ้าน RCH-030 Casa Coasta
- 5 ห้องนอน
- 7 ห้องน้ำ
- 1735 ตร.ม.

บริษัท ริชชี่ เฮ้าส์ จำกัด
แบบบ้าน RCH-030 Casa Coasta
- 5 ห้องนอน
- 7 ห้องน้ำ
- 0 ที่จอดรถ
- 1735ตร.ม.
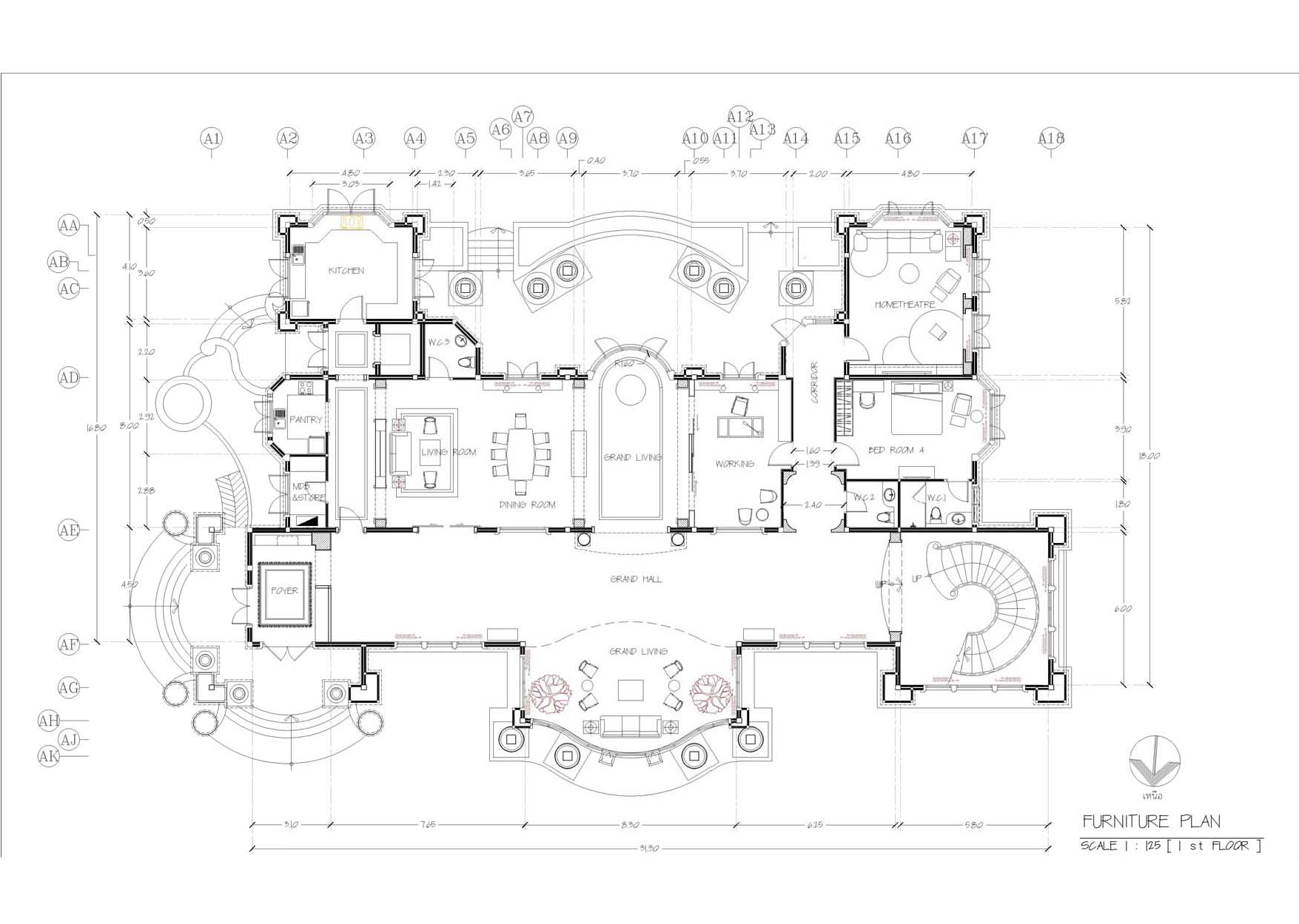
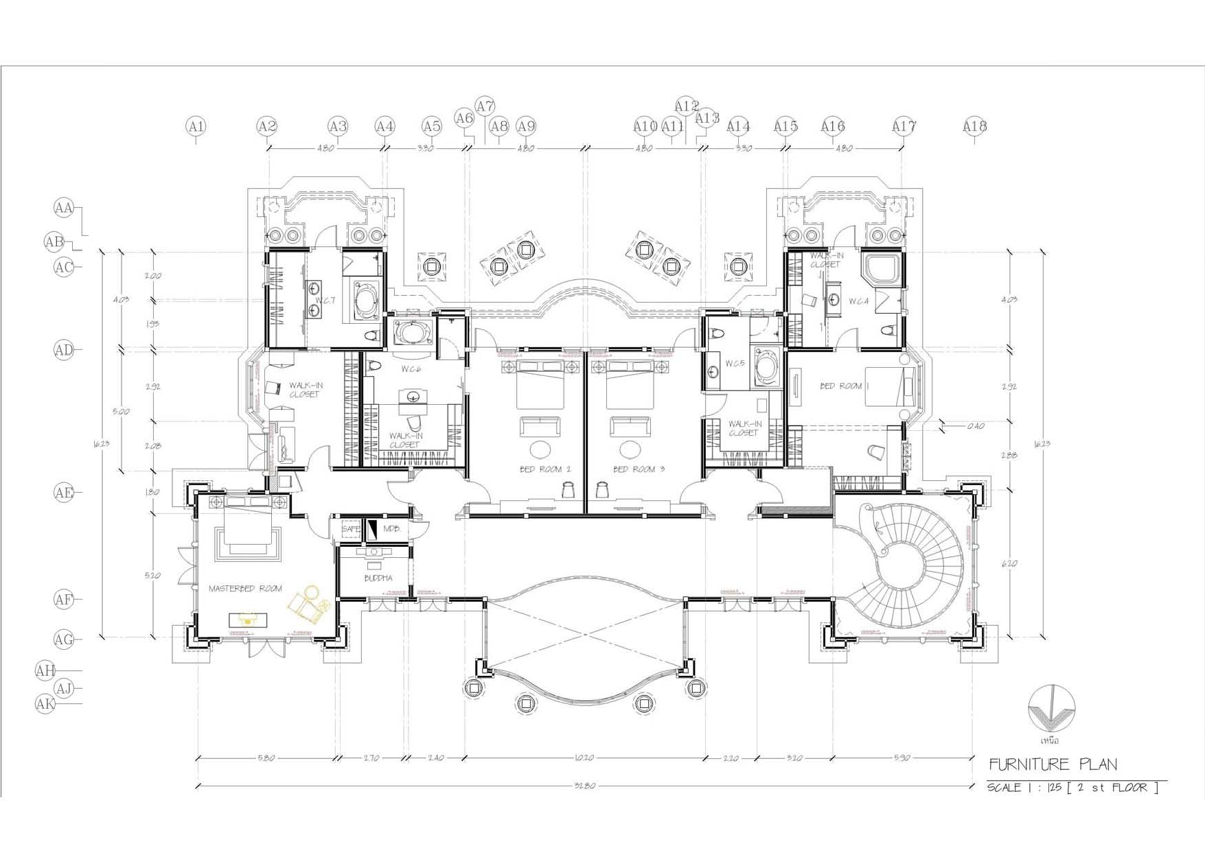
คฤหาสน์หรูทรงคุณค่าแห่งเกียรติยศในสไตล์ Italian Contemporary สง่างามด้วยการรังสรรค์อย่างพิถิพิถันในทุกมิติ สัมผัสได้ถึงความหรูหราตั้งแต่แรกพบกับโถงทางเข้าเพดานสูงโปร่ง ที่เชื้อเชิญสู่ห้องรับแขกอันโอ่อ่าอลังการพร้อมต้อนรับแขกที่มาเยือน เติมความพิเศษด้วยห้องพักผ่อนครอบครัว ห้องรับประทานอาหาร และห้องดูหนังฟังเพลง ที่เปิดมุมมองให้ทอดสายตาสบายสู่ความงดงามของผืนน้ำกับสระว่ายน้ำส่วนตัว ห้องออกกำลังกายที่รายล้อมด้วยสวนเขียวขจีได้รับการออกแบบมาเพื่อสุขภาพของคุณและคนที่คุณรัก แต่งแต้มเสน่ห์ด้วยบันไดโค้งที่ดูภูมิฐานทอดตัวยาวสู่ชั้นบน พร้อมลิฟท์โดยสารเพื่อความสะดวกสบายในการใช้งาน ให้คุณได้ดื่มด่ำไปกับสุนทรียภาพแห่งการพักผ่อนยามตะวันลับขอบฟ้าในห้องนอนอันแสนอบอุ่นที่ออกแบบไว้อย่างลงตัว และทั้งหมดในคฤหาสน์หลังนี้ได้สะท้อนถึงความสมบูรณ์แบบและรสนิยมอันเลิศหรูเฉกเช่นคุณ
ติดต่อสอบถามเพิ่มเติม
info@richiehouses.com
0-2673-7061-3
79/338 ถ.สาธุประดิษฐ์ แขวงช่องนนทรี, Yan Nawa, Thailand, Bangkok
บริษัท มีนบุรีรักสร้างบ้าน จำกัด
แบบ้าน MG GRAND 1
- 5 ห้องนอน
- 7 ห้องน้ำ
- 453 ตร.ม.

บริษัท มีนบุรีรักสร้างบ้าน จำกัด
แบบบ้าน MG GRAND 1
- 5 ห้องนอน
- 7 ห้องน้ำ
- 2 ที่จอดรถ
- 453ตร.ม.
รูปทรงภายนอกทันสมัย Modern Style หน้ากว้าง พื้นที่ใช้สอยโอ่โถง ด้วยบรรยากาศผ่อนคลายกับเฉลียงรอบบ้าน
ติดต่อสอบถามเพิ่มเติม
-
Meanbureruk
Hug.mean38@gmail.com
034-271-203
ถนน เทศา, Nakhon Pathom, Thailand, Nakhon Pathom
บริษัท จีบีซี เฮ้าส์ จำกัด
แบบ้าน พิมภูผา
- 7 ห้องนอน
- 4 ห้องน้ำ
- 332 ตร.ม.

บริษัท จีบีซี เฮ้าส์ จำกัด
แบบบ้าน พิมภูผา
- 7 ห้องนอน
- 4 ห้องน้ำ
- 2 ที่จอดรถ
- 332ตร.ม.
แบบบ้านพิมภูผา เป็นบ้านที่ออกแบบในสไตล์ นีโอคลาสสิก (Neo Classic) ที่เน้นความสูงโปร่ง สง่างาม และทรงพลัง โดดเด่นด้วยการออกแบบอาคาร 3 ชั้น ที่ผสมผสานความหรูหราและการใช้งานที่เหมาะสมสำหรับครอบครัวขนาดใหญ่ บ้านนี้สะท้อนถึงความมั่นคงและความภาคภูมิใจในทุกมิติ เหมาะสำหรับครอบครัวที่ต้องการพื้นที่ใช้สอยที่กว้างขวาง พร้อมการจัดสรรฟังก์ชันอย่างชาญฉลาด สะท้อนถึงรสนิยมที่เหนือระดับและความมั่งคั่งในทุกมิติของชีวิต จุดเด่นของแบบบ้านพิมภูผา 1. ดีไซน์นีโอคลาสสิกที่สง่างาม การออกแบบเน้นเส้นสายแนวตั้งและความสูงโปร่ง ทำให้บ้านดูโอ่อ่าและสง่างาม ซุ้มประตูและหน้าต่างบานใหญ่ พร้อมตกแต่งด้วยวัสดุหรูหรา เช่น กระจกและหินธรรมชาติ 2. พื้นที่ใช้สอยที่รองรับครอบครัวขนาดใหญ่ พื้นที่ 332 ตารางเมตร ถูกจัดสรรอย่างลงตัวด้วย 7 ห้องนอน และ 4 ห้องน้ำ เหมาะสำหรับครอบครัวขยายหรือครอบครัวที่มีสมาชิกหลายรุ่น พื้นที่ส่วนกลางกว้างขวาง เช่น ห้องนั่งเล่น ห้องรับประทานอาหาร และพื้นที่ครัวที่รองรับกิจกรรมของครอบครัว 3. การออกแบบที่เน้นฟังก์ชันและความสะดวกสบาย 2 ที่จอดรถในตัวบ้าน การจัดสรรพื้นที่ในแต่ละชั้นช่วยเพิ่มความสะดวกและความเป็นส่วนตัว 4. บรรยากาศโปร่งโล่งและหรูหรา โถงกลางสูงและกระจกบานใหญ่ช่วยเพิ่มแสงธรรมชาติและสร้างความรู้สึกโปร่งโล่ง ระเบียงในแต่ละชั้นเชื่อมต่อกับพื้นที่ภายนอก เพิ่มความสดชื่นและผ่อนคลาย
ติดต่อสอบถามเพิ่มเติม
-
080-425-4100
951/13 ถนนพุทธมณฑลสาย3, Bangkok, Thailand, Bangkok
บริษัท โฟร์พัฒนา จำกัด
แบบ้าน P-201
- 5 ห้องนอน
- 6 ห้องน้ำ
- 877 ตร.ม.

บริษัท โฟร์พัฒนา จำกัด
แบบบ้าน P-201
- 5 ห้องนอน
- 6 ห้องน้ำ
- 5 ที่จอดรถ
- 877ตร.ม.
แบบบ้านสองชั้น สไตล์ MODERN CONTEMPORARY เรียบหรู ทันสมัย อย่างมีสไตล์ ผนังไม้เทียมสีเข้ม และผนังหินเทียม เพิ่มมิติให้กับตัวบ้าน ดูเท่ ภายในออกแบบพื้นที่อย่างไหลลื่น เป็นพื้นที่เปิดเชื่อมโยงถึงกัน ความโปร่ง โล่ง ของบ้าน ให้ความผ่อนคลาย สร้างความสุขในบ้านหลังใหญ่
ติดต่อสอบถามเพิ่มเติม
fourpattana@fourpattana.com
02-940-3789
เลขที่ 2 ซอยลาดปลาเค้า10 แขวงลาดพร้าว เขตลาดพร้าว กรุงเทพฯ 10230
บริษัท ดิ เอ็มเพอเร่อร์ เฮ้าส์ จำกัด
แบบ้าน Peranto
- 6 ห้องนอน
- 8 ห้องน้ำ
- 1365 ตร.ม.

บริษัท ดิ เอ็มเพอเร่อร์ เฮ้าส์ จำกัด
แบบบ้าน Peranto
- 6 ห้องนอน
- 8 ห้องน้ำ
- 6 ที่จอดรถ
- 1365ตร.ม.
ด้วยวิธีการจัดวางตัวอาคารให้โอบล้อมพื้นที่ด้านหน้า ทำให้เกิดมุมมองบ้านที่น่าสนใจ มีการแบ่งพื้นที่ส่วนบ้านกับส่วนสำนักงานอย่างชัดเจน เชื่อมต่อด้วยเฉลียงทางเดินด้านหน้าที่ต่อเนื่องกัน นำไปสู่โถงทางเข้าที่โค้งและเปิดพื้นที่ 2 ชั้น (Double Space) ทำให้ความรู้สึกโปร่งโล่ง ต้อนรับสมาชิกทุกคนภายในบ้าน หรือแขกผู้มาเยือนอย่างภูมิฐาน สมฐานะ มีห้องนอนชั้นล่างที่เหมาะสำหรับรับรองแขกหรือผู้สูงอายุ ในส่วนของห้องนอนชั้นบน ยังประกอบด้วยส่วนแต่งตัว และห้องน้ำส่วนตัวทุกห้อง สำหรับห้องนอนใหญ่ เน้นความโล่งกว้าง พร้อมโถงโดมในส่วนพักผ่อน นอกจากนี้ยังได้สัมผัสกับสวนหย่อมบนหลังคา ที่จัดเตรียมไว้สำหรับคนพิเศษเช่นคุณ
ติดต่อสอบถามเพิ่มเติม
customerservice@emperorhouse.com
02-970-3080 โทรสาร 02-970-3228, 02-970-4362
288/77 Phaholyotin Rd.,Anusawaree, Bangkhen, Bangkok, Thailand, Bangkok
บริษัท ลีอาร์คีเทค จำกัด
แบบ้าน CO-12 : Oaklands
- 4 ห้องนอน
- 6 ห้องน้ำ
- 455 ตร.ม.

บริษัท ลีอาร์คีเทค จำกัด
แบบบ้าน CO-12 : Oaklands
- 4 ห้องนอน
- 6 ห้องน้ำ
- 0 ที่จอดรถ
- 455ตร.ม.
บ้าน 2 ชั้น สไตล์ Modern-Contemporary ดูโอ่โถงทันสมัย แฝงกลิ่นอายความอบอุ่น มีการเล่นจังหวะการออกแบบ Solid & Void ที่ลงตัว
ติดต่อสอบถามเพิ่มเติม
rangfun@leearchitect.co.th
0-2570-2424
59 ถนนประเสริฐมนูกิจ แขวงจรเข้บัว เขตลาดพร้าว กรุงเทพฯ 10230
บริษัท ริชชี่ เฮ้าส์ จำกัด
แบบ้าน RCH-023 Palm Spring
- 5 ห้องนอน
- 6 ห้องน้ำ
- 1099 ตร.ม.

บริษัท ริชชี่ เฮ้าส์ จำกัด
แบบบ้าน RCH-023 Palm Spring
- 5 ห้องนอน
- 6 ห้องน้ำ
- 0 ที่จอดรถ
- 1099ตร.ม.
คฤหาสน์หรูสไตล์สแปนิช ที่ผสมผสานความสง่างามแบบตะวันตกและการใช้สอยอย่างอบอุ่นแบบตะวันออกไว้อย่างลงตัว โถงทางเข้าโดดเด่นอลังการด้วยความงดงามของเสาตกแต่งที่เชื้อเชิญ และสะดุดทุกสายตาผู้มาเยือน ภายในได้รับการออกแบบพื้นที่ใช้สอยไว้อย่างครบครัน ห้องรับแขกโอ่โถงโปร่งสบายด้วยฝ้าเพดานสูง และหน้าต่างบานใหญ่ที่เปิดทุกมุมมองให้คุณได้สัมผัสสุนทรียภาพภายนอกอย่างเต็มที่ ห้องพักผ่อน ห้องสปา ห้องออกกำลังกาย และศาลาพักผ่อนถูกสรรค์สร้างขึ้นให้อยู่รายล้อมสระว่ายน้ำที่กลมกลืนไปกับสวนสวยธรรมชาติและแมกไม้นานาพันธุ์ เหมาะทั้งกับการพักผ่อนแบบส่วนตัวหรือสังสรรค์กับครอบครัวและเพื่อนฝูงที่รู้ใจ ยามดึกเปลี่ยนบรรยากาศมาพักผ่อนที่โถงนั่งเล่นขนาดใหญ่บนชั้นสอง ก่อนจะเข้าไปหลับใหลในค่ำคืนที่แสนอบอุ่น ภายในห้องนอนที่แบ่งสัดส่วนไว้เพื่อการพักผ่อนอย่างลงตัว ทั้งหมดนี้คือสิ่งที่สะท้อนถึงรสนิยมอันเลิศหรู และชีวิตที่สมบูรณ์แบบซึ่งได้รับการเนรมิตให้เกิดขึ้นในคฤหาสน์หลังนี้
ติดต่อสอบถามเพิ่มเติม
info@richiehouses.com
0-2673-7061-3
79/338 ถ.สาธุประดิษฐ์ แขวงช่องนนทรี, Yan Nawa, Thailand, Bangkok
บริษัท รอแยลเฮ้าส์ จำกัด
แบบ้าน RH-CT. 2175
- 4 ห้องนอน
- 3 ห้องน้ำ
- 194 ตร.ม.

บริษัท รอแยลเฮ้าส์ จำกัด
แบบบ้าน RH-CT. 2175
- 4 ห้องนอน
- 3 ห้องน้ำ
- 1 ที่จอดรถ
- 194ตร.ม.
ดีไซน์ เป็น บ้าน COMPACT โดยเน้นพื้นที่แปลนลักษณะ COMPACT เพื่อให้ได้พื้นที่ใช้สอยที่คุ้มค่า วัสดุตกแต่งภายนอกเป็นโทนสีอ่อนและเข้ม ตกแต่งผนังแบบเรียบง่าย ด้วยการกรุไม้สังเคราะห์ และหินเทียม ภายในตัวบ้านประกอบด้วยฟังก์ชั่นที่ครบครัน ตอบโจทย์ลูกค้าในขนาดที่ดินจำกัด
ติดต่อสอบถามเพิ่มเติม
-
contact@royalhouse.co.th
0-2459-4646
สำนักงานใหญ่ 1148 ถนนนครไชยศรี เขตดุสิต, Bangkok, Thailand, Bangkok
บริษัท ดิ เอ็มเพอเร่อร์ เฮ้าส์ จำกัด
แบบ้าน Extoller
- 4 ห้องนอน
- 5 ห้องน้ำ
- 670 ตร.ม.

บริษัท ดิ เอ็มเพอเร่อร์ เฮ้าส์ จำกัด
แบบบ้าน Extoller
- 4 ห้องนอน
- 5 ห้องน้ำ
- 2 ที่จอดรถ
- 670ตร.ม.
ความสง่างามของสถาปัตยกรรมคลาสสิค ถูกนำมาผสานกับความร่วมสมัยทำให้เกิดแบบบ้านที่สวยงาม ดูภูมิฐาน เน้นรายละเอียดของงานบัวปูนปั้นโดยรอบอาคาร รวมถึงโดมที่สวยงามทำให้บ้านหลังนี้พิเศษแตกต่างจากบ้านโดยทั่วไป บ่งบอกถึงความสำเร็จและความภาคภูมิใจของผู้เป็นเจ้าของ ได้เป็นอย่างดี
ติดต่อสอบถามเพิ่มเติม
customerservice@emperorhouse.com
02-970-3080 โทรสาร 02-970-3228, 02-970-4362
288/77 Phaholyotin Rd.,Anusawaree, Bangkhen, Bangkok, Thailand, Bangkok
บริษัท ริชชี่ เฮ้าส์ จำกัด
แบบ้าน RCH-013 Manhattan
- 4 ห้องนอน
- 5 ห้องน้ำ
- 855 ตร.ม.

บริษัท ริชชี่ เฮ้าส์ จำกัด
แบบบ้าน RCH-013 Manhattan
- 4 ห้องนอน
- 5 ห้องน้ำ
- 0 ที่จอดรถ
- 855ตร.ม.
คฤหาสน์หรู 3 ชั้นสไตล์ Contemporary Classic ที่ได้รับการออกแบบให้มีพื้นที่ใช้สอยมากขึ้นด้วย การเล่นระดับภายในบ้านแบบ Split floor เพิ่มเสน่ห์และความหลากหลายของส่วนใช้สอยตั้งแต่โถงทางเข้าที่ดูโอ่อ่า หรูหรา และส่วนรับแขก ที่ได้รับการออกแบบให้เป็นแบบ Double Volume เปิดทุกมุมมองสู่ทัศนียภาพภายนอก ห้องรับประทานอาหารเชื่อมต่อกับ Counter Bar พร้อมห้องเก็บไวน์เพิ่มความมีระดับให้แก่เจ้าของบ้าน ชั้นบนพบกับห้องนอนขนาดใหญ่พร้อมห้องแต่งตัว และห้องน้ำส่วนตัวทุกห้อง ห้องพักผ่อนครอบครัว กว้างขวาง โล่ง โปร่ง รับวิวสวนสวยหน้าบ้านผ่านระเบียงใหญ่ที่เชื่อมต่อกับห้องออกกำลังกาย เพื่อให้คุณพักผ่อนได้อย่างอบอุ่น และแสนสบาย ความงามที่ลงตัวทุกพื้นที่ใช้สอยในคฤหาสน์หลังนี้ถูกสรรค์สร้างอย่างประณีตบรรจงเพื่อผู้ครอบครองที่มีระดับเช่นคุณ
ติดต่อสอบถามเพิ่มเติม
info@richiehouses.com
0-2673-7061-3
79/338 ถ.สาธุประดิษฐ์ แขวงช่องนนทรี, Yan Nawa, Thailand, Bangkok
บริษัท จีบีซี เฮ้าส์ จำกัด
แบบ้าน พิมมรกต
- 6 ห้องนอน
- 4 ห้องน้ำ
- 290 ตร.ม.

บริษัท จีบีซี เฮ้าส์ จำกัด
แบบบ้าน พิมมรกต
- 6 ห้องนอน
- 4 ห้องน้ำ
- 2 ที่จอดรถ
- 290ตร.ม.
แบบบ้าน "พิมมรกต" เป็นบ้านที่ได้รับการออกแบบในสไตล์ โมเดิร์นลักชัวรี (Modern Luxury) ซึ่งเน้นความหรูหราและความทันสมัยอย่างลงตัว สื่อถึงความสำเร็จ ความมั่งคั่ง และความสมบูรณ์แบบ โดยบ้านหลังนี้มีพื้นที่ใช้สอยถึง 290 ตารางเมตร ซึ่งกว้างขวางและตอบโจทย์ครอบครัวขนาดใหญ่หรือผู้ที่ต้องการพื้นที่สำหรับการใช้งานหลากหลายรูปแบบ ทั้งยังเป็นบ้านที่แสดงถึงรสนิยมและสถานะของเจ้าของบ้านได้อย่างชัดเจน จุดเด่นของแบบบ้านพิมมรกต 1. ดีไซน์ล้ำสมัยและหรูหรา ผสมผสานวัสดุที่มีคุณภาพสูง เช่น กระจก ผนังลายหิน และสีโทนเข้ม-สว่าง ที่ช่วยเพิ่มความสง่างามให้กับบ้าน รูปแบบการออกแบบที่เน้นเส้นสายแนวตั้ง ช่วยสร้างความรู้สึกสูงโปร่ง และเพิ่มความอลังการให้ตัวบ้าน 2. ฟังก์ชันครบครันสำหรับครอบครัวใหญ่ มีพื้นที่ส่วนกลางขนาดใหญ่สำหรับการพบปะหรือจัดกิจกรรมครอบครัว เช่น ห้องนั่งเล่น ห้องครัว ห้องรับประทานอาหาร ห้องนอนหลายห้องเหมาะสำหรับครอบครัวขยาย หรือการต้อนรับแขกที่มาพักอาศัย 3. การออกแบบเน้นความโปร่งและสว่าง ใช้กระจกขนาดใหญ่ช่วยเพิ่มแสงธรรมชาติ และเชื่อมต่อพื้นที่ภายในกับธรรมชาติภายนอก เพิ่มพื้นที่สีเขียวรอบตัวบ้านและน้ำพุบริเวณหน้าบ้าน เพื่อสร้างบรรยากาศผ่อนคลาย
ติดต่อสอบถามเพิ่มเติม
-
080-425-4100
951/13 ถนนพุทธมณฑลสาย3, Bangkok, Thailand, Bangkok
บริษัท โฟร์พัฒนา จำกัด
แบบ้าน G-224
- 4 ห้องนอน
- 4 ห้องน้ำ
- 732 ตร.ม.

บริษัท โฟร์พัฒนา จำกัด
แบบบ้าน G-224
- 4 ห้องนอน
- 4 ห้องน้ำ
- 3 ที่จอดรถ
- 732ตร.ม.
บ้านสไตล์โมเดิร์นคอนเทมโพรารี่ ดีไซน์ที่เรียบง่าย ความสวยงามที่ผสาน เท่ และ หรู บานกระจกประตูหน้าต่าง บานใหญ่ ทำให้บ้านทันสมัย จำนวน 4 ห้องนอน ฟังก์ชั่นภายใน แบ่งสัดส่วนชัดเจน เพื่อความสุขสบายในการอยู่อาศัย
ติดต่อสอบถามเพิ่มเติม
fourpattana@fourpattana.com
02-940-3789
เลขที่ 2 ซอยลาดปลาเค้า10 แขวงลาดพร้าว เขตลาดพร้าว กรุงเทพฯ 10230
บริษัท ดับบลิวเฮ้าส์ จำกัด
แบบ้าน T011
- 3 ห้องนอน
- 4 ห้องน้ำ
- 440 ตร.ม.

บริษัท ดับบลิวเฮ้าส์ จำกัด
แบบบ้าน T011
- 3 ห้องนอน
- 4 ห้องน้ำ
- 3 ที่จอดรถ
- 440ตร.ม.
แบบบ้าน 2 ชั้นในเมืองที่เน้นการใช้วัสดุตกแต่งธรรมชาติเช่นผนังกรุหินและไม้เทียม อีกทั้งมีการจัดวางพื้นที่ให้เกิดประโยชน์ใช้สอยได้มากที่สุด มีคอรด์กลางบ้านเพื่อสร้างมุมมองและทำให้บรรยากาศร่มรื่นน่าพักอาศัย
ติดต่อสอบถามเพิ่มเติม
whwhouse@yahoo.com
0-2349-7668 ถึง 72
65/6 ซอยรามอินทรา 14 แขวงท่าแร้ง เขตบางเขน กรุงเทพฯ 10230
บริษัท ดับบลิวเฮ้าส์ จำกัด
แบบ้าน NS-01
- 4 ห้องนอน
- 5 ห้องน้ำ
- 714 ตร.ม.

บริษัท ดับบลิวเฮ้าส์ จำกัด
แบบบ้าน NS-01
- 4 ห้องนอน
- 5 ห้องน้ำ
- 3 ที่จอดรถ
- 714ตร.ม.
บ้านพักอาศัย 2 ชั้น Style Modern ที่เหมาะกับพื้นที่ภายในเมืองที่มีขนาดที่ดินจำกัด การจัดวางผังอาคารที่เน้นให้เกิดประโยชน์ใช้สอยอย่างเต็มที่ การออกแบบเน้นวัสดุผนัง Concrete หรือ ผนังทำผิวขัดมัน เพื่อเน้น Style ความเป็น Modern และใช้ผนังกับระแนงไม้ ลดความแข็งของตัวอาคาร และเพิ่มความเป็นธรรมชาติมากขึ้นด้วย Green Roof โดยออกแบบอาคารให้ทุกมุมของบ้านสามารถเชื่อมต่อกับพื้นที่ส่วน Court ภายในและส่วนสระว่ายน้ำกับพื้นที่สวนสีเขียวพร้อมส่วนสันทนาการด้านนอก
ติดต่อสอบถามเพิ่มเติม
whwhouse@yahoo.com
0-2349-7668 ถึง 72
65/6 ซอยรามอินทรา 14 แขวงท่าแร้ง เขตบางเขน กรุงเทพฯ 10230
บริษัท ดิ เอ็มเพอเร่อร์ เฮ้าส์ จำกัด
แบบ้าน Promenade
- 5 ห้องนอน
- 7 ห้องน้ำ
- 1620 ตร.ม.

บริษัท ดิ เอ็มเพอเร่อร์ เฮ้าส์ จำกัด
แบบบ้าน Promenade
- 5 ห้องนอน
- 7 ห้องน้ำ
- 6 ที่จอดรถ
- 1620ตร.ม.
ความหลงไหลในรูปทรงและรายละเอียดของสถานีรถไฟหัวลำโพง ในอดีต ทำให้เกิดแรงบันดาลใจในการออกแบบบ้านที่เป็นเอกลักษณ์เฉพาะที่ไม่เหมือนใคร ด้วยรูปทรงที่สมมาตร กับมุกด้านซ้ายและขวาที่นำรายละเอียดของหัวลำโพงมาปรับให้ร่วมสมัย โถงพักผ่อนตรงกลางที่เปิดโล่งเพื่อความโปร่งแบบโรงแรมระดับห้าดาว หลังคาทรงมังซาท เข้ากับรูปแบบบ้านได้เป็นอย่างดี
ติดต่อสอบถามเพิ่มเติม
customerservice@emperorhouse.com
02-970-3080 โทรสาร 02-970-3228, 02-970-4362
288/77 Phaholyotin Rd.,Anusawaree, Bangkhen, Bangkok, Thailand, Bangkok
บริษัท ดิ เอ็มเพอเร่อร์ เฮ้าส์ จำกัด
แบบ้าน Palacio de la Polar
- 6 ห้องนอน
- 7 ห้องน้ำ
- 2784 ตร.ม.

บริษัท ดิ เอ็มเพอเร่อร์ เฮ้าส์ จำกัด
แบบบ้าน Palacio de la Polar
- 6 ห้องนอน
- 7 ห้องน้ำ
- 0 ที่จอดรถ
- 2784ตร.ม.
จากความสวยงามในงานสถาปัตยกรรมคลาสสิคในอดีต ที่มีเอกลักษณ์เฉพาะตัว ผสานกับความร่วมสมัยและเทคโนโลยี่ในปัจจุบัน ทำให้เกิดงานสถาปัตยกรรมบ้านพักอาศัยที่มีความโดดเด่นด้วยรูปแบบที่ออกแบบเป็นพิเศษสำหรับคนที่ประสบความสำเร็จเช่นคุณ ภายในประกอบด้วยโถงพักผ่อนขนาดใหญ่ที่สามารถมองผ่านชั้น 2 ไปยังโดมกลางบ้านที่มีขนาดใหญ่ สิ่งที่ทำให้บ้านหลังนี้เหนือกว่าใครคือ ห้องสำหรับห้องจัดเลี้ยงขนาดใหญ่ที่ไว้สำหรับต้อนรับแขกคนสำคัญ ซึ่งสามารถปรับเป็นห้องเอนกประสงค์ได้ ชั้นบนประกอบด้วยห้องนอนขนาดต่างๆ สำหรับทุกคนในครอบครัว และอำนวยความสะดวกด้วยลิทฟ์โดยสารขนาดเล็กสำหรับผู้ที่ไม่ต้องการเดินขึ้นลงด้วยบันได
ติดต่อสอบถามเพิ่มเติม
customerservice@emperorhouse.com
02-970-3080 โทรสาร 02-970-3228, 02-970-4362
288/77 Phaholyotin Rd.,Anusawaree, Bangkhen, Bangkok, Thailand, Bangkok
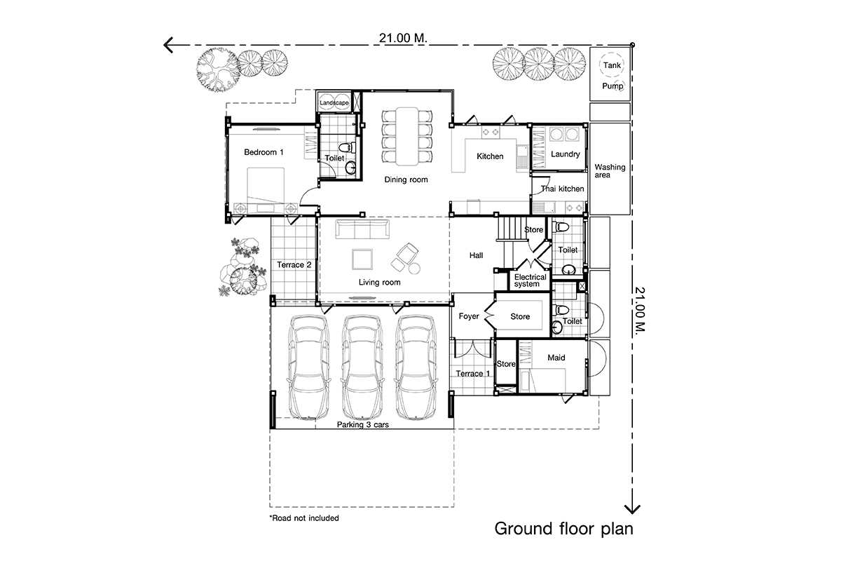
บริษัท แลนดี้ โฮม (ประเทศไทย) จำกัด
แบบ้าน Monsieur
- 5 ห้องนอน
- 6 ห้องน้ำ
- 890 ตร.ม.

บริษัท แลนดี้ โฮม (ประเทศไทย) จำกัด
แบบบ้าน Monsieur
- 5 ห้องนอน
- 6 ห้องน้ำ
- 4 ที่จอดรถ
- 890ตร.ม.
บ้านหรูสามชั้นที่ใครเห็นก็รู้สึกถึงความสุขุม เท่ แต่แฝงไปด้วยความอ่อนโยน ด้วยการออกแบบที่พิเศษและเป็นเอกลักษณ์ ดีไซน์จากเส้นโค้งรอบตัวบ้านโดดเด่นที่ทำให้รู้สึกถึงความเป็นธรรมชาติ แค่เห็นก็รู้สึกผ่อนคลาย เหมือนได้พักผ่อน จุดเด่นอยู่ที่ฟังก์ชันโซนห้องสันทนาการที่ยื่นออกมาในพื้นที่ชั้น 2 เป็นเหมือนเรือนรับรอง มีพื้นที่เชื่อมต่อกับ Main Hall จัดสังสรรค์แบบเป็นส่วนตัวได้ และไม่รบกวนพื้นที่อื่นภายในบ้าน
ติดต่อสอบถามเพิ่มเติม
cr@landymail.com
02-938-3456-7
90/2 ถนนราชพฤกษ์ แขวงบางระมาด เขตตลิ่งชัน กรุงเทพมหานคร 10170
บริษัท ลีอาร์คีเทค จำกัด
แบบ้าน BL-08 : The Majesty
- 5 ห้องนอน
- 9 ห้องน้ำ
- 1018 ตร.ม.

บริษัท ลีอาร์คีเทค จำกัด
แบบบ้าน BL-08 : The Majesty
- 5 ห้องนอน
- 9 ห้องน้ำ
- 4 ที่จอดรถ
- 1018ตร.ม.
แบบบ้านสวย ทันสมัย สไตล์ Modern-Contemporary เป็นแบบบ้าน Multifamily สำหรับผู้ต้องการสร้างบ้านสำหรับสมาชิกหลายครอบครัว ด้วยการออกแบบกลุ่มอาคารที่เชื่อมกัน ด้วยการจัดพื้นที่ใช้สอยดูเป็นหลังเดียวอย่างอบอุ่นด้วยพื้นที่ใช้สอยขนาดใหญ่ จัดวางตำแหน่งห้องได้อย่างลงตัว ส่วนพักผ่อนบริเวณสระว่ายน้ำพร้อมเฉลียงกว้างขวาง ให้ทุกคนในครอบครัวทำกิจกรรมร่วมกันได้อย่างมีความสุข ประตู-หน้าต่างอลูมิเนียมสีดำเพิ่มความทันสมัย ตอบโจทย์แบบบ้านสำหรับคนรุ่นใหม่ กระจกโถงรับแขก Double Space ดูโอ่โถง เปิดรับแสงได้เต็มที่ ช่วยประหยัดพลังงาน
ติดต่อสอบถามเพิ่มเติม
rangfun@leearchitect.co.th
0-2570-2424
59 ถนนประเสริฐมนูกิจ แขวงจรเข้บัว เขตลาดพร้าว กรุงเทพฯ 10230
บริษัท ดับบลิวเฮ้าส์ จำกัด
แบบ้าน Model M062
- 4 ห้องนอน
- 6 ห้องน้ำ
- 710 ตร.ม.

บริษัท ดับบลิวเฮ้าส์ จำกัด
แบบบ้าน Model M062
- 4 ห้องนอน
- 6 ห้องน้ำ
- 4 ที่จอดรถ
- 710ตร.ม.
บ้านสไตล์โมเดิร์น 3 ชั้น ที่รองรับระบบสมาร์ทโฮม มีความสมัยใหม่มีห้องเก็บเสียงพิเศษ เหมาะสำหรับเป็นพื้นที่สร้างความบันเทิง อาทิเช่น เล่นเกมส์ ดูหนัง ฟังเพลง ใน design modern ล้ำสมัย ไม่ซ้ำใคร การเลือกใช้โทนสีแบบโมโนโทน เช่น สีขาว สีเทาอ่อน สีเทาเข้ม รวมถึงการออกแบบที่คำนึงถึงการใช้งานได้อย่างครบครัน เน้นรูปทรงที่เรียบหรู ดูทันสมัย เน้นการจัดสเปสให้ดูกว้างขวาง โปร่งโล่ง ตอบสนองการใช้ชีวิตสมัยใหม่ ที่รองรับการทำงานในบ้านของคนรุ่นใหม่ที่รักชอบการตกแต่งบ้านที่เน้นความทันสมัย และมีพื้นที่สีเขียวเพื่อความผ่อนคลายในการใช้ชีวิตประจำวัน
ติดต่อสอบถามเพิ่มเติม
whwhouse@yahoo.com
0-2349-7668 ถึง 72
65/6 ซอยรามอินทรา 14 แขวงท่าแร้ง เขตบางเขน กรุงเทพฯ 10230
บริษัท จีบีซี เฮ้าส์ จำกัด
แบบ้าน พิมพรรณราย
- 4 ห้องนอน
- 4 ห้องน้ำ
- 253 ตร.ม.

บริษัท จีบีซี เฮ้าส์ จำกัด
แบบบ้าน พิมพรรณราย
- 4 ห้องนอน
- 4 ห้องน้ำ
- 2 ที่จอดรถ
- 253ตร.ม.
แบบบ้านพิมพรรณราย เป็นบ้านที่ออกแบบในสไตล์ คลาสสิกหรูหรา (Luxury Classic) ที่สะท้อนความสง่างามและความประณีตในทุกมิติ โดดเด่นด้วยซุ้มโค้งสูงและดีไซน์ที่เน้นเส้นสายอ่อนช้อย แต่ผสานความทันสมัยเพื่อการใช้งานที่ครบครัน เหมาะสำหรับครอบครัวที่ต้องการบ้านขนาดใหญ่ที่มอบทั้งความสะดวกสบายและความภูมิฐาน จุดเด่นของแบบบ้านพิมพรรณราย 1. ดีไซน์คลาสสิกที่สง่างาม ซุ้มโค้งแบบยุโรปช่วยเพิ่มมิติและความหรูหราให้กับบ้าน การใช้วัสดุหินธรรมชาติและสีโทนขาว-เทา สร้างความรู้สึกภูมิฐานและอบอุ่น 2. พื้นที่ใช้สอยกว้างขวางและครบครัน พื้นที่ 243 ตารางเมตร ถูกออกแบบอย่างลงตัว เพื่อรองรับความต้องการของครอบครัวขนาดใหญ่ มี 4 ห้องนอน และ 4 ห้องน้ำ เหมาะสำหรับครอบครัวที่ต้องการความสะดวกสบายและความเป็นส่วนตัวในทุกห้อง 3. ฟังก์ชันการใช้งานที่ตอบโจทย์ทุกไลฟ์สไตล์ 2 ที่จอดรถในตัวบ้าน รองรับการใช้งานจริงและเพิ่มความสะดวก พื้นที่ส่วนกลาง เช่น ห้องรับแขก ห้องนั่งเล่น และห้องรับประทานอาหาร ถูกออกแบบให้กว้างขวางและเชื่อมต่อกัน
ติดต่อสอบถามเพิ่มเติม
-
080-425-4100
951/13 ถนนพุทธมณฑลสาย3, Bangkok, Thailand, Bangkok
บริษัท โฟร์พัฒนา จำกัด
แบบ้าน P-203
- 4 ห้องนอน
- 5 ห้องน้ำ
- 427 ตร.ม.

บริษัท โฟร์พัฒนา จำกัด
แบบบ้าน P-203
- 4 ห้องนอน
- 5 ห้องน้ำ
- 2 ที่จอดรถ
- 427ตร.ม.
บ้านสองชั้นที่เน้นความเรียบง่าย สไตล์โมเดิร์นคอนเทมโพรารี่ สวยงามกลมกลืนกับธรรมชาติ ที่สำคัญคือ อยู่สบาย ฟังก์ชั่นใช้งานของแบบบ้านหลังนี้ ตอบโจทย์ผู้ที่ชื่นชอบบ้านที่โปร่งๆ โล่งๆ การไหลลื่นของพื้นที่ ที่เชื่อมต่อเนื่องกันทำให้บ้านดูกว้างขวางมากขึ้น อากาศถ่ายเท บานกระจกบานใหญ่ให้แสงธรรมชาติสาดส่องเข้ามาโดยไม่ต้องพึ่งแสงประดิษฐ์ในเวลากลางวัน
ติดต่อสอบถามเพิ่มเติม
fourpattana@fourpattana.com
02-940-3789
เลขที่ 2 ซอยลาดปลาเค้า10 แขวงลาดพร้าว เขตลาดพร้าว กรุงเทพฯ 10230
บริษัท จีบีซี เฮ้าส์ จำกัด
แบบ้าน พิมนพเก้า
- 4 ห้องนอน
- 2 ห้องน้ำ
- 251 ตร.ม.

บริษัท จีบีซี เฮ้าส์ จำกัด
แบบบ้าน พิมนพเก้า
- 4 ห้องนอน
- 2 ห้องน้ำ
- 0 ที่จอดรถ
- 251ตร.ม.
แบบบ้านพิมนพเก้า เป็นบ้านที่ออกแบบในสไตล์ โมเดิร์นลักชัวรี (Modern Luxury) โดดเด่นด้วยดีไซน์ที่ทันสมัยและสง่างาม พร้อมฟังก์ชันการใช้งานที่ครบครัน เหมาะสำหรับครอบครัวขนาดใหญ่ที่มองหาบ้านที่มอบความหรูหรา ความโปร่งโล่ง และการใช้งานที่ตอบสนองทุกความต้องการในชีวิตประจำวัน บ้านนี้สะท้อนถึงความสมบูรณ์แบบและความมีระดับของผู้อยู่อาศัย จุดเด่นของแบบบ้านพิมนพเก้า 1. ดีไซน์โมเดิร์นลักชัวรีที่ลงตัว โครงสร้างที่เน้นเส้นสายชัดเจน ใช้โทนสีเทา ขาว และวัสดุหินธรรมชาติ สร้างความรู้สึกหรูหราแต่ทันสมัย การใช้กระจกบานใหญ่ทั้งแนวตั้งและแนวนอนช่วยเพิ่มความโปร่งโล่ง รับแสงธรรมชาติอย่างเต็มที่ 2. พื้นที่ใช้สอยกว้างขวางและลงตัว พื้นที่ 251 ตารางเมตร ตอบโจทย์ครอบครัวขนาดใหญ่ ด้วย 5 ห้องนอน และ 4 ห้องน้ำ ที่ออกแบบเพื่อความสะดวกสบายของสมาชิกในครอบครัว มีพื้นที่ส่วนกลางที่กว้างขวาง เช่น ห้องนั่งเล่น ห้องรับประทานอาหาร และโถงสูง (Double Volume) ที่เพิ่มความโอ่โถงให้กับบ้าน 3. ฟังก์ชันการใช้งานที่ตอบโจทย์ทุกไลฟ์สไตล์ ห้องนอนชั้นล่างที่เหมาะสำหรับผู้สูงอายุหรือแขกที่มาเยี่ยม การจัดพื้นที่ภายในแบบเปิดโล่ง (Open Plan) ช่วยให้การใช้งานเชื่อมโยงกันได้อย่างสะดวก มีระเบียงที่ออกแบบให้เชื่อมต่อกับพื้นที่สีเขียวภายนอก เพิ่มความสดชื่นให้กับบ้าน
ติดต่อสอบถามเพิ่มเติม
-
080-425-4100
951/13 ถนนพุทธมณฑลสาย3, Bangkok, Thailand, Bangkok
บริษัท โฟร์พัฒนา จำกัด
แบบ้าน G-307
- 6 ห้องนอน
- 3 ห้องน้ำ
- 533 ตร.ม.

บริษัท โฟร์พัฒนา จำกัด
แบบบ้าน G-307
- 6 ห้องนอน
- 3 ห้องน้ำ
- 3 ที่จอดรถ
- 533ตร.ม.
บ้าน 3 ชั้น อยู่สบายด้วยฟังก์ชั่นภายในที่ลงตัว ตอบโจทย์การใช้งานและ รองรับการทำกิจกรรมที่หลากหลาย เหมาะกับการปลูกสร้างในเมืองที่ที่ดินมีขนาดจำกัด รูปลักษณ์ภายนอกทันสมัย เรียบง่าย เสริมความโดดเด่นด้วยระแนงบังตาที่เป็นทั้งวัสดุตกแต่ง ช่วยอำพรางสายตาจากภายนอก และกันแดดได้ในเวลาเดียวกัน
ติดต่อสอบถามเพิ่มเติม
fourpattana@fourpattana.com
02-940-3789
เลขที่ 2 ซอยลาดปลาเค้า10 แขวงลาดพร้าว เขตลาดพร้าว กรุงเทพฯ 10230
บริษัท โฟร์พัฒนา จำกัด
แบบ้าน P-202
- 5 ห้องนอน
- 5 ห้องน้ำ
- 452 ตร.ม.

บริษัท โฟร์พัฒนา จำกัด
แบบบ้าน P-202
- 5 ห้องนอน
- 5 ห้องน้ำ
- 2 ที่จอดรถ
- 452ตร.ม.
แบบบ้านสองชั้น สไตล์ MODERN CONTEMPORARY เส้นสายของตัวอาคารทำให้บ้านดูแข็งแรง และมีความโมเดิร์น ผนังกระจก หน้าต่างกว้างสูง ทำให้บ้านดูโปร่ง พื้นที่ใช้สอยภายในกว้าง เล่นระดับแบ่งโซนพื้นที่อย่างชัดเจน อยู่สบายในทุกพื้นที่ของบ้าน 5 ห้องนอน, 6 ห้องน้ำ มีห้องนอนล่าง
ติดต่อสอบถามเพิ่มเติม
fourpattana@fourpattana.com
02-940-3789
เลขที่ 2 ซอยลาดปลาเค้า10 แขวงลาดพร้าว เขตลาดพร้าว กรุงเทพฯ 10230
บริษัท ลีอาร์คีเทค จำกัด
แบบ้าน OR-11
- 5 ห้องนอน
- 7 ห้องน้ำ
- 417 ตร.ม.

บริษัท ลีอาร์คีเทค จำกัด
แบบบ้าน OR-11
- 5 ห้องนอน
- 7 ห้องน้ำ
- 0 ที่จอดรถ
- 417ตร.ม.
บ้านสไตล์คอนเทมโพลารีผสมผสานระหว่างความคลาสสิก โดดเด่นมีเอกลักษณ์ และหรูหรานำสมัย ผนังชั้นบนเป็นกระจกใสทรงสูงรับแสงธรรมชาติ ช่วยลดการเปิดไฟในเวลากลางวัน และกระจายแสงให้บริเวณชั้นล่างด้วยโถงบันไดที่เปิดโล่งตลอดทั้ง 2 ชั้น ให้ความรู้สึกโปร่งสบาย แต่ยังคงไว้ซึ่งความเป็นส่วนตัวของผู้อาศัย ให้อรรถรสความผ่อนคลายด้วยสวนหลังบ้าน บ่อน้ำ และเฉลียงพักผ่อน
ติดต่อสอบถามเพิ่มเติม
rangfun@leearchitect.co.th
0-2570-2424
59 ถนนประเสริฐมนูกิจ แขวงจรเข้บัว เขตลาดพร้าว กรุงเทพฯ 10230
บริษัท เอส ซี แกรนด์ จำกัด
แบบ้าน THE GRACE 326
- 5 ห้องนอน
- 4 ห้องน้ำ
- 326 ตร.ม.

บริษัท เอส ซี แกรนด์ จำกัด
แบบบ้าน THE GRACE 326
- 5 ห้องนอน
- 4 ห้องน้ำ
- 2 ที่จอดรถ
- 326ตร.ม.
ตัวบ้านถูกออกแบบในสไตล์ Modern Contemporary ที่ให้ความเรียบหรู ดูทันสมัย บวกกับลักษณะของเส้นสายกรอบสี่เหลี่ยมด้านหน้าที่ช่วยสร้างเอกลักษณ์ให้บ้านหลังนี้ดูโมเดิร์นมากยิ่งขึ้น และในส่วนของหลังคาจะเป็นหลังคาแบบ Lean to
ติดต่อสอบถามเพิ่มเติม
info@scgrand.co.th
02-066-6663
751, 753 ถ.เพชรเกษม แขวงบางหว้า เขตภาษีเจริญ กรุงเทพฯ 10160
บริษัท มีนบุรีรักสร้างบ้าน จำกัด
แบบ้าน MP-3
- 3 ห้องนอน
- 3 ห้องน้ำ
- 243 ตร.ม.

บริษัท มีนบุรีรักสร้างบ้าน จำกัด
แบบบ้าน MP-3
- 3 ห้องนอน
- 3 ห้องน้ำ
- 2 ที่จอดรถ
- 243ตร.ม.
บ้านโปร่งโล่งสบายด้วยช่องแสงประตูหน้าต่าง ที่ถูกจัดตำแหน่งอย่างลงตัว และจัดวางรูปห้องที่สมบูรณ์
ติดต่อสอบถามเพิ่มเติม
-
Meanbureruk
Hug.mean38@gmail.com
034-271-203
ถนน เทศา, Nakhon Pathom, Thailand, Nakhon Pathom
บริษัท บิวท์ ทู บิวด์ จำกัด
แบบ้าน EMPEROR
- 5 ห้องนอน
- 6 ห้องน้ำ
- 641 ตร.ม.

บริษัท บิวท์ ทู บิวด์ จำกัด
แบบบ้าน EMPEROR
- 5 ห้องนอน
- 6 ห้องน้ำ
- 4 ที่จอดรถ
- 641ตร.ม.
แบบบ้าน 2 ชั้น รูปลักษณ์ทันสมัยสไตล์โมเดิรน์ ที่รังสรรค์ขึ้นเพื่อการใช้ชีวิตอย่างโดดเด่นมี สไตล์ หรูหรา พร้อมเติมเต็มความอบอุ่นของการอยู่อาศัยอย่างพิถีพิถันในการกำหนดฟังก์ชั่น การใช้งานที่คุ้มค่าในทุกพื้นที่ และยังสรรจัดทุกพื้นที่ไว้อย่างเป้นสัดส่วน เพื่อสอดรับกับ กับไลฟ์สไตล์ในยุคปัจจุบันได้อย่างสมบูรณ์แบบ นับเป็นการเติมเต็มความสุขในการอยู่ อาศัยได้อย่างหลากหลายตามต้องการ
ติดต่อสอบถามเพิ่มเติม
btbbuilt@gmail.com
02-721-3999
8 ซอย อ่อนนุช 46 ถนน อ่อนนุช แขวง สวนหลวง เขต สวนหลวง, Bangkok, Thailand, Bangko
บริษัท มีนบุรีรักสร้างบ้าน จำกัด
แบบ้าน MP-1
- 3 ห้องนอน
- 2 ห้องน้ำ
- 139 ตร.ม.

บริษัท มีนบุรีรักสร้างบ้าน จำกัด
แบบบ้าน MP-1
- 3 ห้องนอน
- 2 ห้องน้ำ
- 1 ที่จอดรถ
- 139ตร.ม.
เรียบง่าย สง่างาม บ้านทรงหน้ากว้าง จัดพื้นที่ใช้สอยเป็นสัดส่วนอย่างลงตัว
ติดต่อสอบถามเพิ่มเติม
-
Meanbureruk
Hug.mean38@gmail.com
034-271-203
ถนน เทศา, Nakhon Pathom, Thailand, Nakhon Pathom
บริษัท ดิ เอ็มเพอเร่อร์ เฮ้าส์ จำกัด
แบบ้าน Precious of the Dragon
- 5 ห้องนอน
- 6 ห้องน้ำ
- 1818 ตร.ม.

บริษัท ดิ เอ็มเพอเร่อร์ เฮ้าส์ จำกัด
แบบบ้าน Precious of the Dragon
- 5 ห้องนอน
- 6 ห้องน้ำ
- 3 ที่จอดรถ
- 1818ตร.ม.
ด้วยการผสมผสานระหว่างความร่วมสมัยกับรูปแบบบ้านจีนที่มีเอกลักษณ์เฉพาะตัว ทำให้เกิดงานสถาปัตยกรรมบ้านพักอาศัยที่มีรูปแบบไม่เหมือนใคร ตั้งแต่โถงซุ้มประตูทางเข้า(Moon gate) ที่คอยต้อนรับเจ้าของบ้านหรือแขกที่มาเยื่อนอย่างเด่นสง่า เชื่อมต่อด้วยเฉลียงทางเดินด้านหน้า ที่กว้างและยาวต่อเนื่องกัน นำไปสู่โถงทางเข้าบ้าน ภายในมีห้องนอนชั้นล่างที่เหมาะสำหรับรับรองแขกหรือผู้สูงอายุ และห้องออกกำลังกายขนาดใหญ่ที่สามารถมองไปที่สระว่ายน้ำส่วนตัวได้อย่างสะดวก ในส่วนของห้องนอนชั้นบน ยังประกอบด้วยส่วนแต่งตัว และห้องน้ำส่วนตัวทุกห้อง สำหรับห้องนอนใหญ่ เน้นความโล่ง และพิเศษด้วยห้อง Emperor Room ที่เป็นห้องเอนกประสงค์ที่เจ้าของบ้านสามารถปรับเปลี่ยนได้ตามต้องการ ส่วนบริการแยกออกจากตัวบ้านใหญ่เพื่อให้เกิดความเป็นสัดส่วน
ติดต่อสอบถามเพิ่มเติม
customerservice@emperorhouse.com
02-970-3080 โทรสาร 02-970-3228, 02-970-4362
288/77 Phaholyotin Rd.,Anusawaree, Bangkhen, Bangkok, Thailand, Bangkok
บริษัท ไวส์ บิวเดอร์ จำกัด
แบบ้าน The Prestige
- 4 ห้องนอน
- 6 ห้องน้ำ
- 485 ตร.ม.

บริษัท ไวส์ บิวเดอร์ จำกัด
แบบบ้าน The Prestige
- 4 ห้องนอน
- 6 ห้องน้ำ
- 3 ที่จอดรถ
- 485ตร.ม.
บ้านที่ผสมผสานรูปแบบการทำงานในปัจจุบันได้อย่างลงตัวเหมาะสำหรับผู้บริหารหรือเจ้าของธุรกิจที่ต้องการส่วนทำงานภายในบ้านให้คุณจัดสรรเวลาของการทำงานและชีวิตส่วนตัวได้อย่างลงตัวบนพื้นที่ใช้สอยอันคุ้มค่า
ติดต่อสอบถามเพิ่มเติม
-
-
admin_wb@wisebuilder.co.th
02-574-5616, 099-857-1132
99/33 ซอยแจ้งวัฒนะ 13 ทุ่งสองห้อง หลักสี่, Bangkok, Thailand, Bangkok
บริษัท มีนบุรีรักสร้างบ้าน จำกัด
แบบ้าน Eco-4
- 2 ห้องนอน
- 2 ห้องน้ำ
- 184 ตร.ม.

บริษัท มีนบุรีรักสร้างบ้าน จำกัด
แบบบ้าน Eco-4
- 2 ห้องนอน
- 2 ห้องน้ำ
- 1 ที่จอดรถ
- 184ตร.ม.
องค์ประกอบพื้นที่ใช้สอยสมบูรณ์แบบ รูปทรงสวยงาม คุ้มค่า คุ้มราคาทุกตารางเมตร
ติดต่อสอบถามเพิ่มเติม
-
Meanbureruk
Hug.mean38@gmail.com
034-271-203
ถนน เทศา, Nakhon Pathom, Thailand, Nakhon Pathom
บริษัท มีนบุรีรักสร้างบ้าน จำกัด
แบบ้าน Eco-1
- 3 ห้องนอน
- 2 ห้องน้ำ
- 141 ตร.ม.

บริษัท มีนบุรีรักสร้างบ้าน จำกัด
แบบบ้าน Eco-1
- 3 ห้องนอน
- 2 ห้องน้ำ
- 1 ที่จอดรถ
- 141ตร.ม.
บ้านหลังเล็ก สร้างบนที่ดินขนาดเล็ก ในราคาที่เหมาะสมกับพื้นที่ใช้สอยที่ครบครัน
ติดต่อสอบถามเพิ่มเติม
-
Meanbureruk
Hug.mean38@gmail.com
034-271-203
ถนน เทศา, Nakhon Pathom, Thailand, Nakhon Pathom
บริษัท ดับบลิวเฮ้าส์ จำกัด
แบบ้าน M-039
- 5 ห้องนอน
- 7 ห้องน้ำ
- 864.05 ตร.ม.

บริษัท ดับบลิวเฮ้าส์ จำกัด
แบบบ้าน M-039
- 5 ห้องนอน
- 7 ห้องน้ำ
- 5 ที่จอดรถ
- 864.05ตร.ม.
เอกลักษณ์หรือจุดเด่นของบ้าน คือ เป็นบ้านแบบ Modern ที่เน้นพื้นที่กิจกรรมและความสงบ บ้านที่เน้นพื้นที่กิจกรรมและความสงบคือ เป็นบ้านที่รองรับครอบครัวใหญ่ที่มีสมาชิกในบ้านหลากหลายวัยโดยพื้นที่ในบ้านจะจัดเป็นสองส่วนหลักๆ คือ พื้นที่ชั้น1เช่น พื้นที่ห้องนั่งเล่นขนาดใหญ่ ห้องทานข้าว ระเบียงภายนอกซึ่งแต่ละพื้นที่เชื่อมต่อเข้าหาถึงกันได้หมด (Open space) พื้นที่ชั้น2 เช่น ห้องนั่งเล่นครอบครัว ห้องฟิตเนส และห้องนอน เชื่อมพื้นที่นั่งเล่นของสองชั้น ด้วยบันไดรูปแบบพิเศษที่ให้ความรู้สึกแบบบ้านสมัยใหม่ ผสมผสานกับการเลือกใช้วัสดุตกแต่งแบเรียบง่ายและหรู การตกแต่งสวนหินภายในบ้าน และภายนอก ทำให้รู้สึกถึงความเงียบสงบ เวลามองแล้วรู้สึกเย็นใจ การเลือกใช้วัสดุรูปแบบใหม่ๆ มาใช้ผสมผสานกับโครงสร้างเรขาคณิตของสไตล์ Modern โดยจะแยกออกเป็นสองส่วน คือภายในและภายนอก ส่วนของภายในจะเป็นวัสดุธรรมชาติเพื่อให้ได้ความรู้สึกอบอุ่นเป็นบ้านที่ผ่อนคลาย ส่วนภายนอกจะเน้นวัสดุสังเคราะห์ที่ยังให้ความรู้สึกเป็นธรรมชาติ เช่น ไม้เทียม กระเบื้องลายหิน หินทียม เพื่อเน้นการดูแลรักษาที่ง่ายในระยะยาวนั่นเอง ทั้งหมดนี้ทำให้บ้านหลังนี้เป็น "คำตอบ" ให้กับคนที่ต้องการบ้านสไตล์โมเดินขนาดใหญ่
ติดต่อสอบถามเพิ่มเติม
whwhouse@yahoo.com
0-2349-7668 ถึง 72
65/6 ซอยรามอินทรา 14 แขวงท่าแร้ง เขตบางเขน กรุงเทพฯ 10230
บริษัท เอส ซี แกรนด์ จำกัด
แบบ้าน THE GRACE 324
- 5 ห้องนอน
- 4 ห้องน้ำ
- 324 ตร.ม.

บริษัท เอส ซี แกรนด์ จำกัด
แบบบ้าน THE GRACE 324
- 5 ห้องนอน
- 4 ห้องน้ำ
- 2 ที่จอดรถ
- 324ตร.ม.
ตัวบ้านถูกออกแบบในสไตล์ Modern Contemporary ที่ให้ความเรียบหรู ดูทันสมัย บวกกับลักษณะของเส้นสายกรอบสี่เหลี่ยมด้านหน้าที่ช่วยสร้างเอกลักษณ์ให้บ้านหลังนี้ดูโมเดิร์นมากยิ่งขึ้น และในส่วนของหลังคาจะเป็นหลังคาแบบ Lean to
ติดต่อสอบถามเพิ่มเติม
info@scgrand.co.th
02-066-6663
751, 753 ถ.เพชรเกษม แขวงบางหว้า เขตภาษีเจริญ กรุงเทพฯ 10160
บริษัท ดิ เอ็มเพอเร่อร์ เฮ้าส์ จำกัด
แบบ้าน Prime
- 8 ห้องนอน
- 11 ห้องน้ำ
- 2000 ตร.ม.

บริษัท ดิ เอ็มเพอเร่อร์ เฮ้าส์ จำกัด
แบบบ้าน Prime
- 8 ห้องนอน
- 11 ห้องน้ำ
- 0 ที่จอดรถ
- 2000ตร.ม.
บ้าน 3 ชั้น ในสไตล์รูปแบบ Art Deco ที่มีความทันสมัย เรียบหรู สง่างามอย่างมีรสนิยม รูปแบบของบ้านเหมาะสมสำหรับครอบครัวใหญ่ที่ตอบโจทย์การใช้งานของผู้อยู่อาศัยทุกเพศ ทุกวัย ภายในตัวบ้าน ส่วนของห้อง Master ถูกออกแบบให้เป็นรูปแบบ Home in Home ที่มีฟังก์ชั่นการใช้งานอยู่ภายในอย่างครบครัน เช่น ส่วนเตรียมอาหารและทานอาหาร, ห้องนั่งเล่นที่มีโถงโล่งโปร่ง Double Space และ 2 ห้องนอน ในส่วนของชั้น 3 ประกอบไปด้วยบริเวณเพื่อการพักผ่อนเช่นห้องโฮมเธียร์เตอร์, ห้องฟิตเนส, ห้องโยคะ และมินิบาร์
ติดต่อสอบถามเพิ่มเติม
customerservice@emperorhouse.com
02-970-3080 โทรสาร 02-970-3228, 02-970-4362
288/77 Phaholyotin Rd.,Anusawaree, Bangkhen, Bangkok, Thailand, Bangkok
บริษัท เอส ซี แกรนด์ จำกัด
แบบ้าน THE HAVEN 292
- 4 ห้องนอน
- 4 ห้องน้ำ
- 292 ตร.ม.

บริษัท เอส ซี แกรนด์ จำกัด
แบบบ้าน THE HAVEN 292
- 4 ห้องนอน
- 4 ห้องน้ำ
- 2 ที่จอดรถ
- 292ตร.ม.
ตัวบ้านถูกออกแบบในสไตล์ Modern Contemporary ที่ให้ความเรียบหรู ดูทันสมัย บวกกับลักษณะของเส้นสายกรอบสี่เหลี่ยมด้านหน้าที่ช่วยสร้างเอกลักษณ์ให้บ้านหลังนี้ดูโมเดิร์นมากยิ่งขึ้น อีกทั้งบ้านหลังนี้ยังมีระแนงด้านหน้าที่ช่วยป้องกันแสงแดดและพรางสายตาของคนภายนอกได้เป็นอย่างดีซึ่งจะช่วยสร้างความเป็นส่วนตัว ในส่วนของหลังคาจะเป็นหลังคา Lean to ความพิเศษของบ้านหลังนี้คือเป็นบ้านสามชั้นที่สามารถปรับเปลี่ยนฟังก์ชันการใช้งานให้เป็น Home office ได้
ติดต่อสอบถามเพิ่มเติม
info@scgrand.co.th
02-066-6663
751, 753 ถ.เพชรเกษม แขวงบางหว้า เขตภาษีเจริญ กรุงเทพฯ 10160
บริษัท ลีอาร์คีเทค จำกัด
แบบ้าน PLANAR
- 4 ห้องนอน
- 7 ห้องน้ำ
- 400 ตร.ม.

บริษัท ลีอาร์คีเทค จำกัด
แบบบ้าน PLANAR
- 4 ห้องนอน
- 7 ห้องน้ำ
- 0 ที่จอดรถ
- 400ตร.ม.
แบบบ้าน 3 ชั้นสไตล์ Modern-Contemporary รูปแบบบ้านมีเอกลักษณ์ โดดเด่นด้วยจังหวะของเส้นสายอาคารแนวตั้งและแนวนอน ผสมผสานกับระแนงบังตาด้านหน้า และอลูมิเนียมสีดำช่วยเพิ่มความทันสมัยให้ตัวบ้าน กระจกบานใหญ่เพิ่มแสงสว่างภายในบ้าน ช่วยประหยัดพลังงาน ให้ความรู้สึกโปร่งโล่ง สบาย ด้วยการจัดพื้นที่ใช้สอยอย่างลงตัวให้น่าอยู่ทุกชั้น เหมาะสำหรับครอบครัวขนาดกลางถึงใหญ่ หรือผู้ที่ต้องการสร้างบ้านรองรับผู้สูงอายุในอนาคต
ติดต่อสอบถามเพิ่มเติม
rangfun@leearchitect.co.th
0-2570-2424
59 ถนนประเสริฐมนูกิจ แขวงจรเข้บัว เขตลาดพร้าว กรุงเทพฯ 10230
บริษัท รอแยลเฮ้าส์ จำกัด
แบบ้าน RH-CT.2179
- 4 ห้องนอน
- 5 ห้องน้ำ
- 390 ตร.ม.

บริษัท รอแยลเฮ้าส์ จำกัด
แบบบ้าน RH-CT.2179
- 4 ห้องนอน
- 5 ห้องน้ำ
- 1 ที่จอดรถ
- 390ตร.ม.
บ้านสไตล์คอนเทมโพรารี่ (Contemporany) หรือบ้านสไตล์ร่วมสมัยเป็นแบบบ้านที่กำลังเป็นที่นิยมตามยุคสมัยในช่วงเวลานั้นๆ บ้านสไตล์นี้จะเรียบง่ายสบายตา นิยมใช้สิโ ทน ธรรมชาติ สามารถประยุกต์ได้กับบ้านประเภทอื่นๆ ไม่เป็นไปตามกาลเวลา ไม่มีข้อจำกัด จึงทำให้เป็นแบบบ้านที่ได้รับความนิยมมากๆ เหมาะกับเจ้าของบ้านที่นิยมความเรียบง่าย
ติดต่อสอบถามเพิ่มเติม
-
contact@royalhouse.co.th
0-2459-4646
สำนักงานใหญ่ 1148 ถนนนครไชยศรี เขตดุสิต, Bangkok, Thailand, Bangkok