ความลงตัวของดีไซน์และฟังก์ชัน...ในบ้านของคุณ
เพื่อให้บ้านของคุณเป็นมากกว่าที่อยู่อาศัย แต่เป็นพื้นที่แห่งความสุขและความภาคภูมิใจ
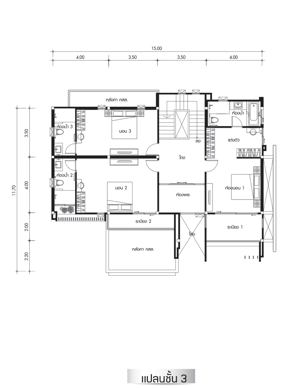
บริษัท มีนบุรีรักสร้างบ้าน จำกัด
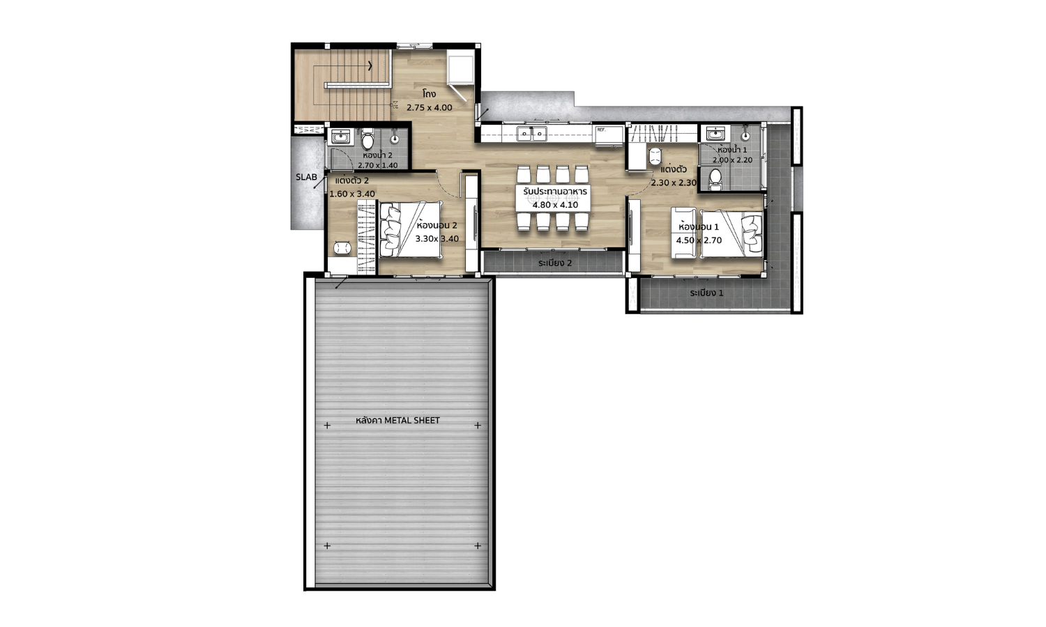
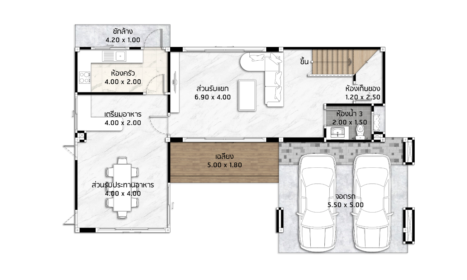
แบบ้าน MG Grand 6
- 3 ห้องนอน
- 4 ห้องน้ำ
- 420 ตร.ม.

บริษัท มีนบุรีรักสร้างบ้าน จำกัด
แบบบ้าน MG Grand 6
- 3 ห้องนอน
- 4 ห้องน้ำ
- 2 ที่จอดรถ
- 420ตร.ม.
ออกแบบให้ทุกพื้นที่ใช้สอย สามารถมองเห็นสวนกลางบ้านได้ สร้างความรู้สึกผ่อนคลาย ร่มเย็น และมีการจัดวางพื้นที่ให้เชื่อมต่อเนื่องกัน สร้างความรู้สึกโล่ง โปร่งสบาย
ติดต่อสอบถามเพิ่มเติม
-
Meanbureruk
Hug.mean38@gmail.com
034-271-203
ถนน เทศา, Nakhon Pathom, Thailand, Nakhon Pathom
บริษัท ดับบลิวเฮ้าส์ จำกัด
แบบ้าน NS-01
- 4 ห้องนอน
- 5 ห้องน้ำ
- 714 ตร.ม.

บริษัท ดับบลิวเฮ้าส์ จำกัด
แบบบ้าน NS-01
- 4 ห้องนอน
- 5 ห้องน้ำ
- 3 ที่จอดรถ
- 714ตร.ม.
บ้านพักอาศัย 2 ชั้น Style Modern ที่เหมาะกับพื้นที่ภายในเมืองที่มีขนาดที่ดินจำกัด การจัดวางผังอาคารที่เน้นให้เกิดประโยชน์ใช้สอยอย่างเต็มที่ การออกแบบเน้นวัสดุผนัง Concrete หรือ ผนังทำผิวขัดมัน เพื่อเน้น Style ความเป็น Modern และใช้ผนังกับระแนงไม้ ลดความแข็งของตัวอาคาร และเพิ่มความเป็นธรรมชาติมากขึ้นด้วย Green Roof โดยออกแบบอาคารให้ทุกมุมของบ้านสามารถเชื่อมต่อกับพื้นที่ส่วน Court ภายในและส่วนสระว่ายน้ำกับพื้นที่สวนสีเขียวพร้อมส่วนสันทนาการด้านนอก
ติดต่อสอบถามเพิ่มเติม
whwhouse@yahoo.com
0-2349-7668 ถึง 72
65/6 ซอยรามอินทรา 14 แขวงท่าแร้ง เขตบางเขน กรุงเทพฯ 10230
บริษัท บิวท์ ทู บิวด์ จำกัด
แบบ้าน TOMU
- 4 ห้องนอน
- 6 ห้องน้ำ
- 1400 ตร.ม.

บริษัท บิวท์ ทู บิวด์ จำกัด
แบบบ้าน TOMU
- 4 ห้องนอน
- 6 ห้องน้ำ
- 4 ที่จอดรถ
- 1400ตร.ม.
แบบบ้าน 2 ชั้น สไตล์ modern contemporary japanese-zen แนวคิดและวัฒนธรรมของชาวญี่ปุ่นได้หลั่งไหลเข้ามาในสังคมไทย ผ่านทางเครื่องใช้อุปโภค บริโภคจนกลายเป็นความสนใจของคนรุ่นใหม่ในปัจจุบัน บ้านหลังนี้จึงถูกออกแบบมาเพื่อกระตุ้น REACTIVE SENCE EXPERIENCE ให้เกิดเป็นรูปธรรม ผ่านฟังก์ชั่นการใช้งานตั้งแต่ก้าวเท้าเข้ามาในบ้าน โดยการนำไลฟ์สไตล์ กลิ่นอายของญี่ปุ่นมาผสมผสานในการออกแบบและจัดฟังก์ชันภายในไว้อย่างน่าสนใจ อาทิ การออกแบบให้มี Japanese Foyer แบบลดระดับที่มี Double volume มีห้อง Powder room สำหรับจัดเก็บ Accessory ทั้งตอนเข้าและออกจากบ้าน ฯลฯ และที่สำคัญบ้านหลังนี้ยังคงเน้นตอบโจทย์การใช้งานได้อย่างหลากหลายรูปแบบการใช้ชีวิต และหลากหลายกิจกรรม โดยแบ่งพื้นที่ของการพักผ่อน การออกกำลังกาย ตลอดจนช่วงเวลาของการ Party ไว้แบบไม่มีตกหล่นภายในบ้านหลังเดียว
ติดต่อสอบถามเพิ่มเติม
btbbuilt@gmail.com
02-721-3999
8 ซอย อ่อนนุช 46 ถนน อ่อนนุช แขวง สวนหลวง เขต สวนหลวง, Bangkok, Thailand, Bangko
บริษัท บ้านมหานคร จำกัด
แบบ้าน Model : GOLDIE
- 3 ห้องนอน
- 4 ห้องน้ำ
- 500 ตร.ม.

บริษัท บ้านมหานคร จำกัด
แบบบ้าน Model : GOLDIE
- 3 ห้องนอน
- 4 ห้องน้ำ
- 4 ที่จอดรถ
- 500ตร.ม.
แบบบ้านสไตล์โมเดิร์น มินิมอล การตกแต่งภายนอก จะเน้นสีโมโนโทนหรือสีอ่อนๆ เพื่อให้รู้สึกถึงความเรียบง่าย ผสมผสานกับสีเอิร์ธโทน เช่นสีน้ำตาล เพื่อสะท้อนความรู้สึกอบอุ่น ผ่อนคลาย และสงบ สร้างบรรยากาศดูเรียบง่าย ภายในแบ่งสัดส่วนกันอย่างลงตัว ทำให้ดูสบายตา ตอบโจทย์ Life Style ของคนรุ่นใหม่ ที่สะท้อนถึงความเรียบหรูอย่างมีระดับ
ติดต่อสอบถามเพิ่มเติม
bnkgroup_2023@hotmail.com
095-369-9584
เลขที่ 1/1 ซอย เคหะร่มเกล้า 74 แยก 4 แขวง ราษฎร์พัฒนา เขต สะพานสูง จังหวัด กรุงเทพมหานคร รหัสไปรษณีย์ 10240
บริษัท โฟร์พัฒนา จำกัด
แบบ้าน P-212
- 4 ห้องนอน
- 5 ห้องน้ำ
- 505 ตร.ม.

บริษัท โฟร์พัฒนา จำกัด
แบบบ้าน P-212
- 4 ห้องนอน
- 5 ห้องน้ำ
- 2 ที่จอดรถ
- 505ตร.ม.
บ้านสไตล์โมเดิร์นคลาสสิก ดีไซน์ที่ดูวิจิตรบรรจง มีเอกลักษณ์ที่หรูหรา เป็นบ้านมี พื้นที่ใช้สอยมากถึง 505 ตารางเมตร ฟังก์ชั่นใช้สอยครบครัน ภายในชั้นล่างโออ่า ส่วนโถงด้านหน้า โล่งถึงชั้นบน ห้องรับแขก ห้องพักผ่อน แยกพื้นที่เป็นสัดส่วน ห้อง ทำงานที่สามารถปรับเป็นห้องนอนล่างได้ ชั้นมี 4 ห้องนอน พร้อมพื้นที่พักผ่อน ส่วนกลางที่โปร่ง สบาย
ติดต่อสอบถามเพิ่มเติม
fourpattana@fourpattana.com
02-940-3789
เลขที่ 2 ซอยลาดปลาเค้า10 แขวงลาดพร้าว เขตลาดพร้าว กรุงเทพฯ 10230
บริษัท แลนดี้ โฮม (ประเทศไทย)
แบบ้าน Queens Park
- 5 ห้องนอน
- 6 ห้องน้ำ
- 564 ตร.ม.

บริษัท แลนดี้ โฮม (ประเทศไทย)
แบบบ้าน Queens Park
- 5 ห้องนอน
- 6 ห้องน้ำ
- 4 ที่จอดรถ
- 564ตร.ม.
แบบบ้านมาตรฐาน Queens Park บ้านสไตล์ Modern Classic ที่กำลังนิยมเป็นอย่างมาก ✨ เพราะสไตล์ที่ดูเรียบง่ายสะท้อนความหรูหรา ทันสมัย ทำให้น่าอยู่อาศัย ทั้งการออกแบบการวางแปลนบ้าน มีการประยุกต์ความทันสมัยและความเก่าแก่มาผสมผสาน การเลือกใช้วัสดุต่าง ๆ ที่มีคุณภาพสั่งตรงจากโรงงานผู้ผลิตโดยตรง มั่นใจได้ว่าบ้านที่มีคุณภาพและสวยงามอย่างแน่นอน
ติดต่อสอบถามเพิ่มเติม
-
cr@landymail.com
02-938-3456-7
เลขที่ 1 อาคารเก้าพูลทรัพย์ ชั้น 3,8 ซอยลาดพร้าว 19 ถนนลาดพร้าว แขวงจอมพล เขตจตุจักร กทม. 10900
บริษัท ซีคอน จำกัด
แบบ้าน Greenery 970
- 3 ห้องนอน
- 4 ห้องน้ำ
- 970 ตร.ม.

บริษัท ซีคอน จำกัด
แบบบ้าน Greenery 970
- 3 ห้องนอน
- 4 ห้องน้ำ
- 5 ที่จอดรถ
- 970ตร.ม.
เป็นบ้าน 2 ชั้น style อังกฤษ ดูหรูหราการตกแต่งด้วยบัวและวัสดุกรุผนัง ทําให้บ้านดูโดดเด่น เน้นความเป็นตะวันตก พื้นที่รับแขกโล่งโปร่งต่อเนื่องไปถึงพื้นที่ทานอาหารหลังบ้าน ทําให้ดูกว้างขวาง ห้องนอนทุกห้องมาพร้อมห้องน้ำในตัว พื้นที่พักผ่อนชั้นบน กว้างขวาง เชื่อมต่อกับมุก (ระเบียง) นั่งเล่นภายนอก ทําให้บ้านดูน่าสนใจมากขึ้น
ติดต่อสอบถามเพิ่มเติม
info@seacon.co.th
1391
107-115 ถนนสี่พระยา บางรัก กรุงเทพฯ 10500
บริษัท แลนดี้ โฮม (ประเทศไทย) จำกัด
แบบ้าน London
- 5 ห้องนอน
- 6 ห้องน้ำ
- 597 ตร.ม.

บริษัท แลนดี้ โฮม (ประเทศไทย) จำกัด
แบบบ้าน London
- 5 ห้องนอน
- 6 ห้องน้ำ
- 4 ที่จอดรถ
- 597ตร.ม.
London แบบบ้านสไตล์ Modern Classic ที่มาพร้อมกับฟังก์ชั่นเพื่อครอบครัวใหญ่
ติดต่อสอบถามเพิ่มเติม
cr@landymail.com
02-938-3456-7
90/2 ถนนราชพฤกษ์ แขวงบางระมาด เขตตลิ่งชัน กรุงเทพมหานคร 10170
บริษัท รอแยลเฮ้าส์ จำกัด
แบบ้าน RH-MD. 2168
- 4 ห้องนอน
- 5 ห้องน้ำ
- 292 ตร.ม.

บริษัท รอแยลเฮ้าส์ จำกัด
แบบบ้าน RH-MD. 2168
- 4 ห้องนอน
- 5 ห้องน้ำ
- 2 ที่จอดรถ
- 292ตร.ม.
ดีไซน์ เป็น บ้านหน้าแคบ นำลักษณะอาคารแนว MODERN LOFT มาใช้ในการออกแบบ โดยเน้นพื้นที่แปลนเปิดโล่ง ออกแบบช่องแสงและประตูให้มีความกว้าง เพื่อให้อากาศถ่ายเทได้สะดวก เลือกใช้วัสดุตกแต่งภายนอกเป็นโทนสีเข้ม ตกแต่งผนังแนว MODERN LOFT ด้วยการกรุไฟเบอร์ซีเมนต์เลียนแบบผนังสำเร็จรูป การใช้สีปูนขัดมัน การกรุกระเบื้อง กรุไม้ฝาเทียม และใช้ไฟเบอร์ซีเมนต์เลียนแบบเหล็ก H-BEAMในการตกแต่งอาคาร ชั้นบนออกแบบแผงระแนงเหล็กแนวตั้งเพื่อบังแสงแดด เน้นห้องนอนใหญ่ให้ ช่องแสงที่กว้าง มีพื้นที่ภายในที่แปลกตา ภายในตัวบ้านประกอบด้วยฟังก์ชั่นที่ครบครัน
ติดต่อสอบถามเพิ่มเติม
-
contact@royalhouse.co.th
0-2459-4646
สำนักงานใหญ่ 1148 ถนนนครไชยศรี เขตดุสิต, Bangkok, Thailand, Bangkok
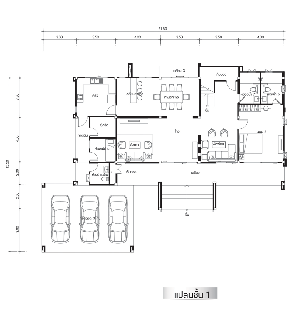
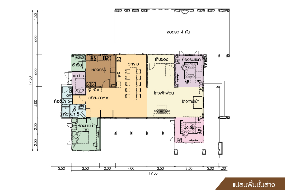
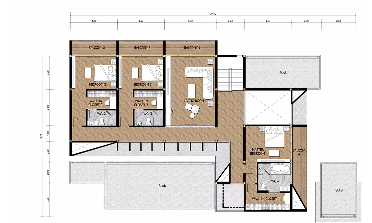
บริษัท มีนบุรีรักสร้างบ้าน จำกัด
แบบ้าน MC Cube 1
- 3 ห้องนอน
- 3 ห้องน้ำ
- 175 ตร.ม.

บริษัท มีนบุรีรักสร้างบ้าน จำกัด
แบบบ้าน MC Cube 1
- 3 ห้องนอน
- 3 ห้องน้ำ
- 0 ที่จอดรถ
- 175ตร.ม.
บ้านทรงลูกบาศก์ขนาด 10x10 ม. จัดพื้นที่ใช้สอยได้อย่างลงตัว
ติดต่อสอบถามเพิ่มเติม
-
Meanbureruk
Hug.mean38@gmail.com
034-271-203
ถนน เทศา, Nakhon Pathom, Thailand, Nakhon Pathom
บริษัท บิวท์ ทู บิวด์ จำกัด
แบบ้าน Superior
- 6 ห้องนอน
- 7 ห้องน้ำ
- 621 ตร.ม.

บริษัท บิวท์ ทู บิวด์ จำกัด
แบบบ้าน Superior
- 6 ห้องนอน
- 7 ห้องน้ำ
- 3 ที่จอดรถ
- 621ตร.ม.
แบบบ้าน 3 ชั้น ที่มีการดีไซน์รูปลักษณ์ในสไตล์ Modern Retro ในคอนเซ็ปต์บ้านขนาดใหญ่บนพื้นที่จำกัด เหมาะกับไลฟ์สไตล์ของคนเมือง โดยผสมผสานเข้ากับความทันสมัยอย่างลงตัว ตัวบ้านเน้นโทนสี Earth Tone เคร่งขรึมและอบอุ่น ตกแต่งโดยรอบด้วยระแนงไม้และออกแบบให้มีการระบายอากาศและเปิดรับแสงธรรมชาติได้จากทุกส่วนของมุมบ้าน โซนนั่งเล่นออกแบบให้มี Double Volume ประดับด้วยกระจกบานใหญ่ ช่วยให้มีความโปร่ง โล่งสบาย พื้นที่ชั้นบนออกแบบพื้นที่ของการพักผ่อนไว้อย่างเป็นสัดส่วนและยังสามารถปรับเปลี่ยนฟังก์ชันของการใช้งานได้ตามที่ต้องการ
ติดต่อสอบถามเพิ่มเติม
btbbuilt@gmail.com
02-721-3999
8 ซอย อ่อนนุช 46 ถนน อ่อนนุช แขวง สวนหลวง เขต สวนหลวง, Bangkok, Thailand, Bangko
บริษัท กริท บิลด์ จำกัด
แบบ้าน Cayla
- 2 ห้องนอน
- 3 ห้องน้ำ
- 220 ตร.ม.

บริษัท กริท บิลด์ จำกัด
แบบบ้าน Cayla
- 2 ห้องนอน
- 3 ห้องน้ำ
- 3 ที่จอดรถ
- 220ตร.ม.
บ้านสไตล์โมเดิร์น 2 ชั้น หลังใหญ่ดูเรียบหรู สะท้อนอบอุ่น อยู่สบาย
ติดต่อสอบถามเพิ่มเติม
-
info@gritbuild.net
0933649782
โครงการคริสตัล ดีไซน์ เซ็นเตอร์ ห้องเลขที่ L4-207 ชั้น 2 อาคาร L4 (4L4-207,209) 1448/19 ซอยลาดพร้าว 87 (จันทราสุข) แขวงคลองจั่น เขตบางกะปิ กรุงเทพมหานคร 10240
บริษัท ซีคอน จำกัด
แบบ้าน The Fame 658
- 6 ห้องนอน
- 7 ห้องน้ำ
- 658 ตร.ม.

บริษัท ซีคอน จำกัด
แบบบ้าน The Fame 658
- 6 ห้องนอน
- 7 ห้องน้ำ
- 2 ที่จอดรถ
- 658ตร.ม.
บ้าน 3 ชั้นสไตล์ Modern ดูโดดเด่นเฉพาะตัว มีกลิ่นอายของความ Luxury ทำให้ภาพลักษณ์ของบ้านดูทันสมัยภายใต้ความหรูหรา พื้นที่ภายในถูกจัดสรรการใช้งานอย่างชัดเจน เหมาะสม ตามการใช้ประโยชน์ของส่วนอยู่อาศัยและส่วน Serviceเน้นความโปร่งโล่งสบายเพื่อบรรยากาศที่ดี ชั้นบนทั้งหมดประกอบด้วยห้องนอนขนาดใหญ่พิเศษพร้อมห้องน้ำส่วนตัวทุกห้อง เพิ่มความสมบูรณ์แบบให้กับพื้นที่ใช้สอยด้วยห้องสันทนาการ ห้องพระ และพื้นที่พักผ่อน ซึ่งถูกออกแบบให้สามารถปรับเปลี่ยนได้ตามความต้องการ
ติดต่อสอบถามเพิ่มเติม
info@seacon.co.th
1391
107-115 ถนนสี่พระยา บางรัก กรุงเทพฯ 10500
บริษัท ไวส์ บิวเดอร์ จำกัด
แบบ้าน Rodina (ครอบครัว)
- 3 ห้องนอน
- 5 ห้องน้ำ
- 404 ตร.ม.

บริษัท ไวส์ บิวเดอร์ จำกัด
แบบบ้าน Rodina (ครอบครัว)
- 3 ห้องนอน
- 5 ห้องน้ำ
- 4 ที่จอดรถ
- 404ตร.ม.
ผสมผสานชีวิตทั้ง 2 ด้าน ให้ลงไปด้วยกันทั้งการทำงานและครอบครัว ด้วยพื้นที่ใช้สอยที่เป็นบ้านพักอาศัย หรือปรับเปลี่ยนเป็นสำนักงานได้อย่างอิสระ ให้คุณมีความคล่องตัว และเวลาเหลือเฟือสำหรับครอบครัวที่คุณรักและงานที่คุณทุ่มเท
ติดต่อสอบถามเพิ่มเติม
-
-
admin_wb@wisebuilder.co.th
02-574-5616, 099-857-1132
99/33 ซอยแจ้งวัฒนะ 13 ทุ่งสองห้อง หลักสี่, Bangkok, Thailand, Bangkok
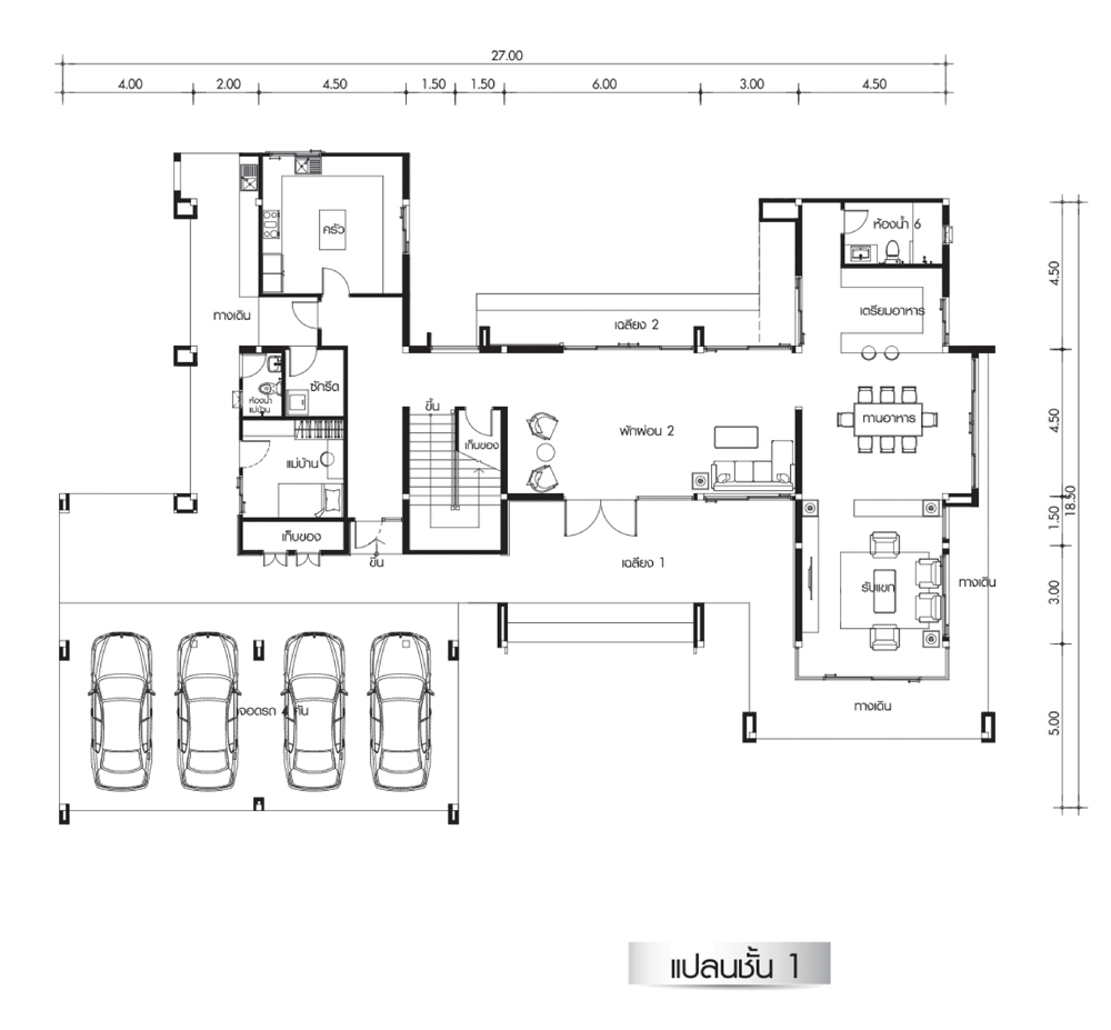
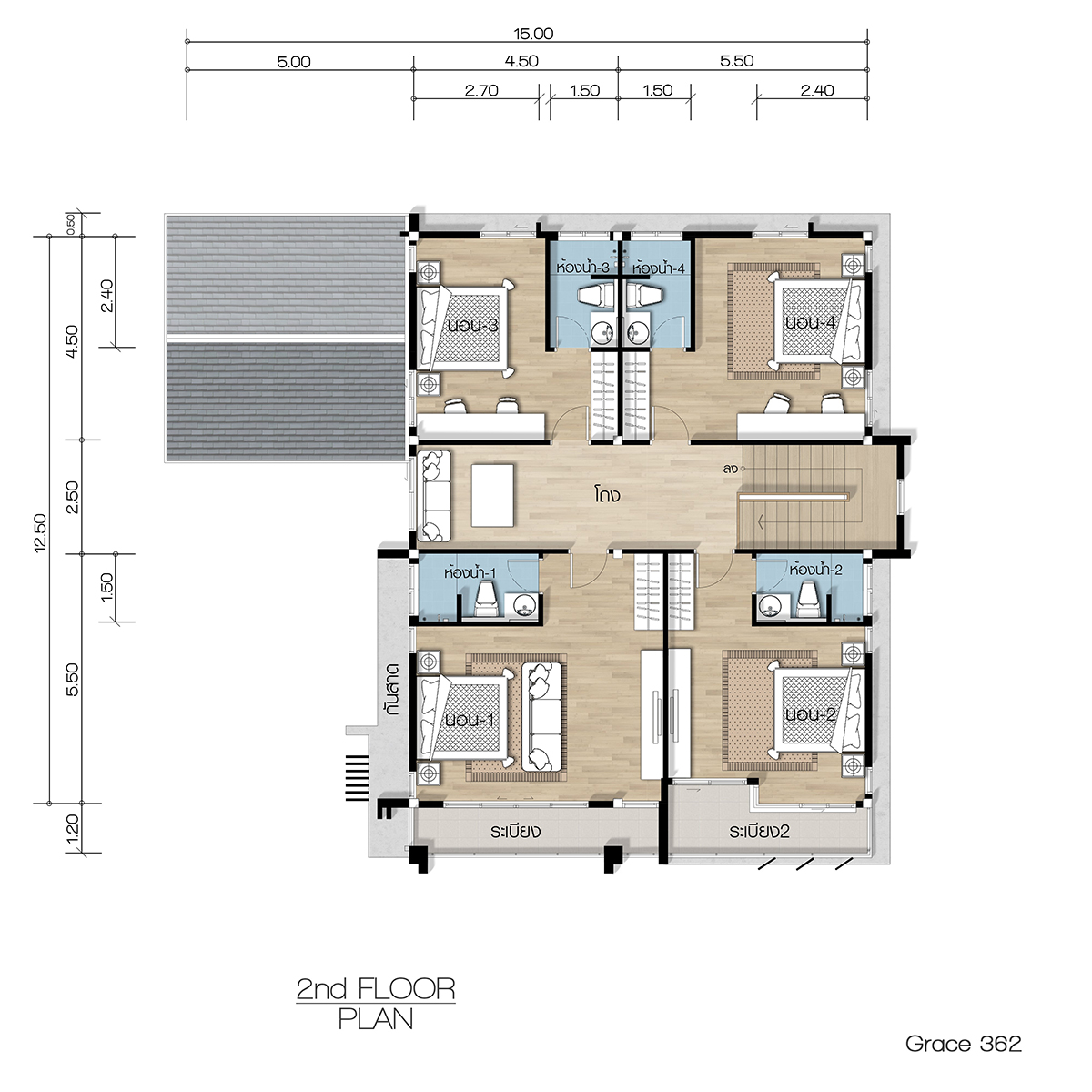
บริษัท เอส ซี แกรนด์ จำกัด
แบบ้าน THE GRACE 362
- 6 ห้องนอน
- 7 ห้องน้ำ
- 362 ตร.ม.

บริษัท เอส ซี แกรนด์ จำกัด
แบบบ้าน THE GRACE 362
- 6 ห้องนอน
- 7 ห้องน้ำ
- 0 ที่จอดรถ
- 362ตร.ม.
ตัวบ้านถูกออกแบบในสไตล์ Modern Nordic ที่ให้ความหรู ดูทันสมัย บวกกับลักษณะของเส้นสายกรอบสี่เหลี่ยมด้านหน้าที่ช่วยสร้างเอกลักษณ์ให้บ้านหลังนี้ดูโมเดิร์นมากยิ่งขึ้น นอกจากนี้ด้านหน้าตัวบ้านยังมีหลังคาทรงจั่วที่ช่วยให้บ้านหลังนี้ดูโดดเด่นขึ้นมาเป็นอย่างมากเลยค่ะ และยังมีในส่วนของกระจกเข้ามุม ที่ช่วยเปิดมุมมองการ Take View ออกไปข้างนอกให้กว้างขวางมากยิ่งขึ้น โดยไม่มีผนังมาบดบังทัศนียภาพในการมองเห็น และบ้านหลังนี้ยังมีระแนงด้านหน้าที่ช่วยป้องกันแสงแดดและพรางสายตาของคนภายนอกได้เป็นอย่างดีซึ่งจะช่วยสร้างความเป็นส่วนตัว
ติดต่อสอบถามเพิ่มเติม
info@scgrand.co.th
02-066-6663
751, 753 ถ.เพชรเกษม แขวงบางหว้า เขตภาษีเจริญ กรุงเทพฯ 10160
บริษัท แลนดี้ โฮม (ประเทศไทย) จำกัด
แบบ้าน Simple new 02
- 3 ห้องนอน
- 2 ห้องน้ำ
- 125 ตร.ม.

บริษัท แลนดี้ โฮม (ประเทศไทย) จำกัด
แบบบ้าน Simple new 02
- 3 ห้องนอน
- 2 ห้องน้ำ
- 1 ที่จอดรถ
- 125ตร.ม.
แบบบ้านสไตล์กึ่งรีสอร์ท หรือบ้านชมวิว ที่ทันสมัย บรรยากาศร่มรื่น โปร่ง โล่งสบาย มีความป็นส่วนตัว เน้นพื้นที่ประโยชน์ใช้สอย เหมาะสมกับสภาพอากาศที่ร้อนชื้นของเมืองไทย คำนึงถึงเรื่องการควบคุมปริมาณ แสงธรรมชาติที่เข้าสู่ภายในอาคารเป็นหลัก
ติดต่อสอบถามเพิ่มเติม
cr@landymail.com
02-938-3456-7
90/2 ถนนราชพฤกษ์ แขวงบางระมาด เขตตลิ่งชัน กรุงเทพมหานคร 10170
บริษัท บ้านมหานคร จำกัด
แบบ้าน Model : RUBY
- 4 ห้องนอน
- 4 ห้องน้ำ
- 593 ตร.ม.

บริษัท บ้านมหานคร จำกัด
แบบบ้าน Model : RUBY
- 4 ห้องนอน
- 4 ห้องน้ำ
- 4 ที่จอดรถ
- 593ตร.ม.
แบบบ้านสไตล์โมเดิร์น ที่มีความหรูหรา มาในโทนสีขาว พร้อมกับการจัดสรรฟังก์ชั่นการใช้งานภายในที่มีความพอดีอย่างลงตัว และการตกแต่งระแนงไม้ภายนอกเพื่อเพิ่มมิติให้กับตัวบ้าน มีกระจกโดยรอบบ้าน ทำให้ผู้พักอาศัยภายในสามารถมองออกไปเพื่อชมภาพนอกได้ดี เป็นอีกหนึ่งแบบบ้านที่สะท้อนถึงความเรียบหรูอย่างมีระดับ
ติดต่อสอบถามเพิ่มเติม
bnkgroup_2023@hotmail.com
095-369-9584
เลขที่ 1/1 ซอย เคหะร่มเกล้า 74 แยก 4 แขวง ราษฎร์พัฒนา เขต สะพานสูง จังหวัด กรุงเทพมหานคร รหัสไปรษณีย์ 10240
บริษัท ดับบลิวเฮ้าส์ จำกัด
แบบ้าน M-030
- 5 ห้องนอน
- 6 ห้องน้ำ
- 711 ตร.ม.

บริษัท ดับบลิวเฮ้าส์ จำกัด
แบบบ้าน M-030
- 5 ห้องนอน
- 6 ห้องน้ำ
- 1 ที่จอดรถ
- 711ตร.ม.
รูปทรงของบ้านออกแบบเพื่อให้เหมาะกับกับพื้นที่ในเมือง ซึ่งมีพื้นที่ค่อนข้างจำกัด คำนึงถึงพื้นที่ใช้สอยที่ให้สามารถใช้งานได้จริง และคำนึงถึงทิศทางแสงแดด-ลม เพื่อให้บ้านมีการถ่ายเทอากาศได้ดี บ้านไม่ร้อนอบอ้าว บ้านในเมืองที่มีขนาดที่ดินไม่มาก ต้องการพื้นที่ใช้สอยที่มาก เพื่อให้สอดคล้องกับความต้องการ บ้าน3ชั้น ที่มากด้วยห้องนอน ถึง 5 ห้องนอน จึงทำให้ตอบสนองความต้องการของบ้านในเมืองได้ดี
ติดต่อสอบถามเพิ่มเติม
whwhouse@yahoo.com
0-2349-7668 ถึง 72
65/6 ซอยรามอินทรา 14 แขวงท่าแร้ง เขตบางเขน กรุงเทพฯ 10230
บริษัท บ้านมหานคร จำกัด
แบบ้าน Model : SPINEL
- 5 ห้องนอน
- 7 ห้องน้ำ
- 993 ตร.ม.

บริษัท บ้านมหานคร จำกัด
แบบบ้าน Model : SPINEL
- 5 ห้องนอน
- 7 ห้องน้ำ
- 4 ที่จอดรถ
- 993ตร.ม.
แบบบ้านสไตล์โมเดิร์น ที่มีดีไซน์เรียบหรู สวยงาม โดดเด่นและเป็นเอกลักษณ์เฉพาะตัว ตอบโจทย์ Life Style ของคนรุ่นใหม่ เหมาะสำหรับครอบครัวยุคใหม่ พร้อมการจัดรูปแบบพื้นที่การใช้สอยอย่างคุ้มค่า ที่มาพร้อมฟังก์ชั่นภายในบ้านครบครันทันสมัย ที่สะท้อนถึงความเรียบหรูอย่างมีระดับ
ติดต่อสอบถามเพิ่มเติม
bnkgroup_2023@hotmail.com
095-369-9584
เลขที่ 1/1 ซอย เคหะร่มเกล้า 74 แยก 4 แขวง ราษฎร์พัฒนา เขต สะพานสูง จังหวัด กรุงเทพมหานคร รหัสไปรษณีย์ 10240
บริษัท เมคเคอร์โฮม จำกัด
แบบ้าน Trendy 4
- 7 ห้องนอน
- 8 ห้องน้ำ
- 540 ตร.ม.
ติดต่อสอบถามเพิ่มเติม
info@makerhome.com
081-107-7888
9 ซ.สายสิน, Bangkok, Thailand, Bangkok
บริษัท บ้านมหานคร จำกัด
แบบ้าน Model : ALLIREA
- 4 ห้องนอน
- 5 ห้องน้ำ
- 353 ตร.ม.

บริษัท บ้านมหานคร จำกัด
แบบบ้าน Model : ALLIREA
- 4 ห้องนอน
- 5 ห้องน้ำ
- 2 ที่จอดรถ
- 353ตร.ม.
แบบบ้านสไตล์นอร์ดิก ที่ออกแบบมาอย่างลงตัว โดยภายในบ้านมีการจัดสรรอย่างเป็นสัดส่วน พื้นที่โปร่ง โล่ง สบาย แบบ Double Volume ทำให้ดูโดดเด่นมีเอกลักษณ์เฉพาะตัว พร้อมโทนสีที่ดูอบอุ่น และสามารถจัดสรรพื้นที่สวนขนาดย่อม เพื่อให้ผู้อยู่อาศัยได้สัมผัสถึงการพักอาศัยอยู่ร่วมกับธรรมชาติ เป็นรูปแบบบ้านที่สะท้อนถึงความเรียบหรูอย่างมีระดับ
ติดต่อสอบถามเพิ่มเติม
bnkgroup_2023@hotmail.com
095-369-9584
เลขที่ 1/1 ซอย เคหะร่มเกล้า 74 แยก 4 แขวง ราษฎร์พัฒนา เขต สะพานสูง จังหวัด กรุงเทพมหานคร รหัสไปรษณีย์ 10240
บริษัท จีบีซี เฮ้าส์ จำกัด
แบบ้าน พิมไพลิน
- 5 ห้องนอน
- 5 ห้องน้ำ
- 264 ตร.ม.

บริษัท จีบีซี เฮ้าส์ จำกัด
แบบบ้าน พิมไพลิน
- 5 ห้องนอน
- 5 ห้องน้ำ
- 0 ที่จอดรถ
- 264ตร.ม.
แบบบ้าน "พิมไพลิน" เป็นบ้านสไตล์โมเดิร์นคลาสสิก (Modern Classic) ที่ผสมผสานความหรูหราและความเรียบง่ายอย่างลงตัว โดยออกแบบเพื่อรองรับไลฟ์สไตล์ของครอบครัวขนาดใหญ่หรือครอบครัวที่ต้องการพื้นที่ใช้สอยมากเป็นพิเศษ พื้นที่ใช้สอยขนาด 264 ตารางเมตร แสดงถึงความกว้างขวาง สะดวกสบาย พร้อมรองรับกิจกรรมของสมาชิกในบ้านได้หลากหลาย จุดเด่นของแบบบ้านพิมไพลิน ดีไซน์หรูหรา: การออกแบบที่เน้นความคลาสสิกจากเส้นสายที่เรียบง่าย สง่างาม และสีโทนสว่าง เช่น สีขาว-เทา สร้างบรรยากาศของบ้านที่อบอุ่นและเป็นทางการในเวลาเดียวกัน พื้นที่ใช้สอยครบครัน: มี 5 ห้องนอน และ 5 ห้องน้ำ ซึ่งตอบโจทย์ครอบครัวที่มีสมาชิกหลายคนหรือมีแขกมาพักบ่อย ฟังก์ชันการใช้งาน: การแบ่งพื้นที่ใช้งานชัดเจน เช่น พื้นที่ส่วนกลาง ห้องนั่งเล่น ห้องครัว และพื้นที่ส่วนตัว สวนและพื้นที่ภายนอก: การออกแบบพื้นที่หน้าบ้านและสวนอย่างสวยงาม เพิ่มความสดชื่นและร่มรื่นให้กับบ้าน ความเป็นส่วนตัว: ทุกห้องนอนมีพื้นที่กว้างขวางและสามารถใช้งานได้อย่างอิสระ ทำให้เหมาะกับไลฟ์สไตล์หลากหลายของสมาชิกในบ้าน
ติดต่อสอบถามเพิ่มเติม
-
080-425-4100
951/13 ถนนพุทธมณฑลสาย3, Bangkok, Thailand, Bangkok
บริษัท โฟร์พัฒนา จำกัด
แบบ้าน Linear House
- 4 ห้องนอน
- 5 ห้องน้ำ
- 645 ตร.ม.

บริษัท โฟร์พัฒนา จำกัด
แบบบ้าน Linear House
- 4 ห้องนอน
- 5 ห้องน้ำ
- 3 ที่จอดรถ
- 645ตร.ม.
บ้านโมเดิร์นที่ตั้งใจออกแบบให้สอดคล้องกับภูมิอากาศของประเทศไทย มอบความร่มรื่น เย็นสบาย สูงสุดให้กับผู้อยู่อาศัย พร้อมกันนั้นยังได้ใกล้ชิดกับธรรมชาติมากยิ่งขึ้น ด้วยการวางตัวของอาคารที่ขนานไปกับสวนทั้งด้านหน้าและหลังบ้าน และทำให้ทุกห้องได้สัมผัสกับธรรมชาติอย่างเต็มที่ เพื่อให้ผู้อาศัยเริ่มตันทุกๆวันได้อย่างสดชื่น อย่างที่ไม่เคยได้สัมผัสมาก่อน
ติดต่อสอบถามเพิ่มเติม
fourpattana@fourpattana.com
02-940-3789
เลขที่ 2 ซอยลาดปลาเค้า10 แขวงลาดพร้าว เขตลาดพร้าว กรุงเทพฯ 10230
บริษัท โฮมสแควร์ ดีเวลอปเมนท์ จำกัด
แบบ้าน HSD – 07 Mini Cube
- 2 ห้องนอน
- 3 ห้องน้ำ
- 215 ตร.ม.

บริษัท โฮมสแควร์ ดีเวลอปเมนท์ จำกัด
แบบบ้าน HSD – 07 Mini Cube
- 2 ห้องนอน
- 3 ห้องน้ำ
- 2 ที่จอดรถ
- 215ตร.ม.
แบบบ้านหน้าแคบ 2 ชั้น สไตล์โมเดิร์น เน้นการใช้สอยพื้นที่อย่างลงตัวเพื่อให้เกิดประโยชน์สูงสุด ตกแต่งด้วยไม้สำเร็จรูป และคอนกรีตเปลือยเหมาะสำหรับครอบครัวสมัยใหม่ที่ต้องการบ้านขนาดกลางที่ครบครันและทันสมัย2
ติดต่อสอบถามเพิ่มเติม
contact@homesquare.co.th
025332622-3 , 02994446
2/69 ถนนลำลูกกา ตำบลลาดสวาย อำเภอลำลูกกา, Lam Luk Ka, Thailand, Pathum Thani
บริษัท โฟร์พัฒนา จำกัด
แบบ้าน E-204
- 4 ห้องนอน
- 5 ห้องน้ำ
- 1066 ตร.ม.

บริษัท โฟร์พัฒนา จำกัด
แบบบ้าน E-204
- 4 ห้องนอน
- 5 ห้องน้ำ
- 4 ที่จอดรถ
- 1066ตร.ม.
บ้านหลังใหญ่ มีความสวยงามชัดทุกมุมมองในสไตล์โมเดิร์น ทันสมัย จัดสรรแบ่งพื้นที่ภายในให้รู้สึกถึงการพักผ่อนอย่างแท้จริง เปิดรับ ธรรมชาติทุกมุมบ้านได้อย่างโปร่งสบายพื้นที่ใช้สอย 1,055 ตารางเมตร มีห้องนอนล่าง ให้ความสุขสบาย เป็นบ้านที่เหมาะกับคนรุ่นใหม่ ตอบรับการ ใช้ชีวิตอย่างมีสไตล์ แสดงออกถึงตัวตนอย่างชัดเจน
ติดต่อสอบถามเพิ่มเติม
fourpattana@fourpattana.com
02-940-3789
เลขที่ 2 ซอยลาดปลาเค้า10 แขวงลาดพร้าว เขตลาดพร้าว กรุงเทพฯ 10230
บริษัท ซีคอน จำกัด
แบบ้าน Horizon 1547
- 4 ห้องนอน
- 4 ห้องน้ำ
- 1547 ตร.ม.

บริษัท ซีคอน จำกัด
แบบบ้าน Horizon 1547
- 4 ห้องนอน
- 4 ห้องน้ำ
- 4 ที่จอดรถ
- 1547ตร.ม.
บ้านสไตล์ Modern ที่ถูกออกแบบด้วยความเรียบง่าย ทันสมัย ภายในชั้นล่างจัดสรรพื้นที่ใช้สอยเป็นสัดส่วน และต่อเนื่องยาวตลอดเพื่อความโปร่ง โล่ง สบาย ชั้นบนประกอบด้วย 3ห้องนอน โดยห้องนอน Masterนั้นกว้างขวางเป็นพิเศษ และมีห้องพักผ่อนเพื่อกิจกรรมของครอบครัวอีกด้วย
ติดต่อสอบถามเพิ่มเติม
info@seacon.co.th
1391
107-115 ถนนสี่พระยา บางรัก กรุงเทพฯ 10500
บริษัท ดับบลิวเฮ้าส์ จำกัด
แบบ้าน M-045
- 5 ห้องนอน
- 6 ห้องน้ำ
- 728 ตร.ม.

บริษัท ดับบลิวเฮ้าส์ จำกัด
แบบบ้าน M-045
- 5 ห้องนอน
- 6 ห้องน้ำ
- 4 ที่จอดรถ
- 728ตร.ม.
บ้านขนาด 3 ชั้นซึ่งมีการแบ่งฟังก์ชันที่เรียบง่ายและค่อนข้างชัดเจนชั้น 1พื้นที่บริเวณจอดรถพื้นที่บริเวณรับแขกและพื้นที่บริเวณส่วนรับประทานอาหารซึ่งจะเป็น ซึ่งเป็นสัดเป็นส่วน ให้ง่ายต่อการใช้งานและการอยู่พักอาศัย พื้นที่ชั้น 2 ห้องนอน และห้องออกกำลังกาย ได้มีการออกแบบให้มีห้องนอนขนาดใหญ่เพื่อรองรับการขยายตัว ของครอบครัวพื้นที่ชั้น 3 ประกอบไปด้วยห้องนอนขนาดกลาง 2 ห้อง การออกแบบอาคาร 3 ชั้น สไตล์โมเดิร์นต้องการทำให้รูปด้านของอาคารไม่ดูเป็นตึกสูงมากเกินไป โดยการใช้พื้นที่ชั้น 2 ด้านหน้าลดทอนลักษณะก้อน Mass ของอาคาร และใช้ไม้ระแนงในการลดทอนรายละเอียดของรูปด้านอาคาร
ติดต่อสอบถามเพิ่มเติม
whwhouse@yahoo.com
0-2349-7668 ถึง 72
65/6 ซอยรามอินทรา 14 แขวงท่าแร้ง เขตบางเขน กรุงเทพฯ 10230
บริษัท กริท บิลด์ จำกัด
แบบ้าน Plutus
- 5 ห้องนอน
- 7 ห้องน้ำ
- 479 ตร.ม.

บริษัท กริท บิลด์ จำกัด
แบบบ้าน Plutus
- 5 ห้องนอน
- 7 ห้องน้ำ
- 3 ที่จอดรถ
- 479ตร.ม.
บ้านทรงตัวแอล ที่ตอบโจทย์ครอบครัวขนาดใหญ่ ดีไซน์ทันสมัย ดูดีมีระดับ
ติดต่อสอบถามเพิ่มเติม
-
info@gritbuild.net
0933649782
โครงการคริสตัล ดีไซน์ เซ็นเตอร์ ห้องเลขที่ L4-207 ชั้น 2 อาคาร L4 (4L4-207,209) 1448/19 ซอยลาดพร้าว 87 (จันทราสุข) แขวงคลองจั่น เขตบางกะปิ กรุงเทพมหานคร 10240
บริษัท ไวส์ บิวเดอร์ จำกัด
แบบ้าน TETRIS HOUSE
- 3 ห้องนอน
- 5 ห้องน้ำ
- 429 ตร.ม.

บริษัท ไวส์ บิวเดอร์ จำกัด
แบบบ้าน TETRIS HOUSE
- 3 ห้องนอน
- 5 ห้องน้ำ
- 4 ที่จอดรถ
- 429ตร.ม.
Wise Builder x Supermachine Studio จากชื่อบ้านเกม “TETRIS” ที่มีลักษณะเป็น BOX ช่องทะลุทะลวงนำมาสู่การออกแบบบิดแกนบ้านให้มีช่องทะลุผ่าน สอดประสานเชื่อมต่อกันทั้งในแง่อากาศธรรมชาติ และการเชื่อมต่อกันของคนในครอบครัว พร้อมพื้นที่ปลูกต้นไม้ทั้งสวนแนวตั้งและแนวนอน พร้อมกระจกทรงสูงเต็มบานพร้อมจะนำคุณกลับไปสู่ธรรมชาติ แสงแดดอ่อนๆ ยามเช้าจะเพิ่มพลังในการทำงานที่เปี่ยมล้นให้คุณในทุกๆ เช้าที่ตื่นนอน
ติดต่อสอบถามเพิ่มเติม
-
-
admin_wb@wisebuilder.co.th
02-574-5616, 099-857-1132
99/33 ซอยแจ้งวัฒนะ 13 ทุ่งสองห้อง หลักสี่, Bangkok, Thailand, Bangkok
บริษัท โฟร์พัฒนา จำกัด
แบบ้าน P-209
- 5 ห้องนอน
- 6 ห้องน้ำ
- 830 ตร.ม.

บริษัท โฟร์พัฒนา จำกัด
แบบบ้าน P-209
- 5 ห้องนอน
- 6 ห้องน้ำ
- 4 ที่จอดรถ
- 830ตร.ม.
บ้านสไตล์โมเดิร์นคลาสิก เอกลักษณ์ที่โดดเด่น ดูงดงาม หรูหรา เป็นบ้านหลังใหญ่ ที่มอบความสุขให้สมาชิกทุกคนในครอบครัว จำนวน 5 ห้องนอน พร้อมห้องทำงาน ห้องพักผ่อน และห้องอาหารที่เป็นสัดส่วนเฉพาะ มอบความสะดวกสบาย เพื่อให้ คุณและครอบครัวใช้ชีวิตได้อย่างสมบูรณ์แบบ
ติดต่อสอบถามเพิ่มเติม
fourpattana@fourpattana.com
02-940-3789
เลขที่ 2 ซอยลาดปลาเค้า10 แขวงลาดพร้าว เขตลาดพร้าว กรุงเทพฯ 10230
บริษัท บ้านมหานคร จำกัด
แบบ้าน Model : CELESTINE
- 6 ห้องนอน
- 9 ห้องน้ำ
- 820 ตร.ม.

บริษัท บ้านมหานคร จำกัด
แบบบ้าน Model : CELESTINE
- 6 ห้องนอน
- 9 ห้องน้ำ
- 5 ที่จอดรถ
- 820ตร.ม.
แบบบ้านสไตล์โมเดิร์น ที่ตอบโจทย์ครอบครัวขนาดใหญ่ ฟังก์ชั่นการใช้งานภายในบ้านมีการจัดเป็นสัดส่วนอย่างคุ้มค่า และลงตัว มีพื้นที่ส่วนกลาง Family Area เพื่อให้ทุกคนในครอบครัว ได้มีกิจกรรมต่างๆรวมกันภายในบ้าน มีการตกแต่งโดยรอบด้วยระแนงไม้ ทำให้เกิดความรู้สึกอบอุ่น มีดีไซน์เรียบหรู สวยงาม โดดเด่นและเป็นเอกลักษณ์เฉพาะตัว เหมาะสำหรับครอบครัวยุคใหม่ เป็นอีกแบบบ้านที่สะท้อนถึงความเรียบหรูอย่างมีระดับ
ติดต่อสอบถามเพิ่มเติม
bnkgroup_2023@hotmail.com
095-369-9584
เลขที่ 1/1 ซอย เคหะร่มเกล้า 74 แยก 4 แขวง ราษฎร์พัฒนา เขต สะพานสูง จังหวัด กรุงเทพมหานคร รหัสไปรษณีย์ 10240
บริษัท บิวท์ ทู บิวด์ จำกัด
แบบ้าน อังรีดูนังต์
- 6 ห้องนอน
- 8 ห้องน้ำ
- 511 ตร.ม.

บริษัท บิวท์ ทู บิวด์ จำกัด
แบบบ้าน อังรีดูนังต์
- 6 ห้องนอน
- 8 ห้องน้ำ
- 3 ที่จอดรถ
- 511ตร.ม.
บ้าน 2 ชั้น สไตล์โมเดิร์นลอฟท์ ดีไซน์สวยหรู โดดเด่น และทันสมัย ออกแบบตัวบ้านด้วยการนำวัสดุ หิน ไม้ เหล็ก และคอนกรีต มาผสมผสานเข้ากันอย่างลงตัว เพิ่ม Detail ให้สะดุดตามากขึ้นด้วยการเซาะร่อง PVC ที่ผนังภายนอก และยังประดับด้วยกระจกทรงสูงบานใหญ่รอบตัวบ้าน ภายในเน้นจัดสรรพื้นที่ให้โปร่งโล่งสมกับความเป็นลอฟท์ มี Double Volumeเพิ่มความหรูหรา โอ่โถง ให้กับสเปซในบ้าน และดีไซน์ให้มีช่องบันไดขนาดใหญ่เปลือยโปร่งโล่งกลางตัวบ้านนำแสงสว่างเข้าถึงทุกพื้นที่ในตัวบ้านทั้งยังมี Family Zone โซนทั้งชั้นบนและชั้นล่าง ซึ่งสามารถปรับเปลี่ยนการใช้งานได้ตามต้องการ
ติดต่อสอบถามเพิ่มเติม
btbbuilt@gmail.com
02-721-3999
8 ซอย อ่อนนุช 46 ถนน อ่อนนุช แขวง สวนหลวง เขต สวนหลวง, Bangkok, Thailand, Bangko
บริษัท แลนดี้ โฮม (ประเทศไทย) จำกัด
แบบ้าน Paddington
- 4 ห้องนอน
- 5 ห้องน้ำ
- 370 ตร.ม.

บริษัท แลนดี้ โฮม (ประเทศไทย) จำกัด
แบบบ้าน Paddington
- 4 ห้องนอน
- 5 ห้องน้ำ
- 3 ที่จอดรถ
- 370ตร.ม.
Paddington-S แบบบ้านหน้ากว้าง สไตล์โมเดิร์นคลาสสิก ฟังก์ชั่นพื้นที่ใช้สอยครบครัน ตกแต่งด้วยบัวปูนปั้น ระแนงระเบียงใช้วัสดุเหล็กแบนแฟลตบาร์ที่ให้ทั้งความแข็งแรงและสวยงาม ☑ลงตัวด้วยห้องนอนใหญ่ในชั้นล่าง พร้อมทั้งครัวไทยและครัวฝรั่งเหมาะสำหรับครอบครัวที่ชื่นชอบในการทำอาหาร ☑โอ่โถงด้วยซุ้มประตูทางเข้าหน้าบ้านโค้งสูง ที่ช่วยทำให้บ้านดูหรูหราและแกรนด์มากยิ่งขึ้น รองรับขนาดครอบครัวกลางถึงใหญ่
ติดต่อสอบถามเพิ่มเติม
cr@landymail.com
02-938-3456-7
90/2 ถนนราชพฤกษ์ แขวงบางระมาด เขตตลิ่งชัน กรุงเทพมหานคร 10170
บริษัท จีบีซี เฮ้าส์ จำกัด
แบบ้าน พิมแก้ว
- 4 ห้องนอน
- 3 ห้องน้ำ
- 178 ตร.ม.

บริษัท จีบีซี เฮ้าส์ จำกัด
แบบบ้าน พิมแก้ว
- 4 ห้องนอน
- 3 ห้องน้ำ
- 0 ที่จอดรถ
- 178ตร.ม.
แบบบ้าน "พิมแก้ว" เป็นบ้านที่ออกแบบในสไตล์ โมเดิร์นร่วมสมัย (Modern Contemporary) ซึ่งผสมผสานความทันสมัยและการใช้งานที่เรียบง่ายในชีวิตประจำวัน แต่ยังคงไว้ซึ่งความอบอุ่นและเหมาะสมสำหรับครอบครัวขนาดกลาง โดยมีพื้นที่ใช้สอย 178 ตารางเมตร ที่จัดสรรอย่างชาญฉลาด เพื่อตอบโจทย์ทั้งการใช้ชีวิตประจำวันและการพักผ่อน จุดเด่นของแบบบ้านพิมแก้ว ดีไซน์เรียบง่ายแต่ทันสมัย: ใช้เส้นสายที่ชัดเจน โทนสีอบอุ่น และการตกแต่งที่ให้ความรู้สึกผ่อนคลาย เหมาะกับครอบครัวยุคใหม่ที่ต้องการบ้านที่ดูแลรักษาง่าย การจัดสรรพื้นที่อย่างลงตัว: มี 4 ห้องนอน และ 3 ห้องน้ำ เหมาะสำหรับครอบครัวขนาดกลางหรือครอบครัวที่มีเด็กเล็ก พร้อมพื้นที่ส่วนกลางสำหรับการใช้เวลาอยู่ร่วมกัน พื้นที่โปร่งโล่ง: การออกแบบให้มีหน้าต่างขนาดใหญ่และพื้นที่เชื่อมต่อระหว่างภายในและภายนอก สร้างบรรยากาศปลอดโปร่งและสดชื่น การใช้วัสดุผสมผสาน: เช่น ผนังไม้ ผนังปูนเปลือย และวัสดุธรรมชาติ ช่วยเพิ่มมิติและเสน่ห์ให้บ้านดูทันสมัยแต่ยังคงความอบอุ่น เหมาะกับที่ดินขนาดพอดี: ด้วยขนาดพื้นที่ใช้สอยที่ไม่ใหญ่มากจนเกินไป ทำให้บ้านพิมแก้วเหมาะสำหรับคนที่มีที่ดินจำกัดแต่ต้องการบ้านที่มีฟังก์ชันครบ
ติดต่อสอบถามเพิ่มเติม
-
080-425-4100
951/13 ถนนพุทธมณฑลสาย3, Bangkok, Thailand, Bangkok
บริษัท แลนดี้ โฮม (ประเทศไทย) จำกัด
แบบ้าน Queens Park
- 5 ห้องนอน
- 6 ห้องน้ำ
- 564 ตร.ม.

บริษัท แลนดี้ โฮม (ประเทศไทย) จำกัด
แบบบ้าน Queens Park
- 5 ห้องนอน
- 6 ห้องน้ำ
- 4 ที่จอดรถ
- 564ตร.ม.
แบบบ้านมาตรฐาน Queens Park บ้านสไตล์ Modern Classic ที่กำลังนิยมเป็นอย่างมาก ✨ เพราะสไตล์ที่ดูเรียบง่ายสะท้อนความหรูหรา ทันสมัย ทำให้น่าอยู่อาศัย ทั้งการออกแบบการวางแปลนบ้าน มีการประยุกต์ความทันสมัยและความเก่าแก่มาผสมผสาน การเลือกใช้วัสดุต่าง ๆ ที่มีคุณภาพสั่งตรงจากโรงงานผู้ผลิตโดยตรง มั่นใจได้ว่าบ้านที่มีคุณภาพและสวยงามอย่างแน่นอน
ติดต่อสอบถามเพิ่มเติม
cr@landymail.com
02-938-3456-7
90/2 ถนนราชพฤกษ์ แขวงบางระมาด เขตตลิ่งชัน กรุงเทพมหานคร 10170
บริษัท ซีคอน จำกัด
แบบ้าน The Fame 326
- 4 ห้องนอน
- 4 ห้องน้ำ
- 326 ตร.ม.

บริษัท ซีคอน จำกัด
แบบบ้าน The Fame 326
- 4 ห้องนอน
- 4 ห้องน้ำ
- 0 ที่จอดรถ
- 326ตร.ม.
การออกแบบบ้านเน้นการเชื่อมต่อพื้นที่ใช้สอยภายในส่วนต่างๆ ตั้งแต่เฉลียงหน้าบ้านผ่านโถง ส่วนพักผ่อน ส่วนรับแขก ส่วนทานอาหาร และเชื่อมต่อเฉลียงด้านข้างบ้านกับส่วนทานอาหาร อีกทั้งห้องพักผ่อนตรงกลางเปิดเป็นช่องโล่งขึ้นไปชั้น 2 เพื่อให้เกิดความต่อเนื่องของชั้นล่างและชั้นบน ห้องนอนทั้ง 4 ห้องมีขนาดใหญ่ ห้องนอนชั้นล่างยื่นออกมาจากตัวบ้านเพื่อโอบล้อมพื้นที่สีเขียวบริเวณหน้าบ้านเพื่อให้ดูน่าสนใจรูปแบบตัวบ้านและหน้าต่างออกแบบโดยเน้นกรอบสี่เหลี่ยมอย่างชัดเจนใช้วัสดุกระจกเป็นตัวเชื่อมต่อกรอบแต่ละส่วนเข้าด้วยกัน ให้ผนังบางส่วนใช้หินกรุเพื่อสร้างความแตกต่างเหมือนเป็นกรอบอีกรูปแบบหนึ่งให้ตัวบ้าน
ติดต่อสอบถามเพิ่มเติม
info@seacon.co.th
1391
107-115 ถนนสี่พระยา บางรัก กรุงเทพฯ 10500
บริษัท กริท บิลด์ จำกัด
แบบ้าน Luciano
- 3 ห้องนอน
- 5 ห้องน้ำ
- 369 ตร.ม.

บริษัท กริท บิลด์ จำกัด
แบบบ้าน Luciano
- 3 ห้องนอน
- 5 ห้องน้ำ
- 3 ที่จอดรถ
- 369ตร.ม.
บ้านทรงโมเดิร์นสีขาวล้วน สะท้อนความเรียบง่าย สบายตา
ติดต่อสอบถามเพิ่มเติม
-
info@gritbuild.net
0933649782
โครงการคริสตัล ดีไซน์ เซ็นเตอร์ ห้องเลขที่ L4-207 ชั้น 2 อาคาร L4 (4L4-207,209) 1448/19 ซอยลาดพร้าว 87 (จันทราสุข) แขวงคลองจั่น เขตบางกะปิ กรุงเทพมหานคร 10240
บริษัท เมคเคอร์โฮม จำกัด
แบบ้าน Trendy 3
- 6 ห้องนอน
- 5 ห้องน้ำ
- 480 ตร.ม.
ติดต่อสอบถามเพิ่มเติม
info@makerhome.com
081-107-7888
9 ซ.สายสิน, Bangkok, Thailand, Bangkok
บริษัท กริท บิลด์ จำกัด
แบบ้าน Colby
- 5 ห้องนอน
- 4 ห้องน้ำ
- 291 ตร.ม.

บริษัท กริท บิลด์ จำกัด
แบบบ้าน Colby
- 5 ห้องนอน
- 4 ห้องน้ำ
- 2 ที่จอดรถ
- 291ตร.ม.
บ้านทรงสูงสไตล์โมเดิร์น สะท้อนความเรียบหรู ดูโปร่งสบาย
ติดต่อสอบถามเพิ่มเติม
-
info@gritbuild.net
0933649782
โครงการคริสตัล ดีไซน์ เซ็นเตอร์ ห้องเลขที่ L4-207 ชั้น 2 อาคาร L4 (4L4-207,209) 1448/19 ซอยลาดพร้าว 87 (จันทราสุข) แขวงคลองจั่น เขตบางกะปิ กรุงเทพมหานคร 10240
บริษัท รอแยลเฮ้าส์ จำกัด
แบบ้าน RH-MD.2173
- 3 ห้องนอน
- 4 ห้องน้ำ
- 342 ตร.ม.

บริษัท รอแยลเฮ้าส์ จำกัด
แบบบ้าน RH-MD.2173
- 3 ห้องนอน
- 4 ห้องน้ำ
- 2 ที่จอดรถ
- 342ตร.ม.
เป็นบ้านสไตล์โมเดิร์น เน้นเส้นสายของผนัง และจังหวะของตัวบ้าน เพิ่มจุดเด่นของบ้านด้วยการใช้สีปูนลอฟต์
ติดต่อสอบถามเพิ่มเติม
-
contact@royalhouse.co.th
0-2459-4646
สำนักงานใหญ่ 1148 ถนนนครไชยศรี เขตดุสิต, Bangkok, Thailand, Bangkok
บริษัท เอส ซี แกรนด์ จำกัด
แบบ้าน THE GRAND 545
- 6 ห้องนอน
- 6 ห้องน้ำ
- 545 ตร.ม.

บริษัท เอส ซี แกรนด์ จำกัด
แบบบ้าน THE GRAND 545
- 6 ห้องนอน
- 6 ห้องน้ำ
- 3 ที่จอดรถ
- 545ตร.ม.
ตัวบ้านถูกออกแบบในสไตล์ Modern Luxury ที่ให้ความเรียบหรู ดูทันสมัย บวกกับลักษณะของเส้นสายกรอบสี่เหลี่ยมด้านหน้าที่ช่วยสร้างเอกลักษณ์ให้บ้านหลังนี้ดูโมเดิร์นมากยิ่งขึ้น นอกจากนี้ยังมีในส่วนของกระจกเข้ามุม ที่ช่วยเปิดมุมมองการ Take View ออกไปข้างนอกให้กว้างขวางมากยิ่งขึ้น โดยไม่มีผนังมาบดบังทัศนียภาพในการมองเห็น และจุดเด่นอีกอย่างของบ้านหลังนี้เลยก็คือ ตัวบ้านจะมีลักษณะคล้ายรูปตัว H ที่มีคอร์ดกลางบ้านทั้งด้านหน้าและด้านหลัง ทำให้บ้านหลังนี้สามารถระบายอากาศได้ดีและทั่วถึงทุกพื้นที่ภายในบ้าน อีกทั้งบ้านหลังนี้ยังมีระแนงด้านหน้าที่ช่วยป้องกันแสงแดดและพรางสายตาของคนภายนอกได้เป็นอย่างดีซึ่งจะช่วยสร้างความเป็นส่วนตัว
ติดต่อสอบถามเพิ่มเติม
info@scgrand.co.th
info@scgrand.co.th
751, 753 ถ.เพชรเกษม แขวงบางหว้า เขตภาษีเจริญ กรุงเทพฯ 10160
บริษัท กริท บิลด์ จำกัด
แบบ้าน Mona
- 6 ห้องนอน
- 5 ห้องน้ำ
- 310 ตร.ม.

บริษัท กริท บิลด์ จำกัด
แบบบ้าน Mona
- 6 ห้องนอน
- 5 ห้องน้ำ
- 3 ที่จอดรถ
- 310ตร.ม.
บ้านโมเดิร์น 3 ชั้น โดดเด่นเรื่องฟังก์ชันที่ครบจบ ตอบโจทย์ไลฟ์สไตล์คนเมือง
ติดต่อสอบถามเพิ่มเติม
-
info@gritbuild.net
0933649782
โครงการคริสตัล ดีไซน์ เซ็นเตอร์ ห้องเลขที่ L4-207 ชั้น 2 อาคาร L4 (4L4-207,209) 1448/19 ซอยลาดพร้าว 87 (จันทราสุข) แขวงคลองจั่น เขตบางกะปิ กรุงเทพมหานคร 10240
บริษัท รอแยลเฮ้าส์ จำกัด
แบบ้าน RH-MD. 2169
- 5 ห้องนอน
- 7 ห้องน้ำ
- 440 ตร.ม.

บริษัท รอแยลเฮ้าส์ จำกัด
แบบบ้าน RH-MD. 2169
- 5 ห้องนอน
- 7 ห้องน้ำ
- 3 ที่จอดรถ
- 440ตร.ม.
ดีไซน์ เป็น บ้านหน้ากว้าง นำลักษณะอาคารแนว MODERN LOFT มาใช้ในการออกแบบ โดยเน้นรูปทรงอาคารเป็นทรงจั่ว พื้นที่แปลนแบ่งโซนบริการเช่นห้องครัวไทย ห้องแม่บ้าน โรงจอดรถ ออกจาก โซนพักอาศัยอย่างชัดเจน ออกแบบให้มีความโปร่งโดยใช้กระจกทรงสูงเป็นรูป3เหลี่ยม ล้อไปกับหลังคาทรงจั่ว ทำให้ฝ้าเพดานสามารถเอียงสูงขึ้นไปตามหลังคาจั่ว วัสดุตกแต่งภายนอกเป็นโทนสีอ่อนและสีเข้มตัดกัน ตกแต่งผนังแนว MODERN LOFT ด้วยการกรุไม้สังเคราะห์ สีปูนเปลือย และผนังเหล็กรีดลอนเชื่อมไปกับหลังคา ภายในตัวบ้านประกอบด้วยฟังก์ชั่นที่ครบครัน ตอบโจทย์ลูกค้าที่ชอบในความโปร่ง และความดิบของวัสดุได้เป็นอย่างดี
ติดต่อสอบถามเพิ่มเติม
-
contact@royalhouse.co.th
0-2459-4646
สำนักงานใหญ่ 1148 ถนนนครไชยศรี เขตดุสิต, Bangkok, Thailand, Bangkok
บริษัท โฮมสแควร์ ดีเวลอปเมนท์ จำกัด
แบบ้าน HSD – 09 Cozy
- 5 ห้องนอน
- 6 ห้องน้ำ
- 193 ตร.ม.

บริษัท โฮมสแควร์ ดีเวลอปเมนท์ จำกัด
แบบบ้าน HSD – 09 Cozy
- 5 ห้องนอน
- 6 ห้องน้ำ
- 2 ที่จอดรถ
- 193ตร.ม.
แบบบ้านหน้ากว้างสไตล์ทรอปิคอลโมเดิร์น เน้นความเรียบง่ายผสมผสานกับความทันสมัย ตกแต่งด้วยไม้สำเร็จรูปให้บรรยากาศอบอุ่น พร้อมด้วยการจัดพื้นที่ครบครันถึง 5 ห้องนอน โดยที่มีห้องนอนชั้นล่างสำหรับรองรับผู้สูงอายุในอนาคต เหมาะสำหรับครอบครัวขนาดใหญ่ ที่ต้องการให้สมาชิกในบ้านอยู่อาศัยร่วมกันในบรรยากาศอบอุ่นและการอยู่สบายของคนในครอบครัว
ติดต่อสอบถามเพิ่มเติม
contact@homesquare.co.th
025332622-3 , 02994446
2/69 ถนนลำลูกกา ตำบลลาดสวาย อำเภอลำลูกกา, Lam Luk Ka, Thailand, Pathum Thani
บริษัท เมคเคอร์โฮม จำกัด
แบบ้าน Urban 5
- 5 ห้องนอน
- 6 ห้องน้ำ
- 351 ตร.ม.
ติดต่อสอบถามเพิ่มเติม
info@makerhome.com
081-107-7888
9 ซ.สายสิน, Bangkok, Thailand, Bangkok
บริษัท โฮมสแควร์ ดีเวลอปเมนท์ จำกัด
แบบ้าน HSD – 33 Brighton
- 6 ห้องนอน
- 5 ห้องน้ำ
- 397 ตร.ม.

บริษัท โฮมสแควร์ ดีเวลอปเมนท์ จำกัด
แบบบ้าน HSD – 33 Brighton
- 6 ห้องนอน
- 5 ห้องน้ำ
- 3 ที่จอดรถ
- 397ตร.ม.
แบบบ้าน Modern English Style ให้ความรู้สึกหรูหรา สง่างาม ใช้โทนสีขาวและเทาตกแต่งด้วยลายหินธรรมชาติ มีกลิ่นอายของประเทศฝั่งตะวันตก ที่ผสมผสานความ Modern ได้อย่างลงตัว เหมาะกับบ้านที่มีขนาดที่ดินไม่กว้างมากนัก แต่ต้องการห้องจำนวนมาก สำหรับรองรับการใช้งานต่างๆ
ติดต่อสอบถามเพิ่มเติม
contact@homesquare.co.th
025332622-3 , 02994446
2/69 ถนนลำลูกกา ตำบลลาดสวาย อำเภอลำลูกกา, Lam Luk Ka, Thailand, Pathum Thani
บริษัท โฮมสแควร์ ดีเวลอปเมนท์ จำกัด
แบบ้าน HSD – 06 Modern Cube
- 3 ห้องนอน
- 3 ห้องน้ำ
- 280 ตร.ม.

บริษัท โฮมสแควร์ ดีเวลอปเมนท์ จำกัด
แบบบ้าน HSD – 06 Modern Cube
- 3 ห้องนอน
- 3 ห้องน้ำ
- 2 ที่จอดรถ
- 280ตร.ม.
บ้านสไตล์โมเดิร์น 2 ชั้น ตอบสนองไลฟ์สไตล์ชีวิตสมัยใหม่ ด้วยส่วนพักผ่อนเชื่อมต่อกับส่วนรับประทานอาหารเพื่อให้ได้พื้นที่เปิดโล่งขนาดใหญ่สามารถที่จะปรับเปลี่ยนการใช้งานพื้นที่ได้อเนกประสงค์ยิ่งขึ้น ภายในให้ความรู้สึกโปร่งสบายด้วยกระจกบานสูงและเพดานสูง พร้อมด้วยการจัดสรรพื้นที่สำหรับห้องนอนขนาดใหญ่ 2 ห้อง และห้องพักแขกชั้นล่าง 1 ห้อง
ติดต่อสอบถามเพิ่มเติม
contact@homesquare.co.th
025332622-3 , 02994446
2/69 ถนนลำลูกกา ตำบลลาดสวาย อำเภอลำลูกกา, Lam Luk Ka, Thailand, Pathum Thani
บริษัท ลีอาร์คีเทค จำกัด
แบบ้าน BL-14
- 3 ห้องนอน
- 9 ห้องน้ำ
- 631 ตร.ม.

บริษัท ลีอาร์คีเทค จำกัด
แบบบ้าน BL-14
- 3 ห้องนอน
- 9 ห้องน้ำ
- 3 ที่จอดรถ
- 631ตร.ม.
บ้านที่ตอบโจทย์ชีวิตการอยู่อาศัยกับการทำธุรกิจได้อย่างลงตัว ด้วยสัดส่วนการจัดพื้นที่ใช้สอยให้มีความคล่องตัว เอนกประสงค์ สำหรับการทำงาน แต่ยังคงมีสมดุลของความเป็นบ้าน อีกทั้งมีรูปลักษณ์ภายนอกที่สวยสะดุดตา ออกแบบสอดประสานระหว่างเส้นแนวตั้งและแนวนอน และการใช้สีขาวตัดกับวัสดุโทนน้ำตาล เพิ่มเสน่ห์ด้วยระแนงไม้ พร้อมกับเป็นที่บังแสงแดด มีการใช้กระจกเพื่อเพิ่มมิติให้กับอาคาร
ติดต่อสอบถามเพิ่มเติม
rangfun@leearchitect.co.th
0-2570-2424
59 ถนนประเสริฐมนูกิจ แขวงจรเข้บัว เขตลาดพร้าว กรุงเทพฯ 10230
บริษัท โฮมสแควร์ ดีเวลอปเมนท์ จำกัด
แบบ้าน HSD – 32 The Skyhive
- 6 ห้องนอน
- 7 ห้องน้ำ
- 602 ตร.ม.

บริษัท โฮมสแควร์ ดีเวลอปเมนท์ จำกัด
แบบบ้าน HSD – 32 The Skyhive
- 6 ห้องนอน
- 7 ห้องน้ำ
- 3 ที่จอดรถ
- 602ตร.ม.
แบบบ้าน Modern Style 3 ชั้น มีความทันสมัย แต่ยังคงความเรียบง่าย ตอบสนอง Lifestyle ชีวิตสมัยใหม่ ด้วยส่วนห้องนั่งเล่นและส่วนห้องรับประทานอาหาร ที่ถูกออกแบบให้เชื่อมต่อกับพื้นที่จัดสวนตรงกลางบ้าน และมีห้องรับประทานชั้นบนสุด ที่สามารถเปลี่ยนเป็นพื้นที่พบปะสังสรรค์ได้อีกด้วย พร้อมทั้งมีห้องนอนชั้นล่างสำหรับรองรับผู้สูงอายุ หรือครอบครัวขยายในอนาคต
ติดต่อสอบถามเพิ่มเติม
contact@homesquare.co.th
025332622-3 , 02994446
2/69 ถนนลำลูกกา ตำบลลาดสวาย อำเภอลำลูกกา, Lam Luk Ka, Thailand, Pathum Thani
บริษัท โฟร์พัฒนา จำกัด
แบบ้าน Special Design 1
- 5 ห้องนอน
- 7 ห้องน้ำ
- 400 ตร.ม.

บริษัท โฟร์พัฒนา จำกัด
แบบบ้าน Special Design 1
- 5 ห้องนอน
- 7 ห้องน้ำ
- 2 ที่จอดรถ
- 400ตร.ม.
บ้านสองชั้นขนาดใหญ่ที่พื้นที่ใช้สอยภายในถูกจัดสรรอย่างลงตัว มีพื้นที่ส่วนกลางที่เชื่อมต่อกัน เหมาะกับการสังสรรค์แบบครอบครัวใหญ่ ในขณะเดียวกันก็มีพื้นที่ที่สามารถใช้งานแบบส่วนตัวได้สะดวกสบาย รูปลักษณ์ภายนอกที่ผสมกลิ่นไอของความคลาสสิกเข้าไปในดีไซน์ ไล่ตั้งแต่รูปทรงหลังคา ราวระเบียงเหล็กดัดอิตาลี ไปจนถึงบัวปูนตกแต่งตามชายคา, ซุ้มระเบียง, และบานประตู-หน้าต่าง เสริมให้บ้านมีทั้งความสง่าและละเอียดอ่อนในเวลาเดียวกัน ตัวบ้านถูกคุมโทนด้วยสีขาว-ควันบุหรี่ ตัดกับหลังคาสีน้ำเงินเข้ม ทำให้ภาพรวมออกมาดูเรียบง่าย แต่หรูหราและไร้การเวลา
ติดต่อสอบถามเพิ่มเติม
fourpattana@fourpattana.com
02-940-3789
เลขที่ 2 ซอยลาดปลาเค้า10 แขวงลาดพร้าว เขตลาดพร้าว กรุงเทพฯ 10230
บริษัท ลีอาร์คีเทค จำกัด
แบบ้าน BL-10
- 6 ห้องนอน
- 8 ห้องน้ำ
- 812 ตร.ม.

บริษัท ลีอาร์คีเทค จำกัด
แบบบ้าน BL-10
- 6 ห้องนอน
- 8 ห้องน้ำ
- 4 ที่จอดรถ
- 812ตร.ม.
บ้านที่ตอบสนองทุก Life Style ของผู้อยู่อาศัย เหมาะสำหรับลักษณะครอบครัวแบบขยาย บนขนาดที่ดินที่มีอยู่อย่างจำกัด โดยจะสรรให้มีพื้นที่ใช้สอยมากที่สุด คุ้มค่ากับมูลค่าของที่ดิน เพื่ออยู่ร่วมกันได้หลายครอบครัว หลาย Generation สามารถออกแบบประโยชน์ใช้สอยตาม Life Style ของแต่ละคน ได้อย่างเป็นส่วนตัว ขณะเดียวกันก็สามารถจัดพื้นที่ส่วนกลางใช้ประโยชน์ จัดกิจกรรมในครอบครัวร่วมกัน เช่นส่วนเตรียมอาหาร ช่วยกันทำอาหาร ส่วนออกกำลังกายที่มุมพักผ่อน อ่านหนังสือที่ระเบียง ช่วยให้คนในบ้านได้ใกล้ชิดกันมากขึ้นและในขณะเดียวกันยังสามารถจัดสรรพื้นที่ส่วนตัวได้อย่างพอเพียง รวมทั้งยังใส่ใจเรื่องความสะดวกสบายและความปลอดภัยสำหรับผู้สูงวัย
ติดต่อสอบถามเพิ่มเติม
rangfun@leearchitect.co.th
0-2570-2424
59 ถนนประเสริฐมนูกิจ แขวงจรเข้บัว เขตลาดพร้าว กรุงเทพฯ 10230
บริษัท ดับบลิวเฮ้าส์ จำกัด
แบบ้าน M-044
- 4 ห้องนอน
- 8 ห้องน้ำ
- 884.81 ตร.ม.

บริษัท ดับบลิวเฮ้าส์ จำกัด
แบบบ้าน M-044
- 4 ห้องนอน
- 8 ห้องน้ำ
- 2 ที่จอดรถ
- 884.81ตร.ม.
เอกลักษณ์และจุดเด่น ของบ้านสไตล์โมเดิร์น ที่เน้นที่พักอาศัยและพื้นที่สำหรับการประกอบกิจกรรมประเภทออฟฟิศสำนักงาน พื้นที่ชั้น 1 ประกอบไปด้วยลานจอดรถขนาด 4 คันห้องนั่งเล่นขนาดใหญ่ พื้นที่รับประทานอาหารขนาดใหญ่ และห้องสำหรับแม่บ้าน และยังมีสระว่ายน้ำขนาดยาว 11 เมตร และพื้นที่รองรับการทำกิจกรรม กลางแจ้ง พื้นที่ชั้น 2 ประกอบไปด้วย ห้องนอน 4 ห้อง ซึ่งหนึ่งในนั้นเป็นห้องนอนขนาดใหญ่หรือห้องนอน Master Bedroom ทั้งยังมีพื้นที่สำหรับ ออฟฟิศ รองรับสำหรับผู้ที่มีความต้องการ ที่จะประกอบงานสำนักงานภายในบ้านพัก วัสดุของบ้านหลังนี้นี่จะเน้นไปทางสีส้มซึ่งเป็นสีที่มาจาก การก่ออิฐโชว์แนว และสีดำที่มาจากการใช้โครงสร้างเหล็กและการตกแต่งด้วยวัสดุเหล็ก ซึ่งทำให้ภายนอกเมื่อมองเข้าไปแล้วรู้สึกถึงความเป็นบ้านสไตล์ลอฟท์ด้วยทั้งการใช้สีและการโชว์วัสดุต่างๆ ทั้งหมดนี้ทำให้บ้านหลังนี้เป็น "คำตอบ" ให้กับคนที่ต้องการบ้านสไตล์โมเดินขนาดใหญ่และพื้นที่สำนักงาน
ติดต่อสอบถามเพิ่มเติม
whwhouse@yahoo.com
0-2349-7668 ถึง 72
65/6 ซอยรามอินทรา 14 แขวงท่าแร้ง เขตบางเขน กรุงเทพฯ 10230
บริษัท บ้านมหานคร จำกัด
แบบ้าน Model : OPAL
- 6 ห้องนอน
- 7 ห้องน้ำ
- 498 ตร.ม.

บริษัท บ้านมหานคร จำกัด
แบบบ้าน Model : OPAL
- 6 ห้องนอน
- 7 ห้องน้ำ
- 2 ที่จอดรถ
- 498ตร.ม.
แบบบ้านสไตล์โมเดิร์น ที่มีดีไซน์เรียบหรู สวยงาม รูปทรงตัวยู ภายในประกอบไปด้วย 6 ห้องนอน เหมาะกับครอบครัวขนาดใหญ่ พร้อมการจัดรูปแบบพื้นที่การใช้สอยอย่างคุ้มค่าและลงตัว ภายในจัดสรรพื้นที่พักผ่อนร่วมกัน โดยมีห้องโถงใหญ่เป็นจุดเชื่อมโยงของทุกคนในครอบครัว พร้อมฟังก์ชั่นภายในบ้านครบครันทันสมัย ที่สะท้อนถึงความเรียบหรูอย่างมีระดับ
ติดต่อสอบถามเพิ่มเติม
bnkgroup_2023@hotmail.com
095-369-9584
เลขที่ 1/1 ซอย เคหะร่มเกล้า 74 แยก 4 แขวง ราษฎร์พัฒนา เขต สะพานสูง จังหวัด กรุงเทพมหานคร รหัสไปรษณีย์ 10240
บริษัท ไวส์ บิวเดอร์ จำกัด
แบบ้าน Llamativo (โฉบเฉี่ยว)
- 5 ห้องนอน
- 7 ห้องน้ำ
- 517 ตร.ม.

บริษัท ไวส์ บิวเดอร์ จำกัด
แบบบ้าน Llamativo (โฉบเฉี่ยว)
- 5 ห้องนอน
- 7 ห้องน้ำ
- 3 ที่จอดรถ
- 517ตร.ม.
ฉีกรูปแบบของบ้านที่คุ้นเคย ด้วยสีสันฉูดฉาดและเหลี่ยมมุมที่สะท้อนความสมัยใหม่ตัวอาคารเล่นระดับ Façade ให้รู้สึกถึง Movement ไม่น่าเบื่อ และปลอดโปร่งด้วยบ้านรูปตัว U
ติดต่อสอบถามเพิ่มเติม
-
-
admin_wb@wisebuilder.co.th
02-574-5616, 099-857-1132
99/33 ซอยแจ้งวัฒนะ 13 ทุ่งสองห้อง หลักสี่, Bangkok, Thailand, Bangkok
บริษัท ซีคอน จำกัด
แบบ้าน The Fame 1022
- 6 ห้องนอน
- 6 ห้องน้ำ
- 1022 ตร.ม.

บริษัท ซีคอน จำกัด
แบบบ้าน The Fame 1022
- 6 ห้องนอน
- 6 ห้องน้ำ
- 4 ที่จอดรถ
- 1022ตร.ม.
โดดเด่นทันสมัย ผ่านการ Design ที่แฝงไปด้วยความเรียบหรูเฉพาะตัว เน้นความสวยงามด้วยวัสดุกรุผิวและเส้นสายของงานตกแต่ง โถงทางเข้ากว้างขวางและสูงเป็นพิเศษถูกออกแบบให้สัมผัสได้ถึงความ Grand และอลังการ พื้นที่ภายในถูกออกแบบโดยเน้นความโปร่งเพื่อบรรยากาศที่ดีและมีความต่อเนื่องกันอย่างลงตัว ส่วน Service ถูกจัดวางเป็นสัดส่วนชัดเจนไม่รบกวนส่วนอยู่อาศัย ชั้นบนประกอบด้วยห้องนอน พร้อมพื้นที่ใช้สอยส่วนกลางทุกชั้น สำหรับทำกิจกรรมร่วมกันของคนในครอบครัว และออกแบบให้สามารถปรับเปลี่ยน Function ได้ตามความต้องการ
ติดต่อสอบถามเพิ่มเติม
info@seacon.co.th
1391
107-115 ถนนสี่พระยา บางรัก กรุงเทพฯ 10500
บริษัท บ้านมหานคร จำกัด
แบบ้าน Model : OLIVINE
- 5 ห้องนอน
- 6 ห้องน้ำ
- 862 ตร.ม.

บริษัท บ้านมหานคร จำกัด
แบบบ้าน Model : OLIVINE
- 5 ห้องนอน
- 6 ห้องน้ำ
- 4 ที่จอดรถ
- 862ตร.ม.
แบบบ้านสไตล์โมเดิร์น ที่ตอบโจทย์สำหรับครอบครัวใหญ่ ที่มีพื้นที่ใช้สอยและฟังก์ชั่นต่างๆภายในบ้านครบครันกว้างขวาง มีกระจกโดยรอบเพื่อให้อากาศถ่ายเทภายใน ตอบโจทย์การใช้งานของทุกคนในครอบครัว ภายนอกตกแต่งด้วยระแนงไม้เทียม ทำให้เพิ่มความอบอุ่นของบ้าน และยังมีดีไซน์โดดเด่นเป็นเอกลักษณ์ ที่ออกมาในรูปแบบสไตล์โมเดิร์นเฉพาะตัวเรียบหรูอย่างมีระดับ
ติดต่อสอบถามเพิ่มเติม
bnkgroup_2023@hotmail.com
095-369-9584
เลขที่ 1/1 ซอย เคหะร่มเกล้า 74 แยก 4 แขวง ราษฎร์พัฒนา เขต สะพานสูง จังหวัด กรุงเทพมหานคร รหัสไปรษณีย์ 10240
บริษัท เมคเคอร์โฮม จำกัด
แบบ้าน Villa 3
- 5 ห้องนอน
- 6 ห้องน้ำ
- 345 ตร.ม.
ติดต่อสอบถามเพิ่มเติม
info@makerhome.com
081-107-7888
9 ซ.สายสิน, Bangkok, Thailand, Bangkok
บริษัท บิวท์ ทู บิวด์ จำกัด
แบบ้าน GLORY
- 6 ห้องนอน
- 6 ห้องน้ำ
- 692 ตร.ม.

บริษัท บิวท์ ทู บิวด์ จำกัด
แบบบ้าน GLORY
- 6 ห้องนอน
- 6 ห้องน้ำ
- 4 ที่จอดรถ
- 692ตร.ม.
บ้าน style modern loft ที่ผสมผสานความเรียบง่ายเเละทันสมัยเข้ากับความดิบของปูนเปลือยได้อย่างลงตัว เเละฟาซาดสีขาวที่ดูเรียบง่ายเเต่ยังคงความเป็นส่วนตัวให้กับผู้อยู่อาศัย บ้านหลังนี้ถูกออกแบบมาให้มีฟังก์ชั่นครบถ้วนเหมาะกับคนรุ่นใหม่ที่ชอบความเป็นส่วนตัว เพราะมีห้องนอนที่มีห้องน้ำในตัวอยู่ถึง 5 ห้องอีกทั้งยังมีห้องพระเเละส่วนพักผ่อนที่อยู่ชั้นบน มีโถงที่สามารถเชื่อมออกมาสู่ระเบียงด้านนอก ที่มีขนาดใหญ่ สามารถเปิดรับบรรยากาศธรรมชาติได้ บริเวณชั้นล่างมีโถงขนาดใหญ่้เปิดโล่ง ที่ทำหน้าที่เชื่อมฟังก์ชั่นใช้สอยภายในเข้าด้วยกัน เเละใช้เป็นพื้นที่เชื่อมระหว่างภายในเเละภายนอก ที่มีเฉลียงขนาดใหญ่ตอบรับกับกิจกรรม outdoor เพื่อการมีปฏิสัมพันธ์กันในครอบครัว จุดเด่นพิเศษอีกหนึ่งอย่างของบ้านหลังนี้คือ สามารถสร้างได้ทั้งในที่ดินหน้ากว้างเเละหน้าแคบเพราะถูกออกแบบให้สวยงามแบบรอบด้าน
ติดต่อสอบถามเพิ่มเติม
btbbuilt@gmail.com
02-721-3999
8 ซอย อ่อนนุช 46 ถนน อ่อนนุช แขวง สวนหลวง เขต สวนหลวง, Bangkok, Thailand, Bangko
บริษัท มีนบุรีรักสร้างบ้าน จำกัด
แบบ้าน MG GRAND 3
- 4 ห้องนอน
- 6 ห้องน้ำ
- 650 ตร.ม.

บริษัท มีนบุรีรักสร้างบ้าน จำกัด
แบบบ้าน MG GRAND 3
- 4 ห้องนอน
- 6 ห้องน้ำ
- 2 ที่จอดรถ
- 650ตร.ม.
ทันสมัย โดดเด่นในฟอร์มบ้านประกอบ ประสานอย่างกลมกลืนด้วยหินตกแต่งจากธรรมชาติ ผังแปลนโอบล้อม จอดรถและเฉลียง แบ่งพื้นที่ใช้สอยชั้นล่างเป็นส่วนรับแขกและส่วนพักผ่อน ชั้นบนจัดเป็นส่วนห้องนอนขนาดใหญ่ 3 ห้อง
ติดต่อสอบถามเพิ่มเติม
-
Meanbureruk
Hug.mean38@gmail.com
034-271-203
ถนน เทศา, Nakhon Pathom, Thailand, Nakhon Pathom
บริษัท ไวส์ บิวเดอร์ จำกัด
แบบ้าน PIETRA
- 3 ห้องนอน
- 3 ห้องน้ำ
- 231 ตร.ม.

บริษัท ไวส์ บิวเดอร์ จำกัด
แบบบ้าน PIETRA
- 3 ห้องนอน
- 3 ห้องน้ำ
- 2 ที่จอดรถ
- 231ตร.ม.
บ้าน...สไตล์ปูนเปลือยที่ออกแบบให้มีความโดดเด่น โชว์เสน่ห์ของผนังที่มีผิวสัมผัสเป็นเอกลักษณ์และทันสมัย แต่ยังมีกลิ่นอายของความเป็นบ้าน ที่ให้ความรู้สึกสะดวกสบายและอบอุ่นแก่ผู้อยู่อาศัย
ติดต่อสอบถามเพิ่มเติม
-
-
admin_wb@wisebuilder.co.th
02-574-5616, 099-857-1132
99/33 ซอยแจ้งวัฒนะ 13 ทุ่งสองห้อง หลักสี่, Bangkok, Thailand, Bangkok
บริษัท แลนดี้ โฮม (ประเทศไทย) จำกัด
แบบ้าน Evergreen
- 4 ห้องนอน
- 3 ห้องน้ำ
- 234 ตร.ม.
บริษัท แลนดี้ โฮม (ประเทศไทย) จำกัด
แบบบ้าน Evergreen
- 4 ห้องนอน
- 3 ห้องน้ำ
- 2 ที่จอดรถ
- 234ตร.ม.
บ้านสวย Modern Minimal Tropical Style สำหรับครอบครัวคน New Gen ที่ชื่นชอบแบบบ้านที่เต็มไปด้วยกลิ่นอายสถาปัตยกรรมเขตร้อน อบอุ่น อยู่สบาย จากการออกแบบที่ใส่ใจทุกรายละเอียด ทำให้ได้บ้านที่โปร่งโล่ง หรูหรา เหมาะสำหรับการชมวิวภายนอก
ติดต่อสอบถามเพิ่มเติม
cr@landymail.com
02-938-3456-7
90/2 ถนนราชพฤกษ์ แขวงบางระมาด เขตตลิ่งชัน กรุงเทพมหานคร 10170
บริษัท แลนดี้ โฮม (ประเทศไทย) จำกัด
แบบ้าน Grand Royal 03
- 6 ห้องนอน
- 4 ห้องน้ำ
- 347 ตร.ม.

บริษัท แลนดี้ โฮม (ประเทศไทย) จำกัด
แบบบ้าน Grand Royal 03
- 6 ห้องนอน
- 4 ห้องน้ำ
- 2 ที่จอดรถ
- 347ตร.ม.
แบบบ้านสำหรับใครที่ชอบความหรูหรา ใหญ่โต Grand Royal 03 คือแบบบ้านที่จะตอบโจทย์ทุกความต้องการของคุณ ซึ่งแบบบ้านเหลังนี้หมาะสำหรับครอบครัวขนาดใหญ่ เพราะด้วยการออกแบบที่โดดเด่น ให้มีพื้นที่ถึง 3 ชั้น โดยเพดานของชั้น 1 และ 2 มีการออกแบบให้เป็น Double space ที่สามารถทะลุผ่านถึงกันได้ ทำให้ตัวบ้านดูสูง โปร่ง และตกแต่งแบบเรียบหรูในโทนสีครีม ที่ตัดด้วยบัวปูนปั้นสีขาว ให้มีกลิ่นอายแบบผู้ดีอังกฤษ
ติดต่อสอบถามเพิ่มเติม
cr@landymail.com
02-938-3456-7
90/2 ถนนราชพฤกษ์ แขวงบางระมาด เขตตลิ่งชัน กรุงเทพมหานคร 10170
บริษัท กริท บิลด์ จำกัด
แบบ้าน ATTA-B
- 7 ห้องนอน
- 8 ห้องน้ำ
- 921 ตร.ม.

บริษัท กริท บิลด์ จำกัด
แบบบ้าน ATTA-B
- 7 ห้องนอน
- 8 ห้องน้ำ
- 5 ที่จอดรถ
- 921ตร.ม.
แบบบ้านสไตล์ modern tropical แนวคิดออกแบบที่มีอัตลักษณ์ผสมผสานความทันสมัยและธรรมชาติ ตอบโจทย์ครอบครัวขนาดใหญ่ด้วยพื้นที่ใช้สอยที่ออกแบบมาอย่างพิถีพิถัน การออกแบบมีการเลือกส่วนสีตัวอาคารโดยส่วนที่เน้นสร้างมิติให้อาคาร เราเลือกใช้สีเทคเจอร์และหินวีเนียร์โทนสีเทาและดำ ที่มีผิวสัมผัสเฉพาะตัว เพื่อเพิ่มความเข้มขรึมให้กับตัวอาคาร อีกทั้งยังเลือกใช้วัสดุตกแต่งตัวอาคารที่มีลวดลายคล้ายไม้ ที่เมื่อกระทบกับแสงแดดจะให้ความรู้สึกที่อบอุ่นและผ่อนคลาย รวมถึงการเลือกใช้ ( Facade ) เพื่อเพิ่มความน่าค้นหาให้กับตัวอาคาร เพื่อสะท้อนถึงการตกแต่งที่หรูหราภายในบ้าน ในส่วนของกระจกได้เลือกใช้กระจกที่สูงจรดเพดาน การแบ่งสัดส่วนภายใน มีความโปร่งสบายไม่อึดอัด แต่ยังคงมีความเป็นส่วนตัวของผู้อยู่อาศัย ฟังก์ชันการใช้สอยภายในบ้านที่มีทั้งพื้นที่ส่วนตัวและส่วนกลาง ประกอบด้วย 7 ห้องนอน 8 ห้องน้ำ 4 ห้องอเนกประสงค์ 1 สระว่ายน้ำ และ ระเบียงขนาดใหญ่ บริเวณชั้น 2 ที่รองรับกิจกรรมต่าง ๆ ได้อย่างหลากหลาย เหมาะกับการทำกิจกรรมภายในครอบครัวหรือจะชวนเพื่อน ๆ มาสังสรรค์ในช่วงเทศกาลต่าง ๆ บ้านหลังนี้จึงตอบโจทย์ความต้องการของสมาชิกในครอบครัวทุกช่วงวัย
ติดต่อสอบถามเพิ่มเติม
-
info@gritbuild.net
0933649782
โครงการคริสตัล ดีไซน์ เซ็นเตอร์ ห้องเลขที่ L4-207 ชั้น 2 อาคาร L4 (4L4-207,209) 1448/19 ซอยลาดพร้าว 87 (จันทราสุข) แขวงคลองจั่น เขตบางกะปิ กรุงเทพมหานคร 10240
บริษัท แลนดี้ โฮม (ประเทศไทย) จำกัด
แบบ้าน Marshal
- 4 ห้องนอน
- 5 ห้องน้ำ
- 738 ตร.ม.

บริษัท แลนดี้ โฮม (ประเทศไทย) จำกัด
แบบบ้าน Marshal
- 4 ห้องนอน
- 5 ห้องน้ำ
- 4 ที่จอดรถ
- 738ตร.ม.
Marshal โดดเด่นที่สุดกับโถงทางเข้าบ้าน Main Entrance ที่ออกแบบให้ถูกต้องตามหลักศาสตร์ฮวงจุ้ย ตรงตามความเชื่อว่ายิ่งประตูหน้าบ้านมีขนาดใหญ่จะยิ่งดี เปิดรับทรัพย์และพลังงานบวกเข้าสู่บ้าน ช่วยให้บ้านมั่นคงร่ำรวย และยังออกแบบจัดวาง Zoning ที่จะทำให้บ้านสว่าง รับพลังงานชีวิตให้ผู้อยู่อาศัยสดใสรุ่งเรือง บนพื้นที่กว่า 738 ตารางเมตร นอกจากแบบบ้านมาตรฐาน 4 ห้องนอน 5 ห้องน้ำ 4 ที่จอดรถ แล้วยังมีห้องอเนกประสงค์มากมาย ไม่ว่าจะเป็นห้องฟิตเนส ห้องแม่บ้าน ห้องทำงาน ส่วนชั้น 2 สำหรับ Master Bedroom เพิ่มพื้นที่ Landscape ให้สามารถจัดสวนสวยส่วนตัว ที่จะช่วยทำให้บ้านดูร่มรื่น สบายตา
ติดต่อสอบถามเพิ่มเติม
cr@landymail.com
02-938-3456-7
90/2 ถนนราชพฤกษ์ แขวงบางระมาด เขตตลิ่งชัน กรุงเทพมหานคร 10170
บริษัท บิวท์ ทู บิวด์ จำกัด
แบบ้าน Eternal
- 6 ห้องนอน
- 8 ห้องน้ำ
- 1253 ตร.ม.

บริษัท บิวท์ ทู บิวด์ จำกัด
แบบบ้าน Eternal
- 6 ห้องนอน
- 8 ห้องน้ำ
- 6 ที่จอดรถ
- 1253ตร.ม.
สไตล์ Modern ดีไซน์เรียบหรู ทันสมัย ผสมผสานกับกลิ่นอายความเป็น Tropical เอกลักษณ์ของบ้าน คือ การสร้างสเปซที่โปร่งขนาดใหญ่ เน้นความเรียบง่ายทันสมัย และการใช้ประโยชน์จากธรรมชาติ โดยเฉพาะแสงเข้ากับทุกไลฟ์สไตล์ได้อย่างหลากหลายมุมมองและหลากหลายมิติ ออกแบบอย่างพิถีพิถันเพื่อสร้างสรรค์พื้นที่ใช้สอยภายในบ้านให้มีทั้งความเรียบง่าย ไม่ซับซ้อน แต่ดูหลากหลายในด้านของประโยชน์ใช้สอยที่จัดสรรเอาไว้อย่างลงตัว พร้อมไฮไลท์โดดเด่นในส่วนของพื้นที่สำหรับโซนสระว่ายน้ำ ทั้งยังมีเฉลียงรองรับสำหรับ Party ของสมาชิกภายในบ้าน หรือผู้ที่มาเยี่ยมเยียนได้อย่างหลากหลาย
ติดต่อสอบถามเพิ่มเติม
btbbuilt@gmail.com
02-721-3999
8 ซอย อ่อนนุช 46 ถนน อ่อนนุช แขวง สวนหลวง เขต สวนหลวง, Bangkok, Thailand, Bangko
บริษัท โฮมสแควร์ ดีเวลอปเมนท์ จำกัด
แบบ้าน HSD – 08 Classy Modern
- 3 ห้องนอน
- 4 ห้องน้ำ
- 387 ตร.ม.

บริษัท โฮมสแควร์ ดีเวลอปเมนท์ จำกัด
แบบบ้าน HSD – 08 Classy Modern
- 3 ห้องนอน
- 4 ห้องน้ำ
- 3 ที่จอดรถ
- 387ตร.ม.
บ้านออกแบบสไตล์โมเดิร์น ให้ความรู้สึกโปร่งด้วยกระจกบานสูง ตกแต่งด้วยหิน และโทนสีเข้ม ทำให้บ้านดูทันสมัยอย่างมีระดับ การจัดสรรพื้นที่ภายในที่เน้นการอยู่สบายๆไม่อึดอัดจนเกินไป มี 3 ห้องนอนโดยมีห้องน้ำในตัวทุกห้องและมีห้องพักผ่อนบนชั้น 2 ขนาดใหญ่ เหมาะกับผู้อยู่ที่ต้องการบ้านสไตล์เรียบง่ายอยู่สบาย
ติดต่อสอบถามเพิ่มเติม
contact@homesquare.co.th
025332622-3 , 02994446
2/69 ถนนลำลูกกา ตำบลลาดสวาย อำเภอลำลูกกา, Lam Luk Ka, Thailand, Pathum Thani
บริษัท เมคเคอร์โฮม จำกัด
แบบ้าน ND15-03
- 8 ห้องนอน
- 9 ห้องน้ำ
- 964 ตร.ม.
ติดต่อสอบถามเพิ่มเติม
info@makerhome.com
081-107-7888
9 ซ.สายสิน, Bangkok, Thailand, Bangkok
บริษัท ดับบลิวเฮ้าส์ จำกัด
แบบ้าน T011
- 3 ห้องนอน
- 4 ห้องน้ำ
- 440 ตร.ม.

บริษัท ดับบลิวเฮ้าส์ จำกัด
แบบบ้าน T011
- 3 ห้องนอน
- 4 ห้องน้ำ
- 3 ที่จอดรถ
- 440ตร.ม.
แบบบ้าน 2 ชั้นในเมืองที่เน้นการใช้วัสดุตกแต่งธรรมชาติเช่นผนังกรุหินและไม้เทียม อีกทั้งมีการจัดวางพื้นที่ให้เกิดประโยชน์ใช้สอยได้มากที่สุด มีคอรด์กลางบ้านเพื่อสร้างมุมมองและทำให้บรรยากาศร่มรื่นน่าพักอาศัย
ติดต่อสอบถามเพิ่มเติม
whwhouse@yahoo.com
0-2349-7668 ถึง 72
65/6 ซอยรามอินทรา 14 แขวงท่าแร้ง เขตบางเขน กรุงเทพฯ 10230
บริษัท ไวส์ บิวเดอร์ จำกัด
แบบ้าน The Estrella
- 4 ห้องนอน
- 4 ห้องน้ำ
- 404 ตร.ม.

บริษัท ไวส์ บิวเดอร์ จำกัด
แบบบ้าน The Estrella
- 4 ห้องนอน
- 4 ห้องน้ำ
- 3 ที่จอดรถ
- 404ตร.ม.
ความโดดเด่นที่ต้องหันมอง ด้วยรูปลักษณ์ที่แตกต่างไม่เหมือนใครด้วยดีไซน์เฉพาะตัวของ WISE STUDIO ทำให้บ้านของคุณมีเอกลักษณ์ โดยยังคงไว้ซึ่งพื้นที่ใช้สอยสำหรับทุกคนในครอบครัว
ติดต่อสอบถามเพิ่มเติม
-
-
admin_wb@wisebuilder.co.th
02-574-5616, 099-857-1132
99/33 ซอยแจ้งวัฒนะ 13 ทุ่งสองห้อง หลักสี่, Bangkok, Thailand, Bangkok
บริษัท รอแยลเฮ้าส์ จำกัด
แบบ้าน RH-MD. 2170
- 3 ห้องนอน
- 5 ห้องน้ำ
- 485.5 ตร.ม.

บริษัท รอแยลเฮ้าส์ จำกัด
แบบบ้าน RH-MD. 2170
- 3 ห้องนอน
- 5 ห้องน้ำ
- 1 ที่จอดรถ
- 485.5ตร.ม.
ดีไซน์ เป็น บ้านโชว์ 2 หน้า นำลักษณะอาคารแนว MODERN LOFT มาใช้ในการออกแบบ สร้างความน่าสนใจโดยนำพื้นที่จอดรถซ่อนไว้ด้านข้างของอาคาร และแยกก้อนบันไดออกมาจากตัวบ้าน ด้านหน้าโชว์พื้นที่เฉลียงและบ่อน้ำ โดยห้องรับแขกทำช่องแสงบานใหญ่เพื่อเชิ่อมต่อการใช้พื้นที่เฉลียง การเลือกใช้วัสดุตกแต่งภายนอกเป็นโทนอ่อนและสีเข้มตัดกัน ตกแต่งผนังแนว MODERN LOFT ด้วยการกรุไฟเบอร์ซีเมนต์เลียนแบบผนังสำเร็จรูป การกรุกระเบื้อง กรุไม้ฝาเทียม และใช้ไฟเบอร์ซีเมนต์เลียนแบบเหล็ก H-BEAMในการตกแต่งอาคาร ชั้นบนออกแบบแผงระแนงเหล็กแนวนอนเพื่อบังแสงแดด เน้นห้องนอนใหญ่ให้ช่องแสงที่กว้าง ทำให้ภายในดูโล่ง ภายในตัวบ้านประกอบด้วยฟังก์ชั่นที่ครบครัน
ติดต่อสอบถามเพิ่มเติม
-
contact@royalhouse.co.th
0-2459-4646
สำนักงานใหญ่ 1148 ถนนนครไชยศรี เขตดุสิต, Bangkok, Thailand, Bangkok
บริษัท บ้านมหานคร จำกัด
แบบ้าน Model : JASPER
- 4 ห้องนอน
- 7 ห้องน้ำ
- 560 ตร.ม.

บริษัท บ้านมหานคร จำกัด
แบบบ้าน Model : JASPER
- 4 ห้องนอน
- 7 ห้องน้ำ
- 2 ที่จอดรถ
- 560ตร.ม.
แบบบ้านสไตล์นอร์ดิกที่มีการการผสมผสานกับสไตล์โมเดิร์นได้ออกมาอย่างลงตัว ความโดดเด่นคือการผสมผสานความเรียบง่ายของสไตล์นอร์ดิกให้เข้ากับความคมชัดของสไตล์โมเดิร์น มาพร้อมการจัดสรรฟังก์ชั่นการใช้งานภายในบ้านอย่างลงตัว ตอบโจทย์ครอบครัวยุคใหม่ ทำให้บ้านหลังนี้มีเอกลักษณ์ที่พิเศษแปลกใหม่ไม่เหมือนใคร ที่สะท้อนถึงความเรียบหรูอย่างมีระดับ
ติดต่อสอบถามเพิ่มเติม
bnkgroup_2023@hotmail.com
095-369-9584
เลขที่ 1/1 ซอย เคหะร่มเกล้า 74 แยก 4 แขวง ราษฎร์พัฒนา เขต สะพานสูง จังหวัด กรุงเทพมหานคร รหัสไปรษณีย์ 10240
บริษัท โฮมสแควร์ ดีเวลอปเมนท์ จำกัด
แบบ้าน HSD-M05 Tiny Timber
- 2 ห้องนอน
- 3 ห้องน้ำ
- 322 ตร.ม.

บริษัท โฮมสแควร์ ดีเวลอปเมนท์ จำกัด
แบบบ้าน HSD-M05 Tiny Timber
- 2 ห้องนอน
- 3 ห้องน้ำ
- 2 ที่จอดรถ
- 322ตร.ม.
บ้านโมเดิร์นที่มีฟังก์ชันครบ มีหน้าต่างบานใหญ่มองออกไปเห็นทัศนียภาพภายนอกบ้านได้และเพื่อรับลมอีกด้วย ตัวบ้านทาสีขาวดูสวยสะอาดและทำให้บ้านดูอบอุ่น เหมาะสำหรับผู้ที่ชื่นชอบแบบบ้านสไตล์โมเดิร์น ได้มีแบบบ้านที่มีรูปทรงที่เป็นเอกลักษณ์ เน้นประโยชน์ใช้สอย และมีราคาที่สามารถเข้าถึงได้
ติดต่อสอบถามเพิ่มเติม
contact@homesquare.co.th
025332622-3 , 02994446
2/69 ถนนลำลูกกา ตำบลลาดสวาย อำเภอลำลูกกา, Lam Luk Ka, Thailand, Pathum Thani
บริษัท จีบีซี เฮ้าส์ จำกัด
แบบ้าน บ้านพิมมุกดา
- 6 ห้องนอน
- 5 ห้องน้ำ
- 297 ตร.ม.

บริษัท จีบีซี เฮ้าส์ จำกัด
แบบบ้าน บ้านพิมมุกดา
- 6 ห้องนอน
- 5 ห้องน้ำ
- 2 ที่จอดรถ
- 297ตร.ม.
พิมมุกดา บ้านที่สะท้อนเอกลักษณ์ของการออกแบบสไตล์ Modern tropical elegance ด้วยวัสดุตกแต่งอลูมีเนียมลายไม้ที่เพิ่มความอบอุ่นและมีสเน่ห์ ผสานการออกแบบพื้นที่ใช้สอย 297 ตร.ม อย่างชาญฉลาด รองรับทุกฟังก์ชั่นสำหรับครอบครัว พร้อมดีไซน์ที่สะท้อนความหรูหราและรสนิยมอันเหนือระดับ
ติดต่อสอบถามเพิ่มเติม
-
080-425-4100
951/13 ถนนพุทธมณฑลสาย3, Bangkok, Thailand, Bangkok
บริษัท ลีอาร์คีเทค จำกัด
แบบ้าน BL-15 : The Atrium Sky Manor
- 5 ห้องนอน
- 7 ห้องน้ำ
- 803 ตร.ม.

บริษัท ลีอาร์คีเทค จำกัด
แบบบ้าน BL-15 : The Atrium Sky Manor
- 5 ห้องนอน
- 7 ห้องน้ำ
- 4 ที่จอดรถ
- 803ตร.ม.
บ้านที่ได้แรงบันดาลใจมาจาก Resort & Spa! เน้นคอนเซ็ปต์ของการจัดสัดส่วนอย่างลงตัวระหว่างการพักผ่อนและการทำกิจกรรม สะท้อนการดีไซน์แบบ function to Form ของอาคาร ที่ตอบโจทย์ทั้งการใช้ชีวิตและสุนทรียภาพของสถาปัตยกรรม โดยบ้านหลังนี้ออกแบบส่วนตรงกลางเป็น Courtyard เปิดโล่ง รูปตัว U เป็นพื้นที่สระว่ายน้ำและเฉลียงขนาดใหญ่เป็นจุดพักผ่อนหลักของบ้าน ที่สามารถเชื่อมต่อพื้น Flow of Space) ไปยัง Dining และ Living area ได้ และมีส่วนของ Salon & Gym ที่มองออกมาเห็นวิวสระว่ายน้ำและสวนกลางบ้านเพิ่มความผ่อนคลาย และเชื่อมต่อพื้นที่ชั้นสองด้วยโถงสูงเปิดโล่งและบันไดทอดยาวไปยังห้องพักผ่อนส่วนกลางของครอบครัว ก่อนจะนำทางไปยังห้องนอนส่วนตัวของแต่ละคน ฟอร์มของอาคารใช้การคว้านและยื่นตัวกล่องอาคารเพื่อการเว้นจังหวะของสัดส่วนอาคาร และใช้ Facade อิฐบล็อกเรียงตัวสลับกันเป็นการบดบังสายตาและเปิดมุมมองส่วนระเบียง และระแนงไม้ที่ยาวบดบังทางเดินและส่วนกลางของบ้าน เพิ่มความเป็นส่วนตัวมากขึ้นด้วยการจัดสวนหน้าบ้าน ทั้งยังได้ลมเย็นเข้าสูตัวอาคารอีกด้วย
ติดต่อสอบถามเพิ่มเติม
rangfun@leearchitect.co.th
0-2570-2424
59 ถนนประเสริฐมนูกิจ แขวงจรเข้บัว เขตลาดพร้าว กรุงเทพฯ 10230
บริษัท ลีอาร์คีเทค จำกัด
แบบ้าน BL-11 Modern Elegant
- 5 ห้องนอน
- 8 ห้องน้ำ
- 680 ตร.ม.

บริษัท ลีอาร์คีเทค จำกัด
แบบบ้าน BL-11 Modern Elegant
- 5 ห้องนอน
- 8 ห้องน้ำ
- 0 ที่จอดรถ
- 680ตร.ม.
อีกมิติของแบบบ้านโมเดิร์น ที่มีเอกลักษณ์โดดเด่นทันสมัย ด้วยรูปทรงที่เรียบหรู สง่างาม พิถีพิถัน ตกแต่งด้วยอลูมิเนียมฉลุลาย สีพิงค์โกล์ด เพิ่มมุมมองให้กับตัวบ้านที่แปลกตา สวยเก๋ ดูดีมีสไตล์ เหมาะกับรสนิยม (LIFE STYLE) ของคนรุ่นใหม่ ความโอ่โถง ซุ้มทางเข้าโปร่งโล่ง DOUBLE VOLUMN ที่เชื่อมด้วยซุ้มทางเดิน (WALK WAY) จากโรงรถและเพิ่มสเน่ห์ของบ้านด้วยมุมทำงานกลางสวนหน้าบ้าน เป็นสัดส่วนสำหรับแขกพิเศษ อีกทั้ง FUNCTION ที่ครบครัน ด้วยความน่าสนใจของเฉลียงพักผ่อนหลังบ้านที่มีหลังคาคลุมโปร่งโล่ง ทำให้สมาชิกครอบครัวทุกวัยทำกิจกรรมด้วยกันอย่างลงตัว
ติดต่อสอบถามเพิ่มเติม
rangfun@leearchitect.co.th
0-2570-2424
59 ถนนประเสริฐมนูกิจ แขวงจรเข้บัว เขตลาดพร้าว กรุงเทพฯ 10230
บริษัท เอส ซี แกรนด์ จำกัด
แบบ้าน THE GRAND 629
- 6 ห้องนอน
- 7 ห้องน้ำ
- 629 ตร.ม.

บริษัท เอส ซี แกรนด์ จำกัด
แบบบ้าน THE GRAND 629
- 6 ห้องนอน
- 7 ห้องน้ำ
- 4 ที่จอดรถ
- 629ตร.ม.
ตัวบ้านถูกออกแบบในสไตล์ Modern Luxury ที่ให้ความเรียบหรู ดูทันสมัย บวกกับลักษณะของเส้นสายกรอบสี่เหลี่ยมด้านหน้าที่ช่วยสร้างเอกลักษณ์ให้บ้านหลังนี้ดูโมเดิร์นมากยิ่งขึ้น นอกจากนี้ยังมีในส่วนของกระจกเข้ามุม ที่ช่วยเปิดมุมมองการ Take View ออกไปข้างนอกให้กว้างขวางมากยิ่งขึ้น โดยไม่มีผนังมาบดบังทัศนียภาพในการมองเห็น
ติดต่อสอบถามเพิ่มเติม
info@scgrand.co.th
02-066-6663
751, 753 ถ.เพชรเกษม แขวงบางหว้า เขตภาษีเจริญ กรุงเทพฯ 10160
บริษัท บ้านมหานคร จำกัด
แบบ้าน Model : BLUEDIAMOND
- 5 ห้องนอน
- 7 ห้องน้ำ
- 940 ตร.ม.

บริษัท บ้านมหานคร จำกัด
แบบบ้าน Model : BLUEDIAMOND
- 5 ห้องนอน
- 7 ห้องน้ำ
- 4 ที่จอดรถ
- 940ตร.ม.
แบบบ้านสไตล์คลาสสิก ที่ผสมผสานความทันสมัยในแบบโมเดิร์น ในคฤหาสน์หลังใหญ่ สะท้อนถึงความงดงามทางด้านสถาปัตยกรรมที่มีความสวยงาม โดดเด่นและมีเอกลักษณ์เฉพาะตัว ทางเข้าห้องรับแขก ถูกออกแบบให้สูงโปร่ง แบบ Double Volume มีการจัดสรรกระจกล้อมรอบตัวบ้าน เพื่อให้ผู้อาศัยได้ชื่นชมกับธรรมชาติภายนอกได้ครบในทุกมุมมอง ฟังก์ชั่นต่างๆภายใน ดูโอ่โถงในทุกพื้นที่ เปรียบเสมือนอยู่ในอาณาจักรอันยิ่งใหญ่ภายในบ้าน วัสดุที่ใช้มีความสวยและทนทาน เช่น กระจก และบัวผนังภายนอก ทำให้เกิดคิ้วขอบที่มีมิติ เสริมให้คฤหาสน์หลังนี้ดูสวย เหมือนงานศิลปะชิ้นเอก เป็นแบบบ้านที่สะท้อนถึงความเลิศหรูเหนือระดับ
ติดต่อสอบถามเพิ่มเติม
bnkgroup_2023@hotmail.com
095-369-9584
เลขที่ 1/1 ซอย เคหะร่มเกล้า 74 แยก 4 แขวง ราษฎร์พัฒนา เขต สะพานสูง จังหวัด กรุงเทพมหานคร รหัสไปรษณีย์ 10240
บริษัท ซีคอน จำกัด
แบบ้าน Life Box 205
- 3 ห้องนอน
- 2 ห้องน้ำ
- 202 ตร.ม.

บริษัท ซีคอน จำกัด
แบบบ้าน Life Box 205
- 3 ห้องนอน
- 2 ห้องน้ำ
- 1 ที่จอดรถ
- 202ตร.ม.
บ้านสไตล์ Modern ที่ถูกออกแบบด้วยความเรียบง่าย ทันสมัย ภายในชั้นล่างจัดสรรพื้นที่ใช้สอยเป็นสัดส่วน และต่อเนื่องยาวตลอดเพื่อความโปร่ง โล่ง สบาย ชั้นบนประกอบด้วย 3ห้องนอน โดยห้องนอน Masterนั้นกว้างขวางเป็นพิเศษ และมีห้องพักผ่อนเพื่อกิจกรรมของครอบครัวอีกด้วย
ติดต่อสอบถามเพิ่มเติม
info@seacon.co.th
1391
107-115 ถนนสี่พระยา บางรัก กรุงเทพฯ 10500
บริษัท กริท บิลด์ จำกัด
แบบ้าน ATTA-A
- 5 ห้องนอน
- 6 ห้องน้ำ
- 528 ตร.ม.

บริษัท กริท บิลด์ จำกัด
แบบบ้าน ATTA-A
- 5 ห้องนอน
- 6 ห้องน้ำ
- 3 ที่จอดรถ
- 528ตร.ม.
บ้านโมเดิร์นกลิ่นอายทรอปิคัล ผสมผสานความทันสมัยและธรรมชาติอย่างลงตัว
ติดต่อสอบถามเพิ่มเติม
-
info@gritbuild.net
0933649782
โครงการคริสตัล ดีไซน์ เซ็นเตอร์ ห้องเลขที่ L4-207 ชั้น 2 อาคาร L4 (4L4-207,209) 1448/19 ซอยลาดพร้าว 87 (จันทราสุข) แขวงคลองจั่น เขตบางกะปิ กรุงเทพมหานคร 10240
บริษัท รอแยลเฮ้าส์ จำกัด
แบบ้าน RH-TC.2182
- 4 ห้องนอน
- 6 ห้องน้ำ
- 583 ตร.ม.

บริษัท รอแยลเฮ้าส์ จำกัด
แบบบ้าน RH-TC.2182
- 4 ห้องนอน
- 6 ห้องน้ำ
- 1 ที่จอดรถ
- 583ตร.ม.
บ้านสไตล์ทัสคานีที่เห็นอยู่นี้ มีที่มาจากชื่อเมืองทัสคานี เป็นสถาปัตยกรรมแบบชนบทสไตล์อิตาลี ได้รับแรงบันดาลใจมาจากสภาพแวดล้อมในธรรมชาติ ที่เป็นองค์ประกอบสำคัญในการสร้างบ้านและตกแต่งบ้าน กลายเป็นไลฟ์สไตล์ที่เรียบง่าย สวยงาม แต่แฝงไว้ด้วยความอบอุ่นและมีเอกลักษณ์เฉพาะตัว มีลักษณะเด่นตรงที่หลังคาเป็นทรงปั้นหยาค่อนข้างลาด
ติดต่อสอบถามเพิ่มเติม
-
contact@royalhouse.co.th
0-2459-4646
สำนักงานใหญ่ 1148 ถนนนครไชยศรี เขตดุสิต, Bangkok, Thailand, Bangkok
บริษัท ซีคอน จำกัด
แบบ้าน Modern English 441
- 4 ห้องนอน
- 5 ห้องน้ำ
- 441 ตร.ม.

บริษัท ซีคอน จำกัด
แบบบ้าน Modern English 441
- 4 ห้องนอน
- 5 ห้องน้ำ
- 4 ที่จอดรถ
- 441ตร.ม.
เป็นบ้าน 2 ชั้น style อังกฤษ ดูหรูหราการตกแต่งด้วยบัวและวัสดุกรุผนัง ทําให้บ้านดูโดดเด่น เน้นความเป็นตะวันตก พื้นที่รับแขกโล่งโปร่งต่อเนื่องไปถึงพื้นที่ทานอาหารหลังบ้าน ทําให้ดูกว้างขวาง ห้องนอนทุกห้องมาพร้อมห้องน้ำในตัว พื้นที่พักผ่อนชั้นบน กว้างขวาง เชื่อมต่อกับมุก (ระเบียง) นั่งเล่นภายนอก ทําให้บ้านดูน่าสนใจมากขึ้น
ติดต่อสอบถามเพิ่มเติม
info@seacon.co.th
1391
107-115 ถนนสี่พระยา บางรัก กรุงเทพฯ 10500
บริษัท ดับบลิวเฮ้าส์ จำกัด
แบบ้าน M-039
- 5 ห้องนอน
- 7 ห้องน้ำ
- 864.05 ตร.ม.

บริษัท ดับบลิวเฮ้าส์ จำกัด
แบบบ้าน M-039
- 5 ห้องนอน
- 7 ห้องน้ำ
- 5 ที่จอดรถ
- 864.05ตร.ม.
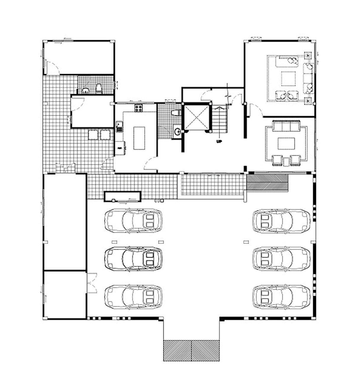
เอกลักษณ์หรือจุดเด่นของบ้าน คือ เป็นบ้านแบบ Modern ที่เน้นพื้นที่กิจกรรมและความสงบ บ้านที่เน้นพื้นที่กิจกรรมและความสงบคือ เป็นบ้านที่รองรับครอบครัวใหญ่ที่มีสมาชิกในบ้านหลากหลายวัยโดยพื้นที่ในบ้านจะจัดเป็นสองส่วนหลักๆ คือ พื้นที่ชั้น1เช่น พื้นที่ห้องนั่งเล่นขนาดใหญ่ ห้องทานข้าว ระเบียงภายนอกซึ่งแต่ละพื้นที่เชื่อมต่อเข้าหาถึงกันได้หมด (Open space) พื้นที่ชั้น2 เช่น ห้องนั่งเล่นครอบครัว ห้องฟิตเนส และห้องนอน เชื่อมพื้นที่นั่งเล่นของสองชั้น ด้วยบันไดรูปแบบพิเศษที่ให้ความรู้สึกแบบบ้านสมัยใหม่ ผสมผสานกับการเลือกใช้วัสดุตกแต่งแบเรียบง่ายและหรู การตกแต่งสวนหินภายในบ้าน และภายนอก ทำให้รู้สึกถึงความเงียบสงบ เวลามองแล้วรู้สึกเย็นใจ การเลือกใช้วัสดุรูปแบบใหม่ๆ มาใช้ผสมผสานกับโครงสร้างเรขาคณิตของสไตล์ Modern โดยจะแยกออกเป็นสองส่วน คือภายในและภายนอก ส่วนของภายในจะเป็นวัสดุธรรมชาติเพื่อให้ได้ความรู้สึกอบอุ่นเป็นบ้านที่ผ่อนคลาย ส่วนภายนอกจะเน้นวัสดุสังเคราะห์ที่ยังให้ความรู้สึกเป็นธรรมชาติ เช่น ไม้เทียม กระเบื้องลายหิน หินทียม เพื่อเน้นการดูแลรักษาที่ง่ายในระยะยาวนั่นเอง ทั้งหมดนี้ทำให้บ้านหลังนี้เป็น "คำตอบ" ให้กับคนที่ต้องการบ้านสไตล์โมเดินขนาดใหญ่
ติดต่อสอบถามเพิ่มเติม
whwhouse@yahoo.com
0-2349-7668 ถึง 72
65/6 ซอยรามอินทรา 14 แขวงท่าแร้ง เขตบางเขน กรุงเทพฯ 10230
บริษัท บิวท์ ทู บิวด์ จำกัด
แบบ้าน Harmony
- 7 ห้องนอน
- 7 ห้องน้ำ
- 727 ตร.ม.

บริษัท บิวท์ ทู บิวด์ จำกัด
แบบบ้าน Harmony
- 7 ห้องนอน
- 7 ห้องน้ำ
- 3 ที่จอดรถ
- 727ตร.ม.
New Design บ้าน HARMONY By Built To Build สไตล์ Modern Retro รูปทรงดีไซน์สวย ทันสมัย สำหรับที่ดิน “หน้ากว้าง” ไฮไลท์ของตัวบ้านเน้นการตกแต่งด้วยไฟเบอร์ซีเมนต์ลายไม้ ผนังกรุไม้และกรุกระเบื้อง Kenzai ลายหินก่ออิฐ ซึ่งเป็นการเพิ่มเสน่ห์และทำให้บ้านหลังนี้มีมิติในการอยู่อาศัยได้หลายมุมมองทั้งความอบอุ่นและความคลาสิก ทั้งยังดูมั่นคงและแข็งแรง สำหรับฟังก์ชันภายในออกแบบแบบให้มีความยืดหยุ่น สมความตั้งใจของผู้อยู่อาศัย ทั้งยังสามารถปรับเปลี่ยนให้รองรับได้ทุกความต้องการ
ติดต่อสอบถามเพิ่มเติม
btbbuilt@gmail.com
02-721-3999
8 ซอย อ่อนนุช 46 ถนน อ่อนนุช แขวง สวนหลวง เขต สวนหลวง, Bangkok, Thailand, Bangko
บริษัท กริท บิลด์ จำกัด
แบบ้าน Tony
- 3 ห้องนอน
- 1 ห้องน้ำ
- 215 ตร.ม.

บริษัท กริท บิลด์ จำกัด
แบบบ้าน Tony
- 3 ห้องนอน
- 1 ห้องน้ำ
- 2 ที่จอดรถ
- 215ตร.ม.
สวยเรียบง่าย ชวนผ่อนคลาย ดีไซน์โดดเด่น เหมาะกับการใช้ชีวิต
ติดต่อสอบถามเพิ่มเติม
-
info@gritbuild.net
0933649782
โครงการคริสตัล ดีไซน์ เซ็นเตอร์ ห้องเลขที่ L4-207 ชั้น 2 อาคาร L4 (4L4-207,209) 1448/19 ซอยลาดพร้าว 87 (จันทราสุข) แขวงคลองจั่น เขตบางกะปิ กรุงเทพมหานคร 10240
บริษัท เอส ซี แกรนด์ จำกัด
แบบ้าน THE GRAND 801
- 8 ห้องนอน
- 8 ห้องน้ำ
- 801 ตร.ม.

บริษัท เอส ซี แกรนด์ จำกัด
แบบบ้าน THE GRAND 801
- 8 ห้องนอน
- 8 ห้องน้ำ
- 4 ที่จอดรถ
- 801ตร.ม.
ตัวบ้านถูกออกแบบในสไตล์ Modern ที่ให้ความเรียบหรู ดูทันสมัย เหล็กฉลุลายสีน้ำตาล ปูนเทาเข้มเป็นเอกลักษณ์ บวกกับลักษณะของเส้นสายกรอบสี่เหลี่ยมด้านหน้าที่ช่วยสร้างเอกลักษณ์ให้บ้านหลังนี้ดูโมเดิร์นมากยิ่งขึ้น
ติดต่อสอบถามเพิ่มเติม
info@scgrand.co.th
02-066-6663
751, 753 ถ.เพชรเกษม แขวงบางหว้า เขตภาษีเจริญ กรุงเทพฯ 10160
บริษัท เมคเคอร์โฮม จำกัด
แบบ้าน The Master 3
- 6 ห้องนอน
- 7 ห้องน้ำ
- 519 ตร.ม.
ติดต่อสอบถามเพิ่มเติม
info@makerhome.com
081-107-7888
9 ซ.สายสิน, Bangkok, Thailand, Bangkok
บริษัท เมคเคอร์โฮม จำกัด
แบบ้าน Villa 4
- 6 ห้องนอน
- 7 ห้องน้ำ
- 472 ตร.ม.
ติดต่อสอบถามเพิ่มเติม
info@makerhome.com
081-107-7888
9 ซ.สายสิน, Bangkok, Thailand, Bangkok
บริษัท ดับบลิวเฮ้าส์ จำกัด
แบบ้าน C012
- 3 ห้องนอน
- 4 ห้องน้ำ
- 520 ตร.ม.

บริษัท ดับบลิวเฮ้าส์ จำกัด
แบบบ้าน C012
- 3 ห้องนอน
- 4 ห้องน้ำ
- 2 ที่จอดรถ
- 520ตร.ม.
บ้านประหยัดพลังงาน การออกแบบทางสถาปัตยกรรม ให้เอื้อกับสภาพภูมิอากาศในประเทศไทยวางผังบ้านให้เป็นตัว U เพื่อต้องการให้ระหว่างบ้านมีพื้นที่สีเขียว ทุกห้องจะได้มีอากาศถ่ายเทตัวบ้านมีชานหรือระเบียงโดยรอบ เพ่ือป้องกันไม่ให้ผนังบ้านโดยแดดโดยตรง ทาให้ความร้อนถ่ายเทเข้าตัวบ้านได้น้อย บ้านจึงไม่ร้อนมาก มีการจัดวาง Function ให้เอื้อกับผู้สูงวัย โดย Space การใช้งานส่วนรวมเชื่อมต่อกันหมด ไม่ว่าจะเป็นส่วนพักผ่อน ส่วนทานอาหาร ส่วนระเบียง ส่วนโรงจอดรถ และยังมีทางลาดเข้าสู่ตัวบ้านการเลือกใช้วัสดุทดแทน เช่นไม้เทียม แทนไม้จริง
ติดต่อสอบถามเพิ่มเติม
whwhouse@yahoo.com
0-2349-7668 ถึง 72
65/6 ซอยรามอินทรา 14 แขวงท่าแร้ง เขตบางเขน กรุงเทพฯ 10230
บริษัท เอส ซี แกรนด์ จำกัด
แบบ้าน THE GRAND 794
- 8 ห้องนอน
- 8 ห้องน้ำ
- 794 ตร.ม.

บริษัท เอส ซี แกรนด์ จำกัด
แบบบ้าน THE GRAND 794
- 8 ห้องนอน
- 8 ห้องน้ำ
- 4 ที่จอดรถ
- 794ตร.ม.
ตัวบ้านถูกออกแบบในสไตล์ยุโรปร่วมสมัย ที่ให้ความหรูหรา ดุจคฤหาสน์ บวกกับลักษณะของเส้นสายที่โค้งมน ยิ่งช่วยสร้างเอกลักษณ์ให้บ้านหลังนี้ดูโอ่อ่า น่าหลงไหลมากยิ่งขึ้น นอกจากนี้ยังมี Double Volume ที่ช่วยให้พื้นที่ภายในบ้านโปร่ง โล่ง เมื่ออยู่อาศัยแล้วสบาย อากาศถ่ายเทสะดวก
ติดต่อสอบถามเพิ่มเติม
info@scgrand.co.th
02-066-6663
751, 753 ถ.เพชรเกษม แขวงบางหว้า เขตภาษีเจริญ กรุงเทพฯ 10160
บริษัท ริชชี่ เฮ้าส์ จำกัด
แบบ้าน HM-04
- 2 ห้องนอน
- 3 ห้องน้ำ
- 370 ตร.ม.

บริษัท ริชชี่ เฮ้าส์ จำกัด
แบบบ้าน HM-04
- 2 ห้องนอน
- 3 ห้องน้ำ
- 2 ที่จอดรถ
- 370ตร.ม.
แบบบ้านสไตล์ Modern Luxury ส่วนประกอบของบ้าน ได้แก่ บ้าน 2 ชั้น 2 ห้องนอน 3 ห้องน้ำ จอดรถ 2 คัน สระว่ายน้ำ และส่วนบริการ
ติดต่อสอบถามเพิ่มเติม
info@richiehouses.com
0-2673-7061-3
79/338 ถ.สาธุประดิษฐ์ แขวงช่องนนทรี, Yan Nawa, Thailand, Bangkok
บริษัท เมคเคอร์โฮม จำกัด
แบบ้าน Urban 6
- 7 ห้องนอน
- 9 ห้องน้ำ
- 504 ตร.ม.
ติดต่อสอบถามเพิ่มเติม
info@makerhome.com
081-107-7888
9 ซ.สายสิน, Bangkok, Thailand, Bangkok
บริษัท ไวส์ บิวเดอร์ จำกัด
แบบ้าน Todavia
- 5 ห้องนอน
- 3 ห้องน้ำ
- 365 ตร.ม.

บริษัท ไวส์ บิวเดอร์ จำกัด
แบบบ้าน Todavia
- 5 ห้องนอน
- 3 ห้องน้ำ
- 3 ที่จอดรถ
- 365ตร.ม.
บ้านทีให้ความรู้สึกสงบนิ่ง ใช้เส้นสายแนวตั้งและแนวนอนตกแต่งด้วยวัสดุธรรมชาติ อาทิ ระแนงเทียม และ TEXTURE ลายหินให้อารมณ์แบบ ZEN เหมาะกับการพักผ่อน เพื่อเพิ่มพลังในการทำงานวันใหม่
ติดต่อสอบถามเพิ่มเติม
-
-
admin_wb@wisebuilder.co.th
02-574-5616, 099-857-1132
99/33 ซอยแจ้งวัฒนะ 13 ทุ่งสองห้อง หลักสี่, Bangkok, Thailand, Bangkok
บริษัท กริท บิลด์ จำกัด
แบบ้าน ATTA-B
- 7 ห้องนอน
- 8 ห้องน้ำ
- 921 ตร.ม.

บริษัท กริท บิลด์ จำกัด
แบบบ้าน ATTA-B
- 7 ห้องนอน
- 8 ห้องน้ำ
- 5 ที่จอดรถ
- 921ตร.ม.
แบบบ้านสไตล์ modern tropical แนวคิดออกแบบที่มีอัตลักษณ์ผสมผสานความทันสมัยและธรรมชาติ ตอบโจทย์ครอบครัวขนาดใหญ่ด้วยพื้นที่ใช้สอยที่ออกแบบมาอย่างพิถีพิถัน การออกแบบมีการเลือกส่วนสีตัวอาคารโดยส่วนที่เน้นสร้างมิติให้อาคาร เราเลือกใช้สีเทคเจอร์และหินวีเนียร์โทนสีเทาและดำ ที่มีผิวสัมผัสเฉพาะตัว เพื่อเพิ่มความเข้มขรึมให้กับตัวอาคาร อีกทั้งยังเลือกใช้วัสดุตกแต่งตัวอาคารที่มีลวดลายคล้ายไม้ ที่เมื่อกระทบกับแสงแดดจะให้ความรู้สึกที่อบอุ่นและผ่อนคลาย รวมถึงการเลือกใช้ ( Facade ) เพื่อเพิ่มความน่าค้นหาให้กับตัวอาคาร เพื่อสะท้อนถึงการตกแต่งที่หรูหราภายในบ้าน ในส่วนของกระจกได้เลือกใช้กระจกที่สูงจรดเพดาน การแบ่งสัดส่วนภายใน มีความโปร่งสบายไม่อึดอัด แต่ยังคงมีความเป็นส่วนตัวของผู้อยู่อาศัย ฟังก์ชันการใช้สอยภายในบ้านที่มีทั้งพื้นที่ส่วนตัวและส่วนกลาง ประกอบด้วย 7 ห้องนอน 8 ห้องน้ำ 4 ห้องอเนกประสงค์ 1 สระว่ายน้ำ และ ระเบียงขนาดใหญ่ บริเวณชั้น 2 ที่รองรับกิจกรรมต่าง ๆ ได้อย่างหลากหลาย เหมาะกับการทำกิจกรรมภายในครอบครัวหรือจะชวนเพื่อน ๆ มาสังสรรค์ในช่วงเทศกาลต่าง ๆ บ้านหลังนี้จึงตอบโจทย์ความต้องการของสมาชิกในครอบครัวทุกช่วงวัย
ติดต่อสอบถามเพิ่มเติม
-
info@gritbuild.net
0933649782 ฝ่ายขาย
โครงการคริสตัล ดีไซน์ เซ็นเตอร์ ห้องเลขที่ L4-207 ชั้น 2 อาคาร L4 (4L4-207,209) 1448/19 ซอยลาดพร้าว 87 (จันทราสุข) แขวงคลองจั่น เขตบางกะปิ กรุงเทพมหานคร 10240
บริษัทโฮมสแควร์ ดีเวลอปเมนท์
แบบ้าน HSD – 40 Terra Nova
- 4 ห้องนอน
- 5 ห้องน้ำ
- 597 ตร.ม.

บริษัทโฮมสแควร์ ดีเวลอปเมนท์
แบบบ้าน HSD – 40 Terra Nova
- 4 ห้องนอน
- 5 ห้องน้ำ
- 2 ที่จอดรถ
- 597ตร.ม.
Terra Nova บ้านสองชั้นสไตล์โมเดิร์นทรอปิคอล (Modern Tropical) จากซีรีส์ ORBITA ที่ออกแบบมาเพื่อผสานชีวิตเข้ากับธรรมชาติอย่างกลมกลืน ด้วยรูปทรงหลังคาจั่วคลาสสิกและวัสดุไม้ที่ให้ความอบอุ่น ภายในโปร่งโล่ง รับแสงธรรมชาติได้ตลอดวัน พร้อมพื้นที่สวนและสระน้ำประดับใจกลางบ้าน ให้คุณได้พักผ่อนในทุกมุมของชีวิต
ติดต่อสอบถามเพิ่มเติม
contact@homesquare.co.th
02-533-2622
2/69 ถนนลำลูกกา (คลอง 4) หมู่ 7 ตำบลลาดสวาย อำเภอลำลูกกา จังหวัดปทุมธานี 12150
บริษัท กริท บิลด์ จำกัด
แบบ้าน Avenue
- 5 ห้องนอน
- 3 ห้องน้ำ
- 337 ตร.ม.

บริษัท กริท บิลด์ จำกัด
แบบบ้าน Avenue
- 5 ห้องนอน
- 3 ห้องน้ำ
- 2 ที่จอดรถ
- 337ตร.ม.
บ้านสไตล์ Nordic มีเอกลักษณ์ สวยเรียบง่าย ครบครันด้วยฟังก์ชั่นการใช้งานที่ลงตัว
ติดต่อสอบถามเพิ่มเติม
-
info@gritbuild.net
0933649782
โครงการคริสตัล ดีไซน์ เซ็นเตอร์ ห้องเลขที่ L4-207 ชั้น 2 อาคาร L4 (4L4-207,209) 1448/19 ซอยลาดพร้าว 87 (จันทราสุข) แขวงคลองจั่น เขตบางกะปิ กรุงเทพมหานคร 10240
บริษัท บิวท์ ทู บิวด์ จำกัด
แบบ้าน เกษมราษฎร์
- 5 ห้องนอน
- 6 ห้องน้ำ
- 585 ตร.ม.

บริษัท บิวท์ ทู บิวด์ จำกัด
แบบบ้าน เกษมราษฎร์
- 5 ห้องนอน
- 6 ห้องน้ำ
- 3 ที่จอดรถ
- 585ตร.ม.
บ้าน 2 ชั้น สไตล์เมดิเตอร์เรเนียน (mediterranean style) ดีไซน์ที่โดดเด่นหรูหราและแฝงด้วยความโรแมนติกอบอุ่นด้วยรูปทรงและสีสันที่เป็นเอกลักษณ์เฉพาะตัว ตัวบ้านเลือกใช้โทนสีขาวตัดกับสีน้ำเงิน Navy Blue เน้นความโค้งมนของซุ้มประตูทางเข้าออกและทางเดิน ซึ่งถือเป็นสถาปัตยกรรมโดดเด่นที่เพิ่มเสน่ห์ให้กับบ้านสไตล์นี้ได้อย่างชัดเจน
ติดต่อสอบถามเพิ่มเติม
btbbuilt@gmail.com
02-721-3999
8 ซอย อ่อนนุช 46 ถนน อ่อนนุช แขวง สวนหลวง เขต สวนหลวง, Bangkok, Thailand, Bangko
บริษัท กริท บิลด์ จำกัด
แบบ้าน Centris
- 5 ห้องนอน
- 6 ห้องน้ำ
- 486 ตร.ม.

บริษัท กริท บิลด์ จำกัด
แบบบ้าน Centris
- 5 ห้องนอน
- 6 ห้องน้ำ
- 4 ที่จอดรถ
- 486ตร.ม.
บ้านสไตล์ โมเดิร์นลักชัวรี่ สวยเนียบ หรูทุกองศา ตอบโจทย์การใช้ชีวิต
ติดต่อสอบถามเพิ่มเติม
-
info@gritbuild.net
0933649782
โครงการคริสตัล ดีไซน์ เซ็นเตอร์ ห้องเลขที่ L4-207 ชั้น 2 อาคาร L4 (4L4-207,209) 1448/19 ซอยลาดพร้าว 87 (จันทราสุข) แขวงคลองจั่น เขตบางกะปิ กรุงเทพมหานคร 10240
บริษัท เมคเคอร์โฮม จำกัด
แบบ้าน The Pride
- 11 ห้องนอน
- 13 ห้องน้ำ
- 1207 ตร.ม.
ติดต่อสอบถามเพิ่มเติม
info@makerhome.com
081-107-7888
9 ซ.สายสิน, Bangkok, Thailand, Bangkok
บริษัท ดับบลิวเฮ้าส์ จำกัด
แบบ้าน T010
- 3 ห้องนอน
- 4 ห้องน้ำ
- 425 ตร.ม.

บริษัท ดับบลิวเฮ้าส์ จำกัด
แบบบ้าน T010
- 3 ห้องนอน
- 4 ห้องน้ำ
- 3 ที่จอดรถ
- 425ตร.ม.
เน้นการใช้วัสดุตกแต่งธรรมชาติเช่นผนังกรุหินและไม้เทียมเพื่อเพิ่มความน่าสนใจให้ตัวบ้านน่าอยู่มากขึ้น และยังจัดวางฟังคชั่นและประโยชน์ใช้สอยได้อย่างลงตัว อีกทั้งทุกห้องสามรถเชื่อมต่อกับพื้นที่ด้านนอกได้โดยรอบทำให้ได้ทั้งมุมมองและการระบายอากาศที่ดี และยังมีพื้นที่กิจกรรมภายนอกอีกด้วย
ติดต่อสอบถามเพิ่มเติม
whwhouse@yahoo.com
0-2349-7668 ถึง 72
65/6 ซอยรามอินทรา 14 แขวงท่าแร้ง เขตบางเขน กรุงเทพฯ 10230
บริษัท โฮมสแควร์ ดีเวลอปเมนท์ จำกัด
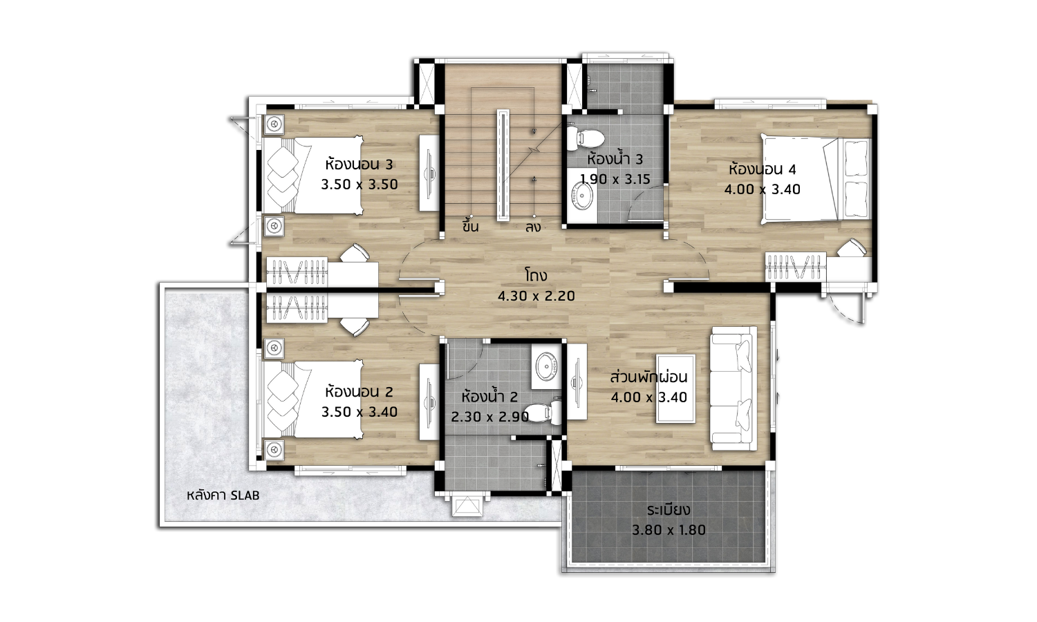
แบบ้าน HSD – 25 Urbanwood
- 6 ห้องนอน
- 4 ห้องน้ำ
- 320 ตร.ม.

บริษัท โฮมสแควร์ ดีเวลอปเมนท์ จำกัด
แบบบ้าน HSD – 25 Urbanwood
- 6 ห้องนอน
- 4 ห้องน้ำ
- 2 ที่จอดรถ
- 320ตร.ม.
แบบบ้านที่มีรูปลักษณ์โมเดิร์น เรียบง่าย เหมาะกับผู้อาศัยที่มี Lifestyle ยุคใหม่ทันสมัย มีการใส่ลูกเล่นในการออกแบบ Texture & Line ของธรรมชาติลงไป เพื่อสร้างความน่าสนใจและลดทอนความเป็นโมเดิร์นลงให้กลมกลืน มี Function เพียงพอต่อการใช้สอย หรือจะปรับเปลี่ยนเป็น Home office ก็ยังได้
ติดต่อสอบถามเพิ่มเติม
contact@homesquare.co.th
025332622-3 , 02994446
2/69 ถนนลำลูกกา ตำบลลาดสวาย อำเภอลำลูกกา, Lam Luk Ka, Thailand, Pathum Thani

