
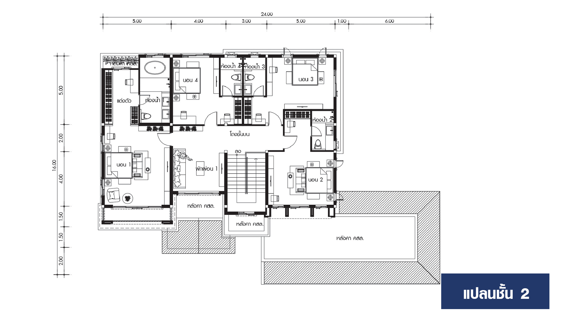
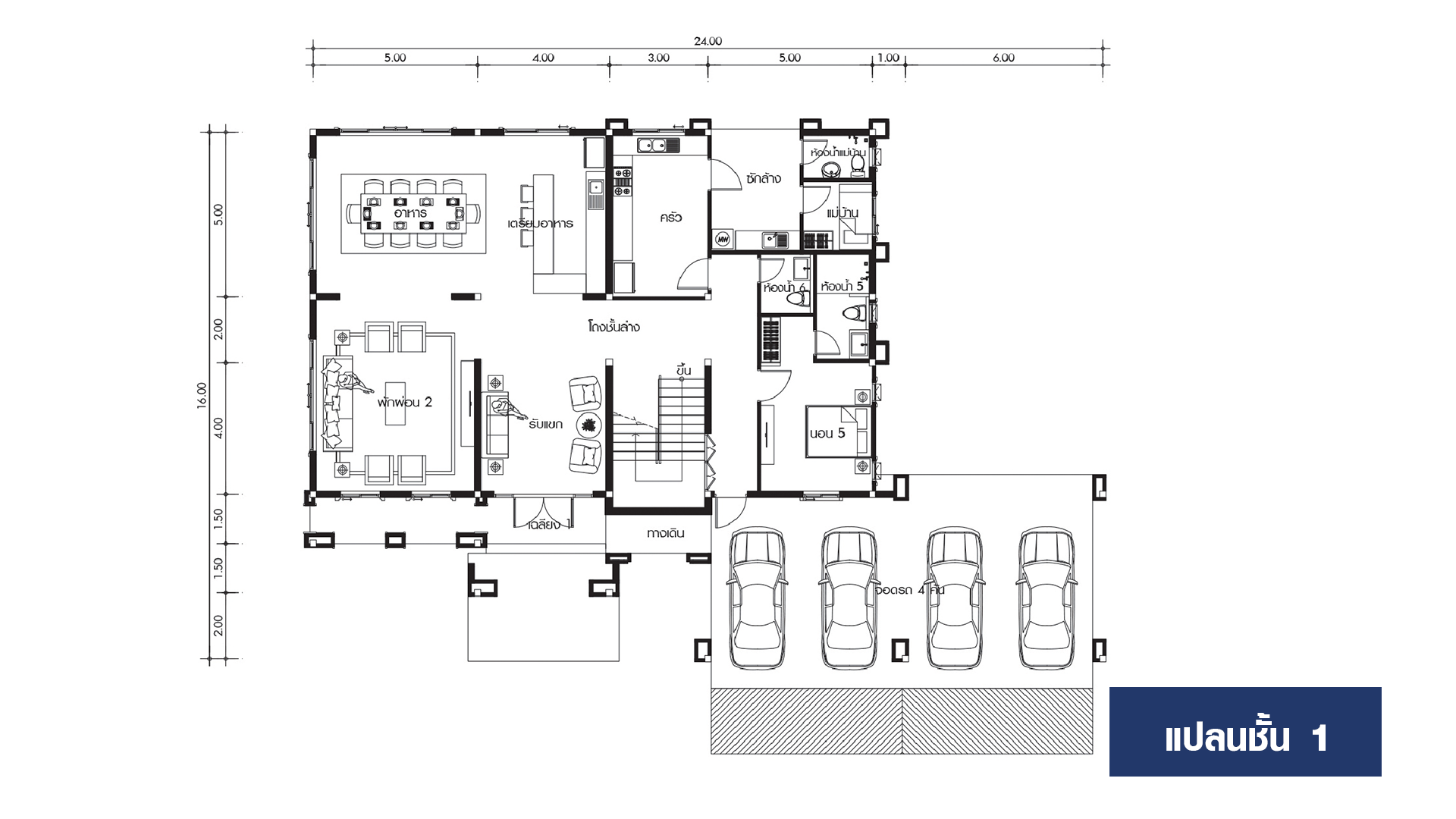
บริษัท บิวท์ ทู บิวด์ จำกัด
แบบบ้าน เกษมราษฎร์
- 5 ห้องนอน
- 6 ห้องน้ำ
- 3 ที่จอดรถ
- 585ตร.ม.
บ้าน 2 ชั้น สไตล์เมดิเตอร์เรเนียน (mediterranean style) ดีไซน์ที่โดดเด่นหรูหราและแฝงด้วยความโรแมนติกอบอุ่นด้วยรูปทรงและสีสันที่เป็นเอกลักษณ์เฉพาะตัว ตัวบ้านเลือกใช้โทนสีขาวตัดกับสีน้ำเงิน Navy Blue เน้นความโค้งมนของซุ้มประตูทางเข้าออกและทางเดิน ซึ่งถือเป็นสถาปัตยกรรมโดดเด่นที่เพิ่มเสน่ห์ให้กับบ้านสไตล์นี้ได้อย่างชัดเจน
ติดต่อสอบถามเพิ่มเติม
btbbuilt@gmail.com
02-721-3999
8 ซอย อ่อนนุช 46 ถนน อ่อนนุช แขวง สวนหลวง เขต สวนหลวง, Bangkok, Thailand, Bangko
ค้นหาแบบอื่นๆ
บริษัท พิชยมงคล คอนสตรัคชั่น จำกัด
แบบบ้าน SAILOM RESIDENCE
- 4 ห้องนอน
- 5 ห้องน้ำ
- 425.07 ตร.ม.

บริษัท พิชยมงคล คอนสตรัคชั่น จำกัด
แบบบ้าน SAILOM RESIDENCE
- 4 ห้องนอน
- 5 ห้องน้ำ
- 3 ที่จอดรถ
- 425.07ตร.ม.
“SAILOM RESIDENCE” — สายลมเงียบ บ้านที่ปล่อยให้ธรรมชาติได้พัดผ่านในทุกวันของชีวิต การออกแบบที่คำนึงถึงการถ่ายเทของลมและแสงธรรมชาติ ทำให้ทุกมุมของบ้านรู้สึกโปร่ง โล่ง และเย็นสบาย ด้วยเส้นสายเรียบง่ายแต่สง่างาม ผสานวัสดุเลียนแบบธรรมชาติและสีอบอุ่น เพื่อสร้างบรรยากาศที่กลมกลืนกับสวนสีเขียวภายนอก “บ้านที่ให้ลมและแสงเป็นส่วนหนึ่งของชีวิตประจำวัน”
ติดต่อสอบถามเพิ่มเติม
@pmcon
pichayamongkolhomebuilder@gmail.com
094-879-5974, 061-415-9789, 02-101-6545
276/1 ซอย พุทธบูชา36 แขวงบางมด เขตทุ่งครุ กรุงเทพมหานคร 10140
บริษัท โฟร์พัฒนา จำกัด
แบบบ้าน 3×3
- 4 ห้องนอน
- 5 ห้องน้ำ
- 535 ตร.ม.
ติดต่อสอบถามเพิ่มเติม
@fourpattana
66 29403789
เลขที่ 2 ซอยลาดปลาเค้า 10 Lat Phrao, Bangkok 10230
บริษัท ซีคอน จำกัด
แบบบ้าน MINIMAL 505
- 5 ห้องนอน
- 5 ห้องน้ำ
- 506 ตร.ม.

บริษัท ซีคอน จำกัด
แบบบ้าน MINIMAL 505
- 5 ห้องนอน
- 5 ห้องน้ำ
- 3 ที่จอดรถ
- 506ตร.ม.
15-20 ล้านบาท จำนวนชั้น 2 ชั้น Style MINIMAL พื้นที่ 506 ตร.ม. ขนาดที่ดิน 112 ตร.วา ห้องนอน / ห้องน้ำ 5 / 5 ห้องแม่บ้าน / ที่จอดรถ 1 / 3 ขนาดเส้นรอบบ้าน 23.70x12.10 ขนาดที่ดิน 27.70x16.00
ติดต่อสอบถามเพิ่มเติม
บริษัท โฟร์พัฒนา พรีเมี่ยม จำกัด
แบบบ้าน Special design 4
- 5 ห้องนอน
- 7 ห้องน้ำ
- 1,529 ตร.ม.

บริษัท โฟร์พัฒนา พรีเมี่ยม จำกัด
แบบบ้าน Special design 4
- 5 ห้องนอน
- 7 ห้องน้ำ
- 6 ที่จอดรถ
- 1,529ตร.ม.
ติดต่อสอบถามเพิ่มเติม
@fourpattana
66 29403789
เลขที่ 2 ซอยลาดปลาเค้า 10 Lat Phrao, Bangkok 10230
บริษัท ซีคอน จำกัด
แบบบ้าน Cube 213
- 3 ห้องนอน
- 3 ห้องน้ำ
- 213 ตร.ม.

บริษัท ซีคอน จำกัด
แบบบ้าน Cube 213
- 3 ห้องนอน
- 3 ห้องน้ำ
- 2 ที่จอดรถ
- 213ตร.ม.
บ้าน 2 ชั้น สไตล์ Modern ที่มีความโดดเด่นทางด้าน Design ด้วยทรง Cube และเป็นเอกลักษณ์ด้วยการออกแบบให้มีพื้นที่สำหรับจัดสวนแทรกตัวอาคาร ให้ความสวยงาม และร่มรื่นใกล้ชิดธรรมชาติ ชั้นล่าง มี Function ที่ลงตัว แบ่งเป็นสัดส่วนมีห้องครัวที่กว้างขวาง ชั้นบน มี 3 ห้องนอน 3 ห้องน้ำ ที่กว้างขวาง ห้องนอน Master Bedroom มีห้องน้ำในตัวพร้อม Walk-in Closet
ติดต่อสอบถามเพิ่มเติม
info@seacon.co.th
1391
บริษัท ซีคอน จำกัด (รับสร้างบ้าน) 107-115 ถนนสี่พระยา บางรัก กรุงเทพฯ 10500
บริษัท ซีคอน จำกัด
แบบบ้าน Cottage 158
- 2 ห้องนอน
- 2 ห้องน้ำ
- 158 ตร.ม.

บริษัท ซีคอน จำกัด
แบบบ้าน Cottage 158
- 2 ห้องนอน
- 2 ห้องน้ำ
- 0 ที่จอดรถ
- 158ตร.ม.
บ้านชั้นเดียวแสนสวย อยู่สบาย สไตล์อเมริกันคอทเทจ ดีไซน์อบอุ่น กะทัดรัด พร้อมเฉลียงรับลมนอกบ้าน ใกล้ชิดธรรมชาติ สวยงามลงตัวด้วยห้องรับแขกอันแสนอบอุ่น 2 ห้องนอน 2 ห้องน้ำ ห้องรับประทานอาหารพร้อมส่วนเตรียมอาหาร อีกทั้งห้องครัวเป็นสัดส่วน เป็นระเบียบด้วยพื้นที่เก็บของทั้ง 2 ด้าน
ติดต่อสอบถามเพิ่มเติม
info@seacon.co.th
1391
บริษัท ซีคอน จำกัด (รับสร้างบ้าน) 107-115 ถนนสี่พระยา บางรัก กรุงเทพฯ 10500
บริษัท ซีคอน จำกัด
แบบบ้าน MINIMAL 505
- 5 ห้องนอน
- 5 ห้องน้ำ
- 506 ตร.ม.

บริษัท ซีคอน จำกัด
แบบบ้าน MINIMAL 505
- 5 ห้องนอน
- 5 ห้องน้ำ
- 3 ที่จอดรถ
- 506ตร.ม.
