
บริษัท จีบีซี เฮ้าส์ จำกัด
แบบบ้าน พิมภูผา
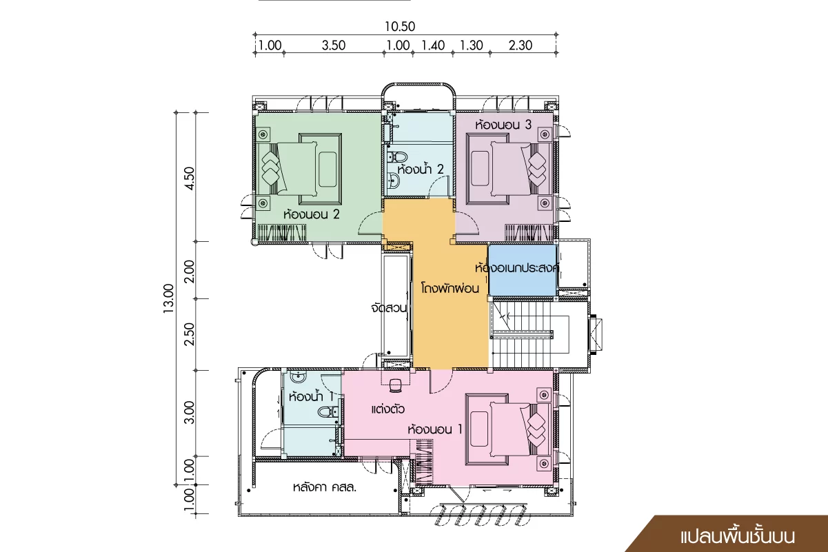
- 7 ห้องนอน
- 4 ห้องน้ำ
- 2 ที่จอดรถ
- 332ตร.ม.
แบบบ้านพิมภูผา เป็นบ้านที่ออกแบบในสไตล์ นีโอคลาสสิก (Neo Classic) ที่เน้นความสูงโปร่ง สง่างาม และทรงพลัง โดดเด่นด้วยการออกแบบอาคาร 3 ชั้น ที่ผสมผสานความหรูหราและการใช้งานที่เหมาะสมสำหรับครอบครัวขนาดใหญ่ บ้านนี้สะท้อนถึงความมั่นคงและความภาคภูมิใจในทุกมิติ เหมาะสำหรับครอบครัวที่ต้องการพื้นที่ใช้สอยที่กว้างขวาง พร้อมการจัดสรรฟังก์ชันอย่างชาญฉลาด สะท้อนถึงรสนิยมที่เหนือระดับและความมั่งคั่งในทุกมิติของชีวิต จุดเด่นของแบบบ้านพิมภูผา 1. ดีไซน์นีโอคลาสสิกที่สง่างาม การออกแบบเน้นเส้นสายแนวตั้งและความสูงโปร่ง ทำให้บ้านดูโอ่อ่าและสง่างาม ซุ้มประตูและหน้าต่างบานใหญ่ พร้อมตกแต่งด้วยวัสดุหรูหรา เช่น กระจกและหินธรรมชาติ 2. พื้นที่ใช้สอยที่รองรับครอบครัวขนาดใหญ่ พื้นที่ 332 ตารางเมตร ถูกจัดสรรอย่างลงตัวด้วย 7 ห้องนอน และ 4 ห้องน้ำ เหมาะสำหรับครอบครัวขยายหรือครอบครัวที่มีสมาชิกหลายรุ่น พื้นที่ส่วนกลางกว้างขวาง เช่น ห้องนั่งเล่น ห้องรับประทานอาหาร และพื้นที่ครัวที่รองรับกิจกรรมของครอบครัว 3. การออกแบบที่เน้นฟังก์ชันและความสะดวกสบาย 2 ที่จอดรถในตัวบ้าน การจัดสรรพื้นที่ในแต่ละชั้นช่วยเพิ่มความสะดวกและความเป็นส่วนตัว 4. บรรยากาศโปร่งโล่งและหรูหรา โถงกลางสูงและกระจกบานใหญ่ช่วยเพิ่มแสงธรรมชาติและสร้างความรู้สึกโปร่งโล่ง ระเบียงในแต่ละชั้นเชื่อมต่อกับพื้นที่ภายนอก เพิ่มความสดชื่นและผ่อนคลาย
ติดต่อสอบถามเพิ่มเติม
-
080-425-4100
951/13 ถนนพุทธมณฑลสาย3, Bangkok, Thailand, Bangkok
ค้นหาแบบอื่นๆ
บริษัท เอส ซี แกรนด์ จำกัด
แบบบ้าน A582
- 6 ห้องนอน
- 7 ห้องน้ำ
- 582 ตร.ม.

บริษัท เอส ซี แกรนด์ จำกัด
แบบบ้าน A582
- 6 ห้องนอน
- 7 ห้องน้ำ
- 4 ที่จอดรถ
- 582ตร.ม.
ตัวบ้านถูกออกแบบในสไตล์ Modern Contemporary ที่เน้นความทันสมัย เรียบง่าย เพิ่มมิติที่น่าสนใจด้วยระแนงไม้เลื่อน ช่วยบดบังสายตาจากผู้คนภายนอกเน้นให้ความสำคัญกับพื้นที่ส่วนตัวของครอบครัว เหมาะกับครอบครัวขนาดใหญ่
ติดต่อสอบถามเพิ่มเติม
@thescgrand
info@scgrand.co.th
02-066-6663, 065-575-1555
751 753 ถ.เพชรเกษม บางหว้า ภาษีเจริญ กรุงเทพฯ 10160
บริษัท พิชยมงคล คอนสตรัคชั่น จำกัด
แบบบ้าน The Imperial
- 5 ห้องนอน
- 6 ห้องน้ำ
- 1,300 ตร.ม.

บริษัท พิชยมงคล คอนสตรัคชั่น จำกัด
แบบบ้าน The Imperial
- 5 ห้องนอน
- 6 ห้องน้ำ
- 4 ที่จอดรถ
- 1,300ตร.ม.
THE IMPERIAL l An Architecture of Power & Prestige THE IMPERIAL คือบ้านที่ออกแบบภายใต้แนวคิด “ความยิ่งใหญ่ที่ไม่ต้องอวด แต่สัมผัสได้ตั้งแต่แรกเห็น” สถาปัตยกรรมโดดเด่นด้วยฟอร์มสมมาตร เส้นสายที่หนักแน่น ผสานกลิ่นอาย Modern Luxury กับความหรูร่วมสมัย สะท้อนรสนิยมของผู้อยู่อาศัย ซุ้มประตูทางเข้าขนาดใหญ่ เสาสูงสง่า และช่องเปิดแนวตั้ง ช่วยสร้างมิติความโอ่อ่า ในขณะที่การจัดวางพื้นที่ภายในยังคงความโปร่ง โล่ง และใช้งานได้จริง
ติดต่อสอบถามเพิ่มเติม
@pmcon
pichayamongkolhomebuilder@gmail.com
094-879-5974, 061-415-9789, 02-101-6545
276/1 ซอย พุทธบูชา36 แขวงบางมด เขตทุ่งครุ กรุงเทพมหานคร 10140
บริษัท พิชยมงคล คอนสตรัคชั่น จำกัด
แบบบ้าน DARKNIGHT RESIDENCE
- 5 ห้องนอน
- 8 ห้องน้ำ
- 1086.50 ตร.ม.

บริษัท พิชยมงคล คอนสตรัคชั่น จำกัด
แบบบ้าน DARKNIGHT RESIDENCE
- 5 ห้องนอน
- 8 ห้องน้ำ
- 4 ที่จอดรถ
- 1086.50ตร.ม.
บ้านที่สะท้อนนิยามของ “ ความหรูหราในความนิ่งสงบ ” ด้วยโทนเข้มที่ให้ความรู้สึกลึกลับและมั่นคงเส้นสายเรียบขรึมตัดกับวัสดุธรรมชาติ สร้างเอกลักษณ์ให้ชีวิตของคุณแตกต่างอย่างมีรสนิยม เป็นสไตล์ Modern contemporary พื้นที่ภายในให้ความรู้สึกผ่อนคลายราวกับอยู่ในรีสอร์ตส่วนตัว
ติดต่อสอบถามเพิ่มเติม
@pmcon
pichayamongkolhomebuilder@gmail.com
094-879-5974, 061-415-9789, 02-101-6545
276/1 ซอย พุทธบูชา36 แขวงบางมด เขตทุ่งครุ กรุงเทพมหานคร 10140
บริษัท ซีคอน จำกัด
แบบบ้าน Metro 276
- 4 ห้องนอน
- 4 ห้องน้ำ
- 276 ตร.ม.

บริษัท ซีคอน จำกัด
แบบบ้าน Metro 276
- 4 ห้องนอน
- 4 ห้องน้ำ
- 1 ที่จอดรถ
- 276ตร.ม.
จำนวนชั้น 3 ชั้น Style MODERN พื้นที่ 276 ตร.ม. ขนาดที่ดิน 60 ตร.วา ห้องนอน / ห้องน้ำ 4 / 4 ห้องแม่บ้าน / ที่จอดรถ 0 / 1 ขนาดเส้นรอบบ้าน 7.20x13.10 ขนาดที่ดิน 13.20x18.10
ติดต่อสอบถามเพิ่มเติม
บริษัท เคเอส โฮม สระบุรี จำกัด
แบบบ้าน KS-CP6802
- 4 ห้องนอน
- 5 ห้องน้ำ
- 314 ตร.ม.

บริษัท เคเอส โฮม สระบุรี จำกัด
แบบบ้าน KS-CP6802
- 4 ห้องนอน
- 5 ห้องน้ำ
- 2 ที่จอดรถ
- 314ตร.ม.
ติดต่อสอบถามเพิ่มเติม
kshome_saraburi
kshome.
kerdsuk_@hotmail.com
063-893-6169
273 10 ถ.เทศบาล 4 ตำบลพุงเรือง อำเภอเมืองสระบุรี สระบุรี 18000
บริษัท พิชยมงคล คอนสตรัคชั่น จำกัด
แบบบ้าน LAMTHAN RESIDENCE
- 7 ห้องนอน
- 6 ห้องน้ำ
- 528 ตร.ม.

บริษัท พิชยมงคล คอนสตรัคชั่น จำกัด
แบบบ้าน LAMTHAN RESIDENCE
- 7 ห้องนอน
- 6 ห้องน้ำ
- 3 ที่จอดรถ
- 528ตร.ม.
Lamthan Residence ถูกออกแบบให้ตอบโจทย์ครอบครัวขนาดกลางถึงใหญ่ที่ต้องการการเชื่อมโยงระหว่างสมาชิกทุกคน โดยไม่เสียความเป็นส่วนตัว
ติดต่อสอบถามเพิ่มเติม
@pmcon
pichayamongkolhomebuilder@gmail.com
094-879-5974, 061-415-9789, 02-101-6545
276/1 ซอย พุทธบูชา36 แขวงบางมด เขตทุ่งครุ กรุงเทพมหานคร 10140
บริษัท 3 ดี เฮ้าส์ คอนสตรัคชั่น จำกัด
แบบบ้าน Mountain Luxury House
- 3 ห้องนอน
- 5 ห้องน้ำ
- 1132 ตร.ม.

บริษัท 3 ดี เฮ้าส์ คอนสตรัคชั่น จำกัด
แบบบ้าน Mountain Luxury House
- 3 ห้องนอน
- 5 ห้องน้ำ
- 4 ที่จอดรถ
- 1132ตร.ม.
ติดต่อสอบถามเพิ่มเติม
3D RELAX HOUSE
Relaxhouse
info@3drelaxhouse.com
082-2429955 ,092-7306222
92 12 ถ.ป๊อปปูล่า ตำบลบ้านใหม่ อำเภอปากเกร็ด นนทบุรี 11120