
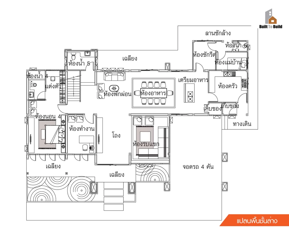
บริษัท บิวท์ ทู บิวด์ จำกัด
แบบบ้าน EMPEROR
- 5 ห้องนอน
- 6 ห้องน้ำ
- 4 ที่จอดรถ
- 641ตร.ม.
แบบบ้าน 2 ชั้น รูปลักษณ์ทันสมัยสไตล์โมเดิรน์ ที่รังสรรค์ขึ้นเพื่อการใช้ชีวิตอย่างโดดเด่นมี สไตล์ หรูหรา พร้อมเติมเต็มความอบอุ่นของการอยู่อาศัยอย่างพิถีพิถันในการกำหนดฟังก์ชั่น การใช้งานที่คุ้มค่าในทุกพื้นที่ และยังสรรจัดทุกพื้นที่ไว้อย่างเป้นสัดส่วน เพื่อสอดรับกับ กับไลฟ์สไตล์ในยุคปัจจุบันได้อย่างสมบูรณ์แบบ นับเป็นการเติมเต็มความสุขในการอยู่ อาศัยได้อย่างหลากหลายตามต้องการ
ติดต่อสอบถามเพิ่มเติม
btbbuilt@gmail.com
02-721-3999
8 ซอย อ่อนนุช 46 ถนน อ่อนนุช แขวง สวนหลวง เขต สวนหลวง, Bangkok, Thailand, Bangko
ค้นหาแบบอื่นๆ
บริษัท ซีคอน จำกัด
แบบบ้าน Valencia 588
- 5 ห้องนอน
- 6 ห้องน้ำ
- 588 ตร.ม.

บริษัท ซีคอน จำกัด
แบบบ้าน Valencia 588
- 5 ห้องนอน
- 6 ห้องน้ำ
- 4 ที่จอดรถ
- 588ตร.ม.
บ้าน Style สเปน ที่มีเอกลักษณ์เฉพาะตัวและเหมาะกับการอยู่เป็นครอบครัวขนาดใหญ่ ในพื้นที่ภายในโดยเฉพาะส่วนรับแขก พักผ่อน ทานอาหาร มีความต่อเนื่องกันทำให้พื้นที่ดูกว้างขวาง ห้อง Master Bedroom มีขนาดกว้างใหญ่เป็นพิเศษ โดยแบ่งสัดส่วนการใช้งานภายในห้องได้อย่างลงตัว พร้อมทั้งมีห้องน้ำในตัวในทุกห้องนอน
ติดต่อสอบถามเพิ่มเติม
info@seacon.co.th
1391
บริษัท ซีคอน จำกัด (รับสร้างบ้าน) 107-115 ถนนสี่พระยา บางรัก กรุงเทพฯ 10500
บริษัท อาร์ตเทคโฮม จำกัด
แบบบ้าน AT-1013
- 5 ห้องนอน
- 7 ห้องน้ำ
- 1080 ตร.ม.

บริษัท อาร์ตเทคโฮม จำกัด
แบบบ้าน AT-1013
- 5 ห้องนอน
- 7 ห้องน้ำ
- 4 ที่จอดรถ
- 1080ตร.ม.
บ้านหรู สไตล์ Modern Luxury พร้อมบรรยากาศที่อบอุ่นในทุกพื้นที่ ตัวอาคารแวดล้อมไปด้วยสระว่ายน้ำ และสวนรอบตัวบ้าน เปิดมุมมองที่สบายตา ด้วยช่องเปิดขนาดใหญ่ ช่วยให้ดูโปร่งโล่ง
ติดต่อสอบถามเพิ่มเติม
02-804-1515
ซอย เพชรเกษม 88 บางแคเหนือ บางแค กรุงเทพมหานคร 10160
บริษัท เคเอส โฮม สระบุรี จำกัด
แบบบ้าน KS-CP6802
- 4 ห้องนอน
- 5 ห้องน้ำ
- 314 ตร.ม.

บริษัท เคเอส โฮม สระบุรี จำกัด
แบบบ้าน KS-CP6802
- 4 ห้องนอน
- 5 ห้องน้ำ
- 2 ที่จอดรถ
- 314ตร.ม.
ติดต่อสอบถามเพิ่มเติม
kshome_saraburi
kshome.
kerdsuk_@hotmail.com
063-893-6169
273 10 ถ.เทศบาล 4 ตำบลพุงเรือง อำเภอเมืองสระบุรี สระบุรี 18000
บริษัท แอดวานซ์ โฮม จำกัด
แบบบ้าน DESIGN 08
- 5 ห้องนอน
- 6 ห้องน้ำ
- 615 ตร.ม.

บริษัท แอดวานซ์ โฮม จำกัด
แบบบ้าน DESIGN 08
- 5 ห้องนอน
- 6 ห้องน้ำ
- 4 ที่จอดรถ
- 615ตร.ม.
บ้านโมเดิร์น คอนเท็มโพรารี่ 2 ชั้น ตอบโจทย์ครอบครัวขนาดกลาง ที่ต้องการความหรูหรา สมฐานะ โดดเด่นด้วยโถงทางเข้า ที่เปิดโล่งสูง ถึงชั้น 2 และระเบียงภายในชั้น 2 ตกแต่งด้วยกระจกเทมเปอร์ยาวตลาดแนว ให้ความีู้สึกเรียบ หรู อย่างแท้จริง
ติดต่อสอบถามเพิ่มเติม
@advancehome.co.th
mm_advancehome@hotmail.com
02-513-8406
116 5-7 ซอยพิบูลอุปถัมภ์ สามเสนนอก ห้วยขวาง กรุงเทพฯ 10310
บริษัท ซีคอน จำกัด
แบบบ้าน Your Home 409
- 5 ห้องนอน
- 5 ห้องน้ำ
- 409 ตร.ม.

บริษัท ซีคอน จำกัด
แบบบ้าน Your Home 409
- 5 ห้องนอน
- 5 ห้องน้ำ
- 3 ที่จอดรถ
- 409ตร.ม.
จำนวนชั้น 2 ชั้น Style Modern พื้นที่ 409 ตร.ม. ขนาดที่ดิน 85 ตร.วา ห้องนอน / ห้องน้ำ 5 / 5 ห้องแม่บ้าน / ที่จอดรถ 0 / 3 ขนาดเส้นรอบบ้าน 16.35x14.20 ขนาดที่ดิน 19.70x17.30
ติดต่อสอบถามเพิ่มเติม
บริษัท พิชยมงคล คอนสตรัคชั่น จำกัด
แบบบ้าน DARKNIGHT RESIDENCE
- 5 ห้องนอน
- 8 ห้องน้ำ
- 1086.50 ตร.ม.

บริษัท พิชยมงคล คอนสตรัคชั่น จำกัด
แบบบ้าน DARKNIGHT RESIDENCE
- 5 ห้องนอน
- 8 ห้องน้ำ
- 4 ที่จอดรถ
- 1086.50ตร.ม.
บ้านที่สะท้อนนิยามของ “ ความหรูหราในความนิ่งสงบ ” ด้วยโทนเข้มที่ให้ความรู้สึกลึกลับและมั่นคงเส้นสายเรียบขรึมตัดกับวัสดุธรรมชาติ สร้างเอกลักษณ์ให้ชีวิตของคุณแตกต่างอย่างมีรสนิยม เป็นสไตล์ Modern contemporary พื้นที่ภายในให้ความรู้สึกผ่อนคลายราวกับอยู่ในรีสอร์ตส่วนตัว
ติดต่อสอบถามเพิ่มเติม
@pmcon
pichayamongkolhomebuilder@gmail.com
094-879-5974, 061-415-9789, 02-101-6545
276/1 ซอย พุทธบูชา36 แขวงบางมด เขตทุ่งครุ กรุงเทพมหานคร 10140
บริษัท ซีคอน จำกัด
แบบบ้าน Cottage 158
- 2 ห้องนอน
- 2 ห้องน้ำ
- 158 ตร.ม.

บริษัท ซีคอน จำกัด
แบบบ้าน Cottage 158
- 2 ห้องนอน
- 2 ห้องน้ำ
- 0 ที่จอดรถ
- 158ตร.ม.
บ้านชั้นเดียวแสนสวย อยู่สบาย สไตล์อเมริกันคอทเทจ ดีไซน์อบอุ่น กะทัดรัด พร้อมเฉลียงรับลมนอกบ้าน ใกล้ชิดธรรมชาติ สวยงามลงตัวด้วยห้องรับแขกอันแสนอบอุ่น 2 ห้องนอน 2 ห้องน้ำ ห้องรับประทานอาหารพร้อมส่วนเตรียมอาหาร อีกทั้งห้องครัวเป็นสัดส่วน เป็นระเบียบด้วยพื้นที่เก็บของทั้ง 2 ด้าน
ติดต่อสอบถามเพิ่มเติม
info@seacon.co.th
1391
บริษัท ซีคอน จำกัด (รับสร้างบ้าน) 107-115 ถนนสี่พระยา บางรัก กรุงเทพฯ 10500