
บริษัท บิวท์ ทู บิวด์ จำกัด
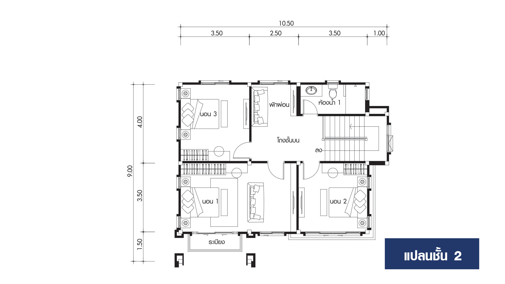
แบบบ้าน Harmony
- 7 ห้องนอน
- 7 ห้องน้ำ
- 3 ที่จอดรถ
- 727ตร.ม.
New Design บ้าน HARMONY By Built To Build สไตล์ Modern Retro รูปทรงดีไซน์สวย ทันสมัย สำหรับที่ดิน “หน้ากว้าง” ไฮไลท์ของตัวบ้านเน้นการตกแต่งด้วยไฟเบอร์ซีเมนต์ลายไม้ ผนังกรุไม้และกรุกระเบื้อง Kenzai ลายหินก่ออิฐ ซึ่งเป็นการเพิ่มเสน่ห์และทำให้บ้านหลังนี้มีมิติในการอยู่อาศัยได้หลายมุมมองทั้งความอบอุ่นและความคลาสิก ทั้งยังดูมั่นคงและแข็งแรง สำหรับฟังก์ชันภายในออกแบบแบบให้มีความยืดหยุ่น สมความตั้งใจของผู้อยู่อาศัย ทั้งยังสามารถปรับเปลี่ยนให้รองรับได้ทุกความต้องการ
ติดต่อสอบถามเพิ่มเติม
btbbuilt@gmail.com
02-721-3999
8 ซอย อ่อนนุช 46 ถนน อ่อนนุช แขวง สวนหลวง เขต สวนหลวง, Bangkok, Thailand, Bangko
ค้นหาแบบอื่นๆ
บริษัท แอดวานซ์ โฮม จำกัด
แบบบ้าน DESIGN 08
- 5 ห้องนอน
- 6 ห้องน้ำ
- 615 ตร.ม.

บริษัท แอดวานซ์ โฮม จำกัด
แบบบ้าน DESIGN 08
- 5 ห้องนอน
- 6 ห้องน้ำ
- 4 ที่จอดรถ
- 615ตร.ม.
บ้านโมเดิร์น คอนเท็มโพรารี่ 2 ชั้น ตอบโจทย์ครอบครัวขนาดกลาง ที่ต้องการความหรูหรา สมฐานะ โดดเด่นด้วยโถงทางเข้า ที่เปิดโล่งสูง ถึงชั้น 2 และระเบียงภายในชั้น 2 ตกแต่งด้วยกระจกเทมเปอร์ยาวตลาดแนว ให้ความีู้สึกเรียบ หรู อย่างแท้จริง
ติดต่อสอบถามเพิ่มเติม
@advancehome.co.th
mm_advancehome@hotmail.com
02-513-8406
116 5-7 ซอยพิบูลอุปถัมภ์ สามเสนนอก ห้วยขวาง กรุงเทพฯ 10310
บริษัท เอส ซี แกรนด์ จำกัด
แบบบ้าน The Grand 629
- 6 ห้องนอน
- 7 ห้องน้ำ
- 629 ตร.ม.

บริษัท เอส ซี แกรนด์ จำกัด
แบบบ้าน The Grand 629
- 6 ห้องนอน
- 7 ห้องน้ำ
- 4 ที่จอดรถ
- 629ตร.ม.
"ตัวบ้านถูกออกแบบในสไตล์ Modern Luxury ที่ให้ความเรียบหรู ดูทันสมัย บวกกับลักษณะของเส้นสายกรอบสี่เหลี่ยมด้านหน้าที่ช่วยสร้างเอกลักษณ์ให้บ้านหลังนี้ดูโมเดิร์นมากยิ่งขึ้น นอกจากนี้ยังมีในส่วนของกระจกเข้ามุม ที่ช่วยเปิดมุมมองการ Take View ออกไปข้างนอกให้กว้างขวางมากยิ่งขึ้น โดยไม่มีผนังมาบดบังทัศนียภาพในการมองเห็น "
ติดต่อสอบถามเพิ่มเติม
@thescgrand
info@scgrand.co.th
02-066-6663, 065-575-1555
751 753 ถ.เพชรเกษม บางหว้า ภาษีเจริญ กรุงเทพฯ 10160
บริษัท ซีคอน จำกัด
แบบบ้าน Valencia 588
- 5 ห้องนอน
- 6 ห้องน้ำ
- 588 ตร.ม.

บริษัท ซีคอน จำกัด
แบบบ้าน Valencia 588
- 5 ห้องนอน
- 6 ห้องน้ำ
- 4 ที่จอดรถ
- 588ตร.ม.
บ้าน Style สเปน ที่มีเอกลักษณ์เฉพาะตัวและเหมาะกับการอยู่เป็นครอบครัวขนาดใหญ่ ในพื้นที่ภายในโดยเฉพาะส่วนรับแขก พักผ่อน ทานอาหาร มีความต่อเนื่องกันทำให้พื้นที่ดูกว้างขวาง ห้อง Master Bedroom มีขนาดกว้างใหญ่เป็นพิเศษ โดยแบ่งสัดส่วนการใช้งานภายในห้องได้อย่างลงตัว พร้อมทั้งมีห้องน้ำในตัวในทุกห้องนอน
ติดต่อสอบถามเพิ่มเติม
info@seacon.co.th
1391
บริษัท ซีคอน จำกัด (รับสร้างบ้าน) 107-115 ถนนสี่พระยา บางรัก กรุงเทพฯ 10500
บริษัท โฟร์พัฒนา พรีเมี่ยม จำกัด
แบบบ้าน Special design 4
- 5 ห้องนอน
- 7 ห้องน้ำ
- 1,529 ตร.ม.

บริษัท โฟร์พัฒนา พรีเมี่ยม จำกัด
แบบบ้าน Special design 4
- 5 ห้องนอน
- 7 ห้องน้ำ
- 6 ที่จอดรถ
- 1,529ตร.ม.
ติดต่อสอบถามเพิ่มเติม
@fourpattana
66 29403789
เลขที่ 2 ซอยลาดปลาเค้า 10 Lat Phrao, Bangkok 10230
บริษัท แลนดี้ โฮม (ประเทศไทย)
แบบบ้าน Robinswood
- 5 ห้องนอน
- 6 ห้องน้ำ
- 610 ตร.ม.

บริษัท แลนดี้ โฮม (ประเทศไทย)
แบบบ้าน Robinswood
- 5 ห้องนอน
- 6 ห้องน้ำ
- 4 ที่จอดรถ
- 610ตร.ม.
"ROBINSWOOD แบบบ้านสไตล์ Modern Classic โดดเด่นด้วยซุ้มโค้งและกรอบหน้าต่างสูง ช่วยเสริมภาพลักษณ์ความสง่างามและภูมิฐาน เหมาะสำหรับครอบครัวใหญ่ที่ต้องการให้บ้านสะท้อนความสำเร็จและรสนิยม พร้อมฟังก์ชันครบครันที่สามารถปรับเปลี่ยนได้ตามไลฟ์สไตล์ของผู้อยู่อาศัย"
ติดต่อสอบถามเพิ่มเติม
02 938 3456
เลขที่ 1 ชั้น 3,8 ซอย 19 ถ.ลาดพร้าว จอมพล จตุจักร กรุงเทพฯ 10900
บริษัท เคเอส โฮม สระบุรี จำกัด
แบบบ้าน KS-CP6802
- 4 ห้องนอน
- 5 ห้องน้ำ
- 314 ตร.ม.

บริษัท เคเอส โฮม สระบุรี จำกัด
แบบบ้าน KS-CP6802
- 4 ห้องนอน
- 5 ห้องน้ำ
- 2 ที่จอดรถ
- 314ตร.ม.
ติดต่อสอบถามเพิ่มเติม
kshome_saraburi
kshome.
kerdsuk_@hotmail.com
063-893-6169
273 10 ถ.เทศบาล 4 ตำบลพุงเรือง อำเภอเมืองสระบุรี สระบุรี 18000
บริษัท โฟร์พัฒนา จำกัด
แบบบ้าน Barn house
- 4 ห้องนอน
- 5 ห้องน้ำ
- 535 ตร.ม.
ติดต่อสอบถามเพิ่มเติม
@fourpattana
66 29403789
เลขที่ 2 ซอยลาดปลาเค้า 10 Lat Phrao, Bangkok 10230
