
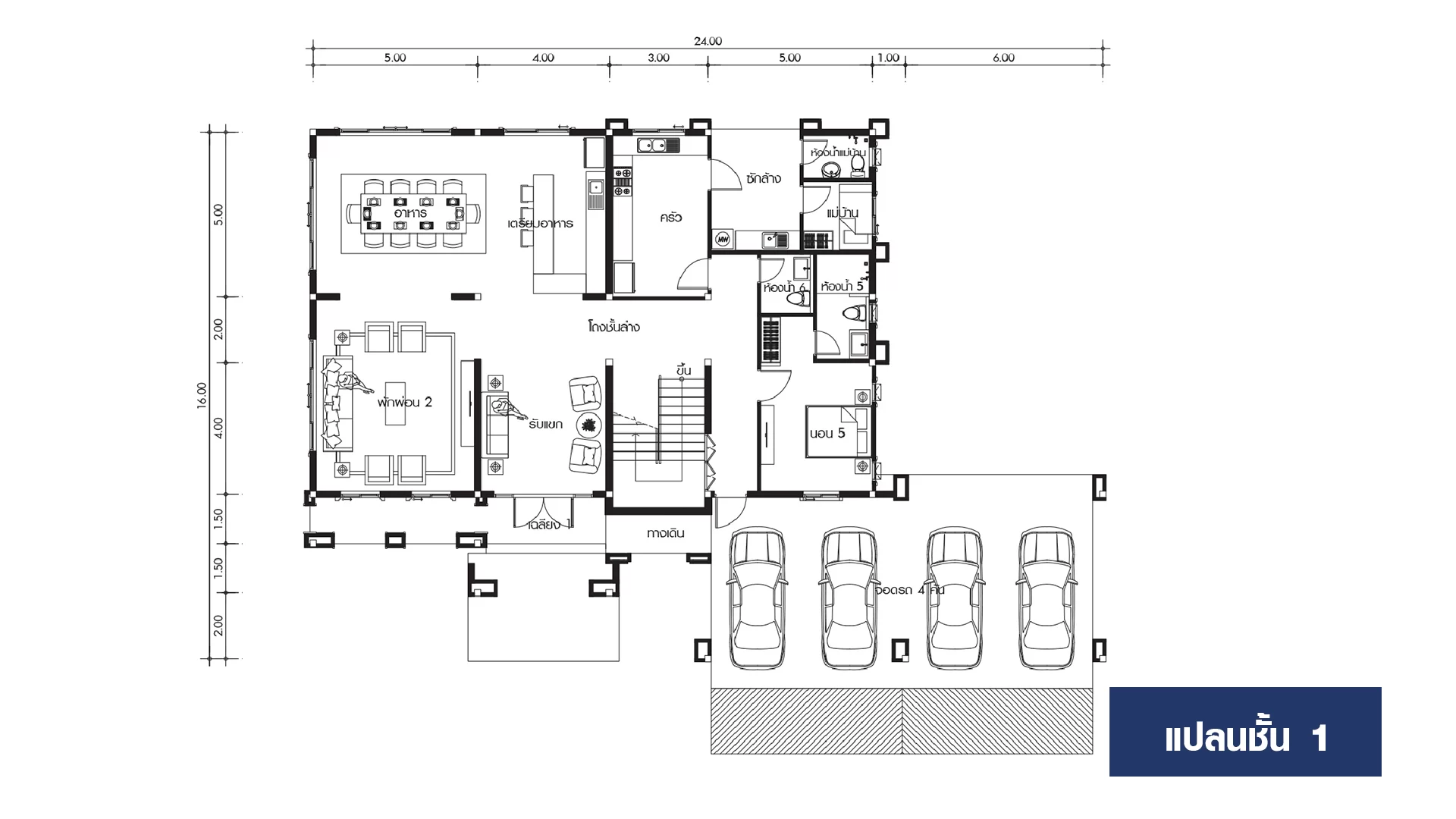
บริษัท ดิ เอ็มเพอเร่อร์ เฮ้าส์ จำกัด
แบบบ้าน Promenade
- 5 ห้องนอน
- 7 ห้องน้ำ
- 6 ที่จอดรถ
- 1620ตร.ม.
ความหลงไหลในรูปทรงและรายละเอียดของสถานีรถไฟหัวลำโพง ในอดีต ทำให้เกิดแรงบันดาลใจในการออกแบบบ้านที่เป็นเอกลักษณ์เฉพาะที่ไม่เหมือนใคร ด้วยรูปทรงที่สมมาตร กับมุกด้านซ้ายและขวาที่นำรายละเอียดของหัวลำโพงมาปรับให้ร่วมสมัย โถงพักผ่อนตรงกลางที่เปิดโล่งเพื่อความโปร่งแบบโรงแรมระดับห้าดาว หลังคาทรงมังซาท เข้ากับรูปแบบบ้านได้เป็นอย่างดี
ติดต่อสอบถามเพิ่มเติม
customerservice@emperorhouse.com
02-970-3080 โทรสาร 02-970-3228, 02-970-4362
288/77 Phaholyotin Rd.,Anusawaree, Bangkhen, Bangkok, Thailand, Bangkok
ค้นหาแบบอื่นๆ
บริษัท โฟร์พัฒนา พรีเมี่ยม จำกัด
แบบบ้าน Special design 4
- 5 ห้องนอน
- 7 ห้องน้ำ
- 1,529 ตร.ม.

บริษัท โฟร์พัฒนา พรีเมี่ยม จำกัด
แบบบ้าน Special design 4
- 5 ห้องนอน
- 7 ห้องน้ำ
- 6 ที่จอดรถ
- 1,529ตร.ม.
ติดต่อสอบถามเพิ่มเติม
@fourpattana
66 29403789
เลขที่ 2 ซอยลาดปลาเค้า 10 Lat Phrao, Bangkok 10230
บริษัท ซีคอน จำกัด
แบบบ้าน MINIMAL 505
- 5 ห้องนอน
- 5 ห้องน้ำ
- 506 ตร.ม.

บริษัท ซีคอน จำกัด
แบบบ้าน MINIMAL 505
- 5 ห้องนอน
- 5 ห้องน้ำ
- 3 ที่จอดรถ
- 506ตร.ม.
15-20 ล้านบาท จำนวนชั้น 2 ชั้น Style MINIMAL พื้นที่ 506 ตร.ม. ขนาดที่ดิน 112 ตร.วา ห้องนอน / ห้องน้ำ 5 / 5 ห้องแม่บ้าน / ที่จอดรถ 1 / 3 ขนาดเส้นรอบบ้าน 23.70x12.10 ขนาดที่ดิน 27.70x16.00
ติดต่อสอบถามเพิ่มเติม
บริษัท เอส ซี แกรนด์ จำกัด
แบบบ้าน A582
- 6 ห้องนอน
- 7 ห้องน้ำ
- 582 ตร.ม.

บริษัท เอส ซี แกรนด์ จำกัด
แบบบ้าน A582
- 6 ห้องนอน
- 7 ห้องน้ำ
- 4 ที่จอดรถ
- 582ตร.ม.
ตัวบ้านถูกออกแบบในสไตล์ Modern Contemporary ที่เน้นความทันสมัย เรียบง่าย เพิ่มมิติที่น่าสนใจด้วยระแนงไม้เลื่อน ช่วยบดบังสายตาจากผู้คนภายนอกเน้นให้ความสำคัญกับพื้นที่ส่วนตัวของครอบครัว เหมาะกับครอบครัวขนาดใหญ่
ติดต่อสอบถามเพิ่มเติม
@thescgrand
info@scgrand.co.th
02-066-6663, 065-575-1555
751 753 ถ.เพชรเกษม บางหว้า ภาษีเจริญ กรุงเทพฯ 10160
บริษัท โฟร์เอ็กซ์ตร้า บิวท์ จำกัด
แบบบ้าน Pre-craft 203
- 4 ห้องนอน
- 3 ห้องน้ำ
- 298 ตร.ม.

บริษัท โฟร์เอ็กซ์ตร้า บิวท์ จำกัด
แบบบ้าน Pre-craft 203
- 4 ห้องนอน
- 3 ห้องน้ำ
- 2 ที่จอดรถ
- 298ตร.ม.
ติดต่อสอบถามเพิ่มเติม
@fourpattana
66 29403789
เลขที่ 2 ซอยลาดปลาเค้า 10 Lat Phrao, Bangkok 10230
บริษัท พิชยมงคล คอนสตรัคชั่น จำกัด
แบบบ้าน The Imperial
- 5 ห้องนอน
- 6 ห้องน้ำ
ติดต่อสอบถามเพิ่มเติม
บริษัท โฟร์พัฒนา จำกัด
แบบบ้าน Barn house
- 4 ห้องนอน
- 5 ห้องน้ำ
- 535 ตร.ม.
ติดต่อสอบถามเพิ่มเติม
@fourpattana
66 29403789
เลขที่ 2 ซอยลาดปลาเค้า 10 Lat Phrao, Bangkok 10230
บริษัท ซีคอน จำกัด
แบบบ้าน MINIMAL 505
- 5 ห้องนอน
- 5 ห้องน้ำ
- 506 ตร.ม.

บริษัท ซีคอน จำกัด
แบบบ้าน MINIMAL 505
- 5 ห้องนอน
- 5 ห้องน้ำ
- 3 ที่จอดรถ
- 506ตร.ม.

