
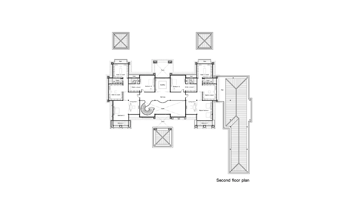
บริษัท โฟร์พัฒนา จำกัด
แบบบ้าน Special Design 1
- 5 ห้องนอน
- 7 ห้องน้ำ
- 2 ที่จอดรถ
- 400ตร.ม.
บ้านสองชั้นขนาดใหญ่ที่พื้นที่ใช้สอยภายในถูกจัดสรรอย่างลงตัว มีพื้นที่ส่วนกลางที่เชื่อมต่อกัน เหมาะกับการสังสรรค์แบบครอบครัวใหญ่ ในขณะเดียวกันก็มีพื้นที่ที่สามารถใช้งานแบบส่วนตัวได้สะดวกสบาย รูปลักษณ์ภายนอกที่ผสมกลิ่นไอของความคลาสสิกเข้าไปในดีไซน์ ไล่ตั้งแต่รูปทรงหลังคา ราวระเบียงเหล็กดัดอิตาลี ไปจนถึงบัวปูนตกแต่งตามชายคา, ซุ้มระเบียง, และบานประตู-หน้าต่าง เสริมให้บ้านมีทั้งความสง่าและละเอียดอ่อนในเวลาเดียวกัน ตัวบ้านถูกคุมโทนด้วยสีขาว-ควันบุหรี่ ตัดกับหลังคาสีน้ำเงินเข้ม ทำให้ภาพรวมออกมาดูเรียบง่าย แต่หรูหราและไร้การเวลา
ติดต่อสอบถามเพิ่มเติม
fourpattana@fourpattana.com
02-940-3789
เลขที่ 2 ซอยลาดปลาเค้า10 แขวงลาดพร้าว เขตลาดพร้าว กรุงเทพฯ 10230
ค้นหาแบบอื่นๆ
บริษัท ซีคอน จำกัด
แบบบ้าน Your Home 409
- 5 ห้องนอน
- 5 ห้องน้ำ
- 409 ตร.ม.

บริษัท ซีคอน จำกัด
แบบบ้าน Your Home 409
- 5 ห้องนอน
- 5 ห้องน้ำ
- 3 ที่จอดรถ
- 409ตร.ม.
จำนวนชั้น 2 ชั้น Style Modern พื้นที่ 409 ตร.ม. ขนาดที่ดิน 85 ตร.วา ห้องนอน / ห้องน้ำ 5 / 5 ห้องแม่บ้าน / ที่จอดรถ 0 / 3 ขนาดเส้นรอบบ้าน 16.35x14.20 ขนาดที่ดิน 19.70x17.30
ติดต่อสอบถามเพิ่มเติม
บริษัท เคเอส โฮม สระบุรี จำกัด
แบบบ้าน KS-CP6802
- 4 ห้องนอน
- 5 ห้องน้ำ
- 314 ตร.ม.

บริษัท เคเอส โฮม สระบุรี จำกัด
แบบบ้าน KS-CP6802
- 4 ห้องนอน
- 5 ห้องน้ำ
- 2 ที่จอดรถ
- 314ตร.ม.
ติดต่อสอบถามเพิ่มเติม
kshome_saraburi
kshome.
kerdsuk_@hotmail.com
063-893-6169
273 10 ถ.เทศบาล 4 ตำบลพุงเรือง อำเภอเมืองสระบุรี สระบุรี 18000
บริษัท ซีคอน จำกัด
แบบบ้าน Casalina 725
- 5 ห้องนอน
- 7 ห้องน้ำ
- 725 ตร.ม.

บริษัท ซีคอน จำกัด
แบบบ้าน Casalina 725
- 5 ห้องนอน
- 7 ห้องน้ำ
- 4 ที่จอดรถ
- 725ตร.ม.
บ้าน 2 ชั้น ที่มีกลิ่นอาย ของความเป็น TUSCANY พื้นที่ใช้สอยเหมาะกับครอบครัวขนาดใหญ่ โดดเด่นด้วยการใช้วัสดุตกแต่งที่กลมกลืนกับธรรมชาติ ช่องประตูหน้าต่างทรงสูง และบัวประดับที่โค้งมน เข้ากันอย่างลงตัว ทำให้บ้านดูสวยงาม หรูหรา บ่งบอกถึงรสนิยมของเจ้าของบ้านได้อย่างชัดเจน ชั้นล่างจัดวางฟังก์ชันให้ใช้งานได้สะดวกเป็นสัดส่วนลงตัว โออ่าด้วยส่วนรับรองแขกขนาดใหญ่ ที่เชื่อมต่อกับห้องอาหาร และเตรียมอาหารที่ใช้ร่วมกัน ด้านหลังบ้านเป็นพื้นที่โอบล้อมทำให้เกิด COURT สามารถเชื่อมทุกมุมมองภายในบ้าน
ติดต่อสอบถามเพิ่มเติม
info@seacon.co.th
1391
บริษัท ซีคอน จำกัด (รับสร้างบ้าน) 107-115 ถนนสี่พระยา บางรัก กรุงเทพฯ 10500
บริษัท โฟร์พัฒนา พรีเมี่ยม จำกัด
แบบบ้าน Special design 4
- 5 ห้องนอน
- 7 ห้องน้ำ
- 1,529 ตร.ม.

บริษัท โฟร์พัฒนา พรีเมี่ยม จำกัด
แบบบ้าน Special design 4
- 5 ห้องนอน
- 7 ห้องน้ำ
- 6 ที่จอดรถ
- 1,529ตร.ม.
ติดต่อสอบถามเพิ่มเติม
@fourpattana
66 29403789
เลขที่ 2 ซอยลาดปลาเค้า 10 Lat Phrao, Bangkok 10230
บริษัท โฟร์พัฒนา จำกัด
แบบบ้าน Barn house
- 4 ห้องนอน
- 5 ห้องน้ำ
- 535 ตร.ม.
ติดต่อสอบถามเพิ่มเติม
@fourpattana
66 29403789
เลขที่ 2 ซอยลาดปลาเค้า 10 Lat Phrao, Bangkok 10230
บริษัท 3 ดี เฮ้าส์ คอนสตรัคชั่น จำกัด
แบบบ้าน Mountain Luxury House
- 3 ห้องนอน
- 5 ห้องน้ำ
- 1132 ตร.ม.

บริษัท 3 ดี เฮ้าส์ คอนสตรัคชั่น จำกัด
แบบบ้าน Mountain Luxury House
- 3 ห้องนอน
- 5 ห้องน้ำ
- 4 ที่จอดรถ
- 1132ตร.ม.
ติดต่อสอบถามเพิ่มเติม
3D RELAX HOUSE
Relaxhouse
info@3drelaxhouse.com
082-2429955 ,092-7306222
92 12 ถ.ป๊อปปูล่า ตำบลบ้านใหม่ อำเภอปากเกร็ด นนทบุรี 11120
บริษัท พิชยมงคล คอนสตรัคชั่น จำกัด
แบบบ้าน DARKNIGHT RESIDENCE
- 5 ห้องนอน
- 8 ห้องน้ำ
- 1086.50 ตร.ม.

บริษัท พิชยมงคล คอนสตรัคชั่น จำกัด
แบบบ้าน DARKNIGHT RESIDENCE
- 5 ห้องนอน
- 8 ห้องน้ำ
- 4 ที่จอดรถ
- 1086.50ตร.ม.
บ้านที่สะท้อนนิยามของ “ ความหรูหราในความนิ่งสงบ ” ด้วยโทนเข้มที่ให้ความรู้สึกลึกลับและมั่นคงเส้นสายเรียบขรึมตัดกับวัสดุธรรมชาติ สร้างเอกลักษณ์ให้ชีวิตของคุณแตกต่างอย่างมีรสนิยม เป็นสไตล์ Modern contemporary พื้นที่ภายในให้ความรู้สึกผ่อนคลายราวกับอยู่ในรีสอร์ตส่วนตัว
ติดต่อสอบถามเพิ่มเติม
@pmcon
pichayamongkolhomebuilder@gmail.com
094-879-5974, 061-415-9789, 02-101-6545
276/1 ซอย พุทธบูชา36 แขวงบางมด เขตทุ่งครุ กรุงเทพมหานคร 10140
