
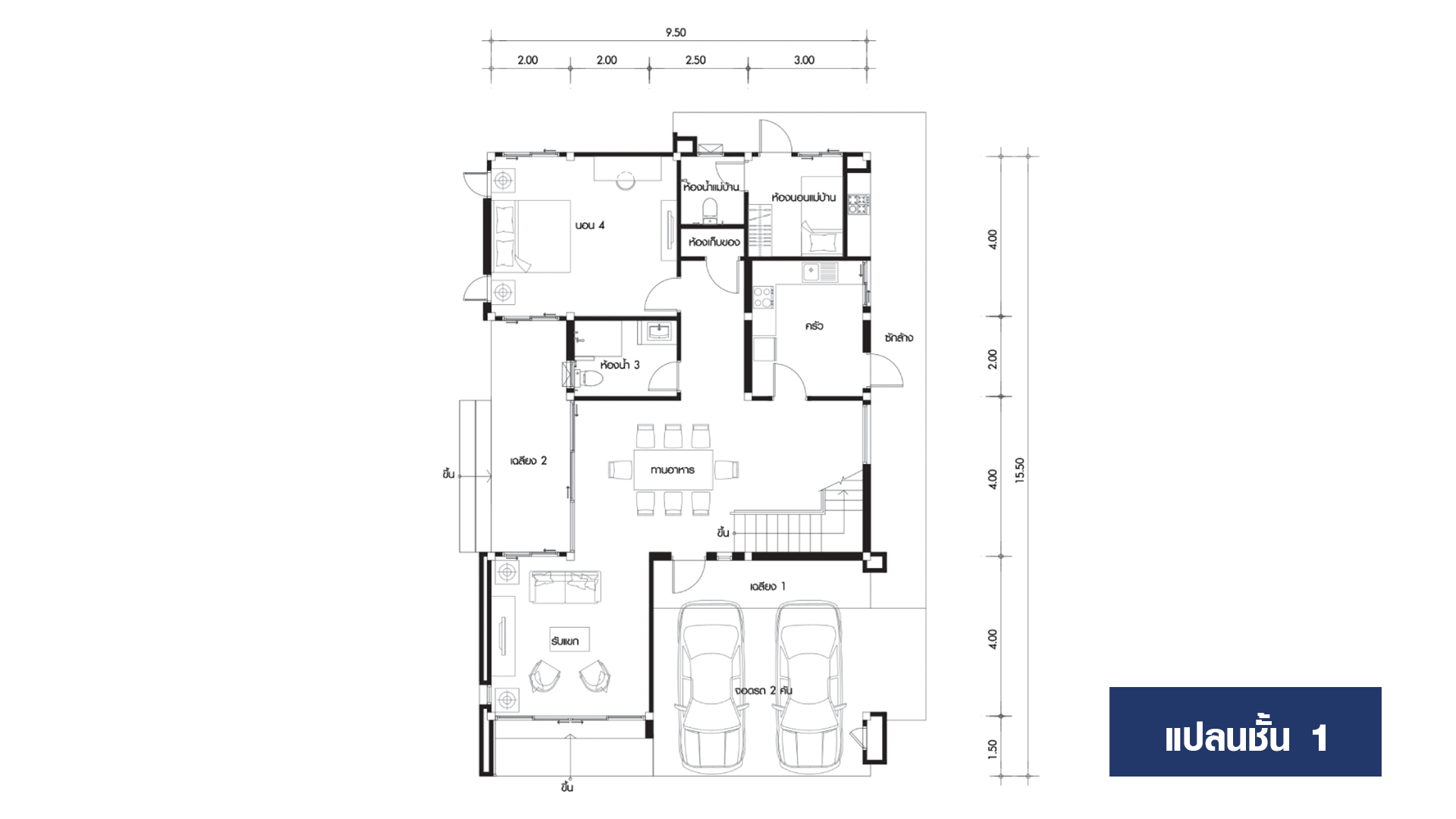
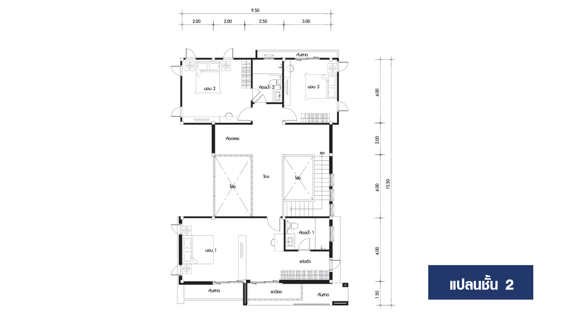
บริษัท บิวท์ ทู บิวด์ จำกัด
แบบบ้าน Superior
- 6 ห้องนอน
- 7 ห้องน้ำ
- 3 ที่จอดรถ
- 621ตร.ม.
แบบบ้าน 3 ชั้น ที่มีการดีไซน์รูปลักษณ์ในสไตล์ Modern Retro ในคอนเซ็ปต์บ้านขนาดใหญ่บนพื้นที่จำกัด เหมาะกับไลฟ์สไตล์ของคนเมือง โดยผสมผสานเข้ากับความทันสมัยอย่างลงตัว ตัวบ้านเน้นโทนสี Earth Tone เคร่งขรึมและอบอุ่น ตกแต่งโดยรอบด้วยระแนงไม้และออกแบบให้มีการระบายอากาศและเปิดรับแสงธรรมชาติได้จากทุกส่วนของมุมบ้าน โซนนั่งเล่นออกแบบให้มี Double Volume ประดับด้วยกระจกบานใหญ่ ช่วยให้มีความโปร่ง โล่งสบาย พื้นที่ชั้นบนออกแบบพื้นที่ของการพักผ่อนไว้อย่างเป็นสัดส่วนและยังสามารถปรับเปลี่ยนฟังก์ชันของการใช้งานได้ตามที่ต้องการ
ติดต่อสอบถามเพิ่มเติม
btbbuilt@gmail.com
02-721-3999
8 ซอย อ่อนนุช 46 ถนน อ่อนนุช แขวง สวนหลวง เขต สวนหลวง, Bangkok, Thailand, Bangko
ค้นหาแบบอื่นๆ
บริษัท บางกอกเฮ้าส์บิวเดอร์ จำกัด
แบบบ้าน OASIS
- 4 ห้องนอน
- 3 ห้องน้ำ
- 323 ตร.ม.

บริษัท บางกอกเฮ้าส์บิวเดอร์ จำกัด
แบบบ้าน OASIS
- 4 ห้องนอน
- 3 ห้องน้ำ
- 2 ที่จอดรถ
- 323ตร.ม.
จุดเด่นของบ้าน แบบบ้าน 2 ชั้น ภายใต้ Concept แบบบ้าน Green Technology ออกแบบเป็นมิตรต่อสิ่งแวดล้อม และใส่ใจธรรมชาติ ด้วยการจัดสวนเพิ่มพื้นที่สีเขียว และใช้แสงธรรมชาติเพื่อประหยัดพลังงาน มีฟังชั่นการใช้งานที่รองรับครอบครัวที่มีไลฟ์สไตล์แบบคนเมือง พื้นที่ใช้สอยภายในบ้าน เชื่อมโยงถึงกัน แต่ไม่ทิ้งความเป็นส่วนตัว คำนึงถึงประโยชน์ใช้สอยในทุกตารางเมตร เพื่อประโยชน์สูงสุดของผู้อยู่อาศัย
บริษัท เอส ซี แกรนด์ จำกัด
แบบบ้าน A582
- 6 ห้องนอน
- 7 ห้องน้ำ
- 582 ตร.ม.

บริษัท เอส ซี แกรนด์ จำกัด
แบบบ้าน A582
- 6 ห้องนอน
- 7 ห้องน้ำ
- 4 ที่จอดรถ
- 582ตร.ม.
ตัวบ้านถูกออกแบบในสไตล์ Modern Contemporary ที่เน้นความทันสมัย เรียบง่าย เพิ่มมิติที่น่าสนใจด้วยระแนงไม้เลื่อน ช่วยบดบังสายตาจากผู้คนภายนอกเน้นให้ความสำคัญกับพื้นที่ส่วนตัวของครอบครัว เหมาะกับครอบครัวขนาดใหญ่
ติดต่อสอบถามเพิ่มเติม
@thescgrand
info@scgrand.co.th
02-066-6663, 065-575-1555
751 753 ถ.เพชรเกษม บางหว้า ภาษีเจริญ กรุงเทพฯ 10160
บริษัท พิชยมงคล คอนสตรัคชั่น จำกัด
แบบบ้าน SAILOM RESIDENCE
- 4 ห้องนอน
- 5 ห้องน้ำ
- 425.07 ตร.ม.

บริษัท พิชยมงคล คอนสตรัคชั่น จำกัด
แบบบ้าน SAILOM RESIDENCE
- 4 ห้องนอน
- 5 ห้องน้ำ
- 3 ที่จอดรถ
- 425.07ตร.ม.
“SAILOM RESIDENCE” — สายลมเงียบ บ้านที่ปล่อยให้ธรรมชาติได้พัดผ่านในทุกวันของชีวิต การออกแบบที่คำนึงถึงการถ่ายเทของลมและแสงธรรมชาติ ทำให้ทุกมุมของบ้านรู้สึกโปร่ง โล่ง และเย็นสบาย ด้วยเส้นสายเรียบง่ายแต่สง่างาม ผสานวัสดุเลียนแบบธรรมชาติและสีอบอุ่น เพื่อสร้างบรรยากาศที่กลมกลืนกับสวนสีเขียวภายนอก “บ้านที่ให้ลมและแสงเป็นส่วนหนึ่งของชีวิตประจำวัน”
ติดต่อสอบถามเพิ่มเติม
@pmcon
pichayamongkolhomebuilder@gmail.com
094-879-5974, 061-415-9789, 02-101-6545
276/1 ซอย พุทธบูชา36 แขวงบางมด เขตทุ่งครุ กรุงเทพมหานคร 10140
บริษัท พิชยมงคล คอนสตรัคชั่น จำกัด
แบบบ้าน DARKNIGHT RESIDENCE
- 5 ห้องนอน
- 8 ห้องน้ำ
- 1086.50 ตร.ม.

บริษัท พิชยมงคล คอนสตรัคชั่น จำกัด
แบบบ้าน DARKNIGHT RESIDENCE
- 5 ห้องนอน
- 8 ห้องน้ำ
- 4 ที่จอดรถ
- 1086.50ตร.ม.
บ้านที่สะท้อนนิยามของ “ ความหรูหราในความนิ่งสงบ ” ด้วยโทนเข้มที่ให้ความรู้สึกลึกลับและมั่นคงเส้นสายเรียบขรึมตัดกับวัสดุธรรมชาติ สร้างเอกลักษณ์ให้ชีวิตของคุณแตกต่างอย่างมีรสนิยม เป็นสไตล์ Modern contemporary พื้นที่ภายในให้ความรู้สึกผ่อนคลายราวกับอยู่ในรีสอร์ตส่วนตัว
ติดต่อสอบถามเพิ่มเติม
@pmcon
pichayamongkolhomebuilder@gmail.com
094-879-5974, 061-415-9789, 02-101-6545
276/1 ซอย พุทธบูชา36 แขวงบางมด เขตทุ่งครุ กรุงเทพมหานคร 10140
บริษัท ช.ฤกษ์ โฮม บิวเดอร์ จำกัด
แบบบ้าน MOSCANY 02
- 4 ห้องนอน
- 6 ห้องน้ำ
- 426 ตร.ม.

บริษัท ช.ฤกษ์ โฮม บิวเดอร์ จำกัด
แบบบ้าน MOSCANY 02
- 4 ห้องนอน
- 6 ห้องน้ำ
- 3 ที่จอดรถ
- 426ตร.ม.
ติดต่อสอบถามเพิ่มเติม
chr.construction2019
ch.roekhomebuilder@gmail.com
0826453924
77 8 บ้านป้อม อำเภอพระนครศรีอยุธยา พระนครศรีอยุธยา 13000
บริษัท ซีคอน จำกัด
แบบบ้าน BEyond 731
- 4 ห้องนอน
- 5 ห้องน้ำ
- 731 ตร.ม.

บริษัท ซีคอน จำกัด
แบบบ้าน BEyond 731
- 4 ห้องนอน
- 5 ห้องน้ำ
- 4 ที่จอดรถ
- 731ตร.ม.
บ้านสไตล์ Modern Luxury ที่มีเอกลักษณ์ในการออกแบบให้ดูเรียบหรู สบายตา เหมาะสำหรับครอบครัวขนาดใหญ่ ภายในออกแบบให้มีพื้นที่ Double space ขนาดใหญ่ ทำให้รู้สึกโปร่ง โล่ง เป็นหัวใจหลักของตัวบ้าน ชั้น 2 ออกแบบให้มี Speac ที่มีความน่าสนใจ คล้ายกับสะพานทางเดินเชื่อมไปยังฟังก์ชันต่างๆ และมาพร้อมพื้นที่ใช้สอยครบครัน รองรับกิจกรรมต่างๆ ของครอบครัวได้อย่างลงตัว
ติดต่อสอบถามเพิ่มเติม
info@seacon.co.th
1391
บริษัท ซีคอน จำกัด (รับสร้างบ้าน) 107-115 ถนนสี่พระยา บางรัก กรุงเทพฯ 10500
บริษัท บ้านมหานคร จำกัด
แบบบ้าน MEGAN
- 4 ห้องนอน
- 5 ห้องน้ำ
- 406 ตร.ม.
บริษัท บ้านมหานคร จำกัด
แบบบ้าน MEGAN
- 4 ห้องนอน
- 5 ห้องน้ำ
- 3 ที่จอดรถ
- 406ตร.ม.
แบบบ้าน Megan เป็นบ้านสไตล์ Modern Luxury ที่นิยามถึงการพักผ่อนระดับพรีเมียมในทุกวัน โดยเน้นการออกแบบพื้นที่ให้มีความเชื่อมต่อกันระหว่างพื้นที่ภายในและภายนอกอย่างลงตัว (Seamless Connection) โดดเด่นด้วยสระว่ายน้ำส่วนตัวขนาดใหญ่ที่เป็นศูนย์กลางของบ้าน พร้อมพื้นที่ระเบียงกว้างขวางสำหรับการพักผ่อน พื้นที่ภายในเน้นความโปร่งโล่งด้วยเพดานสูงและการใช้กระจกบานใหญ่เพื่อรับแสงธรรมชาติ ช่วยให้บ้านดูสว่างและมีมิติ การจัดวางฟังก์ชันห้องนั่งเล่นและห้องรับประทานอาหารเชื่อมต่อกันแบบ Open Plan รองรับการใช้งานที่หลากหลายและให้ความรู้สึกไม่อึดอัด เหมาะสำหรับครอบครัวที่ต้องการความเป็นส่วนตัวและสุนทรียภาพในการใช้ชีวิตที่ทันสมัย แบบบ้านนี้ประกอบด้วยห้องนอนจำนวน 4 ห้อง ห้องน้ำ 5 ห้อง และที่จอดรถสำหรับ 3 คัน
ติดต่อสอบถามเพิ่มเติม
บ้านมหานคร รับสร้างบ้าน
@bn_group
bnkgroup_2023@hotmail.com
020879999
เลขที่ 1/1 ซอย เคหะร่มเกล้า 74 แยก 4 แขวง ราษฎร์พัฒนา เขต สะพานสูง จังหวัด กรุงเทพมหานคร รหัสไปรษณีย์ 10240