
บริษัท ซีคอน จำกัด
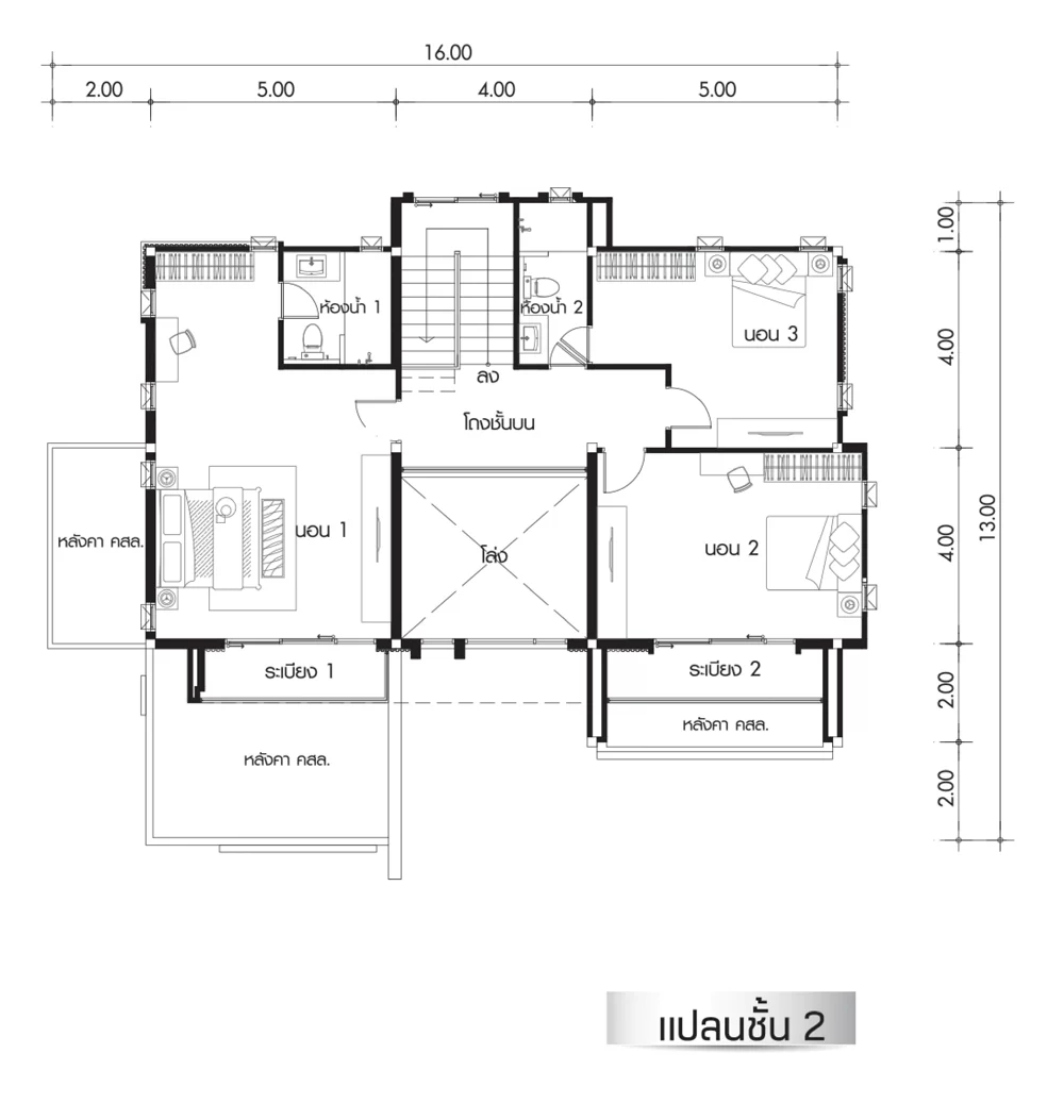
แบบบ้าน The Fame 326
- 4 ห้องนอน
- 4 ห้องน้ำ
- 0 ที่จอดรถ
- 326ตร.ม.
การออกแบบบ้านเน้นการเชื่อมต่อพื้นที่ใช้สอยภายในส่วนต่างๆ ตั้งแต่เฉลียงหน้าบ้านผ่านโถง ส่วนพักผ่อน ส่วนรับแขก ส่วนทานอาหาร และเชื่อมต่อเฉลียงด้านข้างบ้านกับส่วนทานอาหาร อีกทั้งห้องพักผ่อนตรงกลางเปิดเป็นช่องโล่งขึ้นไปชั้น 2 เพื่อให้เกิดความต่อเนื่องของชั้นล่างและชั้นบน ห้องนอนทั้ง 4 ห้องมีขนาดใหญ่ ห้องนอนชั้นล่างยื่นออกมาจากตัวบ้านเพื่อโอบล้อมพื้นที่สีเขียวบริเวณหน้าบ้านเพื่อให้ดูน่าสนใจรูปแบบตัวบ้านและหน้าต่างออกแบบโดยเน้นกรอบสี่เหลี่ยมอย่างชัดเจนใช้วัสดุกระจกเป็นตัวเชื่อมต่อกรอบแต่ละส่วนเข้าด้วยกัน ให้ผนังบางส่วนใช้หินกรุเพื่อสร้างความแตกต่างเหมือนเป็นกรอบอีกรูปแบบหนึ่งให้ตัวบ้าน
ติดต่อสอบถามเพิ่มเติม
info@seacon.co.th
1391
107-115 ถนนสี่พระยา บางรัก กรุงเทพฯ 10500
ค้นหาแบบอื่นๆ
บริษัท เอส ซี แกรนด์ จำกัด
แบบบ้าน A582
- 6 ห้องนอน
- 7 ห้องน้ำ
- 582 ตร.ม.

บริษัท เอส ซี แกรนด์ จำกัด
แบบบ้าน A582
- 6 ห้องนอน
- 7 ห้องน้ำ
- 4 ที่จอดรถ
- 582ตร.ม.
ตัวบ้านถูกออกแบบในสไตล์ Modern Contemporary ที่เน้นความทันสมัย เรียบง่าย เพิ่มมิติที่น่าสนใจด้วยระแนงไม้เลื่อน ช่วยบดบังสายตาจากผู้คนภายนอกเน้นให้ความสำคัญกับพื้นที่ส่วนตัวของครอบครัว เหมาะกับครอบครัวขนาดใหญ่
ติดต่อสอบถามเพิ่มเติม
@thescgrand
info@scgrand.co.th
02-066-6663, 065-575-1555
751 753 ถ.เพชรเกษม บางหว้า ภาษีเจริญ กรุงเทพฯ 10160
บริษัท เอส ซี แกรนด์ จำกัด
แบบบ้าน The Grand 629
- 6 ห้องนอน
- 7 ห้องน้ำ
- 629 ตร.ม.

บริษัท เอส ซี แกรนด์ จำกัด
แบบบ้าน The Grand 629
- 6 ห้องนอน
- 7 ห้องน้ำ
- 4 ที่จอดรถ
- 629ตร.ม.
"ตัวบ้านถูกออกแบบในสไตล์ Modern Luxury ที่ให้ความเรียบหรู ดูทันสมัย บวกกับลักษณะของเส้นสายกรอบสี่เหลี่ยมด้านหน้าที่ช่วยสร้างเอกลักษณ์ให้บ้านหลังนี้ดูโมเดิร์นมากยิ่งขึ้น นอกจากนี้ยังมีในส่วนของกระจกเข้ามุม ที่ช่วยเปิดมุมมองการ Take View ออกไปข้างนอกให้กว้างขวางมากยิ่งขึ้น โดยไม่มีผนังมาบดบังทัศนียภาพในการมองเห็น "
ติดต่อสอบถามเพิ่มเติม
@thescgrand
info@scgrand.co.th
02-066-6663, 065-575-1555
751 753 ถ.เพชรเกษม บางหว้า ภาษีเจริญ กรุงเทพฯ 10160
บริษัท ซีคอน จำกัด
แบบบ้าน Serene 554
- 4 ห้องนอน
- 6 ห้องน้ำ
- 554 ตร.ม.

บริษัท ซีคอน จำกัด
แบบบ้าน Serene 554
- 4 ห้องนอน
- 6 ห้องน้ำ
- 3 ที่จอดรถ
- 554ตร.ม.
บ้านใหม่สไตล์ Modern Contemporary ดีไซน์ทันสมัยแรงบันดาลใจจากการใช้ชีวิต Slow Life ตามแบบฉบับของคนเมือง กับเส้นสายที่เป็นอิสระ เรียบง่าย ให้คุณใช้ชีวิตบนพื้นที่กว้างขวาง ที่เชื่อมทุก Lifestyle ของทุกคนด้วย Vertical Court ที่แทรกตัวอยู่ในบ้านอย่างกลมกลืน การวางตัวบ้านแบบ H Shape Design ที่สามารถสร้าง Backyard เพื่อความรู้สึกผ่อนคลาย และรับทัศนียภาพ โถงชั้นบนที่โปร่งโล่งเป็นพิเศษ เพิ่มพื้นที่ความสุขของครอบครัว และทำให้ทุกการอยู่อาศัยเป็นส่วนตัวสูงสุด พร้อมห้องน้ำภายในทุกห้องนอน ตอบโจทย์ความต้องการใช้ประโยชน์เต็มฟังก์ชันทุกพื้นที่
ติดต่อสอบถามเพิ่มเติม
info@seacon.co.th
1391
บริษัท ซีคอน จำกัด (รับสร้างบ้าน) 107-115 ถนนสี่พระยา บางรัก กรุงเทพฯ 10500
บริษัท ซีคอน จำกัด
แบบบ้าน Casalina 725
- 5 ห้องนอน
- 7 ห้องน้ำ
- 725 ตร.ม.

บริษัท ซีคอน จำกัด
แบบบ้าน Casalina 725
- 5 ห้องนอน
- 7 ห้องน้ำ
- 4 ที่จอดรถ
- 725ตร.ม.
บ้าน 2 ชั้น ที่มีกลิ่นอาย ของความเป็น TUSCANY พื้นที่ใช้สอยเหมาะกับครอบครัวขนาดใหญ่ โดดเด่นด้วยการใช้วัสดุตกแต่งที่กลมกลืนกับธรรมชาติ ช่องประตูหน้าต่างทรงสูง และบัวประดับที่โค้งมน เข้ากันอย่างลงตัว ทำให้บ้านดูสวยงาม หรูหรา บ่งบอกถึงรสนิยมของเจ้าของบ้านได้อย่างชัดเจน ชั้นล่างจัดวางฟังก์ชันให้ใช้งานได้สะดวกเป็นสัดส่วนลงตัว โออ่าด้วยส่วนรับรองแขกขนาดใหญ่ ที่เชื่อมต่อกับห้องอาหาร และเตรียมอาหารที่ใช้ร่วมกัน ด้านหลังบ้านเป็นพื้นที่โอบล้อมทำให้เกิด COURT สามารถเชื่อมทุกมุมมองภายในบ้าน
ติดต่อสอบถามเพิ่มเติม
info@seacon.co.th
1391
บริษัท ซีคอน จำกัด (รับสร้างบ้าน) 107-115 ถนนสี่พระยา บางรัก กรุงเทพฯ 10500
บริษัท พิชยมงคล คอนสตรัคชั่น จำกัด
แบบบ้าน MATT RESIDENCE
- 4 ห้องนอน
- 5 ห้องน้ำ
- 380 ตร.ม.

บริษัท พิชยมงคล คอนสตรัคชั่น จำกัด
แบบบ้าน MATT RESIDENCE
- 4 ห้องนอน
- 5 ห้องน้ำ
- 3 ที่จอดรถ
- 380ตร.ม.
MATT HOUSE - "หนีความเรียบของสีขาวแบบเดิมๆ ด้วยสไตล์ gray modern แต่ไม่มืดทึบจนเกินไป อีกทั้งยังใช้ วัสดุอื่นๆมาเป็นตัวเบรคความเรียบ อย่างการใช้หินอ่อนที่มีลวดลายโดดเด่นและวัสดุธรรมชาติลายไม้ ทำให้บ้านมีมิติ
ติดต่อสอบถามเพิ่มเติม
@pmcon
pichayamongkolhomebuilder@gmail.com
094-879-5974, 061-415-9789, 02-101-6545
276/1 ซอย พุทธบูชา36 แขวงบางมด เขตทุ่งครุ กรุงเทพมหานคร 10140
บริษัท พิชยมงคล คอนสตรัคชั่น จำกัด
แบบบ้าน The Glory Residence
- 6 ห้องนอน
- 6 ห้องน้ำ
- 1,133.27 ตร.ม.
บริษัท พิชยมงคล คอนสตรัคชั่น จำกัด
แบบบ้าน The Glory Residence
- 6 ห้องนอน
- 6 ห้องน้ำ
- 5 ที่จอดรถ
- 1,133.27ตร.ม.
นิยามของบ้านหรูที่ผสานความสง่างามของสถาปัตยกรรมคลาสสิก เข้ากับความเรียบหรูแบบโมเดิร์นได้อย่างลงตัว โดดเด่นด้วยโถงทางเข้าทรงสูง สร้างความโอ่อ่าตั้งแต่แรกเห็น พร้อมดีไซน์อาคารแบบสมมาตร ที่สะท้อนความภูมิฐานเหนือกาลเวลา
ติดต่อสอบถามเพิ่มเติม
@pmcon
pichayamongkolhomebuilder@gmail.com
094-879-5974, 061-415-9789, 02-101-6545
276/1 ซอย พุทธบูชา36 แขวงบางมด เขตทุ่งครุ กรุงเทพมหานคร 10140
บริษัท เนเชอรัลโฮม จำกัด
แบบบ้าน NH 971
- 3 ห้องนอน
- 3 ห้องน้ำ
- 208 ตร.ม.

บริษัท เนเชอรัลโฮม จำกัด
แบบบ้าน NH 971
- 3 ห้องนอน
- 3 ห้องน้ำ
- - ที่จอดรถ
- 208ตร.ม.
เป็นบ้านพักอาศัย 2 ชั้น สไตล์ Modern tropical ที่ผสมผสานความอบอุ่นของงานไม้และความโปร่งโล่งแบบสมัยใหม่ได้อย่างลงตัว ดีไซน์ทันสมัย ตอบโจทย์ครอบครัวยุคใหม่ที่ชอบความเรียบหรู เน้นฟังก์ชันการใช้งานที่ครบครันและการจัดวางทิศทางแสง-ลมที่ยอดเยี่ยม
ติดต่อสอบถามเพิ่มเติม
natural_home01
Natural Home รับสร้างบ้านบนที่ดิน
naturalhomebuilder
natualhome.mkt@gmail.com
02-9918338, 082-2493642
หมู่ 2 15/10 ถนนสายไหม สายไหม กรุงเทพมหานคร 10220