
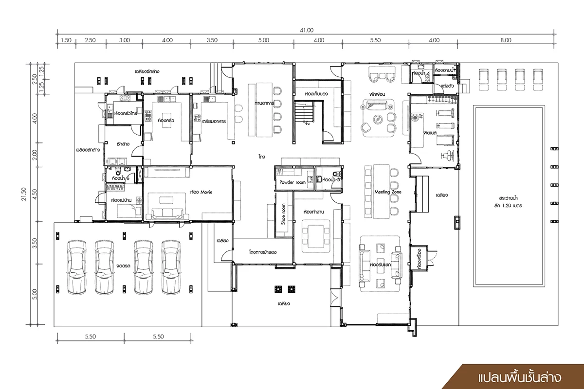
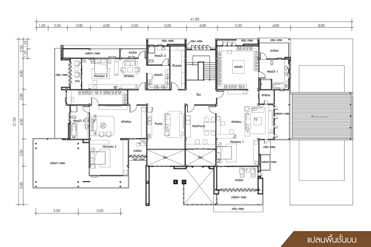
บริษัท บิวท์ ทู บิวด์ จำกัด
แบบบ้าน TOMU
- 4 ห้องนอน
- 6 ห้องน้ำ
- 4 ที่จอดรถ
- 1400ตร.ม.
แบบบ้าน 2 ชั้น สไตล์ modern contemporary japanese-zen แนวคิดและวัฒนธรรมของชาวญี่ปุ่นได้หลั่งไหลเข้ามาในสังคมไทย ผ่านทางเครื่องใช้อุปโภค บริโภคจนกลายเป็นความสนใจของคนรุ่นใหม่ในปัจจุบัน บ้านหลังนี้จึงถูกออกแบบมาเพื่อกระตุ้น REACTIVE SENCE EXPERIENCE ให้เกิดเป็นรูปธรรม ผ่านฟังก์ชั่นการใช้งานตั้งแต่ก้าวเท้าเข้ามาในบ้าน โดยการนำไลฟ์สไตล์ กลิ่นอายของญี่ปุ่นมาผสมผสานในการออกแบบและจัดฟังก์ชันภายในไว้อย่างน่าสนใจ อาทิ การออกแบบให้มี Japanese Foyer แบบลดระดับที่มี Double volume มีห้อง Powder room สำหรับจัดเก็บ Accessory ทั้งตอนเข้าและออกจากบ้าน ฯลฯ และที่สำคัญบ้านหลังนี้ยังคงเน้นตอบโจทย์การใช้งานได้อย่างหลากหลายรูปแบบการใช้ชีวิต และหลากหลายกิจกรรม โดยแบ่งพื้นที่ของการพักผ่อน การออกกำลังกาย ตลอดจนช่วงเวลาของการ Party ไว้แบบไม่มีตกหล่นภายในบ้านหลังเดียว
ติดต่อสอบถามเพิ่มเติม
btbbuilt@gmail.com
02-721-3999
8 ซอย อ่อนนุช 46 ถนน อ่อนนุช แขวง สวนหลวง เขต สวนหลวง, Bangkok, Thailand, Bangko
ค้นหาแบบอื่นๆ
บริษัท บางกอกเฮ้าส์บิวเดอร์ จำกัด
แบบบ้าน OASIS
- 4 ห้องนอน
- 3 ห้องน้ำ
- 323 ตร.ม.

บริษัท บางกอกเฮ้าส์บิวเดอร์ จำกัด
แบบบ้าน OASIS
- 4 ห้องนอน
- 3 ห้องน้ำ
- 2 ที่จอดรถ
- 323ตร.ม.
จุดเด่นของบ้าน แบบบ้าน 2 ชั้น ภายใต้ Concept แบบบ้าน Green Technology ออกแบบเป็นมิตรต่อสิ่งแวดล้อม และใส่ใจธรรมชาติ ด้วยการจัดสวนเพิ่มพื้นที่สีเขียว และใช้แสงธรรมชาติเพื่อประหยัดพลังงาน มีฟังชั่นการใช้งานที่รองรับครอบครัวที่มีไลฟ์สไตล์แบบคนเมือง พื้นที่ใช้สอยภายในบ้าน เชื่อมโยงถึงกัน แต่ไม่ทิ้งความเป็นส่วนตัว คำนึงถึงประโยชน์ใช้สอยในทุกตารางเมตร เพื่อประโยชน์สูงสุดของผู้อยู่อาศัย
บริษัท เนเชอรัลโฮม จำกัด
แบบบ้าน NH 971
- 3 ห้องนอน
- 3 ห้องน้ำ
- 208 ตร.ม.

บริษัท เนเชอรัลโฮม จำกัด
แบบบ้าน NH 971
- 3 ห้องนอน
- 3 ห้องน้ำ
- - ที่จอดรถ
- 208ตร.ม.
เป็นบ้านพักอาศัย 2 ชั้น สไตล์ Modern tropical ที่ผสมผสานความอบอุ่นของงานไม้และความโปร่งโล่งแบบสมัยใหม่ได้อย่างลงตัว ดีไซน์ทันสมัย ตอบโจทย์ครอบครัวยุคใหม่ที่ชอบความเรียบหรู เน้นฟังก์ชันการใช้งานที่ครบครันและการจัดวางทิศทางแสง-ลมที่ยอดเยี่ยม
ติดต่อสอบถามเพิ่มเติม
natural_home01
Natural Home รับสร้างบ้านบนที่ดิน
naturalhomebuilder
natualhome.mkt@gmail.com
02-9918338, 082-2493642
หมู่ 2 15/10 ถนนสายไหม สายไหม กรุงเทพมหานคร 10220
บริษัท โฮมสแควร์ ดีเวลอปเมนท์ จำกัด
แบบบ้าน HSD – 01 The Grace
- 5 ห้องนอน
- 7 ห้องน้ำ
- 590 ตร.ม.

บริษัท โฮมสแควร์ ดีเวลอปเมนท์ จำกัด
แบบบ้าน HSD – 01 The Grace
- 5 ห้องนอน
- 7 ห้องน้ำ
- 4 ที่จอดรถ
- 590ตร.ม.
ติดต่อสอบถามเพิ่มเติม
Homesquaredevelopment
Homesquare Development รับสร้างบ้าน ครบวงจร
@homesquare
contact@homesquare.co.th
02-533-2622
2/69 ลำลูกกาคลอง 4 ลาดสวาย อำเภอลำลูกกา ปทุมธานี 12150
บริษัท ซีคอน จำกัด
แบบบ้าน MINIMAL 505
- 5 ห้องนอน
- 5 ห้องน้ำ
- 506 ตร.ม.

บริษัท ซีคอน จำกัด
แบบบ้าน MINIMAL 505
- 5 ห้องนอน
- 5 ห้องน้ำ
- 3 ที่จอดรถ
- 506ตร.ม.
15-20 ล้านบาท จำนวนชั้น 2 ชั้น Style MINIMAL พื้นที่ 506 ตร.ม. ขนาดที่ดิน 112 ตร.วา ห้องนอน / ห้องน้ำ 5 / 5 ห้องแม่บ้าน / ที่จอดรถ 1 / 3 ขนาดเส้นรอบบ้าน 23.70x12.10 ขนาดที่ดิน 27.70x16.00
ติดต่อสอบถามเพิ่มเติม
บริษัท พิชยมงคล คอนสตรัคชั่น จำกัด
แบบบ้าน The Imperial
- 5 ห้องนอน
- 6 ห้องน้ำ
ติดต่อสอบถามเพิ่มเติม
บริษัท อาร์ตเทคโฮม จำกัด
แบบบ้าน AT-1013
- 5 ห้องนอน
- 7 ห้องน้ำ
- 1080 ตร.ม.

บริษัท อาร์ตเทคโฮม จำกัด
แบบบ้าน AT-1013
- 5 ห้องนอน
- 7 ห้องน้ำ
- 4 ที่จอดรถ
- 1080ตร.ม.
บ้านหรู สไตล์ Modern Luxury พร้อมบรรยากาศที่อบอุ่นในทุกพื้นที่ ตัวอาคารแวดล้อมไปด้วยสระว่ายน้ำ และสวนรอบตัวบ้าน เปิดมุมมองที่สบายตา ด้วยช่องเปิดขนาดใหญ่ ช่วยให้ดูโปร่งโล่ง
ติดต่อสอบถามเพิ่มเติม
02-804-1515
ซอย เพชรเกษม 88 บางแคเหนือ บางแค กรุงเทพมหานคร 10160
บริษัท ซีคอน จำกัด
แบบบ้าน Your Home 409
- 5 ห้องนอน
- 5 ห้องน้ำ
- 409 ตร.ม.

บริษัท ซีคอน จำกัด
แบบบ้าน Your Home 409
- 5 ห้องนอน
- 5 ห้องน้ำ
- 3 ที่จอดรถ
- 409ตร.ม.
